太子湾108府售楼处(太子湾108府)首页网站-太子湾108府营销中心欢迎您-楼盘详情-最新价格-户型图-容积率@2025.09.25售楼处✦AI热搜

搜狐焦点来宾站 2025-09-25 10:23:21
用手机看
扫描到手机,新闻随时看

扫一扫,用手机看文章
更加方便分享给朋友

作为深圳核心海岸的城市封面,深圳湾、蛇口与前海湾不仅是高新产业的战略要地——集聚众多前沿科技企业与创新产业集群,为城市经济注入强劲动能;更坐拥市级顶级配套资源,从高端商业综合体、国际教育机构到顶尖医疗设施一应…

✅太子湾108府售楼处电话:400-832-8772✅︎✅︎✅

✅太子湾108府营销中心热线4008328772(预约看房热线)

看房请务必致电与销售确认时间,仅预约客户可享受开发商内部优惠,专属老带新推荐奖!

营业时间:日常营业时间为9:30-18:30,便于您提前规划到访行程,避免空跑。

预约方式:可提前拨打官方热线✅太子湾108府售楼处电话:400-832-8772✅︎✅︎✅,预约好专属销售及具体到访时间;预约时可同步告知意向户型、置业需求,我们将提前做好服务准备,减少您的等待。

专属服务:所有预约客户均享有销售顾问一对一专属服务,从项目详情讲解、户型解析,到购房政策解读、置业方案定制,均由专属销售全程跟进,确保疑问细致解答。

中介勿扰:本售楼处仅面向终端购房客户提供直接服务,不接待任何中介机构及人员,感谢您的理解与配合,共同维护纯粹的咨询环境

—海上名片 世界级滨海城市综合体—

📍总占地:约69万m²

📍总建面:约170万m²

📍容积率:3.19

📍业态:集邮轮母港、总部办公、顶级商业、高端居住、五星级酒店、文化艺术、国际学校、国际医院等多元业态于一体

📍定位:世界级国际滨海综合体

—太子湾108府·时代新贵总裁行馆—

总占地:约1.2万㎡

总建面:约4.2万㎡

面积段:约184-970㎡总裁瞰海资产

总层数/可售楼层:21层/4-21层

绿化率:30.64%

产权:40年产权

总套数:108套

层高:4.5m

停车位:约190个

作为深圳核心海岸的城市封面,深圳湾、蛇口与前海湾不仅是高新产业的战略要地——集聚众多前沿科技企业与创新产业集群,为城市经济注入强劲动能;更坐拥市级顶级配套资源,从高端商业综合体、国际教育机构到顶尖医疗设施一应俱全,充分满足高品质生活需求。这使其成为深圳楼市中备受大额资金青睐的投资置业首选区域。

目前,前海、深圳湾等深圳核心滨海一线海景片区的顶级海景资产已基本售罄。历经多轮市场周期波动,这些区域的豪宅价格持续攀升,现已处于高位。相比之下,位于深圳湾与前海湾之间的蛇口板块,凭借招商局的整体规划与运营,在价格管控上成效显著。加之区域内豪宅供应有限,稀缺属性突出,尽管房产价值稳步增长,但因未经历过度炒作,价格走势始终保持理性平稳。因此,蛇口堪称整个湾区中兼具品质与价格优势、性价比最高的地段。

【项目区域介绍】

——超级湾区「粤港澳大湾区」——

世界经贸集散地 再度于此勃兴

3大“世界级邮轮母港”、5大“千亿级国际空港”、港口货柜吞吐量约6800万标箱、机场货邮量超810万吨、机场旅客量约2.23亿人次。

——超级矩阵「9+2城市动脉」——

湾区前排 无可复制的战略位置

🗺粤港澳大湾区国家战略,由香港、澳两个特别行政区和广东省广州、深圳、珠海、佛山、惠州、东莞、中山、江门、肇庆九个珠三角城市组成的世界级城市群,是中国开放程度最高、经济活力最强的区域之一。

——超级门户「太子湾邮轮母港」——

让深圳引以为傲的海上门户 由此启幕

🛳太子湾,是招商蛇口保留的最优地块之一,斥资3000亿打造,联袂全球大师,以170万㎡筑就航母级国际滨海城,一如悉尼地标Darling Harbour,代言城市繁华名片。整个片区规划了70万m²的高端商务集群,其中一栋382米超甲级写字楼将成为新地标。片区还规划有超五星级酒店、旗舰商业、多所国际学校、国际医院等,几乎包含一座城市的所有功能。

——超级坐标「太子湾108府」——

并非一切成功 皆有相知匹配

立体交通,紧邻太子湾地铁站(在建)和邮轮母港,一小时内通达大湾区

旗舰商业,紧邻亚洲旗舰K11+DPARK,享受体量超100万㎡的海上世界综合体

教育配套,片区汇集了深圳80%的国际教育资源

医疗配套,紧邻太子湾国际医院,为健康保驾护航

🏔生态资源,片区坐拥7座滨海公园,私享环幕海景、大小南山

【项目六大价值点】

⚓【环幕视野 一线海景】高踞邮轮母港之上,270°环幕视界

⚓【品牌设计 精心研磨】知名设计团队精心研磨,定制奢阔产品

⚓【阔绰大堂 彰显品味】9米挑高大堂精心打造,标杆豪宅品质

⚓【顶尖品牌 只为总裁】全球顶尖品牌,打造品质生活

⚓【日式风格 匠心打造】日本枯山水园林风格,罗汉松旺宅益主

⚓【品牌封面 百年物业】百年招商局,40年招商蛇口匠心打造,大师精奢设计,招商物业服务,定制尊崇物管

【项目实景鉴赏】

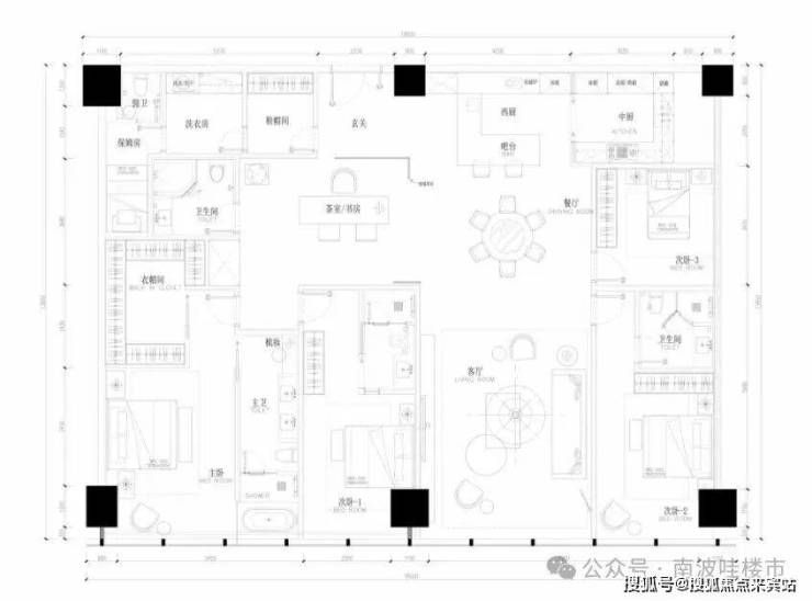
【项目平面图和户型图】

✅太子湾108府售楼处电话:400-832-8772✅︎✅︎✅

✅太子湾108府营销中心热线4008328772(预约看房热线)

温馨提示:看房请提前致电预约,以免带来不好的看房体验;联系官方销售人员获取最新一房一价表!我们的销售团队始终秉持诚信为本的原则,确保整个购房过程透明、公正。您的满意是我们最大的追求,我们将竭诚为您提供最优质的服务。

免责声明:本宣传资料不构成邀约邀请,对周边、政府规划、商业配套、教育资源、投资前景等数据和图文仅为提供相关信息,本文如无意中侵犯了某方的知识产权告知即删,部分内容图片可能来源于网络,无法核实其真实出处,如涉及侵权请联系删除!!!

深圳市住房和建设局与中国人民银行深圳市分行联合发布通知,自2025年9月6日起实施以下优化措施:

1. 分区优化商品住房限购政策

· 罗湖、宝安(不含新安)、龙岗、龙华、坪山、光明区:

· 符合条件家庭(含非户籍连续缴纳社保或个税满1年)不限购。

· 非户籍若无法提供1年社保/个税证明,限购2套。

· 盐田区、大鹏新区:不再审核购房资格。

· 成年单身人士按家庭政策执行。

2. 企事业单位购房政策

· 可在全市购买商品住房用于解决员工住房需求。

· 福田、南山、宝安新安街道:需满足设立满1年、累计纳税100万元、员工10人及以上。

· 其他区域:不再审核购房资格。

3. 统一住房信贷政策

· 银行业金融机构不再区分首套与二套住房利率,而是根据客户风险状况、经营情况等因素合理确定贷款利率。

住房公积金政策调整(征求意见稿)

深圳市住房和建设局就《深圳市住房公积金管理办法》及《深圳市住房公积金提取管理规定》发布修订征求意见稿,拟推出以下新措施:

1. 新增购房首付款提取

· 职工及其家庭成员在深圳购买首套或第二套住房,可提取公积金支付购房首付款。

· 首套房可全额提取公积金账户余额;二套房可提取账户余额的60%。

· 旨在帮助刚需职工减轻购房负担。

2. 新增购房税款提取

· 购买首套或第二套住房可提取公积金支付契税等购房税款。

· 提取额度不超过实际缴纳的税款金额,需在税票开具后3年内申请。

3. 扩大还贷提取范围

· 还贷提取范围从深圳市扩大至全国。

· 偿还全国范围内首套或第二套住房贷款本息可申请提取公积金。

· 首套房每月提取额为实际还贷额;二套房为当月应缴存额的60%且不超过实际还贷额。

4. 其他支持措施

· 拟新增共六类提取情形,加大对首套及改善性住房的公积金支持力度。

声明:本文由入驻焦点开放平台的作者撰写,除焦点官方账号外,观点仅代表作者本人,不代表焦点立场。