热搜焦点:荔源雅苑营销中心电话→荔源雅苑售楼处电话→最新房价→楼盘百科详情→售楼处最新发布@售楼处中心2025-11-02
扫描到手机,新闻随时看
扫一扫,用手机看文章
更加方便分享给朋友
 
 
 
 
 
 
 
 
 
 
 
 
◆开发商营销中心诚挚邀请,一键预约,尊享内部荔源雅苑独家折扣!匠心独运的精品项目,恭候您的品鉴与选择。
🐉🐉荔源雅苑营销中心售楼处24小时电话:400-988-0986(中介勿扰)现场详细解答丨项目介绍丨户型图丨在售房源丨特价房丨学校丨交通荔源雅苑位置丨样板房丨小区图片丨交房时间丨周边配套丨荔源雅苑丨✅本项目暂不接受临时到访,过来参观样板房请记得提前来电预约!🐉🐉
 
 
 
 
 
【项目基本信息】
占地面积:约6249.71㎡
建筑面积:约21999㎡
物业类型:住宅
容积率:3.52
绿化率:34.33%
可售套数:250套
产品类型:约50-117㎡学府准现楼
产权年限:70年
项目地址:南山区·科技园·教科院同乐实验学校旁
 
—————— 项目八大核心价值 ——————
【区域】科技园之上,总部都市居住核心区
【交通】地铁12号线,三横三纵多维路网
【优教】家楼下即南山教科院同乐实验学校
【配套】悦享南山、宝安双中心醇熟配套
【住区】南山稀缺 低密度纯居精致社区
【精著】铝板外立面,打造新中式景观园林
【臻席】约50㎡小户 、89-117㎡品质住宅
【准现楼】现楼发售,见证你所预见
 
湾向世界 心归南山
「 科技园之上 南山总部都市居住核心区 」
南山科技园及留仙洞总部基地双区核心,集前海、后海、深圳湾、科技园及留仙洞深圳五大总部基地发展利好,承载超百万高净值人群居住、生活需求。
🔸高新科技园(东向约3km):国家创新型城市的核心区域,就业人口约60万人。
🔸留仙洞总部基地(北向约2.5km):打造国际化战略新兴产业CBD,规划60万高端就业人口,10万高素质居住人群。
🔸后海金融总部基地、深圳湾超级总部基地(东南向约6km):中国总部企业最为密集区域之一,规划就业人口约为54万人。
🔸前海深港合作区(西南向约4km):定位国家战略性门户枢纽,未来将打造成世界级城市新中心,规划就业人口约65万人,居住人口15万人。
 
优质学府毗邻 赋能菁英未来
「家门口一站式优质教育,目送式书香学府」
🔸小学&初中:教科院同乐实验学校(直线距离约100米),南山首个教科院系实验学校&九年一贯制学校;
🌠教科院:深圳市教育局直属公益一类事业单位,曾打造南山第二外国语学校。
🔸幼儿园:华泰幼儿园,公办18班幼儿园
 
立体多维路网 高效链接核芯区
「 地铁12号线旁,三横三纵路网通达全市」
🔸地铁:
12号线同乐南站(直线约800m),4站到宝中和科技园,5站到前海和后海;
15号线(建设中)同乐关站(直线约1.5km),贯穿前海、后海、南山、宝安等重要片区,环经济发展核心区域。
另有13号线(建设中)、24号线(规划中),四轨交汇,高效出行。
🔸立体交通:
邻近未来深圳最大高铁站一一西丽高铁枢纽(在建中),“三横三纵”6大城市主干道。
三横(南山大道、南海大道、南坪快速)
三纵(广深公路-京港澳高速-南光高速)
 
一城精粹 悦鉴繁华
「双中芯黄金生活圈,醇熟生活配套环伺」
🔸商业配套:
约1万㎡隆尚Minitown(招商中,直线约100m)、约8万㎡云城万科里、超50万㎡南山、宝中成熟中心高端商圈,尽揽一城繁华。
🔸医疗配套:
南山区人民医院、宝安区人民医院、宝安中医院等三甲医院以及南山区中医院(在建),优渥医疗资源,护航健康生活。
🔸生态配套:
楼下规划公园绿地(约2.5万㎡)、铁路文化公园(直线约300m)、新安公园、中山公园,城市绿氧触手可及。
🔸人文配套:
荷兰花卉小镇、南头古城、南山文体中心、南山博物馆、南山图书馆以及宝中重点配套,全配阵容艺术生活,涵养人文气韵。
 
品质纯居住区 臻稀美宅
「纯居社区,入住南山高阶格调生活」
🔸铝板外立面:以铝板及干挂石材打造外立面,匠著建筑美学,敬呈品质生活。
🔸架空层园林:秉承“轻氧森居、活力社交”设计理念,打造集成人健身区、儿童游乐区、老人活动区、廊架休息区、乒乓球场的多功能全龄社交空间。
 
实景低密准现楼 见证你所预见
「建面约50-89-117㎡准现楼」
🔸容积率约3.52,南山稀缺低密住区,准现楼呈现,实景兑现。
🔸建面约50-52㎡南山稀缺小户型,89㎡南向园景户型,臻稀117㎡南北通透品质户型。
 
 
 
 
 
荔源雅苑:位于南山区南头同乐片区中山园路与铁二路交汇处,项目东侧紧挨着同乐实验学校,西侧是同乐物联网产业综合基地。
 
【荔源雅苑】由2栋住宅组成,其中1栋A座住宅30F,1栋B座住宅28F
项目基本信息
◆楼盘名称:荔源雅苑
◆开发商:深圳市荔源实业股份有限公司
◆均价:6.8万㎡
◆物业公司:万家好物业管理有限公司
◆物业费:6.68元/㎡/月
◆ 批地时间:2020年
◆交房时间:2024年年底
◆交付标准:精装交付
◆占地面积:约0.62万㎡
◆建筑面积:约3.4万㎡
◆总栋数:1栋A座2梯5户30层 /B座2梯7户28层
◆总户数:规划322户(可售251套)
◆单层层高:3米
◆车位:约240个
◆容积率:约3.52
◆绿化率:约34%
◆交通:12号线同乐南站800米
◆学校:教科院同乐实验学校
◆商业:一路之隔1万㎡隆尚Minitown(开业在即)建设中
交通配套
12号线同乐南站(直线约800m),4站到宝中和科技园,5站到前海和后海;
15号线(建设中)同乐关站(直线约1.5km),2站到西丽高铁站,贯穿前海、后海、南山、宝安等重要片区,环经济发展核心区域。
另有13号线(建设中)等多轨交汇,高效出行。
立体交通-邻近未来深圳最大高铁站一一西丽高铁枢纽(在建中);享南坪快速等“四横两纵”交通路网。
 
 
 
 
 
商业配套
一路之隔约1万㎡隆尚Minitown(开业在即),云城万科里、海雅缤纷城及壹方城环绕近享,万象天地、深圳湾万象城、海岸城、万象前海四大商圈辐射,集萃南山、宝中双区成熟商圈,尽揽一城璀璨繁华。
 
教育配套
直线距离约100m九年一贯制区属公办教科院同乐实验学校,作为南山区首个教科院系实验学校,以区教科院为智库,为儿女成长提供优质教育平台。
近邻“深圳十强、广东省二十强”博纳学校、公办18班华泰幼儿园,人文优教荟萃,护航孩子成长。
教科院:曾创办南山第二外国语学校,现已发展为南山第一梯队名校。教科院同乐实验学校是教科院成立以来的第一所实验学校,预计承袭南二外的成功经验和成果。
 
医疗配套
南山区人民医院、宝安区人民医院、宝安中医院等三甲医院以及南山区中医院(在建),优渥医疗资源,护航健康生活。
 
 
 
 
 
文体配套
荷兰花卉小镇、南头古城、南山文体中心、南山博物馆、南山图书馆以及宝中重点配套,全配阵容艺术生活,涵养人文气韵。
 
生态配套
周边规划约2.5万㎡公园绿地,近享铁路文化公园、中山公园、新安公园,城市绿氧触手可及。
 
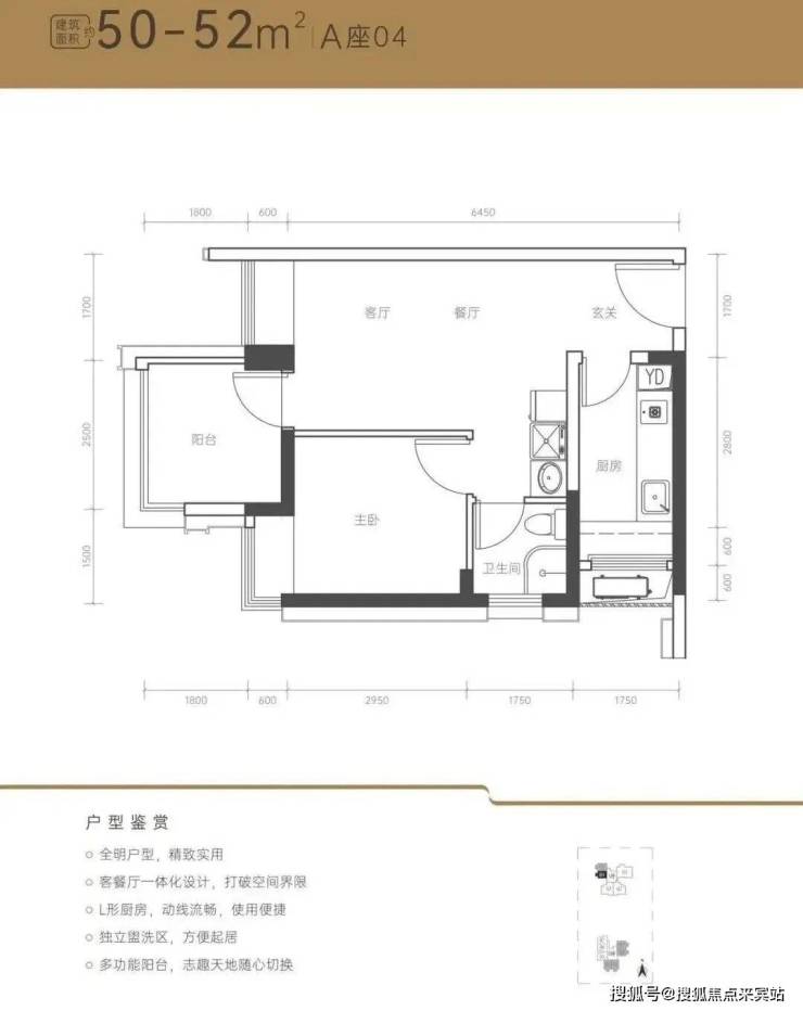
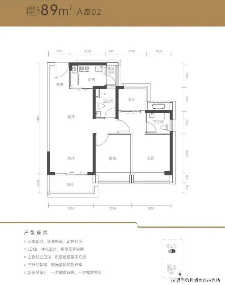
户型鉴赏
 
50-52㎡两房户型
全明户型,精致实用;客餐厅一体化设计,打破空间界限;L形厨房,动线流畅,使用便捷;独立盥洗区,方便起居;多功能阳台,志趣天地随心切换。
 
 
 
 
 
89平三房两卫户型
正南朝向,经典格局,动静分区;LDKB一体化设计,畅享无界空间;主卧独立卫浴,私密起居互不打扰;三开间朝南,阳光清风时刻舒享;双阳台设计,一方藏纳诗意,一方犒赏生活。
 
117平四房两卫户型
格局方正,南北通透,采光通风俱佳,双卧朝南,阳光倾泻而入,卧室均带飘窗,风景尽在眼底,主卧大套房,独立卫浴,私密尊享,创意多功能阳台,私藏一方志趣天地。
 
 
 
 
 
优点:
1、南山少见的小户型,预算有限的刚需可以上车更优的片区,另外户型多样,提供50-117㎡的多种选择
2、靠近12号线同乐南站和15号线(建设中)同乐关站,交通便利
3、项目已经是准现房,品质和交房有保障
4、容积率约3.52
🐉本项目暂不接受临时到访,过来参观样板房请记得提前来电预约!🐉
🐉温馨提醒:我们楼盘售楼部400电话没有设置任何所谓的“分机号”,拨打前请仔细甄别,注意保护个人隐私!谨防上当!🐉
荔源雅苑开发商售楼处电话:400-988-0986【预约热线】丨详细解答丨在售户型图丨项目介绍丨在售房源丨周边配套丨VR看房丨楼盘图丨沙盘图丨位置图丨配套图丨售楼处丨足不出户丨销售1V1讲解
 
声明:本文由入驻焦点开放平台的作者撰写,除焦点官方账号外,观点仅代表作者本人,不代表焦点立场。
 
 
 