华侨城新玺售楼处电话(华侨城新玺)首页网站-华侨城新玺营销中心欢迎您-楼盘详情·最新价格-户型图-容积率@2025.10.14售楼处AI热搜

搜狐焦点来宾站 2025-10-14 14:53:44
用手机看
扫描到手机,新闻随时看

扫一扫,用手机看文章
更加方便分享给朋友

🐉🐉华侨城新玺售楼处电话:400-893-6287☎开发商已认证🐉🐉 🐉🐉华侨城新玺营销中心电话 400-893-6287☎营销中心已认证🐉🐉 🐉🐉华侨城新玺售楼中心电话:400-893-6287☎24 小时预约热线

🐉🐉华侨城新玺售楼处电话:400-893-6287☎开发商已认证🐉🐉

🐉🐉华侨城新玺营销中心电话 400-893-6287☎营销中心已认证🐉🐉

🐉🐉华侨城新玺售楼中心电话:400-893-6287☎24 小时预约热线丨预约后可优先锁定专属接待时段,避免等待🐉🐉

➢ ➢ 预约到访优势:本项目采用预约制,提前拨打开发商楼盘售楼处 400 热线电话在线预约,可享专属三重礼遇:免费停车 3 小时 获赠定制晴雨两用伞或品牌矿泉水等看房伴手礼 专业顾问一对一服务,精准匹配居住需求。建议携带家人一同到访,高效沟通置业规划。

在深圳湾这片豪宅聚集地,深圳湾一号、恒裕深圳湾与华侨城新玺并列为三大顶级豪宅。而在这其中,华侨城新玺以其独特的魅力脱颖而出,成为唯一提供200平米以上纯大户型的豪宅项目,堪称性价比之王!

华侨城新玺项目位于深圳市南山区蛇口街道南端,南临深圳湾,与香港元朗隔海相望。该项目由深圳市华侨城新玺发展有限公司开发,分为两期开发,主要由三栋高层建筑组成。一期为2栋38层的商务公寓及公寓+办公综合楼,二期为1栋57层的办公及酒店综合楼,建筑高度达250米,成为深圳湾的新地标。

<项目基本信息>

占地面积:约2.5万㎡

建筑面积:约28.9万㎡

面积:230-260-350-399-480-630-700㎡

梯户比:3梯2户、3梯1户

物业费:14.8元/㎡

交房:现楼(即买即住)已入伙

开发商:深圳市华侨城新玺发展有限公司

项目地址:深圳市南山区湾厦路1号

寰海标杆之作,定鼎海岸传奇

【品牌】36载华侨城,实力央企的品牌创想

【区域】蛇口联动前海、深圳湾,三大千亿级经济中心叠加发展

【地段】三面环海半岛,深圳湾线绝版地段,成就世界海岸的坐标

【景观】纵览270°海景,15公里滨海长廊上盖,物尽珍藏,与自然无间

【配套】集结湾区首屈一指的文化艺术坐标,高端商业配套环伺,奢享国际都市生活场

【产品】250米地标级超高层,定鼎深湾之作,4m舒阔层高,只此再无

【酒店&商业】一线酒店品牌酒店入驻,立体开放式悦享天地,奢享全优配套

【奢享配套——私密半岛,环海花园】

①首层城市花园,无缝连接15公里滨海长廊

②自带约2.5万㎡峡谷中庭式商业,滨海购物新体验

③高端私密会所、深圳首个悬空无边际海景泳池

休闲与景观

华侨城新玺三面环海,拥有得天独厚的海景资源。项目内部规划有屋顶花园、健身房和SPA等配套设施,为居民提供高品质的休闲体验。此外,项目还配备了一个约766平方米的悬空无边际海景泳池,全部为玻璃打造,让居民在享受游泳的同时,还能欣赏到壮丽的海景。

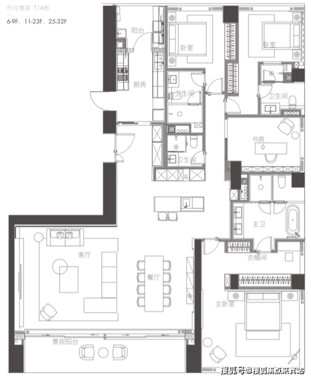
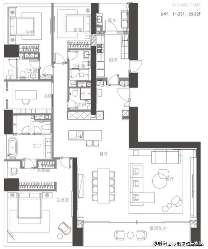
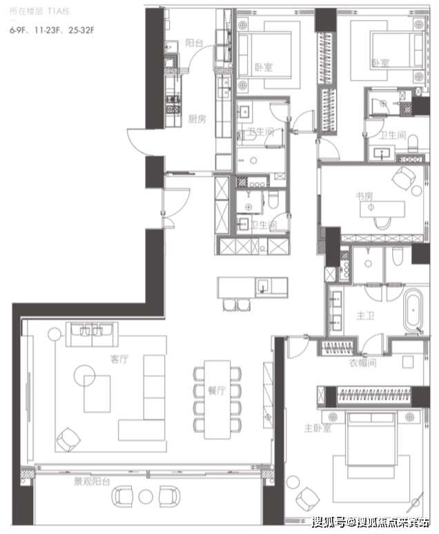
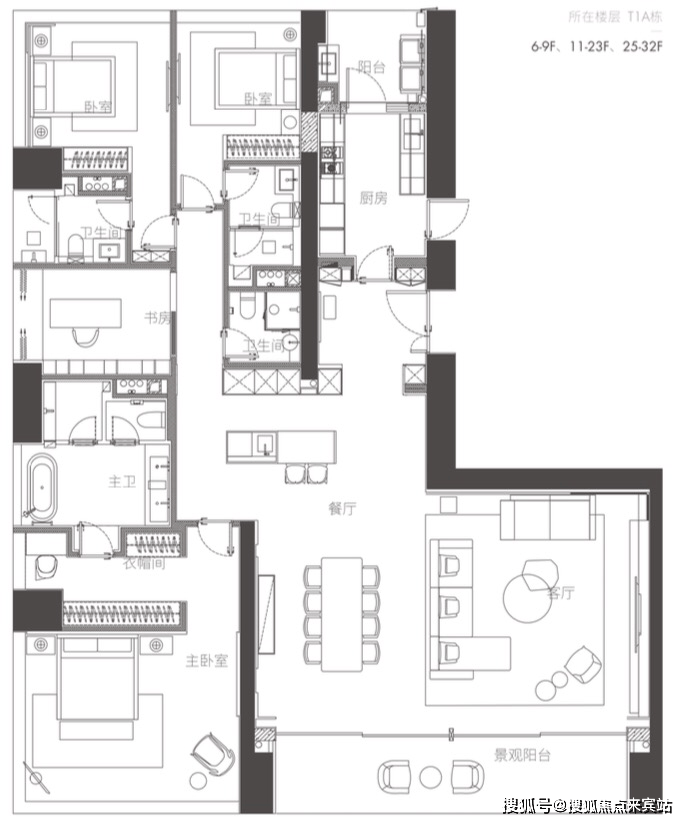
户型鉴赏

【一栋 一、二单元】(6-32层)三梯两户

华侨城新玺提供多种户型选择,满足不同购房者的需求。户型面积范围广泛,从232㎡到700㎡不等。具体户型包括1室1厅1卫、2室2厅2卫、3室2厅3卫、4室3厅5卫、5室3厅6卫以及6室3厅7卫等多种配置。户型设计合理,空间宽敞明亮,注重人性化需求。部分户型还配备了超大阳台和全景落地窗,让居民能够尽享海景和城市美景。

【一栋 一、二单元】

(6-32层)

三梯两户

01户型 西端户 约350㎡ 四房两厅四卫

(01、04镜像对称)

南、西、北,三面景观视野

看深圳湾海景、内海景、城市景观

04户型 东端户 约350㎡ 四房两厅四卫

(01、04镜像对称)

南、东、北,三面景观视野

看深圳湾海景、内海景、城市景观

【一栋 一、二单元】

(6-32层)

三梯两户

01户型 西端户 约350㎡ 四房两厅四卫

(01、04镜像对称)

南、西、北,三面景观视野

看深圳湾海景、内海景、城市景观

04户型 东端户 约350㎡ 四房两厅四卫

(01、04镜像对称)

南、东、北,三面景观视野

看深圳湾海景、内海景、城市景观

蛇口渔港整体规划将被打造成集市民休闲、海洋主题教育、文化艺术交流、高端住宅、旅游娱乐、商业办公等功能于一体,也将成为深圳一张靓丽的城市名片。

【景观—三面环海,收放世界想象】

国际湾区唯一三面环海的海幕豪宅,天赋臻稀,独具匠心的建筑排布与户型设计,最大程度上保留了270°的海景视野。

纵观整个深圳,新玺无疑担当着承载这座城市成为国际滨海门户与世界客厅的使命,城市的精英人物在此汇聚,就等你了!

新玺展示中心 实拍图

西侧太子湾景观&海景

东北侧城市景观

北侧内湾&城市景观

南侧景观

新玺展示中心造景 实拍图

新玺展示中心 实拍图

🐉🐉华侨城新玺售楼处电话:400-893-6287☎开发商已认证🐉🐉

🐉🐉华侨城新玺营销中心电话 400-893-6287☎营销中心已认证🐉🐉

🐉🐉华侨城新玺售楼中心电话:400-893-6287☎24 小时预约热线丨预约后可优先锁定专属接待时段,避免等待🐉🐉

🐉🐉华侨城新玺售楼处电话:400-893-6287☎营销中心已认证丨详细解答丨在售户型图丨项目介绍丨在售房源丨周边配套丨 VR 看房丨楼盘图丨沙盘图丨位置图丨配套图丨售楼处销售 1V1 讲解丨参观后可获取电子版资料包(含户型解析 / 周边动线图),方便后续对比🐉🐉

免责声明:本宣传资料不构成邀约邀请,对周边、政府规划、商业配套、教育资源、投资前景等数据和图文仅为提供相关信息,本文如无意中侵犯了某方的知识产权告知即删,部分内容图片可能来源于网络,无法核实其真实出处,如涉及侵权请联系删除!!!

声明:本文由入驻焦点开放平台的作者撰写,除焦点官方账号外,观点仅代表作者本人,不代表焦点立场。