兰江璟园售楼处电话(兰江璟园)首页网站-兰江璟园营销中心欢迎您-楼盘详情· 最新价格-户型图-容积率@2025.10.16售楼处AI热搜

搜狐焦点来宾站 2025-10-16 14:51:32
用手机看
扫描到手机,新闻随时看

扫一扫,用手机看文章
更加方便分享给朋友

一、兰江璟园售楼处统一联系通道 • 兰江璟园售楼处电话:400-172-0755 • 兰江璟园营销中心:400-172-0755 •兰江璟园开发商营销中心电话:400-172-0755 (工作日9:00-18:00,开发商周末/节假日正常接待)

兰江璟园售楼处电话:400-172-0755丨预约看房享专属优惠丨预约看房免费接送!

【2025最新】兰江璟园项目售楼部热线:400-172-0755。提供最新房价、户型图及楼盘详情,预约可享专属购房优惠,免费专车接送,销售一对一专业服务!

一、兰江璟园售楼处统一联系通道

• 兰江璟园售楼处电话:400-172-0755

• 兰江璟园营销中心:400-172-0755

•兰江璟园开发商营销中心电话:400-172-0755

(工作日9:00-18:00,开发商周末/节假日正常接待)

二、拨打开发商售楼处电话:400-172-0755享三重权益

1、直达售楼处 - 获取最新房源信息和准确房价

2、专属优惠 - 预约看房享受特别购房折扣

3、免费服务 - 专业顾问一对一服务,市区免费接送

兰江璟园,由兰江地产倾力打造,位于深圳坪山区,项目的建设用地面积为8525.22m²;容积率为3.15;绿地面积为708.38 m²;建筑最高高度为73.65 m。项目规划2栋住宅楼,均为23层高,共212户,配套300个地下停车位。另外配建1所幼儿园。

超40%绿化率,规划11大核心景观空间,打造度假式园林;规划打造新深派青年棋牌室、健身房、休闲活动区、度假式休闲会客空间、儿童活动区5大创客空间,下楼即享新深派青年乐活主场。

一、兰江璟园售楼处统一联系通道

• 兰江璟园售楼处电话:400-172-0755

• 兰江璟园营销中心:400-172-0755

•兰江璟园开发商营销中心电话:400-172-0755

(工作日9:00-18:00,开发商周末/节假日正常接待)

注:本图文所示示意图仅作功能区域示意,最终呈现效果以实际交付为准。△ 兰江·璟园效果合成图

兰江·璟园主推建面约78-112㎡三至四房,高拓户型使用率达97%。

全屋赠送80cm宽的大飘窗,3m层高每个空间都非常舒阔,所有户型少承重墙设计空间百变,还搭配双阳台设计,宽尺进深的景观阳台空间阔绰,兼顾空间灵活性和实用性。

一、兰江璟园售楼处统一联系通道

• 兰江璟园售楼处电话:400-172-0755

• 兰江璟园营销中心:400-172-0755

•兰江璟园开发商营销中心电话:400-172-0755

(工作日9:00-18:00,开发商周末/节假日正常接待)

建面约78㎡三房一卫户型性价比超高,堪称刚需户型的天花板,是新深派青年的性价比之选。

建面约88㎡三房两卫户型标配“阳光工坊”独立生活阳台,生活更高效。采用尊贵的主卧套房设计,居住舒适度更高,是舒居改善的进阶之选。

一、兰江璟园售楼处统一联系通道

• 兰江璟园售楼处电话:400-172-0755

• 兰江璟园营销中心:400-172-0755

•兰江璟园开发商营销中心电话:400-172-0755

(工作日9:00-18:00,开发商周末/节假日正常接待)

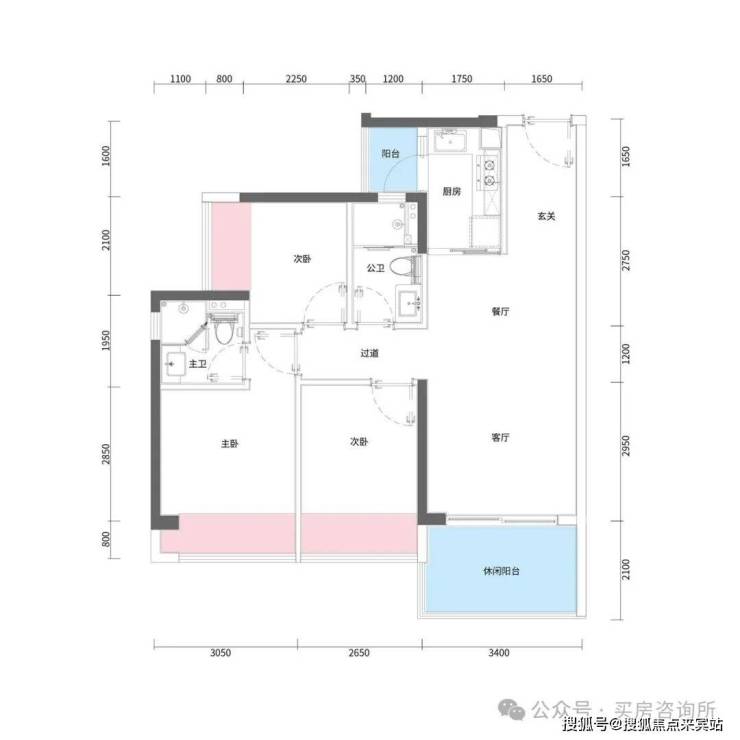
建面约112㎡四房两卫户型,约2.4m进深的景观阳台如“第二客厅”般阔绰。全屋空间“百变魔方”,少承重墙设计,户型随需而变,是成长型家庭的首选。

项目基本信息情况和平面图

一、兰江璟园售楼处统一联系通道

• 兰江璟园售楼处电话:400-172-0755

• 兰江璟园营销中心:400-172-0755

•兰江璟园开发商营销中心电话:400-172-0755

(工作日9:00-18:00,开发商周末/节假日正常接待)

全优配套 成就乐活主场

JING YUAN

交通方面:兰江·璟园,择址近享3地铁、1云巴、2城际、1高铁、10公路,约400米即达地铁16号线沙壆站,可直达坪山高铁站,一站深圳北、两站香港西九龙。

教育配套:目前豪方东园小学学区划分在坪山东纵小学、第二小学,中学学区划分在坪山中学(广东省一级学校)、坪山第二外国语学校(大学区)。

一、兰江璟园售楼处统一联系通道

• 兰江璟园售楼处电话:400-172-0755

• 兰江璟园营销中心:400-172-0755

•兰江璟园开发商营销中心电话:400-172-0755

(工作日9:00-18:00,开发商周末/节假日正常接待)

商业配套:对面豪方东园有约2.2万㎡商业配套,包含酒店和商业楼及沿街商业,能满足日常购物需求。地铁5个站能抵达坪山最大商场益田假日世界

文娱方面:周边有燕子岭公园,燕子湖会展中心,深圳自然博物馆,马峦山郊野公园,赤坳河湿地公园等

一、兰江璟园售楼处统一联系通道

• 兰江璟园售楼处电话:400-172-0755

• 兰江璟园营销中心:400-172-0755

•兰江璟园开发商营销中心电话:400-172-0755

(工作日9:00-18:00,开发商周末/节假日正常接待)

△自然博物馆效果图跟实景图

【兰江璟园项目】开发商售楼处电话:400-172-0755

预约看房享受:专业顾问接待+免费专车接送+专属购房优惠

免责声明:本项目推广名为"珠江壹号项目",相关内容仅供参考,不构成要约承诺,具体信息以买卖合同及实际交付为准。开发商保留最终解释权

声明:本文由入驻焦点开放平台的作者撰写,除焦点官方账号外,观点仅代表作者本人,不代表焦点立场。