深圳侨城坊尔邸楼盘详情_最新房价_售楼处电话_户型图_配套_地址

搜狐焦点来宾站 2025-10-16 19:52:00
用手机看
扫描到手机,新闻随时看

扫一扫,用手机看文章
更加方便分享给朋友

侨城坊尔邸位于深圳南山区,是高端豪宅项目,周边交通便利,配套齐全,主打高端生活。 深圳【侨城坊尔邸】销售中心电话:400-873-0112(中介勿扰)

深圳【侨城坊尔邸】销售中心电话:400-873-0112(中介勿扰)

楼盘最新价格,户型图,地址,电话,样板房,周边配套,项目介绍

温馨提示:绝不收取任何费用,请提前1小时预约看房,以免带来不好的看房体验

——————————————————————————

豪宅集群环绕 华侨城豪宅基因,30年沉淀醇熟高端生活居住地,周边豪宅群集;西接前海、东临福田、北连留仙洞总部基地、南连后海中心,商务中枢

内享山海湖自然美景,外连五大总部基地,完美诠释离尘不离城:华侨城——城市中心地带,连接福田南山的黄金连廊。

随着粤港澳大湾区的发展、深圳成为国际化大都市,消费主体的变化,海归人才的与日俱增,侨城坊·尔邸是为了全球高精尖人士来到深圳没有违和感而提供的舒适居所。

——项目基本信息——

开发商:运泰建业置业(深圳)有限公司

地址:深圳市南山区沙河街道高发社区侨香路4080号

占地面积:4.5万㎡

总建面:35万㎡

产权:50年(12-62年)

总户数:422户

面积:90-220㎡1-2房

车位比:2500个(地下三层)

梯户比:7梯6户︱7梯10户

交楼标准:精装

物业公司:深圳运泰君汇物业管理有限公司

物业管理费:10元/㎡

容积率:4.6

绿化:35%

交楼时间:现楼

建筑类型:公寓

层高:3.15-3.3米

使用率:75%

楼层高:46层(在售30-46层)

办公:约17万㎡

配套居住:4.8万㎡

商业:2万㎡

栋数:1栋

水电:民水民电

——项目配套介绍——

——商业配套——

九方荟生态美学商业中心、 Fusion旗舰健身会所(带800㎡天幕恒温泳池)、巢?艺术

中心、 Tree Club会所、篮球场、羽毛球场,演绎生态x艺术x生活剧场

自带2万㎡商业可满足日常,开车10分钟可达益田假日广场,深圳湾睿印购物中心,万象天地购物中心,华侨城欢乐海岸等

——交通配套——

轨道:地铁2号线侨城北站、地铁7号线桃源村站。

道路:北环大道、、南光高速、沿江高速、创业路。

多维交通体系 距侨城北地铁口仅3分钟路程,15分钟内即达北环立交、广深高速,通往福田CBD、前海中心、宝安机场及珠三角各方向

——教育配套——

对面幼儿园,南山中英文学校,南山第二实验学校(深圳市南山中英文学校是1999年建立的,是集小学、中学一体化,位于著名的华侨城风景区,毗邻“世界之窗”,交通便利,环境优美,占地面积接近三万平方米,校内建筑面积约4万平方米。)

——医疗配套——

开车5-10分钟可达华侨城医院,深圳港大医院

——生态配套——

优质资源配套 集聚欢乐谷,何香凝美术馆,世界之窗,安托山自然艺术公园,燕晗山郊野公园,锦绣中华民俗村,欢乐海岸,国际花卉博展园,华侨城国家湿地公园,高尔夫球场、华侨城生态休闲旅游区、OCT文化创意园、雅昌艺术中心。

户型总价:7.2-9万

90㎡1-2房1卫680-800万 单价7.5-8.8万

100㎡1房2厅1卫800-900万 单价8-9万

220㎡2房2卫1600-1800万 单价6.8-8.1万

稀缺大户型:约220平米的两房两厅设计,拥有9米开间的奢阔客厅,提供宽敞舒适的生活体验。

宽阔阳台:约9平米的阳台空间,让您尽情享受日出日落的美丽景色,品味生活的多样风情。

高端家电配置:全屋配备德国进口顶级米勒家电,以其流线型设计和卓越性能,为厨房带来舒适与浪漫。

——户型图鉴赏——

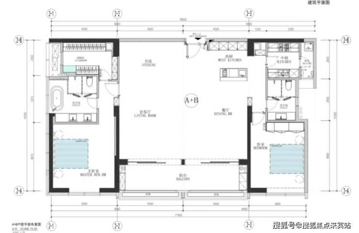
A+B户型(220㎡两房两厅)

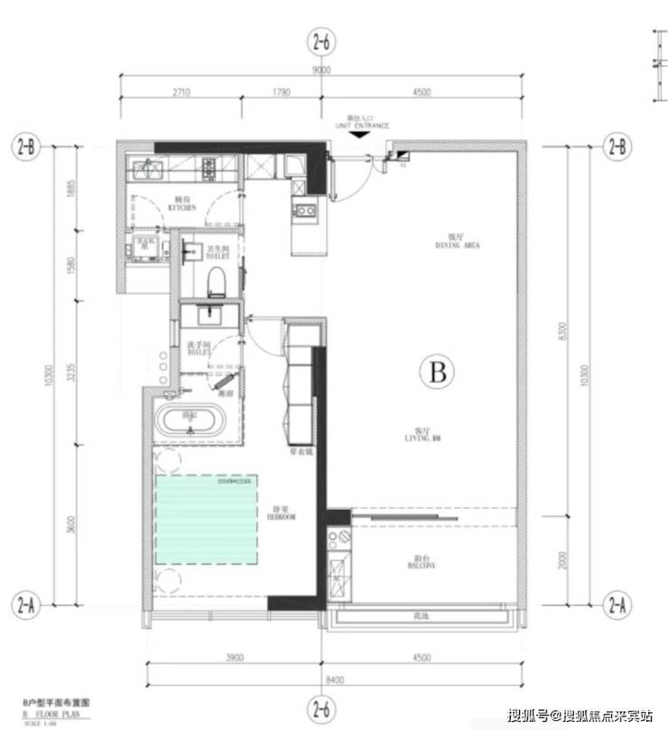
B户型(105㎡一房一厅)

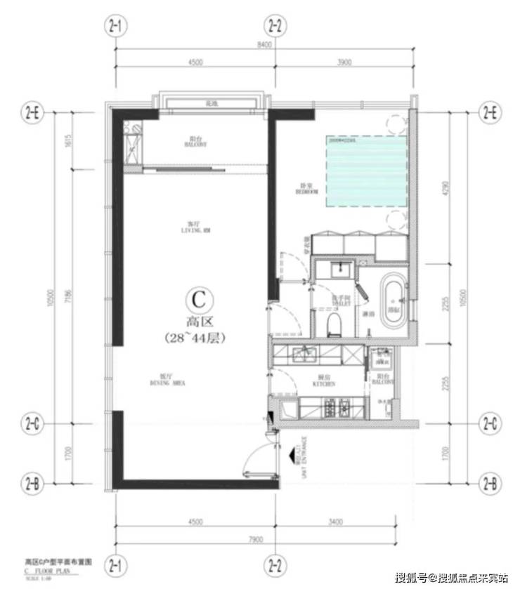
C户型(100㎡一房一厅)

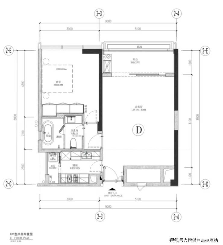
D户型(90㎡一房一厅)

——小区品质——

华侨城,一直以来都是深圳豪宅区的代名词,各届名流均以住在华侨城作为成功的标志之一,即便在深圳湾后来居上的今天,深圳的豪宅总是会为华侨城留有一席之地。

【最美地段】内享山海湖自然美景,外连五大总部基地,完美诠释离尘不离城

【最富圈层】不可复制的生态圈、豪宅圈、人文圈,拥享城市顶级人文艺术圈层配套

【纯粹户型】片区稀缺整栋97-114㎡ー房奢享居所,缔造纯粹新世代菁英圈层

【前瞻设计】五大国际团队联袂设计,名师考究定制超前生活理念,缔造匠心人居典范

【匠心品质】国际一线高端品牌,买手级产品配置,以极致匹配纯粹圈层的生活态度

【专属配套】九方荟生态美学商业中心、 Fusion旗舰健身会所(带800㎡天幕恒温泳池)、巢?艺术中心、 Tree Club会所、篮球场、羽毛球场,演绎生态x艺术x生活剧场

【尊享服务】居家、生活、商务、资产管理四大系统定制,奢想尊贵纯正英式酒店式服务

园区配套:九方荟商业中心、巢?艺术中心、本来生活馆、雅诗阁酒店式公寓、篮球场、羽毛球场

随着粤港澳大湾区的发展、深圳成为国际化大都市,消费主体的变化,海归人才的与日俱增,侨城坊?树屋是为了全球人才来到深圳没有违和感而提供的舒适居所。

【侨城坊树屋】赋予独立、自主、艺术的生活方式TREE HOUSE 树屋A户型,黑金色调,线条刚硬,简约大方,有男生钟爱的科技范儿。

◆ 开发商营销中心诚挚邀请,为您安全和隐私保驾护航,一键预约,尊享内部折扣!匠心独运的精品项目,恭候您的品鉴与选择。 过来参观样板房烦请记得提前来电预约!安排楼盘现场销售全程接待并讲解,给您更贴心的看房体验!

关于本项目最新动态信息,如:在售房源价格,热门户型面积,限时特惠活动,等等,未推售楼栋分布,整体销售情况,临近地铁线路及出入口方位,区域发展蓝图,楼盘核心亮点与待完善细节以及教育资源配套情况等等均可拨打售楼处热线咨询,我们将为您对接专属资深置业顾问进行细致讲解!

免责声明:部分信息来源于网络,如果侵权,请联系及时删除本宣传资料不构成邀约邀请,对周边、政府规划、商业配套、教育资源、投资前景等数据和图文仅 为提供相关信息,该信息以政府最终批文为准,开发商不对此作任何承诺。买卖双方的权利义务以双方签订的买卖合同约定及附件、实际交付为准,本公司保留对宣传资料修改的权利,敬请留意最新资料。联系号码400-873-0112。

声明:本文由入驻焦点开放平台的作者撰写,除焦点官方账号外,观点仅代表作者本人,不代表焦点立场。