深圳深圳湾公馆楼盘详情_最新房价_售楼处电话_户型图_配套_地址
扫描到手机,新闻随时看
扫一扫,用手机看文章
更加方便分享给朋友
深圳【深圳湾公馆】销售中心电话:400-873-0112(中介勿扰)
楼盘最新价格,户型图,地址,电话,样板房,周边配套,项目介绍
温馨提示:绝不收取任何费用,请提前1小时预约看房,以免带来不好的看房体验
——————————————————————————
【深圳湾公馆 | 湾区芯资产,奢适新标杆】深圳湾唯一在售 | 纯复式住宅【精选好房,入主深圳湾最佳机会】
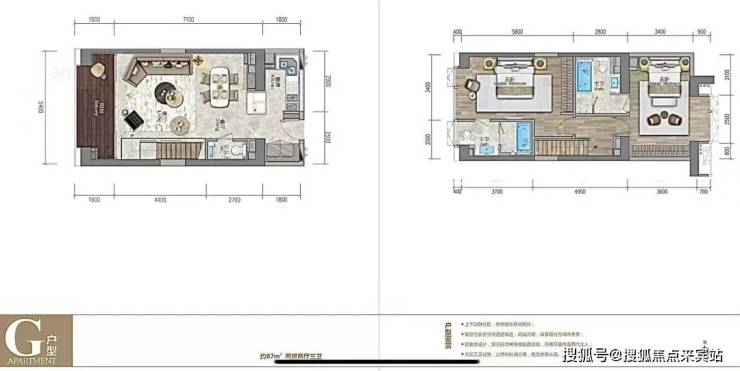
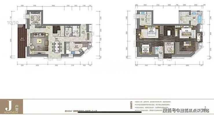
约79㎡ 三房两厅三卫约87—88㎡ 两房/三房两厅三卫约113㎡ 三房两厅三卫+工人房约152㎡ 四房两厅四卫+家庭厅+工人房
1.开发商:广东城脉地产有限公司
2.项目名称:深圳湾公馆
3.坐落位置:深圳市南山区后海大道与东滨路交汇处(北师大南山附中旁)
4.楼盘占地面积/总建筑面积:3000平方米/37000平方米
5.土地性质:商品房
6.土地使用起止年限:2010年至2080年
7.房屋类型:住宅
8.容积率:8.7
9.绿化率:30%
10.车位配比率:1:1(地下四层)
11.总户数:3梯10户,215套
12.楼层:49层,总215户。(套层高5.7米,2.9/2.7米)
13.交楼时间:2017年12月31日(2万左右/平米精装交楼)
14.物业费:9.8元/平米
15.物管公司:深圳市物资物业管理有限公司
16.学区:北师大附中,附小
【项目区位】 位于南山后海大道和东滨路东侧交汇处,地铁2号线登良站 D出口。

区域价值
世界级湾区,后海总部基地,顶级经济聚核:后海金融总部基地与深圳湾超级总部携手,打造以深圳湾为中心,具备全球竞争力的深圳湾超级经济体,其将成为推动深圳超级未来发展的源动力;

中国特色社会主义先行示范区
---------------------------------------
粤港澳大湾区核心引擎,大湾区城市群NO.1
深圳湾超总基地,核心中的核心
百亿级企业总部汇聚
毋庸置疑的经济驱动力
“海陆空轨”国际化高效立体交通
---------------------------------------
五分钟达深圳湾口岸
香港、宝安双国际机场
多条城市主干道畅通全城
打造最高效30分钟国际社交圈
最具国际人文生活中心区
---------------------------------------
150万顶级商业配套
全龄层国际教育、医疗服务一应俱全
15公里滨海休闲长廊、深圳湾文化广场、深圳湾大街、深圳湾歌剧院
商业配套:深圳湾万象城|万象天地|来福士广场|海岸城|海上世界|天虹君尚等繁华一站式商业
人文配套:15公里滨海休闲长廊|深圳湾超级总部基地|深圳湾文化广场|深圳湾大街|深圳歌剧院
全龄层国际教育、医疗服务一应俱全北师大附小,南山外国语学府学校,南油小学,深圳大学附属后海学校,北师范大学附中,深圳湾学校,育才二中等
大师价值
国际前沿重量级顶尖设计大师级团队联袂打造:全美排名第一设计公司AECOM亲手打造,声称深圳绝无仅有的建筑作品;香港知名室内设计大师黄志达精心力作,声称每一个空间充满人性;
产品价值,臻稀高使用率纯复式住宅,深圳不曾不再,2012年之后再无批复低于90㎡住宅复式规划;
品质价值,全球顶级一线品牌精工品质,匠心打造人性化细节:德国Miele、hansgrohe、唯宝;意大利阿勒斯、珐帝诺、LEMA;比利时瑞纳斯;日本大金、百乐满;新加坡捷流等;
顶级圈层私享配套
定制私家空中铂金会所
3D垂直绿化富氧空间
全天候室外恒温泳池
THE ICON酒店式服务公寓,全球甄选一线奢装家私配备
360°全方位服务之道
名车私享荟,一键定制名车服务
私人管家、金牌家政、定制式服务
酒店式物管团队、满足顶级圈层生活服务所需
颜值和实力并举,并不是所有项目都能做到。这也是为什么真正的豪宅凤毛麟角。不管是颜值还是内涵实力,都是对开发商实力和人居理念的考验,也是对“工匠精神”的一种践行。
【产品推荐】(纯复式,层高5.7米。一层2.9米,二层2.8米)
★79㎡复式三房两厅三卫 南北通透,5.4米大开间,复式下层餐厨客厅连宽景阳台,另带一个法式小阳台。复式上层私密卧房全明采光,动静分区私享个性生活。另一个次卧带衣帽间。
★88㎡复式两房两厅三卫 双向通透采光,5.4米开间客厅及主卧,双套房周全设计,室内多变空间可根据家庭需要设置独特的功能。
★113㎡复式三房两厅三卫+工人房 南北通透三面景观,5.6米客厅与主卧开间,独具品位,尽享奢阔。
★152㎡复式三套房两厅四卫+双功能房 双向通透三面采光,尽赏深圳湾景观,6.3米开间,三套房设计,两间多功能房满足个性化使用。
◆ 开发商营销中心诚挚邀请,为您安全和隐私保驾护航,一键预约,尊享内部折扣!匠心独运的精品项目,恭候您的品鉴与选择。 过来参观样板房烦请记得提前来电预约!安排楼盘现场销售全程接待并讲解,给您更贴心的看房体验!
关于本项目最新动态信息,如:在售房源价格,热门户型面积,限时特惠活动,等等,未推售楼栋分布,整体销售情况,临近地铁线路及出入口方位,区域发展蓝图,楼盘核心亮点与待完善细节以及教育资源配套情况等等均可拨打售楼处热线咨询,我们将为您对接专属资深置业顾问进行细致讲解!
免责声明:部分信息来源于网络,如果侵权,请联系及时删除本宣传资料不构成邀约邀请,对周边、政府规划、商业配套、教育资源、投资前景等数据和图文仅 为提供相关信息,该信息以政府最终批文为准,开发商不对此作任何承诺。买卖双方的权利义务以双方签订的买卖合同约定及附件、实际交付为准,本公司保留对宣传资料修改的权利,敬请留意最新资料。联系号码400-873-0112。
声明:本文由入驻焦点开放平台的作者撰写,除焦点官方账号外,观点仅代表作者本人,不代表焦点立场。
