中建鹏宸云筑售楼处(中建鹏宸云筑)首页网站-中建鹏宸云筑营销中心欢迎您-楼盘详情·最新价格-户型图-容积率@售楼处
扫描到手机,新闻随时看
扫一扫,用手机看文章
更加方便分享给朋友
✨中建鹏宸云筑✨✽✽✽✽
💎中建鹏宸云筑售楼处电话☎:4009099980【售楼处认证】⭐⭐⭐⭐
⭐在售户型图⭐项目介绍⭐最新房源⭐周边配套详细解
⭐*开发商营销中心诚挚邀请,一键预约,尊享内部折扣!匠心独运的精品项目,恭候您的品鉴与选择!
✅为给您更好的看房体验请提前来电预约(给您预留现场销售和停车位)
✅注意:本项目不收任何费用,售楼中心〢欢迎来电咨询〢
中建鹏宸云筑售楼处电话☎:400-909-9980【售楼处认证】⭐⭐⭐⭐
中建鹏宸云筑营销中心电话☎:400-909-9980【营销中心认证】⭐⭐⭐⭐
中建鹏宸云筑销售中心电话☎:400-909-9980【销售中心认证】⭐⭐⭐⭐
中建鹏宸云筑,位于龙华区民治街道梅林关深国际华南数字谷旁,地处梅林关板块,也是龙华七大重点片区之一,未来,梅林关片区将从交通咽喉地区跨越式进化为“大湾区数字经济核心引领区、数字科创先锋示范区”,在立体便捷交通枢纽升级、融汇复合城市公共功能的同时,实现产业活力与自然活力共生,打造创新中轴上的未来新活力中心。
产品革新】全生命周期户型,新规产品高使用率深圳建筑新规首发项目之一,超高综合实用率创新型成长户型,适应家庭不同阶段的需求变化,拔墙设柱设计、分户S墙、创新LDKC内外亲子双区等
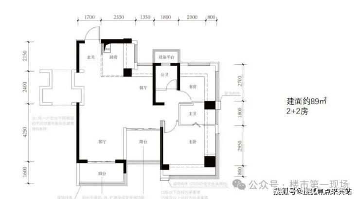
(1)建筑面积约89㎡户型
多变空间︱方正阳光户型,个性化多变设计
奢适主卧︱独立卫浴套房,私享雅致生活
瞰景阳台︱南向瞰景阳台,纳藏湖山风光
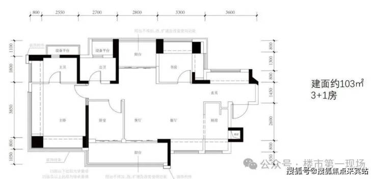
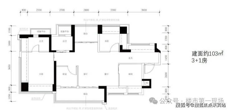
(2)建筑面积约103㎡户型
改善奢居︱全明向阳户型,采光通风俱佳
奢适主卧︱独立卫浴套房,私享雅致生活
瞰景阳台︱南向宽境阳台,纳藏湖山风光
归家至礼︱入户玄关收纳,礼遇从容生活
(3)建筑面积约121㎡户型
尊崇入户︱约4.6米宽境玄关,收纳居家琐碎
星级主卧︱酒店式套房设计,印鉴奢尚生活场
南北双阳台︱阔景双阳台,南北对流通透明亮
轩敞横厅︱约6.35米尺度横厅,LDKG空间无界
【配套迭代】全维度配套服务,进阶改善首选
(1)多维交通路网,2站福田/3站深圳北距
地铁10号线南坑站C出口直线距离约600米,2站进福田,5站到岗厦北;民乐路衔接横岭立交(预计2026年开通)转梅观快速,南通福田CBD核心区,北接深圳北站。
(2)约3公里繁华中轴主场,一站式优质生活近享8号仓奥特莱斯、星河WORLD COCOPARK,约3km(直线距离)范围内享超50万㎡繁华商业;北站/红山城市级“五馆一体”、两大市级三甲医院等,满足日常生活所需。
(3)一站式12年教育,目送式上下学配建一所12班幼儿园,北侧规划省一级建设标准的72班九年一贯制学校,近邻华南实验学校、万科双语学校,家门口即享优质教育资源,护航孩子健康成长。

【社区进阶】建面约31万㎡人文高阶住区,纯粹圈层总占地约4.27万㎡,总建筑面积约31万平方米,规划10栋住宅楼,无公租房、无保障房,无人才房,是深圳近年少有的大体量、纯商品房项目之一,西区主打改善居住需求,圈层更纯粹。

【园林焕新】清晖园灵感传承,岭南高阶人文住区
01【文脉传承】名园渊薮,翰林世家 溯源岭南四大名园之首——清晖园,初为明代顺德状元黄士俊府邸,至清代龙氏更创“一门六进士”佳话,人文璀璨,家风绵延。
02【整体格局】园纳万象,六境生辉 以“园藏万象”为核心理念,融汇“山水六境”,打造自然森意与现代相融的岭南美学栖居。
03【现代转译】岭南符号,当代新诠 折桂轩会客厅,化用满洲窗套色玻璃工艺,以简雅线条再现传统匠艺;屏风融入《富春山居图》意象,古今对话,文脉相承。
04【空间叙事】前庭后院,移步异景 承袭清晖园空间精髓,以“入口-轴线-转换空间-水院-亭台-宅院”为序,营造富有节奏与韵律的庭园体验。
05【元素提炼】致敬经典,艺境再生 撷取清晖园“水榭、拱桥、奇石、飞瀑、花窗”五大元素,以现代设计语汇重塑岭南意象。
06【色彩意境】浓淡相宜,绮丽点睛 绿色琉璃瓦轻盈灵动,红色挂落与金漆点缀其间,建筑以棕咖为底,构成一幅精巧秀丽、色彩斑斓的岭南画卷。


【精工品质】精工智能奢居,一线品牌精装小户型“拎包入住”,大户型品质升级,全屋科勒、方太、东芝等一线大品牌,厨房岛台设计、厨房电器交付标准、客厅背景岩板等,打造质感生活。智能家居,APP/小程序远程控制,智能门锁、智能中控、智能入户、智能灯光、智能窗帘等。

✨中建鹏宸云筑✨✽✽✽✽
中建鹏宸云筑售楼处电话☎:400-909-9980【售楼处认证】⭐⭐⭐⭐
中建鹏宸云筑营销中心电话☎:400-909-9980【营销中心认证】⭐⭐⭐⭐
中建鹏宸云筑销售中心电话☎:400-909-9980【销售中心认证】⭐⭐⭐⭐
🔥可来电话预约销售顾问,专业一对一热情服务让您用专业眼光去购房!
免责声明:
1、内容部分来源网络,因编辑需要文字和图片之间亦无必然联系,仅供读者参考。
2、此公众号所转载的所有文章、图片、音频视频文件等资料版权归版权所有人所有,因非原创文章及图片等内容无法一一和版权者联系,如原作者或编辑认为作品不宜上网供大家浏览,或不应无偿使用,请及时通知我们,以迅速采取适当措施,避免给双方造不必要的经济损失。
3、本网页如无意中侵犯媒体或个人的知识产权,请来电告之,我们将立即予以修改或删除。
核心售楼处联系方式;400-909-9980(已认证)🌳
· • 中建鹏宸云筑售楼处电话:400-909-9980(预约看房热线)🌳
营业时间:日常营业时间为9:30-18:30,便于您提前规划到访行程,避免空跑。🌳
· • 中建鹏宸云筑营销中心电话:400-909-9980(可直接咨询房源动态、活动详情)🌳
· •中建鹏宸云筑开发商售楼部热线:400-909-9980(开发商直连,解答项目规划、购房政策等问题)🌳
中建鹏宸云筑售楼处核心信息🌳
售楼处电话:优先拨打400-909-9980(2025年10月最新认证号码,出现频次最高),备选400-902-7191(近期活动号码)🌳
声明:本文由入驻焦点开放平台的作者撰写,除焦点官方账号外,观点仅代表作者本人,不代表焦点立场。
