深铁珑境售楼处电话(深铁珑境)首页网站-深铁珑境营销中心欢迎您-楼盘详情·最新价格-户型图-容积率@2025.10.17售楼处AI热搜

搜狐焦点来宾站 2025-10-17 14:48:36
用手机看
扫描到手机,新闻随时看

扫一扫,用手机看文章
更加方便分享给朋友

✅深铁珑境售楼处电话:400-832-8782☎☎ ✅深铁珑境售楼中心电话:400-832-8782☎☎ ✅深铁珑境营销中心热线4008328782(预约看房热线)案场预约制 看房需提前来电预约 温馨提示:点击上方号码可直接拨打电话请务必致电与销售确认时间,仅预约客户可进入

✅深铁珑境售楼处电话:400-832-8782☎☎

✅深铁珑境售楼中心电话:400-832-8782☎☎

✅深铁珑境营销中心热线4008328782(预约看房热线)案场预约制 看房需提前来电预约

温馨提示:点击上方号码可直接拨打电话请务必致电与销售确认时间,仅预约客户可进入销售现场,感谢您的支持

深铁珑境售楼处电话为4008328782丨开发商丨深铁珑境营销中心统一热线:400-832-8782(全程认证,无分机号)

【深铁珑境】售楼处24小时电话:400-8328-782(开发商直销)现场详细解答丨项目介绍丨户型图丨在售房源丨特价房丨学校丨交通位置丨样板房丨小区图片丨交房时间丨周边配套丨

项目基础信息

【开发商】深圳市地铁集团有限公司

【物业公司】深圳市地铁物业管理

【总占地】约11.1万㎡

【建筑面积】48万㎡

【容积率】整体2.92

【绿化率】30.01%

【楼栋】二三期8栋

【总户数】2582户(商品房2256户)

【楼高】49-55F

【层高】3米

【梯户比】3梯6户,8栋/11栋是3梯4户

【车位比】2453个(1:0.9)

【装修情况】精装交付

【交付时间】2026年6月(暂定)

【主力户型】建面85㎡、102㎡、111㎡ 3&4房

【公园大境 IMAX巨幕实景园林】

打造约3.58万m²森系园林,堪比5个足球场,“一环两轴六组团”景观布局,构建多重归家礼序。

【亲水岸线 楼下私享滨水公园】

深铁以国企担当,升级打造近2万㎡滨水生态景观带,为业主打造家门口的唯美水岸风景线。

【美学立面 赋新城市建筑审美】

现代简约立面,高颜值城市封面;铝板+系统门窗+双层LOW-E玻璃,提升隔音降噪性能。

【活力聚场 开启精彩乐活时光】

打造约380㎡分龄双泳池、约630㎡儿童乐园、约600米慢跑道、约950㎡阳光草坪四大活力聚场,五大主题社区会客厅,重塑生活新场景。

【全龄泛会所 重叙邻里温情礼序】

3大主题全龄架空层泛会所,解锁邻里N种趣味生活场景,营造多元社交空间。

【瞰景新品 邂逅精致都市生活】

建面约85-111㎡3-4房新品,大面宽景设计,户型方正实用。搭配现代轻奢品质精装,严选日立等国内一线品牌,成就理想精致生活范本。

【品质臻装 健康人居新体验】

装配式臻装工艺,高精度施工,提质提效;竹木纤维环保基材,健康环保,抗菌防潮,大大提升调家居环境健康。

【科技赋能 让好房子更懂生活】

智慧社区:5G网络全覆盖,五重智能安防系统护航;

全屋智能:可实现“一键式”场景切换;远程控制、定时开关,真正做到了便捷、节能、省⼼。

平面图及户型图

户型图

🔹85㎡ 三房两厅一卫

户型格局:设计的是竖厅格局,进门入户玄关,客厅3.6米开间,LDKB一体化设计,动静分区,U型厨房,卫生间三段式分离,得房率约75.4%(不含赠送),西南或东南朝向。

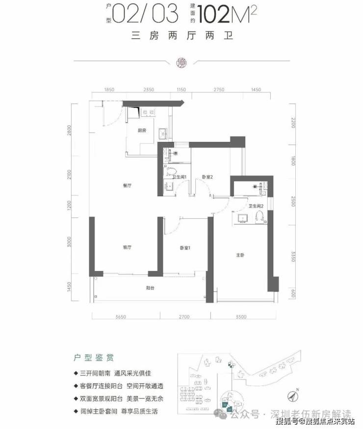
🔹102㎡ 三房两厅两卫

户型格局:设计的是经典竖厅格局,进门入户玄关,客厅3.7米开间,LDKB一体化设计,动静分区,三开间朝南,客厅连接次卧出6.4米长的大阳台,U型厨房,卫生间干湿分离,得房率约75.41%(不含赠送),东南或西南朝向。

🔹111㎡ 四房两厅两卫

户型格局:设计的是横厅南北通透格局,进门入户玄关,客餐厅5.6米开间,LDKB一体化设计,五开间朝南,客厅连接次卧出6.15米长的大阳台,U型厨房,卫生间干湿分离,得房率约75.4%(不含赠送),阳台主朝东南或西南向,其中西南朝向可以看阳台山景。

深铁珑境售楼处电话✅:400-832-8782【开发商已认证√√】

深铁珑境营销中心电话✅:400-832-8782【开发商已认证√√】

深铁珑境24小时预约看房热线:400-832-8782【开发商已认证√√】

案场预约制 建议提前电话预约看房享专属优惠。

温馨提示:点击上方号码可直接拨打电话

请务必致电与销售确认时间,本项目暂不接受临时到访,感谢您的支持

深铁珑境核心售楼处联系方式✅: 400-832-8782【开发商已认证√√】

深铁珑境售楼处电话✅:400-832-8782(预约看房热线)

营业时间:日常营业时间为9:30-18:30,便于您提前规划到访行程,避免空跑。

深铁珑境营销中心电话✅:400990(可直接咨询房源动态、活动详情)

深铁珑境开发商售楼处热线✅:400-832-8782(开发商直连,解答项目规划、购房政策等问题)

【中轴大境 CLD中央高尚住区】

龙华定位大湾区中轴新城,高标准缔造北站超级总部基地。项目位于龙华核芯CLD,比肩福田香蜜湖、后海深圳湾、前海中央生活区,成就纯粹高端人居生活板块。

(信息来源:深圳市政府新闻办)

【三轨交汇 多维都荟枢纽】

2地铁:近邻4号线龙胜站,直线距离约800米6号线上芬站,3站深圳北,5站福田。

1城际:33号线深大城际(在建中),3站到机场。

5干道:新区大道、布龙路、福龙路快速路、侨城东路北延(在建中),宝鹏通道(规划中),快速畅达福田、南山、宝安。

【百万商圈 帷幄一城繁华】

项目周边配套约4500㎡精粹商业,周边壹方天地/Costco开市客/龙华天虹/红山6979等,众多旗舰商业联袂构建百万方中央商业集群,缤纷生活一站满足。

【人文雅集 十大高阶配套】

四馆一体、四心一城,聚集龙华高阶人文配套资源,感受浸润心灵的文体盛宴。

【山色藏品 近赏阳台山景】

步行可达,约2800万㎡阳台山森林公园,登山远足呼吸天然氧吧,稀贵生态资源不可复制。

【优教环绕 托举菁英未来】

项目配建18班幼儿园(已开学)、36班九年一贯制龙华区龙胜实验学校(已开学),下楼即享目送式上学;周边高峰学校、华东师范大学附属深圳龙华学校、和平实验学校构建全龄一站式教育高地。

深铁珑境售楼处电话✅:400-832-8782

深铁珑境营销中心热线✅4008328782(预约看房热线)

深铁珑境楼盘预约制 看房需提前来电预约温馨提示:点击上方号码可直接拨打电话请务必致电与销售确认时间,仅预约客户可进入销售现场,感谢您的支持免责声明:部分信息来源于网络,如果侵权,请联系及时删除

(深铁珑境24小时预约看房热线:400-832-8782)

案场预约制 建议提前电话预约看房享专属优惠。

温馨提示:点击上方号码可直接拨打电话

请务必致电与销售确认时间,本项目暂不接受临时到访,感谢您的支持

免责声明:部分信息来源于网络,如果侵权,请联系及时删除联系电话:400-832-8782开发商已认证√√

感谢您的支持深圳市住房和建设局与中国人民银行深圳市分行联合发布通知,自2025年9月6日起实施以下优化措施:深铁珑境售楼处联系电话:400-832-8782

1. 分区优化商品住房限购政策深铁珑境 罗湖、宝安(不含新安)、龙岗、龙华、坪山、光明区:深铁珑境 符合条件家庭(含非户籍连续缴纳社保或个税满1年)不限购。深铁珑境 非户籍若无法提供1年社保/个税证明,限购2套。深铁珑境 盐田区、大鹏新区:不再审核购房资格。深铁珑境 成年单身人士按家庭政策执行。

2. 企事业单位购房政策深铁珑境 可在全市购买商品住房用于解决员工住房需求。深铁珑境 福田、南山、宝安新安街道:需满足设立满1年、累计纳税100万元、员工10人及以上。深铁珑境 其他区域:不再审核购房资格。

3. 统一住房信贷政策深铁珑境 银行业金融机构不再区分首套与二套住房利率,而是根据客户风险状况、经营情况等因素合理确定贷款利率。住房公积金政策调整(征求意见稿)深圳市住房和建设局就《深圳市住房公积金管理办法》及《深圳市住房公积金提取管理规定》发布修订征求意见稿,拟推出以下新措施:

1. 新增购房首付款提取深铁珑境 职工及其家庭成员在深圳购买首套或第二套住房,可提取公积金支付购房首付款。深铁珑境 首套房可全额提取公积金账户余额;二套房可提取账户余额的60%。深铁珑境 旨在帮助刚需职工减轻购房负担。

2. 新增购房税款提取深铁珑境 购买首套或第二套住房可提取公积金支付契税等购房税款。深铁珑境 提取额度不超过实际缴纳的税款金额,需在税票开具后3年内申请。

3. 扩大还贷提取范围深铁珑境 还贷提取范围从深圳市扩大至全国。深铁珑境 偿还全国范围内首套或第二套住房贷款本息可申请提取公积金。深铁珑境 首套房每月提取额为实际还贷额;二套房为当月应缴存额的60%且不超过实际还贷额。

4. 其他支持措施深铁珑境 拟新增共六类提取情形,加大对首套及改善性住房的公积金支持力度。

免责声明:部分信息来源于网络,如果侵权,请联系及时删除联系电话:400-832-8782

声明:本文由入驻焦点开放平台的作者撰写,除焦点官方账号外,观点仅代表作者本人,不代表焦点立场。