鸿荣源观城售楼处(鸿荣源观城)首页网站-鸿荣源观城营销中心欢迎您-楼盘详情-最新价格-户型图-容积率@售楼处中心2025/10/4

搜狐焦点来宾站 2025-10-04 14:31:27
用手机看
扫描到手机,新闻随时看

扫一扫,用手机看文章
更加方便分享给朋友

✨✨鸿荣源观城售楼处电话:400-861-9050(工作日9:00-21:00,周末无休) ✨✨鸿荣源观城营销中心电话:400-861-9050(可直接咨询房源动态、活动详情) ✨✨鸿荣源观城开发商电话:400-836-6879开发商直(连,解答项目规划、购房政策等问题)

鸿荣源观城项目联系方式(2025年最新)

重要提醒

1,预约制要求

因近期看房客户较多,项目采取预约制,需提前拨打400-861-9050进行线上预约,避免临时到访无法接待。

2,实地考察建议

若选择线下看房,需注意:非预约客户可能被安保拦截,建议提前1天通过官方电话400-861-9050确认行程。

✨✨鸿荣源观城售楼处电话:400-861-9050(工作日9:00-21:00,周末无休)

✨✨鸿荣源观城营销中心电话:400-861-9050(可直接咨询房源动态、活动详情)

✨✨鸿荣源观城开发商电话:400-836-6879开发商直(连,解答项目规划、购房政策等问题)

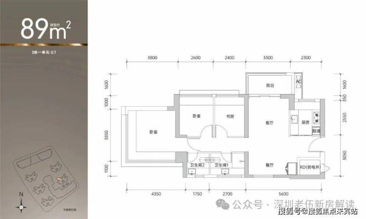
龙华观澜,鸿荣源观城(首推地块备案名:未来平方云山府),本次将会首推1栋2单元,共312套房源,面积有88-98㎡的3房2卫,108-117㎡的4房2卫户型,周边有2024年9月入市的金光华溪山禾玺,备案均价4.43万/㎡以及2024年5月份入市的景勋天著,备案均价4.97万/㎡,实际折后销售均价4.2万/平,这次观城开盘均价大概率也是在这个幅度范围内,预计在2026年12月份带精装交付。

鸿荣源观城作为观澜CBD综合体大盘,从建设初期就一直广受关注,迭代升级的壹方天地2.0版本,集超40万㎡一站式观城壹方商业、3所全龄段公立学校、5大生态公园、三甲医院及甲级写字楼集群于一体,以全维配套矩阵重塑区域价值,打造深圳西部醇熟生活新范本!

目录

1、项目区位

2、项目介绍

3、项目户型

4、项目配套

5、项目评测

项目区位

鸿荣源观城,位于龙华区观湖街道4号地铁线“观澜站”旁,从大区位来看,项目处于龙华六大重点发展片区之一的鹭湖中心区,规划建设集聚区域性总部研发办公、中高端商业服务、应用研发与双创专业服务平台、培训展示、文化、医疗、行政服务、中小企业孵化培育等功能,将环湖活力生态区升级为辐射深莞中部的综合服务核心区。

项目介绍

鸿荣源观城,原为龙华区观湖街道观城第一期城市更新单元,该城市更新单元总规划占地约38万㎡,总建筑面积约275万㎡,共分六期16个地块开发,其中住宅面积133万㎡(其中包含了公租房18.08万㎡,土地整备安置房1万㎡),其中1/2期加起来有8108套房源,包含了有商品房5602套,租赁+安置房2506套。

本次首推的08地块,备案名:未来平方云山府,由鸿荣源集团打造,共分3期建设,总占地面积约2.73万㎡,总建筑面积约37.41万㎡,计容建筑面积约27.51万㎡,容积率9.23,绿化率32.01%,共由5栋58-59层高住宅组成,其中1栋1单元住宅59F,1栋2/3单元住宅58F,3栋1单元/2单元住宅58F,4栋1/2单元写字楼35F,2栋是1所18班幼儿园,配建有公交首末站。

总规划1566户,全部都是商品房,3梯6户设计,地下室有4层,规划2220个车位,其中包含公共停车位200个,实际车位比约1:1.29。

户型图

01

交通配套

交通地铁】

距离4号线延长线观澜站400米、有轨电车新澜站500米,走路6-8分钟的距离,10站可到达深圳北站,16站到福田CBD。未来还有规划中的18、22号线加持。

22号线鹭湖站在建,始于龙华黎光站,途经龙岗区,终于福田上沙站,开通后到福田仅需45分钟。

自驾方面,临近梅观快速、观澜大道、龙澜大道、观光路、人民路等主干道,通过沈海高速、外环高速可以快速到达深圳其他区域。

02

商业配套

自带超20万㎡壹方系列商业,集中在一期地块,可参考宝安沙井的鸿荣源奥特莱斯,后期也将成为观澜片区的商业标杆。

一路之隔还有百佳华max city商业,2019年12月21日开业,目前是附近一带的商业中心。

4公里内还有观澜天虹、观澜湖新城MH Mall等繁华商圈。

03

教育配套

自身规划了3所幼儿园,3所九年制学校,其中1所72班九年一贯制学校,1所54班九年一贯制学校。目前龙华区已经入驻的四大名校有深外、深高、深中,只有深实验还没有入驻,网传深实验极有可能落地其中。

按照目前的学区划分,小学学区为观澜中心学校小学部,初中为观澜二中、龙华第三外国语初中部。

04

医疗配套

2公里范围内有5家社康医院、2家三甲综合医院(龙华中区中心医院、深圳市第二人民医院龙华医院),日常看病就医完全能满足。

05

休闲配套

楼下就是锦山公园,约2公里范围内有松元公园、观澜老街公园、大步巷南公园、深圳民法公园、马坜社区公园、观城社区公园等6大公园。

2公里还有各大人文艺术场馆,比如深圳观澜美术馆、龙华图书馆、观湖文化艺术体育场馆、全能的文化体育新地标—观澜文化体育中心(在建中)、龙华人文四馆(在建中)等。

✅ 本项目暂不接受临时到访,过来参观样板房请记得提前来电预约!

✅ 为您安排楼盘现场销售全程接待并讲解,给您更贴心的看房体验!

如有问题欢迎来电咨询,来电即可享受买房优惠!400-861-9050

预约来电尊享购房优惠,可预约案场内部销售人员,专业一对一热情服务,让您用专业眼光去买房。

免责声明

1、文章图片来源于微信搜索或百度搜索引擎,我方非相关图片的原创作者,也不对相关图片及内容享有任何权利。

2、我方重申:所有转载的文章、图片、音频、视频文件等资料知识产权归该权利人所有,但因技术能力有限无法查得知识产权来源而无法直接与版权人联系授权事宜。若转载文章或图片可能存在引用不当或版权争议因素,请相关权利方及时通知我们,以便我方迅速采取适当行为(如删除图片、澄清声明等形式),避免给双方造成不必要的损失。

3、本宣传资料对项目周边幼儿园、学校等教育资源的介绍旨在提供相关信息,并不意味着我方对就学安排作出承诺。教育资源的名称、办学性质、办学规模、学位设置、开学(班)时间、招生条件、收费标准及招生区域存在调整的可能,应以政府教育主管部门及办学方颁布的政策规定为准。联系号码:4008366879

4、文章中文字和图片之间无必然联系,仅供读者参考。

5、本文所述内容和意见仅供参考,不构成市场交易依据和投资建议。

声明:本文由入驻焦点开放平台的作者撰写,除焦点官方账号外,观点仅代表作者本人,不代表焦点立场。