越秀星科源启售楼处(越秀星科源启)营销中心欢迎您-越秀星科源启首页网站-楼盘详情·户型图-最新价格-容积率@2025.10.17售楼处AI热搜
扫描到手机,新闻随时看
扫一扫,用手机看文章
更加方便分享给朋友
最新消息
光明中心区,越秀星汇珑府改名越秀星科源启,将于国庆(10月1日)开放实体样板间,在2025年10月中旬取证入市,本次首推1栋1单元160套房源,项目总共分三期开发,总占地3.87万㎡,总建面20.3万㎡,一期建面8.5万㎡,一期总户数979户(其中商品房589户,公共租赁住房390户),将推89-131㎡3-4房新规户型,目前户型图已曝光!。目前城市展厅已开放,
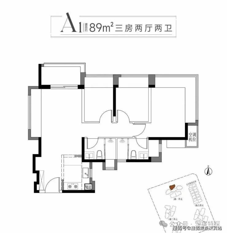
从流出的户型图可以看出,预计首推一期的1栋1单元,产品面积约89-112㎡ 3-4房,具体尺寸数据还没出,新规得房率还是值得期待的。其中89㎡ 3房2厅A1户型为常规经典竖厅,主卧有270度大飘窗
B1、B2户型为南北通透设计,给深圳的3房产品上做了创新带头作用
112㎡ 4房2厅C1户型为竖厅设计,大阳台连通到次卧,主卧270度大飘窗,使用率高
项目区位
越秀星汇珑府,位于光明区新湖街道光侨路与科学大道交汇处东南侧,地处光明中心区板块,西北侧与科学公园北翼相邻,东南侧则是充满欢乐的光明欢乐田园,北侧靠近中山大学深圳校区及其附属第七医院,南面距离光明高铁站仅4.8公里。
项目介绍
越秀星汇珑府,由越秀地产打造,总占地面积约3.87万㎡,总建筑面积约20.34万㎡,容积率5.3,绿化率30.03%,分3期3个地块开发,共由10栋住宅组成,其中9栋是商品房,1栋是公租房,配建有1所18班制幼儿园。
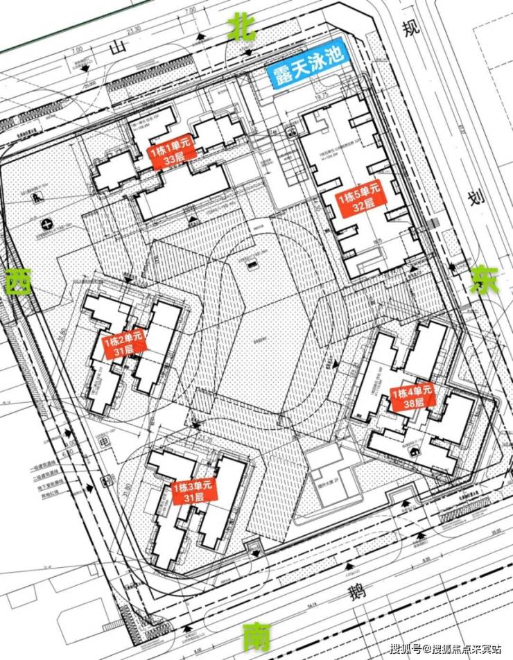
越秀星汇珑府,这次首推的是01地块,总占地面积约1.53万㎡,总建筑面积约13.68万㎡,计容建筑面积约9.55万㎡,容积率6.23,绿化率30.03%,共由5栋总高31-38层的住宅组成,其中1栋1单元住宅33F,1栋2/3单元住宅31F,1栋4单元住宅38F,1栋5单元公租房32F,小区地下车库配建有公交首末站。
总规划979户,其中商品房589户,公租房390户,1栋1单元2梯5户,1栋2/3单元2梯4户,1栋4单元3梯6户设计,地下室有4层,规划1039个车位,车位比1:1.06。
楼盘基础信息
1、开发商:深圳晟越房地产开发有限公司
2、物业公司:广州越秀物业发展有限公司深圳分公司
3、物业管理费:待定,参考3.9元/㎡
4、总占地面积:1.53万/㎡
5、总建筑面积:13.68万/㎡
6、容积率:6.23
7、绿化率:30.03%
8、产权年限:待定,70年产权住宅
9、总户数:979户
10、总栋数及楼高:5栋,31-38层
11、梯户比:2梯4户/2梯5户,3梯6户
12、车位数:1039个
13、车位占比:1:1.06
14、交楼时间:期房,预计在2028年上半年
15、交楼标准: 精装
【国企匠心筑造 品质保障】
🏙越秀集团
广州市国资委旗下直属国企,位居2025中国跨国公司TOP 11,总资产超万亿 实力雄厚
🏙越秀地产
香港上市企业,2025年中国房企综合实力TOP7,连续多年"三道红线"保持绿档的房企,财务安全稳健
🏙越秀服务
国家一级资质,以”越+美好生活服务体系”为客户提供美好生活
平面图及户型图
B1、B2户型为南北通透设计,给深圳的3房产品上做了创新带头作用
112㎡ 4房2厅C1户型为竖厅设计,大阳台连通到次卧,主卧270度大飘窗,使用率高
01
交通配套
交通配套:越秀星汇珑府邻近光侨路及科学大道等主干道,可以快速接驳龙大高速,南光高速,深圳外环高速,通达全市各大区域,小区楼下规划有公交首末站,目前已经开通运营的地铁6号支线“圳美站”距离约900米,6号线光明站距离约1.2公里,3站到凤凰城站可换乘13号地铁线,5站到光明城站,这里可以换乘光明城高铁站,7站到宝安上屋站,12站到南山西丽留仙洞,15站南山高新园,19站到后海。
02
商业配套
商业配套:项目自带有社区底商,可以满足日常生活需求,距离约2.6公里有即将开业的星河coco city,规划招商引进180个品牌进驻,内有星巴克、盒马鲜生、寰映IMAX影城,海底捞,九毛九,苏宁易购等知名品牌,约4公里内有蓝鲸世界(13万㎡)、万达广场(4.5万㎡)等大型商圈,形成超30万平方米的商业集群。
03
教育配套
学校配套:越秀星汇珑府自带1所18班制幼儿园,邻近地块规划有1所九年制公办36班学校,其中小学24班,初中12班,目前还没开始建设,具体引进的学校也暂未有信息透露出来,另外还规划有深圳外国语楼村第四学校,总规模45个教学班,可容纳2100个学位,预计在2026年秋季开始招生。
04
休闲配套
文娱方面,除了已经开放运营的虹桥公园、光明文化艺术中心等网红打卡地外,在建的科学公园、深圳科技馆(新馆)、深圳国际美术馆(暂定名)等也在日趋完善,再一次擦亮深圳文化名片,备受全城瞩目。
▲深圳科技馆(新馆)实景图
免责声明:部分信息来源于网络,如果侵权,请联系400-823-9396及时删除
✅本项目暂不接受临时到访,过来参观样板房请记得提前来电预约!
新规为上海高品质住宅建设提供了明确标准,其最大亮点是调整了阳台设计有关规范,最大程度回应市场对宽敞阳台的需求。随着上海住宅品质提升进入规范化、标准化的新阶段,住房市场的产品力有望迎来一轮集中释放。
记者9月27日从上海市规划资源局获悉,《关于进一步促进本市住宅品质提升的规划资源若干意见》已于近日出台。《若干意见》共有5大类、17条具体举措。
业界认为,新规为上海高品质住宅建设提供了明确标准,其最大亮点是调整了阳台设计有关规范,最大程度回应市场对宽敞阳台的需求。随着上海住宅品质提升进入规范化、标准化的新阶段,住房市场的产品力有望迎来一轮集中释放。
提升居住体验
《若干意见》在阳台、架空层、建筑立面方面的计容标准有新变化。上海住房新规落地后,一线城市已全部调整放宽计容规范,带来未来居住舒适度的全面升级。
阳台是一个家庭与室外形成交互的连接点,功能早已超越晾晒衣物的单一属性,增加了休闲互动、花园造景、收纳储物等场景。这种变化反映出了现代家庭对宽敞阳台日益增长的需求。
此次新规提出的阳台设计变化最大。同时符合以下条件的阳台(含封闭阳台),面积按其水平投影面积的1/2计入容积率:每户阳台水平投影总面积不大于该户型建筑面积的10%,且不大于16平方米(含16平方米),户型建筑面积小于80平方米的,可以设置总面积不大于8平方米的阳台;每个阳台的设计进深(取阳台围护结构外围至外墙面的最大垂直距离)不超过1.8米(含1.8米)。
以前,阳台按50%计入容积率的条件是,面积不超过8平方米,进深不大于1.8米。如果是一套140平方米的户型,阳台最大8平方米,实际计容4平方米,市民免费享受多出的4平方米。新规是按照“比例+阈值”双控,即不超过户型的10%,且不超过16平方米,进深不超过1.8米,按照一半计容。那么此时,140平方米的户型,阳台最高可设计为14平方米,实际计容7平方米,市民免费享受另外7平方米,比以前多了3个平方米。
沿公共绿地、广场河流、风貌街道等地区,设计进深不超过0.75米(含0.75米)的带围护结构的开敞式阳台,其建筑面积不计入容积率,不计入可售面积,且不计入户型建筑面积10%的阳台面积。也就是说,在具有景观优势的局部地区,有额外的阳台面积奖励。
“这对购房者而言是实实在在的利好。无论是通风、采光还是与户外交互,阳台的功能进一步拓展,市民们可以住得更舒适。”一位克而瑞研究中心资深分析师说。
新规还引导开发商优化住宅户型设计,适应家庭人口数量和结构变化的需求,新建住宅鼓励灵活可变的户型设计,增加储物收纳空间、多功能弹性空间,提升自然采光率与通风效率。
引导好设计变成产品力
在提升小区整体环境品质方面,新规也有变化。
为了丰富建筑形态和整体效果,明确对住宅建筑外立面采用干挂石材、金属、陶板或其他高品质材料,在“多测合一”测绘成果报告中明确饰面层建筑面积的,其饰面层不计入容积率。
专家表示,变化的重要意义是,用实在的政策利好去鼓励房企进行高品质建设。过去上海的建筑规范较严格,近两年上海新房得房率普遍75%左右,很多企业不愿意做石材干挂,主要原因是以前的容积率要从外墙算起,石材干挂和墙体的中空部分也算作容积率,所以房企不愿牺牲可售面积而投入成本,导致得房率下滑。新规之后,开发商使用高品质外立面的经济成本大幅下降,有望推动高端建材在住宅项目中的普及。
再比如,多高层住宅底层设置架空层、风雨连廊用作通道、布置景观小品、居民休闲设施等公共用途的,其建筑面积不计入容积率。这将推动房企把好设计从过去的“经济负担”变成了提升产品溢价和品牌价值的主动选择,激活创新意识。
据悉,新规自9月26日起施行,主要适用于上海农村自建房外的住宅项目。保障性租赁住房、旧住房成套改造或拆除重建项目另有规定按相关规定执行。
短期来看,新规对住宅价格的直接影响有限,不会引发明显波动。不过,如果将其与此前落地的楼市新政形成政策合力,将有效为消费者注入市场信心。上海易居房地产研究院副院长严跃进表示:“上海住房设计新规的出台,有望为‘金九银十’传统销售旺季的市场行情提供有力支撑,进一步激励开发商打磨产品力,推出更具市场竞争力的住宅项目。”
声明:本文由入驻焦点开放平台的作者撰写,除焦点官方账号外,观点仅代表作者本人,不代表焦点立场。
