鸿荣源尚云售楼处(尚云营销中心)鸿荣源尚云首页网站|价格/配套/学区/户型
扫描到手机,新闻随时看
扫一扫,用手机看文章
更加方便分享给朋友
深圳鸿荣源尚云
售楼处24小时电话:400-0500-152
楼盘详情丨专属顾问丨线上销售中心
龙华鸿荣源尚云售楼处电话:400-0500-152【24小时电话】——作为鸿荣源尚系列的新作,鸿荣源·尚云在项目本体打造上更是精益求精。
在外立面打造上,尚云在尚系产品建筑美学基因上进行了升级,大部分高品质的铝板立面,轻奢简约又不失时尚感,能让产品历久弥新,时间越长,在视觉上越“保值”。
 
双层酒店式标准打造的约10-12米的高入户空间,优雅大气,营造更具仪式感的归家礼序。
 
在社区公共空间,多维度打造满足全年龄段业主需求的休闲娱乐场所,不仅有共享亲子活力空间,更有儿童乐园、成人器械运动区、老人健身康体区等多主题于一体的创意架空层。
并且搭配上以城市山谷设计概念,构建林间童梦、山丘漫步等多元景观的社区园林,构造一个可观赏、可走进、可亲近的城市绿色空间。
 
尚云所处的整个板块,交通的利好上面已经说了,以后很发达,项目距离25号线景龙站和油福站都是小几百米路,油福站是25和27号双地铁交汇站,以后到南山罗湖都是直达了;从油福站坐25号线一个站(步行也就10分钟多点)到油松站换22号线直达福田,也很方便;或者到景龙站一个站到龙华站换4号线到福田,都行。
 
届时,这里就是约半小时到福田中心区,到西丽、留仙洞,大大降低通勤时间和成本,未来还能通达科技园、后海、前海。
商业其实也不需要多说,因为紧邻壹方城的B区和C区,搞的有朋友调侃这个盘就是壹成中心的另外一期(实际不是,分开的两个项目)。龙华壹方城60万方都已开业,是深圳单一体量最大的mall,也很成功,人流量太旺。
 
另外旁边还有待建的中洲的mall,再远一丢丢还有未来的龙华海岸城,总之这里按照官方的说法叫超级商圈,世界级消费中心。有点浮夸了,我们接地气一点说,就是商业旺的很,就怕你觉得旺过头了,不过年轻人还是比较喜欢的。
接着是教育。
尚云楼下就是深圳市艺术高中民治学校,九年制的,目前在建,9月开始招收小一和初一学生,暂时借址办学,明年入读新校区。虽然是新学校暂时不知道办学成绩和效果,但是有个业内朋友的说法我觉得有道理:一般能让一所高中去办小学初中的,都是还不错的高中,不敢说多好,下限还可以。
 
以上就是尚云所处片区的地段价值和配套分析。接下来,我们进入楼盘本身的解读。
 
鸿荣源尚云花园分为一、二期,南北两个地块开发。北地块由两栋54/57层高的住宅(612户),一栋55层高的公共租赁住房(600套)和一栋31层高的写字楼组成。
本次推售的是南区的住宅,南地块共由三栋住宅(3栋一/二单元55/56层高,3栋三单元18层高)和一栋27层高写字楼组成,总规划是666户。
 
01 83㎡的3房2厅2卫户型,设计的是竖厅格局,客厅3.3米开间,01户型是西北朝向,07户型是东北朝向。
 
 
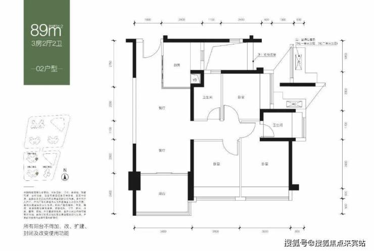
02 89㎡的3房2厅2卫户型,设计的是传统竖厅格局,客厅3.4米开间,02-03户型是东南朝向,05户型是西南朝向。
 
 
 
03 90㎡的3房2厅2卫户型,设计的是经典竖厅格局,客厅3.8米开间,东南朝向。
 
04 109㎡的4房2厅2卫,设计有2个户型,1个是双龙抱珠格局,客厅3.8米开间,东南朝向;1个是横厅南北通透格局。
 
 
05 120㎡的4房2厅2卫户型,设计的竖厅格局,客厅4米开间,西南朝向。
 
深圳鸿荣源尚云
售楼处24小时电话:400-0500-152
楼盘详情丨专属顾问丨线上销售中心
鸿荣源尚云售楼处电话:400-0500-152【24小时电话】楼盘项目全面介绍:含开盘消息、交房时间、楼盘详情、房价、户型、详情、得房率、售楼处地址、首页网站、销售中心、楼盘地址、户型图、交通、备案价、项目配套、营销中心、开发商、周边配套等详情咨询
免责声明:部分信息来源于网络,如果侵权,请联系及时删除,联系电话:400-0500-152
声明:本文由入驻焦点开放平台的作者撰写,除焦点官方账号外,观点仅代表作者本人,不代表焦点立场。
 
  
  
 
 
  
   
   
   
   
  