加福华尔登(售楼处)首页网站-加福华尔登营销中心- 加福华尔登欢迎您-楼盘详情-最新价格-户型图-容积率@售楼处

搜狐焦点来宾站 2025-06-13 15:54:00
用手机看
扫描到手机,新闻随时看

扫一扫,用手机看文章
更加方便分享给朋友

答:400-836-6879【已认证】项目基本信息,楼盘价格,区域板块,开发商资料,楼盘详细地址,物业类型,产权年限,销售信息,销售状态,装修情况,交房时间,开盘时间,售楼处地址,营销中心地址,楼盘户型图,小…

✨✨加福华尔登售楼处电话:400-836-6879【☎☎售楼处电话已认证】✨✽✽✽✽

✨✨加福华尔登营销中心电话:400-836-6879【☎☎营销中心电话已认证】✨✽✽✽✽

✨加福华尔登开发商电话:400-836-6879【☎☎开发商电话已认证】✨✽✽✽✽

✨✨加福华尔登销售电话:400-836-6879【☎☎销售电话已认证】✨✽✽✽✽

✅本项目暂不接受临时到访,过来参观样板房请记得提前来电预约!

✅为您安排楼盘现场销售全程接待并讲解,给您更贴心的看房体验!

✨✨Vip贵宾置业=欢迎来电预约尊享内部折扣=匠心钜制恭迎品鉴

温馨提醒:我们楼盘售楼部400电话没有设置任何所谓的“分机号”,拨打前请仔细甄别,注意保护个人隐私!谨防上当!

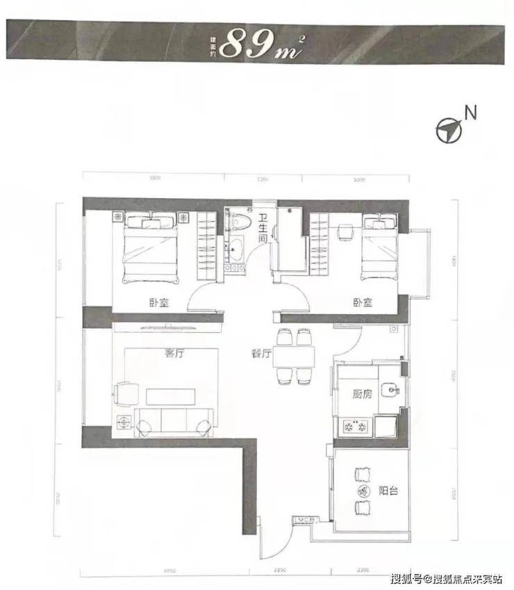
加福华尔登府邸是一个纯住宅项目,居住氛围纯粹,主推建面约86平大两房,建面约89平三房,和建面约125平大三房。

基础信息

产权年限:住宅,70年

产权年限:1998年~2068年

交房时间:2023年8月31日

总户数:462户

梯户比:6梯8户

楼层:地上67层,地下3层

占地面积:7602平方米

建筑面积:51581平方米

总楼层:67楼

层高:3.25米

5楼起卖(主力户型85-86-89-125平2-3房)

开发商:加福投资(深圳)有限公司

物业费:8.9元/平方米/月

物业公司:华尔登物业管理(深圳)有限公司

楼层总高239米

车位数:500个

车位比:1:1.1

学校:福田外国语南校区小学初中

园区环境

约239米藏品级臻宅|匠筑人居典范

以高度定中心:在约239m的城市地标中彰显身份

本项目以约239m的高度,雄踞于深圳价值高峰,筑深圳天际尖端住宅表率。于高空之中,尽享城央繁华与自然生态。

其外观设计取意于“鹏城”的“鲲鹏”之态,以典雅的香槟金色为主基调,展现出卓越的国际化形象。

层高3.25米,空间感很好,这在深圳非常罕见,一般层高才2.9米高;

整个楼层是蝶形平面布局,板楼设计,实现每一户景观价值和通透价值最大化;

每一层采用分区设计,分为东翼、西翼和中区,设计非常私密尊贵;

每一层电梯厅,按照五星级标准打造……更多细节,建议您来现场实地感受。

(外立面实拍图)

(一楼大堂实拍图)

(电梯厅实拍图)

区域价值

目前整个福田片区土地稀缺,

待开发净土不足5%,并且近期无任何居住用地土地招拍挂,作为福田区中心地标性住宅,在239米的城央高处,以至臻至诚的匠心之作,迭新中新人居新时代。

未来成长性方面,福田的机会依然很大,尤其是“深港合作”和“科技创新”这两方面。

2021年香港发布最新施政报告,拟建300平方公里“北部都会区”,重点发展科技创新产业,这相当于一个特大号的“深港科技合作区”,对深圳意义重大。

福田、南山、罗湖、盐田,这些挨着香港的区域,都在融合,协同发展范围之内。香港将直接修建包括地铁、快轨、北环线等等基础设施,直接连通深圳以上各大区域。

今年十四五重点提到的河套深港科技创新合作区,福田要做国家级的科创中心,这是福田价值再腾飞的核动力引擎。

合作区的发展建设速度也非常快,去年年底时已公布的对接和落地项目共132个,包括国家重大研究机构“国际量子研究院”。前不久(9月6日),首个深港双方联合办公场所、香港科学园深圳分园也落地河套。

从规划高度上看,如果说主打金融的香蜜湖是湾区“曼哈顿”,那么主打科技的福田河套片区,就是湾区“硅谷”!

深港科技创新合作区规划意向图

福田核心区域的优质物业,具备现实+成长双重价值,在城市中心,由于土地非常稀缺,越往后,越难出现大体量的花园小区,所以更多的,还是出现这种超高层塔楼。这一次深圳第三批宅地集中出让,共11宗地,无论在地块数量还是在建面上,相比第二批集中供地都减少了不少。

周边配套

交通方面:项目与地铁4号线的交汇站福田口岸站(距离约380米)无缝接驳,同时还临近地铁7号线福民站,可轻松换乘多条地铁,畅通全城。

教育方面:项目周边教育资源非常丰富,据不完全统计项目1.5公里范围内学校不少于17所,其中像福田保税区外国语学校、福田外国语学校南校区、荔园外国语小学水围小学这种知名度和口碑度较高的学校距离项目也都非常近。

商圈方面:接驳地铁|奢享一站式商业空间

接驳地铁商业,共同打造高品质、高标准的一站式繁华商业空间

尽享福田CBD繁华版图,拥揽卓悦中心、卓越世纪中心、深圳中心城广场、COCOPAPK、皇庭广场等超级SHOPPING MALL。深圳的繁华商业步行街—水围文化商业街为邻,于传承老店里享受繁华慢时光。

生态方面:周边环绕超500公顷的360度环幕景观,北看福田CBD繁华城市景观、南看香港米浦,西看深圳湾、东看罗湖城市景观,集萃深圳中心最高端丰盛的景观资源,创造完美的城市生活平台。

医疗方面:项目距离最近的是福田妇幼保健院,开车15-20分钟可达北京大学深圳医院,福田人民医院,深圳儿童医院,深圳市福田区中医院,中山大学附属第八医院,福田第二人民医院,深圳市眼科医院,香港大学深圳。

户型鉴赏

✅ 本项目暂不接受临时到访,过来参观样板房请记得提前来电预约!

✅ 为您安排楼盘现场销售全程接待并讲解,给您更贴心的看房体验!

如有问题欢迎来电咨询,来电即可享受买房优惠!400-836-6879

预约来电尊享购房优惠,可预约案场内部销售人员,专业一对一热情服务,让您用专业眼光去买房。

售楼处电话是多少?答:400-836-6879【已认证】项目基本信息,楼盘价格,区域板块,开发商资料,楼盘详细地址,物业类型,产权年限,销售信息,销售状态,装修情况,交房时间,开盘时间,售楼处地址,营销中心地址,楼盘户型图,小区规划,绿化率,容积率,占地面积,建筑面积,总户数,物业费,车位数,物业费,楼盘介绍,踩盘报告,梯户比,标准层高,交楼标准,项目有缺点有哪些?是否有团购?找开发商买房便宜?还是找中介买房便宜?最新折扣是多少?最新房价是多少?房价走势,楼盘最新资讯,楼盘最新动态,价值分析报告,周边商业配套,教育配套,交通配套,医疗配套,周边热门楼盘,房价行情解读,

免责声明

1、文章图片来源于微信搜索或百度搜索引擎,我方非相关图片的原创作者,也不对相关图片及内容享有任何权利。

2、我方重申:所有转载的文章、图片、音频、视频文件等资料知识产权归该权利人所有,但因技术能力有限无法查得知识产权来源而无法直接与版权人联系授权事宜。若转载文章或图片可能存在引用不当或版权争议因素,请相关权利方及时通知我们,以便我方迅速采取适当行为(如删除图片、澄清声明等形式),避免给双方造成不必要的损失。

3、本宣传资料对项目周边幼儿园、学校等教育资源的介绍旨在提供相关信息,并不意味着我方对就学安排作出承诺。教育资源的名称、办学性质、办学规模、学位设置、开学(班)时间、招生条件、收费标准及招生区域存在调整的可能,应以政府教育主管部门及办学方颁布的政策规定为准。

4、文章中文字和图片之间无必然联系,仅供读者参考。

5、本文所述内容和意见仅供参考,不构成市场交易依据和投资建议。

声明:本文由入驻焦点开放平台的作者撰写,除焦点官方账号外,观点仅代表作者本人,不代表焦点立场。