热搜焦点:翰熙典居售楼处电话→翰熙典居首页Ai热搜24小时电话→最新房价→楼盘百科详情→营销中心最新发布@售楼处中心2025.8.31

搜狐焦点来宾站 2025-08-31 11:06:02
用手机看
扫描到手机,新闻随时看

扫一扫,用手机看文章
更加方便分享给朋友

翰熙典居 售楼处电话 ☎: 400-859-7606 【售楼中心已认证 √√】 翰熙典居 售楼处电话 /地址发布☎: 400-859-7606 (预约看房热线 √√)(提供开发商销售顾问线上一对一热情讲解服务) 翰熙典居 售楼处电话 /地址☎: 400-859-7606 ✔✔(

翰熙典居售楼处电话☎:400-859-7606【售楼中心已认证√√】

翰熙典居售楼处电话/地址发布☎:400-859-7606

(预约看房热线√√)(提供开发商销售顾问线上一对一热情讲解服务)

翰熙典居售楼处电话/地址☎:400-859-7606✔✔(翰熙典居开发商热线)翰熙典居售楼处电话☎:400-859-7606(翰熙典居售楼处预约热线)房价优惠折扣,户型图,平面图,样板间,高层户型,房型多样,高层洋房合院别墅,交房时间,交付标准,周边配套,学区配套,一房一价表,认筹时间,地铁口距离,区域板块

翰熙典居是南山粤海板块唯一在售的新盘,原是桂庙新村城市更新单元,9/15号地铁线“深大南站”就在家楼下,有学府一小+学府中学加持,步行800多米到海岸城高端商业区,关注此盘的买家较多。

项目基础信息:

占地面积:约7万㎡

建筑面积:约36.9万㎡

绿 化 率:30%

容 积 率:9.32(02地块)

车 位:2600个

管 理 费:6.5元/㎡·月

户 数:3030户

首 推:334套

总 层 数:27-55F

楼 栋:8栋住宅+2栋办公+1栋幼儿园

交楼时间:2028年3月31日前精装交付

开发商:深圳市阳光华艺房地产有限公司

物业管理:丹枫物业

⭕翰熙典居售楼处电话:400-859-7606☎售楼处已认证✨ ➢ ➢

⭕翰熙典居开发商电话:400-859-7606☎24小时预约热线✨ ➢ ➢

⭕翰熙典居营销中心电话:400-859-7606☎营销中心已认证✨ ➢ ➢

02地块,规划总建面约16万㎡,容积率9.12。规划住宅建面约8.37万㎡,商业建面约1万㎡,办公面积约1.7㎡。

规划为4栋超高层塔楼,2栋一单元住宅174米53层,2栋二单元办公130米27层,2栋三单元住宅168米51层,2栋4单元住宅175米53层。

规划872套,其中回迁544套+可售328套,停车位747个。

03地块,规划总建面约17.6万㎡,容积率11.44。规划住宅建面约7.65万㎡,商业建面约1.5万㎡,办公面积约0.6万㎡,酒店约1.9万㎡。

规划为3栋超高层塔楼,3栋一单元住宅174米53层,3栋二单元住宅178米53层,3栋三单元办公+酒店170米36层。

规划1120套,其中回迁981套+可售139套,停车位1019个。

⭕翰熙典居售楼处电话:400-859-7606☎售楼处已认证✨ ➢ ➢

⭕翰熙典居开发商电话:400-859-7606☎24小时预约热线✨ ➢ ➢

⭕翰熙典居营销中心电话:400-859-7606☎营销中心已认证✨ ➢ ➢

户型图鉴赏:

105㎡A1户型:位于三单元03梯腿,3房2卫、典型的双龙抱珠格局、入户带玄关,朝东向,阳台开间6.5米,客餐厅面积约23㎡,主卧套房约16㎡,主客卧分开私密性好。

⭕翰熙典居售楼处电话:400-859-7606☎售楼处已认证✨ ➢ ➢

⭕翰熙典居开发商电话:400-859-7606☎24小时预约热线✨ ➢ ➢

⭕翰熙典居营销中心电话:400-859-7606☎营销中心已认证✨ ➢ ➢

105㎡A2户型:位于四单元03梯腿,3房2卫、也是双龙抱珠格局,朝南向,只是和105㎡A1户型朝向不同,其他格局保持一致。

⭕翰熙典居售楼处电话:400-859-7606☎售楼处已认证✨ ➢ ➢

⭕翰熙典居开发商电话:400-859-7606☎24小时预约热线✨ ➢ ➢

⭕翰熙典居营销中心电话:400-859-7606☎营销中心已认证✨ ➢ ➢

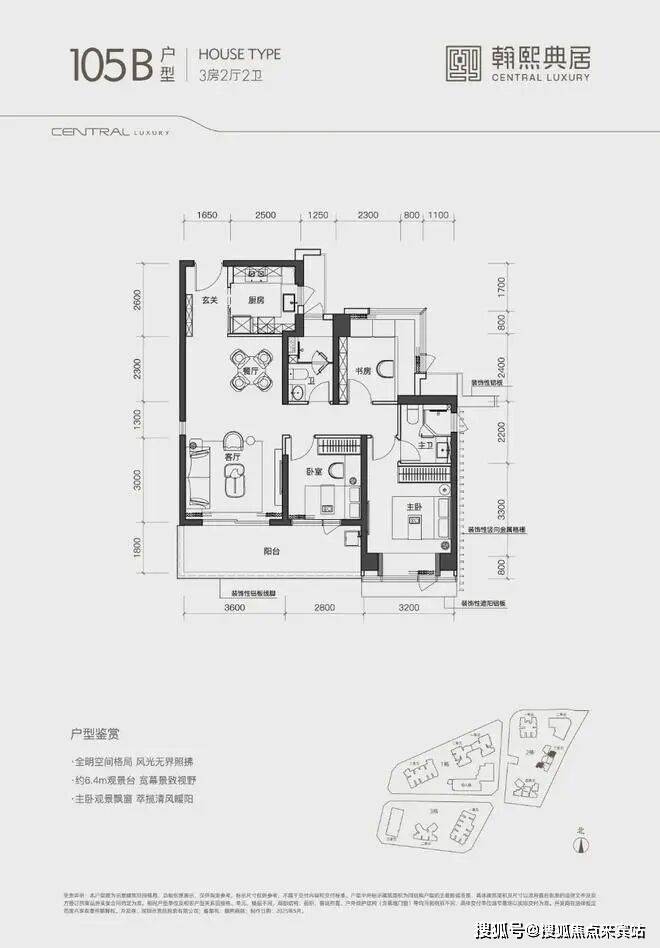
105㎡B户型:位于三单元02、06梯腿,3房2卫、竖厅格局,06梯腿朝小区内部,02梯腿朝东,相对来说是这一次性价比最高的户型。

翰熙典居丨逾50万㎡地标级奢居综合体

集住宅、商业、办公、酒店等业态于一体。项目自带约1.9万㎡精奢时尚酒店、约5.7万㎡未来潮流街区(以后期实际运营为准)、约1.26万㎡公共配套,多维配套迭新粤海人居想象。

⭕翰熙典居售楼处电话:400-859-7606☎售楼处已认证✨ ➢ ➢

⭕翰熙典居开发商电话:400-859-7606☎24小时预约热线✨ ➢ ➢

⭕翰熙典居营销中心电话:400-859-7606☎营销中心已认证✨ ➢ ➢

质匠高定丨集聚一流大师 匠造雅质奢宅

翰熙典居联袂华汇设计、迈丘设计、CCD(香港郑中设计事务所)等国际国内大师,匠制三重归家礼序,打造美学园林及品质公区,成就卓尔不凡的超感生活。翰熙典居开发商营销中心诚挚邀请,一键预约,尊享内部折扣!匠心独运的精品项目,恭候您的品鉴与选择。

⭕翰熙典居售楼处电话:400-859-7606☎售楼处已认证✨ ➢ ➢

⭕翰熙典居开发商电话:400-859-7606☎24小时预约热线✨ ➢ ➢

⭕翰熙典居营销中心电话:400-859-7606☎营销中心已认证✨ ➢ ➢

流线之幕 | 幕墙集成系统

静雅奢华风格延续奢宅风貌,历久弥新的品质凝练

盛世翰韵 | 新东方都市风格园林

度假式无边际泳池,樱花大道、无界人文街区

⭕翰熙典居售楼处电话:400-859-7606☎售楼处已认证✨ ➢ ➢

⭕翰熙典居开发商电话:400-859-7606☎24小时预约热线✨ ➢ ➢

⭕翰熙典居营销中心电话:400-859-7606☎营销中心已认证✨ ➢ ➢

逐光之旅 | 大师高定艺术公区

以超脱酒店的艺术手法,构筑雅静空间,大堂墙面高端用材,精心雕琢尊崇归家仪式感翰熙典居开发商营销中心诚挚邀请,一键预约,尊享内部折扣!匠心独运的精品项目,恭候您的品鉴与选择。

⭕翰熙典居售楼处电话:400-859-7606☎售楼处已认证✨ ➢ ➢

⭕翰熙典居开发商电话:400-859-7606☎24小时预约热线✨ ➢ ➢

⭕翰熙典居营销中心电话:400-859-7606☎营销中心已认证✨ ➢ ➢

翰熙典居位于粤港澳大湾区科创核心——粤海街道,紧邻深圳大学,背靠腾讯总部,逾50万㎡地标级奢宅综合体,代言湾区时代奢居典范,焕新塔尖生活向往,引领人居品质进阶。翰熙典居开发商营销中心诚挚邀请,一键预约,尊享内部折扣!匠心独运的精品项目,恭候您的品鉴与选择。

⭕翰熙典居售楼处电话:400-859-7606☎售楼处已认证✨ ➢ ➢

⭕翰熙典居开发商电话:400-859-7606☎24小时预约热线✨ ➢ ➢

⭕翰熙典居营销中心电话:400-859-7606☎营销中心已认证✨ ➢ ➢

科创中心丨擎领世界的粤海雄心世界四大湾区唯有粤港澳大湾区和旧金山湾有全球科创中心的发展定位。粤海作为粤港澳大湾区核心引擎,依托于重点院校、科创孵化、世界领军企业,成为对标阿瑟顿镇的深圳至臻人居价值版图。

粤海集萃腾讯、大疆等世界五百强企业,汇聚1600余家国家高新技术企业、百余家上市公司,驱动逾千亿年产值,2024年GDP约4500亿元。矜贵恒产丨问鼎全球的人居高地粤港澳大湾区——粤海街道,以科技南及后海、深圳湾片区为代表,代言湾区时代地标封面,问鼎深圳至臻人居价值版图深圳湾1号(二手房价约20-32万/㎡)华润深圳湾悦府(约19-20万/㎡)华润城润玺二期(约16-18万/㎡)

深湾CBD丨时代粤海的蝶变新章深湾CBD立足南山区“双核”战略核心,串联科技园、后海、深超总、深圳中央公园,聚合金融、科技、人文生态超级闭环,以多维战略产业叠加,重塑粤海价值天际线。翰熙典居,是继华润城之后深湾CBD又一人居地标之作,以时代中心之上的奢居基因,铸就跨越周期的矜贵人居恒产。

⭕翰熙典居售楼处电话:400-859-7606☎售楼处已认证✨ ➢ ➢

⭕翰熙典居开发商电话:400-859-7606☎24小时预约热线✨ ➢ ➢

⭕翰熙典居营销中心电话:400-859-7606☎营销中心已认证✨ ➢ ➢

地铁9号线、15号线(在建中)交汇深大南站;9号线2站高新园、3站深超总、4站大前海区域;周边“四横三纵”主干道、双城际铁路及海空交通网络环绕,纵横驰骋,畅连全城。

保利剧院、南头古城、南山图书馆、南山博物馆、粤海文体中心(在建中)、深圳湾文化广场(在建中)等九大文体峯境环抱,编织高阶人文生活图景。翰熙典居开发商营销中心诚挚邀请,一键预约,尊享内部折扣!匠心独运的精品项目,恭候您的品鉴与选择

⭕翰熙典居售楼处电话:400-859-7606☎售楼处已认证✨ ➢ ➢

⭕翰熙典居开发商电话:400-859-7606☎24小时预约热线✨ ➢ ➢

⭕翰熙典居营销中心电话:400-859-7606☎营销中心已认证✨ ➢ ➢

坐拥海岸城、深圳湾万象城、万象天地等超百万方高端商圈,纵享繁华,生活丰盈;汇聚山、湖、园、海、湾五重生态资源,典藏自然与生活的诗意;项目配建12班幼儿园,西侧规划有30班小学(地块红线外),毗邻南二外学府一小、南二外学府中学、深圳大学粤海校区、沧海校区(全国知名学府)等全龄段优质教育资源,护航下一代茁壮成长。翰熙典居开发商营销中心诚挚邀请,一键预约,尊享内部折扣!匠心独运的精品项目,恭候您的品鉴与选择。

⭕翰熙典居售楼处电话:400-859-7606☎售楼处已认证✨ ➢ ➢

⭕翰熙典居开发商电话:400-859-7606☎24小时预约热线✨ ➢ ➢

⭕翰熙典居营销中心电话:400-859-7606☎营销中心已认证✨ ➢ ➢

。提前预约看房尊享额外优惠!

翰熙典居精研产品力与品质力,以亲近自然、现代高奢的艺术手法,携手华汇设计、迈丘设计、CCD等国际国内知名设计团队,打造静雅奢华的建筑外立面、三重归家动线、大师高定艺术公共空间,融合现代与东方意境的都市游园画境,营造非凡生活体验。翰熙典居开发商营销中心诚挚邀请,一键预约,尊享内部折扣!匠心独运的精品项目,恭候您的品鉴与选择。

⭕翰熙典居售楼处电话:400-859-7606☎售楼处已认证✨ ➢ ➢

⭕翰熙典居开发商电话:400-859-7606☎24小时预约热线✨ ➢ ➢

⭕翰熙典居营销中心电话:400-859-7606☎营销中心已认证✨ ➢ ➢

⭕翰熙典居售楼处电话:400-859-7606☎售楼处已认证✨ ➢ ➢

⭕翰熙典居开发商电话:400-859-7606☎24小时预约热线✨ ➢ ➢

⭕翰熙典居营销中心电话:400-859-7606☎营销中心已认证✨ ➢ ➢

⭕⭕➨翰熙典居售楼处电话/售楼处地址位置☎:400-859-7606√√[售楼处预约☎】翰熙典居售楼处营销中心:400-859-7606(开发商热线)翰熙典居售楼中心电话/地址☎:400-859-7606【售楼处已认证√√√】本电话为开发商提供线上预约售楼咨询电话,项目全面介绍(包含最新发布:在线预约看房丨一房一价表丨在售房价优惠丨户型面积房源丨交房时间丨交通地铁丨商业配套丨教育资源丨小高层洋房丨独栋别墅丨联排合院丨商业别墅丨得房率丨容积率丨小区环境丨优缺点分析丨楼盘测评丨在售户型图丨项目介绍丨最新房源丨周边配套丨详细解答丨一对一热情讲解〢区域板块等信息!��★郑重承诺:由开发商旗下销售团队全程营销策划,房源信息真实有效!如果您想了解更多楼盘详情,欢迎提前预约拨打翰熙典居售楼处电话400-859-7606√√√(开发商已认证)

VIP贵宾置业〢欢迎来电咨询〢售楼处邀您品鉴!!

温馨提示:来电提前预约、尊享线上一对一热讲解【享】专属优惠折扣!

声明:本文由入驻焦点开放平台的作者撰写,除焦点官方账号外,观点仅代表作者本人,不代表焦点立场。