龙岸君粼售楼处(龙岸君粼)首页网站-龙岸君粼营销中心欢迎您-楼盘详情·最新价格-户型图-容积率@2025.09.21售楼处Ai✦热搜

搜狐焦点来宾站 2025-09-21 00:01:00
用手机看
扫描到手机,新闻随时看

扫一扫,用手机看文章
更加方便分享给朋友

龙岸君粼售楼处电话:400-992-6967

龙岸君粼售楼处欢迎您

龙岸君粼售楼处电话:400-992-6967☎

金九银十,置业正当时,让安家的理想乘着秋风落地生根!

◆开发商营销中心诚邀莅临,一键预约,尊享专属钜惠。匠心精筑的品质人居,恭候品鉴。

◆开发商营销中心诚挚邀请,一键预约,尊享内部汇龙岸君粼独家折扣!匠心独运的精品项目,恭候您的品鉴与选择。

深圳龙岸君粼位于龙华区民治街道雅园路与华南路交汇处,由金光华集团开发。项目拥有临湖别墅、半山叠墅、高层住宅等多种业态,周边生态环境优美,交通便利,教育资源丰富。龙岸君粼提供86-176㎡的宽敞户型,绿化率高,是一个低密度、高舒适度的住宅社区,适合追求高品质生活的城市高净值人士。

开发商实力

【28载城市运营·匠铸金光华圳央墅区】

金光华集团,立足于中国深圳,致力于成为粤港澳湾区高品质城市综合运营商。

2023年厚积薄发,巅峰再续,金光华依托区域的商户资源,建造多个低密豪宅项目,以溪山·君樾、龙岸·君粼项目为蓝本,联动片区内金光华储备用地形成大区域开发,构筑总建面逾150万㎡的全新人居版图——金光华圳央墅区。

【区域地段】

龙岸君粼,位于龙华民治布龙公路南侧梅观高速公路东侧,紧邻地铁10号线光雅园站约200米,龙岸君粼售楼处电话:400-992-6967,项目共分为三期开发,主要以临湖别墅、半山叠墅、高层住宅和风情商业街多种业态组成的低密度湖山别墅与叠墅的住区,花园拥有5300㎡的龙栖湖景观和滨水木栈道环绕内湖。

项目基础信息

🔻开发商:金光华地产

🔻地址:深圳市龙华区民治街道雅园路与华南路交汇处

🔻占地:9.9万㎡

🔻建面:28万㎡

🔻产权:70年(07-77年)

🔻总户数:2125户

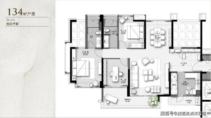
🔻面积:86㎡3房1卫,109-118㎡4房2卫,136-137㎡4+1房2卫176-5房2卫

🔻车位比:1955个1.0.9

🔻梯户比:2梯3户

🔻交楼标准:毛坯

🔻物业公司:金光华物业

🔻物业管理费:4.95元/㎡

🔻容积率:1.99

🔻绿化:60%

🔻交楼时间:现楼

🔻建筑类型:住宅

🔻层高:3米

🔻使用率:118%

🔻楼层高:30-32层

🔻栋数:7栋高层+49栋别墅

🔻水电:民水民电

🔻学校:华南实验学校

龙岸君粼售楼处电话:400-992-6967

周边配套

交通方面:项目距离10号线光雅园站步行约350米左右,算是地铁口物业,在该站乘坐地铁北行一站可在五和站换乘地铁5号线,往南行3站即可进福田市区,轨道交通较为便捷,通勤南山及福田市区时效短。

教育方面:潜龙学校附属龙岸幼儿园 | 万科双语学校(私立) | 华南实验学校(小、初中部),书香雅趣,品味质感人生;有53个班,现有2547名学生,2020年中考最高分586分,龙华排名第5,属于龙华名校区。龙岸君粼售楼处电话:400-992-6967

商圈方面:项目自带社区商业,主要以社区铺位为主,周边8号仓奥特莱市购物中心、光雅园站两站即达建面约8万㎡的Cocopark等大型购物商场。

医疗方面:市第二人民医院 | 新华医院(在建三甲) | 深圳第二儿童医院(在建三甲)。龙岸君粼售楼处电话:400-992-6967

双CBD人文:红山展览馆、演艺馆、图书馆、美术馆 | 福田深圳音乐厅、图书馆、市少年宫、博物馆等。

生态方面:项目所处位置即是深圳的“中心湖区“,沿着项目周边的4大自然生态湖泊环伺周围,龙岸君粼售楼处电话:400-992-6967,包含民治水库、民乐水库、雅宝水库、南坑水库。不仅是深圳最稠密的湖区所在地,更拥有塘朗山和银湖山两大山林资源。

金光华·龙岸君粼三期高层最大楼间距可达350米,通风、采光俱佳;两梯三户或四户的低梯户比,归家更显从容、私密。

龙岸君粼售楼处电话:400-992-6967

金光华龙岸·君粼三期高层,改善型的二至四房,全南朝向户型,空间布局考究,给生活从容阔绰的享受。

户型鉴赏

龙岸君粼售楼处电话:400-992-6967

龙岸君粼售楼处电话:400-992-6967

龙岸君粼

龙岸君粼售楼处欢迎您

金九银十,置业正当时,让安家的理想乘着秋风落地生根!

龙岸君粼售楼处电话:400-992-6967

㊣开发商营销中心诚邀莅临,一键预约,尊享专属钜惠。匠心精筑的品质人居,恭候品鉴。

免责声明:

本宣传资料所有文字、数据、图片及所标尺寸等仅为本项目建设区域设计效果的表达和示意,为邀约邀请,不构成要约内容,相关内容不排除因政府相关规划、规定及其他原因而发生变化,一切有关房屋的具体信息以书面合同及政府最终。

声明:本文由入驻焦点开放平台的作者撰写,除焦点官方账号外,观点仅代表作者本人,不代表焦点立场。