鸿荣源珈誉府24小时售楼处热线直通营销中心电话+最新动态:房价走势、户型解析、容积率详情
扫描到手机,新闻随时看
扫一扫,用手机看文章
更加方便分享给朋友
「400-873-0112(直达案场)|本项目全维度解析:房价/户型/房源/优惠/学区/地铁/交房标准,免费咨询预约看房!」
鸿荣源·珈誉府:于大湾区之心,启幕248万方城宇宙时代
当深圳西进的浪潮奔涌至宝安沙井,一座承载着城市梦想的巨擘之作——鸿荣源·珈誉府,正以248万方的磅礴体量重塑湾区天际线。
鸿荣源珈誉府 2 区项目基础数据
开发商:深圳市鸿荣源控股(集团)有限公司
物业:深圳市鸿荣源物业服务有限公司
宗地号:A308-0133宗地中的04-10地块。
性质:住宅
总占地: 约4.79万㎡
总建面: 约40.53万㎡
小区分布:规划有10栋楼。这些楼的层数在31-48层之间
总户数:2479户
车位比:2795个
梯户比:2梯2户/3梯5户/3梯7户
主力户型:76㎡-85㎡-86㎡-87㎡-94㎡三房,105㎡-120㎡四房。
楼层总高:31-44-45-46-47-48层。 2.9米,部分楼王户型层高约3.15米。
交付时间:现房
交付标准:精装修
批地时间:2022年5月(70年)
容积率:5.42
绿化率:40%
使用率:85%-96%
水电费:民水民电,
燃气:有燃气有阳台
物业费:5.9元/m²/月
停车费:250元/月
教育:深圳外国语学校(集团)宝安学校
地铁:宝安·11号线塘尾站
位置:深圳市宝安区沙井街道凤塘大道92号
珈誉府 2 区在户型设计上兼顾实用性与舒适度,76-105㎡涵盖三房、四房,满足刚需到改善的全周期需求,且得房率均达 77.54%(不含赠送),空间利用率拉满:
约 76㎡三房两厅一卫
:竖厅格局 + LDKB 一体化设计,客厅 3.1 米开间,3 个卧室宽度分别为 2.9/2.8/2.25 米,U 型厨房操作便捷,1.6 米进深阳台采光充足,东南朝向享清晨暖阳,刚需首选性价比之王。
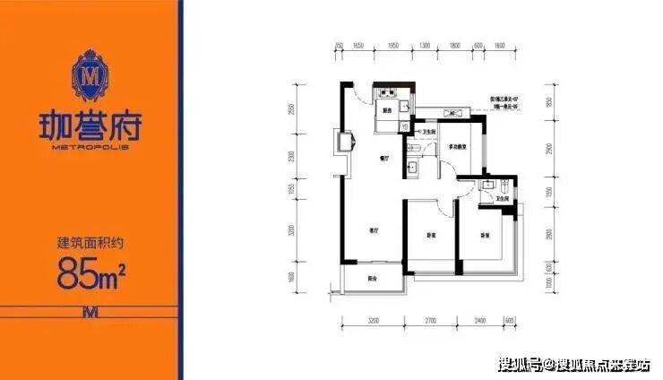
约 85㎡三房两厅两卫
:竖厅 + LDKB 一体化,客厅 3.2 米开间,主卧带 270° 环幕飘窗,视野开阔;公卫三段式分离设计,洗漱、如厕互不干扰;西北朝向,1.6 米进深阳台,满足三口之家舒适居住。
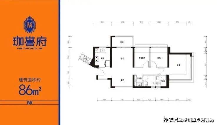
约 86㎡三房两厅两卫
:竖厅南北通透,客厅 3.2 米开间,3 个卧室宽度 3.2/2.75/2.4 米,主卧 270° 环幕飘窗,U 型厨房实用性强;1.3 米进深阳台,主朝西北、东北、东南或西南,适配不同采光偏好。
约 87㎡三房两厅两卫
:横厅南北通透是最大亮点,客餐厅 6.2 米大开间,空间感十足;3 个卧室宽度 3.3/2.65/2.35 米,主卧 270° 环幕飘窗,1.7 米进深阳台,东南朝向享充足采光,改善刚需皆可选。
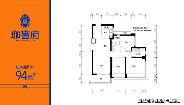
约 94㎡三房两厅两卫
:竖厅 + 动静分区,客厅 3.4 米开间,主卧 270° 环幕飘窗,3 个卧室宽度 3.7/2.7/2.35 米,空间宽敞;1.6 米进深阳台,西南朝向,适合追求舒适空间的家庭。
约 105㎡四房两厅两卫
:竖厅 + 动静分区,客厅 3.6 米开间,4 个卧室满足多孩或三代同堂需求,宽度分别为 3.3/2.75/2.35/2.35 米;主卧 270° 环幕飘窗,1.6 米进深阳台,西南或东南朝向可看小区花园,改善家庭优选。
规模体量
:总占地面积约 4.79 万㎡,总建筑面积约 40.53 万㎡,容积率 5.42,绿化率高达 40%,在高密度城区中开辟出舒适绿意空间。
对于许多在深圳打拼的家庭来说,选择一个合适的家,不仅是寻找遮风避雨的场所,更是对生活方式、教育资源、交通便利性的综合考量。鸿荣源珈誉府以其全面的配套设施和多样化的户型设计,正成为许多刚需和改善型家庭的关注焦点。
交通:
鸿荣源珈誉府位于宝安大道与凤塘大道交汇处,地处沙井核心区域。项目最大的亮点之一是与地铁11号线塘尾站无缝接驳,真正实现了地铁上盖物业的便利。从项目出发,6站可达宝安中心,7站直达前海,9站到后海,11站即达车公庙,对于在南山、福田工作的通勤族来说,位置相当便捷。
除了地铁优势,项目周边还形成了航空、海港、铁路、高速公路等立体交通网络。项目临近穗深城际轻轨福海西站,方便往来广州、东莞及深圳机场。自驾方面,项目可快速接驳广深高速和沿江高速等主要干道,满足了不同人群的出行需求。
教育:名校学区 + 目送式上学,家长省心之选
根据宝安区教育局 2024 年学区划分,项目已划入深圳外国语学校(集团)宝安学校学区,优质教育资源触手可及。更贴心的是,项目北区 04-09 地块和南区 12-01 地块将新建深圳外国语学校宝安学校(集团)南校区,未来业主孩子大概率能实现 “目送式上学”,免去接送奔波,成长路上多一份安心。
商业:百亿超级商圈,在家门口逛遍全球
鸿荣源斥资约 250 亿打造约 50 万㎡“湾区壹方” 城市级购物中心,规模与档次拉满;宝安首家山姆会员店将于 2025 年底开业,生鲜、家居、零食一站式采购;周边还有约 10 万㎡“熊出没” 主题华强广场、18 万㎡海岸城商业已开业,三大商业体共筑百亿超级商圈,吃喝玩乐购全满足,下楼即享繁华生活。
休闲:多公园环绕,解锁自然惬意时光
项目距离凤凰山森林公园约 3.5km,闲暇时登山吸氧、俯瞰全景,感受山林静谧;周边还有万丰湖湿地公园、立新湖公园等绿色配套,饭后散步、周末野餐、亲子游玩,随时切换 “城市绿洲” 模式,为生活注入自然活力。

📢 【关于本项目·一键咨询】
「房价/户型/折扣/地铁/学区全解答!
🔥 最新动态、剩余房源、优惠名额打电话就懂!
✅ 专业置业顾问VIP服务,独家优惠仅限来电客户!
⏰ 24小时热线,黄金时段优先安排!
☎ 马上拨打:400-873-0112(直连案场|预约看房)
免责声明:部分信息来源于网络,如果侵权,请联系及时删除本宣传资料不构成邀约邀请,对周边、政府规划、商业配套、教育资源、投资前景等数据和图文仅为提供相关信息,该信息以政府最终批文为准,开发商不对此作任何承诺。买卖双方的权利义务以双方签订的买卖合同约定及附件、实际交付为准,本公司保留对宣传资料修改的权利,敬请留意最新资料。联系号码:400-873-0112。
声明:本文由入驻焦点开放平台的作者撰写,除焦点官方账号外,观点仅代表作者本人,不代表焦点立场。
