中建鹏宸云筑首页网站电话-中建鹏宸云筑营销中心电话-中建鹏宸云筑欢迎您-楼盘详情-最新价格-户型图-容积率@售楼处中心2025.10.25
扫描到手机,新闻随时看
扫一扫,用手机看文章
更加方便分享给朋友
✨✨中建鹏宸云筑售楼处电话:400-8360-061☎开发商已认证✨✨
✨✨中建鹏宸云筑营销中心电话400-8360-061☎营销中心已认证✨✨
✨✨中建鹏宸云筑售楼中心电话:400-8360-061☎24小时预约热线✨✨
➢ ➢本项目采用预约制,过来营销中心参观样板间请记得提前拨打开发商楼盘售楼处400热线电话在线预约,感谢您的配合!
✨✨中建鹏宸云筑售楼处电话:400-8360-061☎营销中心已认证丨详细解答丨在售户型图丨项目介绍丨在售房源丨周边配套丨VR看房丨楼盘图丨沙盘图丨位置图丨配套图丨售楼处销售1V1讲解

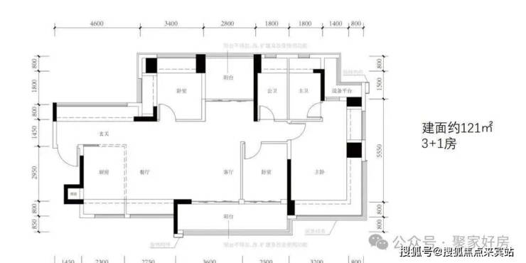
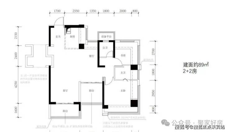
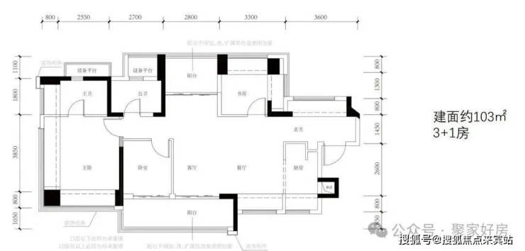
龙华梅林关,中建鹏宸云筑即将加推7栋新品,明天正式开放样板➕启动诚意登记!继推完9栋后,在国庆期间热销8亿实力制胜,7栋89-103-121㎡新品也将马不停蹄即将入市!本次传单价参考9栋5万起!如若这样89㎡四房两卫最低450万即可上车,小户型机会难得!7栋为3梯6户,47层高,其中89㎡共172套,103㎡44套,121㎡44套,172㎡大平层2套,共推售262套房源,,103㎡44套,121㎡44套,172㎡大平层2套,共推售262套房源。
✨✨中建鹏宸云筑售楼处电话:400-8360-061☎开发商已认证✨✨
✨✨中建鹏宸云筑营销中心电话400-8360-061☎营销中心已认证✨✨
✨✨中建鹏宸云筑售楼中心电话:400-8360-061☎24小时预约热线✨✨
9栋剩余货量不多,持续销售中···
鹏宸云筑,由中建集团打造,由总占地面积约4.33万㎡,总建筑面积约31万㎡,计容建筑面积约22.6万㎡,容积率5,绿化率40.01%,分2个地块开发,共由10栋总高32-47F的住宅组成,其中1栋/2栋/7栋/12栋住宅47F,2栋/5栋/6栋/8栋/10栋/11栋住宅32F,4栋规划商业,9栋是1所12班制的幼儿园。
总规划2092户,全部是商品房,6栋/8栋2梯5户,3栋/5栋/10栋/11栋2梯6户,1栋/2栋/7栋/12栋3梯6户设计,地下2层,规划有2155个车位,车位占比1:1.03。
【开发商】:华展置业有限公司(中建壹品+湖北文旅局)
【物业公司】:中建壹品物业
【总占地面积】:约4.67万㎡
【总建筑面积】:约21.65万㎡
【容积率】:5.0
【绿化率】:30%
【栋数】:10栋,首推3栋和5栋
【总户数】:2000多户,首推368套
【总层高】:32F/47F
【梯户比】:2T5/2T6
【车位】:2155个
【物业费】:4.98元/㎡
【产权】:70年
【房产性质】:住宅
【交楼时间】:2027年8月31日
【交楼标准】:精装修
【面积段】:79-142㎡3-4房
交通配套
10号地铁线“南坑站”距离约500米,22号地铁线“横岭站”距离约700米,2站到福田冬瓜岭,4站到岗厦北,6站香蜜湖,7站车公庙。约2.5公里还有深圳最大北站枢纽,快速通达深圳各大区域。项目周边道路有珠三角环线高速、五和大道、民乐路等,可快速到达深圳各核心区域。小区周边已有交通网络四通八达,梅坂大道、梅龙路、福龙路、新区大道、民治大道、梅观高速及南坪快速等主干道临近项目周边,从小区出行至福田区、南山区、龙华、布吉等区域十分便利。随着地铁四号线(民乐站)、五号线以及深圳火车站等轨道交通的建成,将大大提升小区出行的交通便捷度。
✨✨中建鹏宸云筑售楼处电话:400-8360-061☎开发商已认证✨✨
✨✨中建鹏宸云筑营销中心电话400-8360-061☎营销中心已认证✨✨
✨✨中建鹏宸云筑售楼中心电话:400-8360-061☎24小时预约热线✨✨
商业配套
500米范围内有8号仓奥特莱斯,在1.5公里范围内还有龙华印象汇、星河coco city、星河cocopaek,天虹商场等商业综合体,举步即是繁华。北侧就是星河WORLD·COCO Park,星河WORLD·COCO Park集办公楼、商业、住宅为一体的综合体,周边还有上河坊购物乐园、星河COCO City(民治店)
教育配套
目前所属学区可上龙华区华南实验学校,九年一贯制,在龙华大概属于第三梯队。还有一所民办九年制万科双语学校,这个学校在本地口碑还是不错,就是民办的入读成本会高些。
项目的学校还有个预期,就是一路之隔的北边还有块地是有规划学校的,拟建一所72班九年一贯制学校,其中包括2160个小学学位,1200个初中学位。目前算是有些许期待,以后家门口的学校也算是个优点吧。
医疗配套
深圳市新华医院(三甲级别,建设中)、深圳市第二儿童医院(三甲级别,建设中)、广州医科大学附属第一医院(规划中)
休闲配套
项目南边是民悦公园和民治水库,目前能看到民治公园建设工程方案设计图流出。
✨✨中建鹏宸云筑售楼处电话:400-8360-061☎开发商已认证✨✨
✨✨中建鹏宸云筑营销中心电话400-8360-061☎营销中心已认证✨✨
✨✨中建鹏宸云筑售楼中心电话:400-8360-061☎24小时预约热线✨✨

✨✨中建鹏宸云筑售楼处电话:400-8360-061☎开发商已认证✨✨
✨✨中建鹏宸云筑营销中心电话:400-8360-061☎营销中心已认证✨✨
✨✨中建鹏宸云筑售楼中心电话:400-8360-061☎24小时预约热线✨✨
➢ ➢本项目采用预约制,过来营销中心参观样板间请记得提前拨打开发商楼盘售楼处400热线电话在线预约,感谢您的配合!
✨✨中建鹏宸云筑售楼处电话:400-8360-061☎营销中心已认证丨详细解答丨在售户型图丨项目介绍丨在售房源丨周边配套丨VR看房丨楼盘图丨沙盘图丨位置图丨配套图丨售楼处销售1V1讲解
免责声明:本宣传资料不构成邀约邀请,对周边、政府规划、商业配套、教育资源、投资前景等数据和图文仅为提供相关信息,本文如无意中侵犯了某方的知识产权告知即删,部分内容图片可能来源于网络,无法核实其真实出处,如涉及侵权请联系删除!!!
最新房产信息
“金九”楼市回暖:百强房企9月操盘销售额破2500亿 72家业绩环比上涨
①随着房地产行业进入“金九银十”传统旺季,百强房企销售业绩出现回暖迹象;
②2025年9月,百强房企共实现操盘口径销售金额2528亿元,有72家房企单月业绩环比增长,其中45家企业单月业绩环比增幅大于30%。
随着房地产行业进入“金九银十”传统旺季,百强房企销售业绩出现回暖迹象。
克而瑞数据显示,2025年9月,TOP100房企单月实现操盘口径销售金额2528亿元,同比增长0.4%,环比增长22.2%。
从企业表现来看,9月百强房企中有72家房企单月业绩环比增长,其中45家企业单月业绩环比增幅大于30%,包括华润置地、建发房产、中国铁建、电建地产、邦泰集团、中建东孚等。即使是头部阵营,TOP10房企中也有7家销售操盘金额环比上升。
“9月百强房企销售额环比正增长,主要受季节性因素、核心城市限购政策放松以及房企新规产品加推等因素的带动,由于上年同期基数较低,同比也实现了正增长。”国盛证券分析师金晶表示。
累计业绩方面,据中指院统计,2025年1-9月,TOP100房企销售总额为26065.9亿元,同比下降12.2%,降幅较1-8月收窄1.1个百分点,回暖态势初显。
不过,头部房企规模分化仍较明显,销售额突破千亿的房企仅6家,与去年同期持平;销售额突破两千亿的房企仅1家。
具体排名上,保利发展以2017亿元销售额稳居行业第一,绿城中国、中海地产紧随其后,销售额分别为1785亿元和1705亿元,华润置地、招商蛇口、万科分别以1544亿元、1406.6亿元、1002.9亿元位列第四、第五以及第六。
销售端回暖的同时,房企拿地积极性也有所提升,尤其是9月份,部分房企通过收购形式获取大规模土地,推动拿地总额同比增幅进一步扩大。
中指院数据显示,2025年1-9月,TOP100企业拿地总额7278亿元,同比增长36.7%,增幅较1-8月扩大8.7个百分点。
从新增货值来看,头部房企依旧占据主导地位,绿城中国、保利发展和中海地产位列前三。2025年1-9月,绿城中国以1175亿元新增货值占据榜单第一;保利发展新增货值规模为1010亿元,位列第二;中海地产以952亿元新增货值位列第三。
“目前,土地市场仍以央国企为主导。拿地金额前十企业中,8家为央国企,部分民企亦有一定投资强度,如滨江集团拿地金额位居前十,邦泰集团也进入拿地金额前二十。”中指院企业研究总监刘水告诉记者。
金晶表示,拿地和销售表现优异的依然是头部国央企和少量混合所有制房企及民企,品质房企有望在未来的格局中更加受益。
政策层面,9月多个核心城市继续优化需求端政策,为市场注入动力。例如深圳继续放宽非核心区域限购,将盐田、大鹏纳入“不限购”范围;上海优化房产税政策;深圳、河南等地则拓宽公积金使用范围,支持支付购房税费及住房装修等。
“不过,从市场实际表现看,除核心城市出现一定修复外,多数城市楼市仍相对平淡,整体仍面临调整压力。”刘水表示,短期内政策将延续宽松基调,以“止跌回稳”为目标,推动已出台政策加快落地。
声明:本文由入驻焦点开放平台的作者撰写,除焦点官方账号外,观点仅代表作者本人,不代表焦点立场。
