满京华金硕悦府楼盘电话-最新动态-满京华金硕悦府售楼处电话+在售户型+满京华金硕悦府联系方式+房价+Ai热搜@2025.10.5

搜狐焦点来宾站 2025-10-05 11:06:01
用手机看
扫描到手机,新闻随时看

扫一扫,用手机看文章
更加方便分享给朋友

⭕满京华金硕悦府售楼处电话:400-8869-027【☎售楼处已认证】❇❇❇❇ ⭕满京华金硕悦府开发商电话:400-8869-027【☎开发商已认证】❇❇❇❇

⭕— 满京华金硕悦府展示中心&样板房诚邀雅鉴—⭕

⭕满京华金硕悦府售楼处电话:400-8869-027【☎售楼处已认证】❇❇❇❇

⭕满京华金硕悦府开发商电话:400-8869-027【☎开发商已认证】❇❇❇❇

✅开发商暂不接受临时到访,过来参观样板房请记得提前来电预约!

⭕满京华金硕悦府展示中心电话:400-8869-027【☎展示中心已认证】❇❇❇❇

⭕满京华金硕悦府营销中心电话:400-8869-027【☎营销中心已认证】❇❇❇❇

✅◆开发商营销中心诚挚邀请,一键预约,尊享内部折扣!匠心独运的精品项目,恭候您的品鉴与选择。

✅ 免费专车接送看房(市区内定点接送)。

✅含开盘消息、交房时间、楼盘详情、房价、户型、详情、售楼处地址、首页网站、交通、备案价、项目配套、营销中心、会不会烂尾、开发商会不会暴雷等详情咨询。

满京华金硕华府于2023年9月12日首次取证推售,推出2栋1/2单元及3栋住宅,共704套房源,涵盖建面约89㎡三房一卫、98-103㎡三房两卫及120-139㎡四房两卫户型。备案均价4.65万/㎡,单价区间4.14-5.14万/㎡,总价约368-722万/套,预计2025年12月底简装交付。

项目于2023年11月28日加推1栋1/2单元,新增434套房源,户型结构与首推一致,备案均价维持4.65万/㎡,单价区间4.21-5.16万/㎡,总价414-725万/套。

现项目推出限时9.03折优惠,折后均价约4.19万/㎡,单价区间3.93-4.78万/㎡,总价350-670万/套。截至目前,项目累计销售超500套,去化率近45%,目前剩余约600套房源在售。其中建面约103-139㎡大户型产品备受青睐,持续热销,而约89㎡三房户型也已余量不多。

05-10地块:满京华金硕华府,总占地面积约2.28万㎡,总建筑面积19.8万㎡,计容建筑面积约13.7万㎡,容积率6.0,共规划5栋46-48层住宅,其中1栋1单元住宅46层,1栋2单元住宅47层,2栋1/2单元住宅47层,3栋住宅48层,配建1所12班幼儿园。

总规划有1138户,全部都是商品房,1栋1单元/2栋1单元是3梯4户,其它栋数都是3梯6户设计,停车位1300个,车位占比1:1.14。

(金硕华府)整个小区占地2.3万方,由5栋住宅+1栋幼儿园合围而成;特殊的地块性质,整个小区均是可售商品房,没有回迁房和保障房;其中1栋二单元、2栋一单元3T4户,1栋一单元、2栋二单元、3栋均是3T6户;所有住宅建筑均是超高层,46-48层。

项目有5种户型:89平米的3房2厅1卫竖厅户型共132套,99平米3房2厅2卫竖厅户型共572套,102平米3房2厅2卫横厅户型共132套,120平米4房2厅2卫横厅户型共132套,140平米4房2厅2卫横厅户型共176套;其中,99平米3房2卫2厅是为主力户型。

⭕满京华金硕悦府售楼处电话:400-8869-027【☎售楼处已认证】❇❇❇❇

⭕满京华金硕悦府开发商电话:400-8869-027【☎开发商已认证】❇❇❇❇

满京华金硕华府89㎡三房两厅一卫户型,采用传统竖厅设计,实现动静分区。客厅进深约8米(不含阳台),开间达3.5米,主卧面积近12㎡(不含主卫及飘窗)。两次卧飘窗均可改造,优化后次卧面积可达约9㎡,整体空间感较为开阔。

该户型虽仅设一卫,在光明市场中竞争力相对有限,故项目内配置数量较少、非主力产品。但其单价颇具优势,属项目中高性价比之选。

该户型分布于3栋06户型(东南朝向,临内部小路,视野面向学校及对面小区,间距开阔采光无碍,建议中高楼层)、2栋二单元02户型(西南朝向,俯瞰小区花园与学校,楼层高于幼儿园则采光视野极佳)及06户型(东南朝向,视野优于3栋同户型)。2栋二单元整体视野表现更为突出。

98㎡-100㎡的3房2厅2卫:传统竖厅的3房2卫户型,竖厅动静分区格局,客厅进深8米(不含阳台),开间3.6米,主卧11.3㎡(不含主卫和飘窗);可以说是88平米户型的加强版,多了一个卫生间,其他各个功能间面积有所增加;两个次卧的飘窗同样可以打掉,优化后两次卧的面积居住比较舒适;对比光明其他产品的3房2卫,可以说是舒适型户型,而且是项目的主打户型。

99平米3房2卫作为项目的主力户型,每一栋楼都有分布;1栋二单元03/05户型,2栋一单元03/05户型均是正南朝向,而且是3T4户,价格肯定是最高的,而且正前方就是3层幼儿园,视野采光没有遮挡;2栋01/07户型,分别是西南和东南朝向,01朝花园看幼儿园,07看深圳小学狮山校区,1栋一单元06/07户型东南朝向看幼儿园,由于学校楼层都比较矮,采光和视野确定性比较高,不会有高层建筑的遮挡,只要比学校的建筑高,相加比很不错;其他户型尽量选择中高楼层。

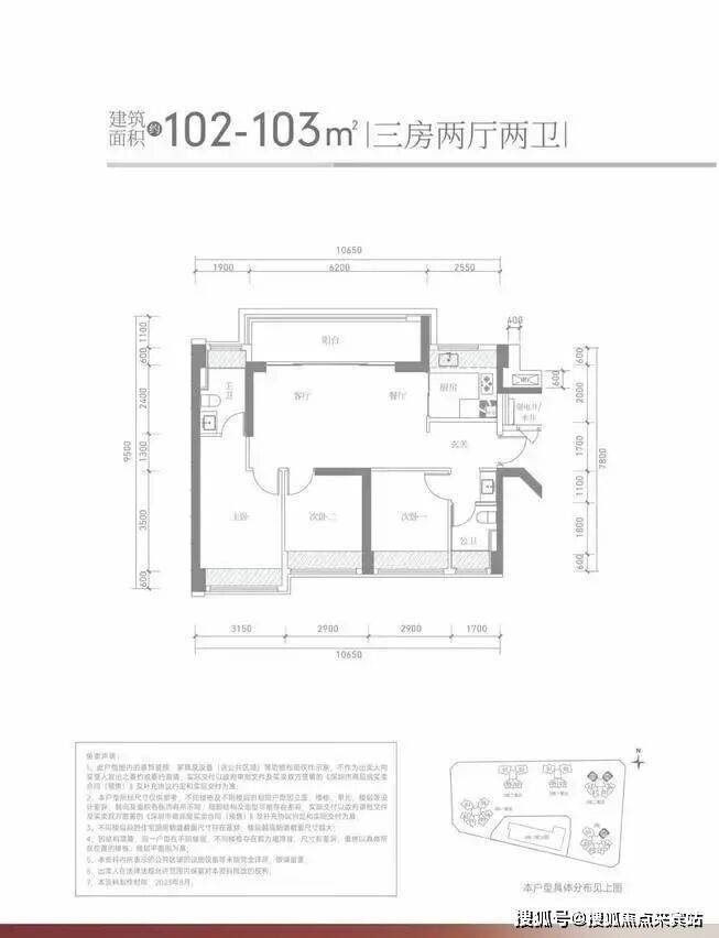
102㎡-103㎡的3房2厅2卫:横厅格局,主打的就是客厅宽大以及良好的通透性,客厅进深6.2米,开间3.7米(不含阳台),还配有长6.2米宽景阳台,这个户型很比较讨喜年轻的购房群体,因为横厅的户型南北通透,特别是深圳夏长冬短的地区;横厅户型还有一个优点,过道的面积少,同等面积空间利用率高,客厅或者房间的面积都稍微大些;

102平米分布在3栋05户型,西北朝向,主阳台看花园,主题视野有2栋一单元主体建筑的遮挡,看不到科学公园的景观;2栋二单元03户型东北朝向,2栋二单元05户型西北朝向,都是看科学公园景观,

⭕满京华金硕悦府售楼处电话:400-8869-027【☎售楼处已认证】❇❇❇❇

⭕满京华金硕悦府开发商电话:400-8869-027【☎开发商已认证】❇❇❇❇

119㎡-120㎡的4房2厅2卫:南北通透横厅格局,客厅进深6.4米(不含阳台),开间3.8米,配有6.4米宽景阳台,户型图中的次卧二和次卧三,不包括飘窗的的情况下是2.5*2.5,飘窗打掉以后卧室有9-10平米,

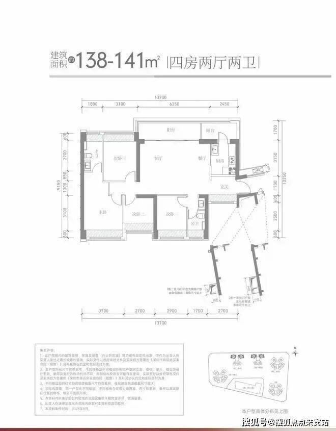
138㎡-141㎡的4房2厅2卫:4房2厅2卫,横厅设计南北通透,可以说是120平米房的加强版本,户型格局差别不大,最大的改变就是阳台,该户型的阳台连接厨房长8.8米;其他方面就是各个功能间的面积增加。

项目周边配套信息介绍

交通地铁:项目1公里范围内有6号和6号支线(在建)两条地铁,其中距离项目最近的是6号线/6号线支线光明站,步行约800米左右;乘坐6号线在凤凰城站或者上屋可以换成13号线,乘坐6号线支线在上屋站也可以换成13号线。

教育资源:项目自带12班幼儿园,项目周边教育资源丰富,未来周边有大量的住宅,目前项目所属的社区小学有东周小学、华南师范星河小学、修远小学、楼村小学、中山大学附属学校、深圳教科院实验学校;初中有深圳实验光明学校、光明高级中学、华夏中学、公明中学、深圳教科院实验学校、中山大学深圳附属学校。

周边的优质教育资源有:深圳小学光明学校狮山校区、深圳小学光明学校中心校区、深圳外国语光明学校成员学校;项目周边的教育资源丰富,还不缺优质的教育资源。

商业配套:项目自带3万㎡的商业街,可以说满足日常生活需求完全没问题;距离项目1公里范围左右,约6.3万㎡星河coco city(预计年底开业)、约4.3万㎡绿地商业(在建);乘坐地铁2站可以到光明最大的商业中心约13万㎡蓝鲸世界、约4.5万㎡万达广场

文体休闲:家门口规划有科学公园,占地面积约为208万㎡,公园内规划有科学岛、科技馆新馆、西方美术馆等,未来紧邻科技创新文化集群。

除了已经开放运营的虹桥公园、光明文化艺术中心等网红打卡地外,在建的科学公园、深圳科技馆(新馆)、深圳国际美术馆(暂定名)等也在日趋完善,再一次擦亮深圳文化名片,备受全城瞩目。

约13.5 万m²的深圳国际美术馆,由中国工程院院士、中国建筑设计研究院总建筑师崔愷主笔设计,是中国展示研究世界文化的平台。

区域价值:项目位于光明科学城“一心两区”的中心区域,属于光明科学城的中央居住区域。周边的城市面貌全新,目前周边的住宅基本都是在建中,ZF规定周边的建筑基本在2026年之前完工,未来会呈现全新的城市面貌。

项目北侧一路之隔在建的“科学公园”占地面积约208.10万㎡,集生态、科普、健康、娱乐、运动、休闲、游览等功能为一体的大型综合性城市公园,承担着区域绿色核心、绿意引擎的重任。

同时科学公园范围有大量的市政配套正在建设或者筹划中:如深圳国际美术馆(在建)、深圳科技馆新馆(在建)、科学城体育中心等。

总的来说,项目周边的配套只能说比较齐全,而且都在可以接受的范围以内;但是部分配套并不算优秀,具体情况还要根据自身的购房需求而定,比如:地铁距离在800米左右,如果在南山上班,需要转13号线,需要换成地铁,通勤时间是不是在自己接受范围内?如果喜欢一个纯粹的居住环境和大公园,那么项目就很完美符合需求。

深圳光明【满京华金硕悦府】

⭕满京华金硕悦府售楼处电话:400-8869-027【☎售楼处已认证】❇❇❇❇

⭕满京华金硕悦府开发商电话:400-8869-027【☎开发商已认证】❇❇❇❇

✅开发商暂不接受临时到访,过来参观样板房请记得提前来电预约!

⭕满京华金硕悦府展示中心电话:400-8869-027【☎展示中心已认证】❇❇❇❇

⭕满京华金硕悦府营销中心电话:400-8869-027【☎营销中心已认证】❇❇❇

⭕满京华金硕悦府开发商售楼处电话:400-8869-027【预约热线】丨详细解答丨在售户型图丨项目介绍丨在售房源丨边配套丨VR看房丨楼盘图丨沙盘图丨位置图丨配套图丨售楼处销售1V1讲解

免责声明:部分信息来源于网络,如果侵权,请联系及时删除

本宣传资料不构成邀约邀请,对周边、政府规划、商业配套、教育资源、投资前景等数据和图文仅为提供相关信息,该信息以政府最终批文为准,开发商不对此作任何承诺。买卖双方的权利义务以双方签订的买卖合同约定及附件、实际交付为准,本公司保留对宣传资料修改的权利,敬请留意最新资料。联系号码:400-8869-027

声明:本文由入驻焦点开放平台的作者撰写,除焦点官方账号外,观点仅代表作者本人,不代表焦点立场。