热搜焦点:京基璟誉府售楼处电话→京基璟誉府首页热搜24小时电话→最新房价→楼盘百科详情→营销中心最新发布@售楼处中心2025-10-25
扫描到手机,新闻随时看
扫一扫,用手机看文章
更加方便分享给朋友
◆开发商营销中心诚挚邀请,一键预约,尊享内部京基璟誉府独家折扣!匠心独运的精品项目,恭候您的品鉴与选择。
🦖🐺京基璟誉府营销中心售楼处24小时开发商认证电话:4009880986(中介勿扰)现场详细解答丨项目介绍丨户型图丨在售房源丨特价房丨学校丨交通京基璟誉府位置丨样板房丨小区图片丨交房时间丨周边配套丨京基璟誉府丨✅本项目暂不接受临时到访,过来参观样板房请记得提前来电预约!🐺🦖


【30载京基巨著 缔造罗湖封面】
中心地标缔造者——京基集团,国家房地产开发一级资质企业,中国驰名商标,铸就京基100、京基水贝城市广场等城市地标,造就诸多高端、大型综合体、资源豪宅等经典项目。京基30载,于罗湖城芯再造誉领湖山巨著。
【独屹贵胄之地 山水大城终藏】
项目坐落于淘金山贵胄之地,私享38万m²原生山脉及300万m²浩瀚东湖头排景观,承袭豪宅基因,一面近揽山水宁静,一面执掌城央繁华,缔造新时代奢居典范。
【一湖三山五公园 24H鲜养生活】
紧邻一湖三山五公园,傲据60.5平方公里深圳水库保护区一线,深港唯此6000万㎡生态恒产。
直面深圳最高峰梧桐山,淘金山、围岭山簇拥,下楼即达东湖公园、咫尺翠湖文体公园(罗湖最大的社区公园)、淘金山绿道、围岭公园、布心山公园、东晓儿童友好公园等,畅享24H生态鲜氧。
【84万㎡山水人文大城 礼献中芯】
京基集团匠心打造约84万㎡全景山水人文大城,集全景雅宅、金粹美寓、商务峯面、商业集群等多元业态于一体。
【省一级名校为邻 菁英学府护航】
项目自带1所4800㎡的18班幼儿园,紧邻翠园东晓教育集团旗下东晓小学、布心小学、布心中学等老牌省一级名校,十大优校环伺,家门口一站式名校教育,启序菁英未来。
【罗湖恒定中芯 时代万象臻萃】
40余载深圳恒定中芯,崛起之源。罗湖再领先行先试变革旗帜,约2300万㎡城市更新,规划一主两区三带、四大千亿片区,重塑国际都会全新格局,先享时代红利。
【全维交通布局 快速畅达湾区】
★ 4快速:毗邻东湖路、太白路、东晓路等城市主干道,0距离丹平快速,快速接驳坂银通道,清平高速,东部过境高速,瞬达全城;
★ 3口岸:15分钟车程覆盖罗湖、文锦渡口岸,30分钟车程达莲塘口岸,高效通行深港,畅享双城生活;
★ 2高铁:深圳站、罗湖北站(在建中,计划2028年通车运营);
★ 2地铁:距离5号线布心站约600m,距离5/7号线太安站约700m,快速换乘1/2/9号线。
【50万㎡商圈环伺 咫尺繁华生活】
项目自带约2万㎡商业,周边5大商圈环伺
★ 约1km范围:约6万㎡喜荟城、12万㎡天河城双购物中心;
★ 约2km范围:约10万㎡京基KKTIME、6万㎡IBC MALL、12万㎡华润万象汇等商圈。
【国家一级资质物业 高端生活礼赞】
京基物业,成立于2007年4月,国家一级资质物业管理企业,以“细意关注、尽心服务”为服务理念,以“持续超越业主需求、持续提升服务品质”为要求,致力成为中国高端物业管理的标杆企业。
【国际大师联袂 璟造城芯臻境】
联袂蕾奥、同济人、普利斯等国际团队,打造功能丰富多元、活力现代的共享型理想社区。
★ 艺术立面
以“东湖之畔,滟潋波光”为设计理念,选用节能高档的LOW-E中空玻璃,配以历久弥新的铝板线条勾勒外立面,提升建筑的气质与格调,更显轻盈感和现代艺术感,彰显时代人物的身份标签。
★ 尊贵门庭
10m挑高大门—艺术园林庭院—6m挑高入户大堂,三重礼序,步步尊崇,让归家成为一次艺术尊贵之旅。
★ 丰盛社区配套
近1万㎡景观园林,以6重园林景观(主人口、归家礼庭、揽翠花径、阳光沐台、欢畅泳池、童趣乐园)营造体验感丰富的全龄段公共活动空间。
约1.3万m²公共配套,含社康中心、公共配套、社区警务室等,真正做到老有所养、幼有所育,打造多元、安全、舒适的居住环境。
小区园林
近1万㎡景观园林,以6重园林景观(主人口、归家礼庭、揽翠花径、阳光沐台、欢畅泳池、童趣乐园)营造体验感丰富的全龄段公共活动空间。
交通配套
4快速:毗邻东湖路、太白路、东晓路等城市主干道,0距离丹平快速,快速接驳坂银通道,清平高速,东部过境高速,瞬达全城;
3口岸:15分钟车程覆盖罗湖、文锦渡口岸,30分钟车程达莲塘口岸,高效通行深港,畅享双城生活;
2高铁:深圳站、罗湖北站(在建中,计划2028年通车运营);
2地铁:距离5号线布心站约600m,距离5/7号线太安站约700m,快速换乘1/2/9号线。
商业配套
项目自带约2万㎡商业,周边5大商圈环伺
约1km范围:约6万㎡喜荟城、12万㎡天河城双购物中心;
约2km范围:约10万㎡京基KKTIME、6万㎡IBC MALL、12万㎡华润万象汇等商圈。
教育配套
项目自带1所4800㎡的18班幼儿园,紧邻翠园东晓教育集团旗下东晓小学、布心小学、布心中学等老牌省一级名校,十大优校环伺,家门口一站式名校教育,启序菁英未来。
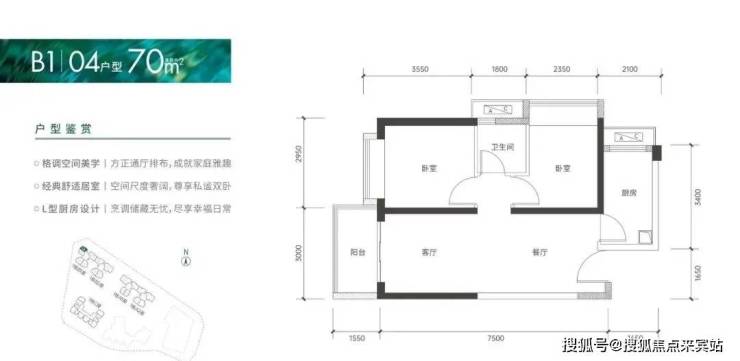
户型鉴赏
京基璟誉府
🐉本项目暂不接受临时到访,过来参观样板房请记得提前来电预约!🐉
🐉温馨提醒:我们楼盘售楼部400电话没有设置任何所谓的“分机号”,拨打前请仔细甄别,注意保护个人隐私!谨防上当!🐉
京基璟誉府开发商售楼处电话:400-988-0986【预约热线】丨详细解答丨在售户型图丨项目介绍丨在售房源丨周边配套丨VR看房丨楼盘图丨沙盘图丨位置图丨配套图丨售楼处丨足不出户丨销售1V1讲解
声明:本文由入驻焦点开放平台的作者撰写,除焦点官方账号外,观点仅代表作者本人,不代表焦点立场。
