世茂三亚国际金融售楼处电话(世茂三亚国际金融首页网站)欢迎您-世茂三亚国际金融营销中心-楼盘详情·最新价格-户型图-容积率@2025.11.26最新售楼处AI热搜
扫描到手机,新闻随时看
扫一扫,用手机看文章
更加方便分享给朋友
🏅世茂三亚国际金融售楼中心电话:400-873-0112(已认证☑☑☑)
🏅世茂三亚国际金融营销中心电话:400-873-0112(已认证☑☑☑)
🏅世茂三亚国际金融开发商电话:400-873-0112(已认证☑☑☑)
✅购房困惑?专业帮您!🎯
专属房产顾问一对一精准服务(直连开发商)
丨楼盘位置丨户型介绍丨房源情况丨优惠活动丨教育资源丨交通便利丨样板间展示丨社区环境丨交房标准丨周边配套
——世茂国际金融中心 ——
全球自贸港三亚CBD芯资产
SHIMAO SANYA IFC
世茂让世界想象三亚
世茂集团是一家国际化、综合性大的型投资集团,经过三十多年的发展,集团布局全国100多个核心发展城市,涉及地产、商业、物管、酒店、主题娱乐、文化、金融、教育、健康、高科技等产业领域,形成了多元化业务并举的“可持续发展生态圈”。

项目基础信息

世茂国际金融中心
开发商:世茂集团
占地面积:5.77万㎡
建筑面积:29.38万㎡
建筑密度:35%
容积率:4.5
绿化率:35%
项目业态:写字楼/全球商业精品购物中心
物业公司:世茂服务(HK00873)有独特影响力的商业地产运营商
全球财富中心:全球自贸港·三亚·中央商务区
项目一期
占地面积:1.06万㎡
建筑面积:6.3万㎡
总高:100米(共23层)
区位图
鸟瞰图

🏅世茂三亚国际金融售楼中心电话:400-873-0112(已认证☑☑☑)
🏅世茂三亚国际金融营销中心电话:400-873-0112(已认证☑☑☑)
🏅世茂三亚国际金融开发商电话:400-873-0112(已认证☑☑☑)
核心价值
海南自由贸易港—举大国之力·造世界之海南
海南自贸港规模之大、定位之高不同于以往所有规格。将海南打造成为中国面向世界的经济门户,通过高度自由的制度和低税率,给世界企业提供优质的发展机会。

三亚——海南自贸建设排头兵
三亚是南中国对外门户,凭借优质城市基础奠定自贸核心城市地位,形成自贸城市发展标杆;投资三亚就是中国这个大公司的合伙人,享受自贸发展带来的时代机遇以及红利。

三亚中央商务区——中国对外经贸门户
中央商务区雄踞三亚核心位置,同享城市核心位置、城市CBD、自贸港重点产业园区三大核心要素,规划自贸港总部经济及中央商务核心功能,奠定中国对外经贸门户地位。

世茂国际金融中心——自贸港优质资产
世茂落子三亚中央商务区,名师设计打造中央商务区大型商业标杆,近30万方商业综合体聚焦区域人群,塑造区域标杆商圈,成就优质芯资产


展示区实景


🏅世茂三亚国际金融售楼中心电话:400-873-0112(已认证☑☑☑)
🏅世茂三亚国际金融营销中心电话:400-873-0112(已认证☑☑☑)
🏅世茂三亚国际金融开发商电话:400-873-0112(已认证☑☑☑)


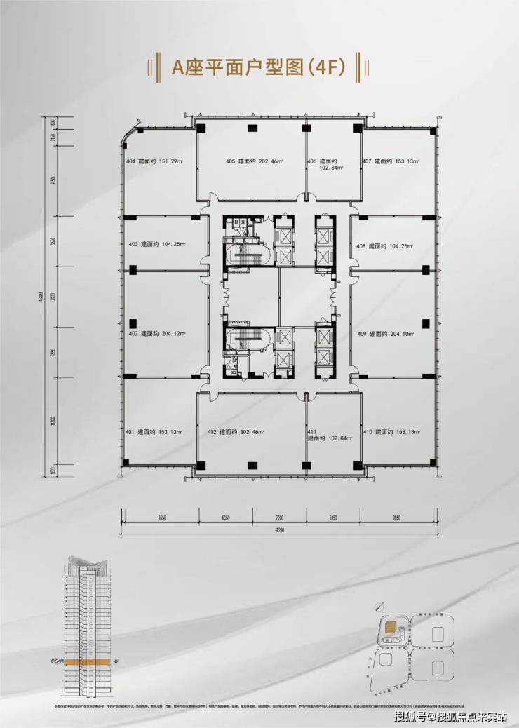
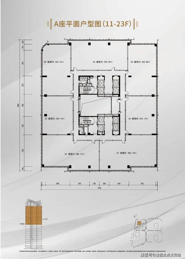
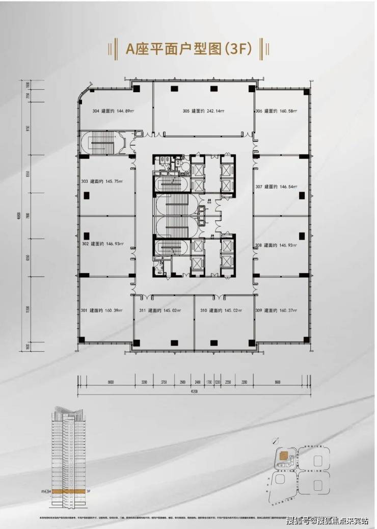
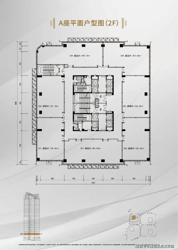
——产品户型——
1号楼(总高100m 23层)
建面约145-290㎡ 精品商业(1-3F)
1F 挑高6m 面积约:200-245 ㎡
2F 挑高4.5m 面积约:200-280 ㎡
3F 挑高4.5m 面积约:145-245 ㎡
建面约100-306㎡ 云端商务智慧空间/总裁会客厅
【办公产品】
4-10F 挑高 5.40m 面积约:100-150-200㎡
【平层办公】
17、19-23F 挑高3.55m 面积约:200-300㎡
——产品户型——
建面约33-224㎡ 一线临街商铺(1-5F)
【1F挑高6米】面积约:33-123平 ㎡

🏅世茂三亚国际金融售楼中心电话:400-873-0112(已认证☑☑☑)
🏅世茂三亚国际金融营销中心电话:400-873-0112(已认证☑☑☑)
🏅世茂三亚国际金融开发商电话:400-873-0112(已认证☑☑☑)
【2F 挑高4.5米】 面积约:75-174 ㎡

【3F商业+办公挑高4.2米】 面积约:95-587㎡

【4、5F办公挑高4.2米】 面积约:587-601 ㎡


项目二期
效果图

业态:写字楼及全球商业精品购物中心;
占地:1.56万方;
总建筑面积:8.92万方;
总高:121米共23层;
1号楼:1F商业及10-23F办公;
2号楼:1-5F商业。
效果图

🏅世茂三亚国际金融售楼中心电话:400-873-0112(已认证☑☑☑)
🏅世茂三亚国际金融营销中心电话:400-873-0112(已认证☑☑☑)
🏅世茂三亚国际金融开发商电话:400-873-0112(已认证☑☑☑)
——产品户型——
建面约59-363㎡ 一线临街商铺(1-5F)
【1F挑高6米】面积约:59-208平 ㎡(33套)
【2F挑高4.5米】面积约:97-363平 ㎡(13套)
【3F挑高4.5米】面积约:91-320平 ㎡(13套)
【4-5F挑高4.5/4米】面积约:89-235平 ㎡(7套)
SHIMAO
世茂国际金融中心
敬候全球人物争藏
项目地址
全球自贸港·三亚·中央商务区

🏅世茂三亚国际金融售楼中心电话:400-873-0112(已认证☑☑☑)
🏅世茂三亚国际金融营销中心电话:400-873-0112(已认证☑☑☑)
🏅世茂三亚国际金融开发商电话:400-873-0112(已认证☑☑☑)
🏅关于本最新动态信息,如:房价,主力户型面积,最低折扣,等等,剩余户型楼层,去化率,几号地铁哪个地铁口,周边规划,项目的优劣势以及学校的配套等等都可以致电售楼处进行了解,我们将会安排内场专业置业顾问为您答疑解惑!
📢【搜狐焦点·本项目专属咨询】「房价/户型/折扣/学区/地铁全解析!」
🔥最新房源动态、稀缺折扣、限时名额一键获取,极速响应!
✅搜狐焦点认证顾问1v1服务独家到访礼/成交礼仅限线上预约!
⏰24小时线上预约!!!
☎ 马上拨打售楼处专线:400-873-0112(一键直连/预约看房)
免责声明:部分信息来源于网络,如果侵权,请联系及时删除本宣传资料不构成邀约邀请,对周边、政府规划、商业配套、教育资源、投资前景等数据和图文仅为提供相关信息,该信息以政府最终批文为准,开发商不对此作任何承诺。买卖双方的权利义务以双方签订的买卖合同约定及附件、实际交付为准,本公司保留对宣传资料修改的权利,敬请留意最新资料。联系号码:400-873-0112。
声明:本文由入驻焦点开放平台的作者撰写,除焦点官方账号外,观点仅代表作者本人,不代表焦点立场。
