中建鹏宸云筑售楼处(中建鹏宸云筑)首页网站-中建鹏宸云筑营销中心-欢迎您-楼盘详情·最新价格-户型图-容积率@售楼处
扫描到手机,新闻随时看
扫一扫,用手机看文章
更加方便分享给朋友
✨中建鹏宸云筑✨✽✽✽✽
💎中建鹏宸云筑售楼处电话☎:4009027191【售楼处认证】⭐⭐⭐⭐
⭐在售户型图⭐项目介绍⭐最新房源⭐周边配套详细解
⭐*开发商营销中心诚挚邀请,一键预约,尊享内部折扣!匠心独运的精品项目,恭候您的品鉴与选择!
✅为给您更好的看房体验请提前来电预约(给您预留现场销售和停车位)
✅注意:本项目不收任何费用,售楼中心〢欢迎来电咨询〢
中建鹏宸云筑售楼处电话☎:400-902-7191【售楼处认证】⭐⭐⭐⭐
中建鹏宸云筑营销中心电话☎:400-902-7191【营销中心认证】⭐⭐⭐⭐
中建鹏宸云筑销售中心电话☎:400-902-7191【销售中心认证】⭐⭐⭐⭐
中建鹏宸云筑是在2024年2月29日挂出的A808-005土拍地块,建筑面积216570㎡,竞得价格是51.79亿元,楼面价23914元/㎡,是龙华近10年来最大的纯商品房土拍地块,总共1992套,全部规划商品房,没有任何回迁房、安居房、共有产权房、公租房等,也是龙华在新规政策发布后建设的第二个楼盘!
最新消息:【中建·鹏宸云筑】即将加推西区7栋,本栋47层,标准层高约3.1米,3梯6户,共262套,面积约89㎡3+1房两卫,103-121㎡四房两卫。
建面约89㎡户型:龙华“最能装”小户型
此前,建面约91㎡户型一直是这个项目去化最快、最受追捧的,这次建面约89㎡户型在格局、使用率及配置上与前者完全一致,仅面积微调1–2㎡,上车门槛更低,预计也会更抢手。

“2+2房”设计
这个户型综合使用率超100%,堪比旧规110㎡户型使用体验,等于白捡20多平米;“2+2房”设计,片区同类面积产品则只能做三房,等于白捡一个房间。
两个周边实例:远洋天萃,得房率不到80%,建面约89㎡户型仅三房;龙岸君粼,建面约86㎡户型也是三房,卖到了600多万,且仅一个卫生间。
全生命周期户型
得益于“2+2房”设计,该户型可适应二人世界、三口之家、二胎或三代同堂等不同阶段需求,省去巨额换房成本。
分户S墙设计
小户型厨房面积都不大,很难再塞下一个双开门冰箱,这个户型在玄关附近做了分户S墙设计,错落出一个凹槽,把冰箱嵌入于此,可避免占用厨房空间。

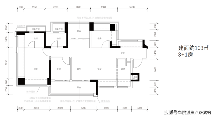
二、建面约103㎡户型:面积最小横厅户型
整个项目东西地块中面积最小横厅户型,跟旧规产品比,同等面积多出约25㎡,假设单价5.5W/㎡,总价便宜近140万。

综合使用率103%
这个户型位于端头位置,独门独户,还在户型外围做了一圈不计面积的飘窗、设备平台,综合使用率最高约103%。
全明户型+南北通透
全屋每个空间都有窗,室内采光无死角;南北双阳台布局,可形成有效对流,清风与阳光常伴左右。
超6000升玄关收纳
入门左侧设内凹空间,可量身定制鞋柜;右侧是一个长约3.6m大飘窗,可整体改造为收纳区,总容量超过6000升,等于多了一个储藏室。
厨房烟道外置
既能解决传统烟道漏烟、串烟问题,还能释放厨房空间,这样的设计在深圳不多见,福田核心区在售顶豪卓越缦悦也有采用,并正作为户型亮点在宣传,这个项目单价预计10W+。
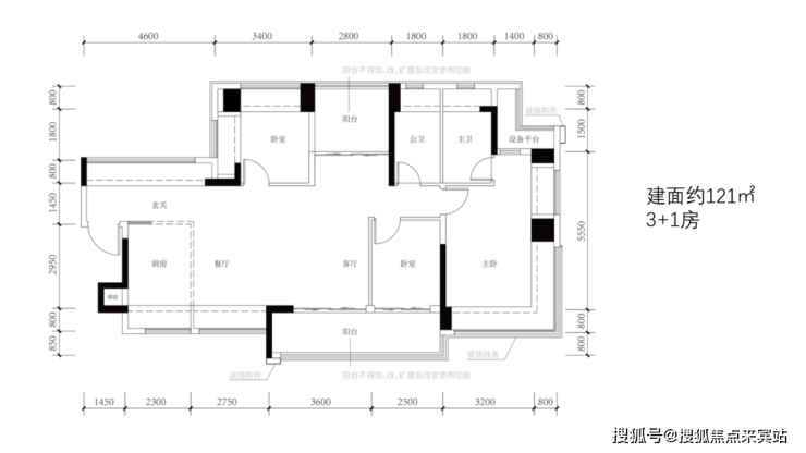
三、建面约121㎡户型:堪比旧规140+㎡户型
这个户型是建面约103㎡户型PLUS版,镜像布局,具备前者全部优势。同时,也是7栋综合使用率最高户型,享受到的是堪比旧规产品140+㎡户型的阔绰体验,假设单价5.5万/㎡,总价便宜110万元。

综合使用率高达104%
这个户型的综合使用率应该是龙华在售天花板了!独门独户+全屋飘窗+L型设备平台+双阳台,将空间实得价值拉满。
超大横厅
餐厅+客厅面宽约6.35m,再加上相邻卧室可达约8.8m,空间极为开阔。在这里,孩子的玩具车可以自由骑行,周末约上三五好友在家开派对也毫无压力。
270°环幕视野套房主卧
主卧开间约4m,套房设计,有一个L型设备平台,为未来生活预留了可拓空间。三面飘窗,可改造一面为衣帽间。转角是无柱设计,可实现270°无遮挡观景,32层以上看的是银湖山景观。
精装方面,鹏宸云筑可以说是市面上配置最全的精装项目,基本不需要再花什么装修费了。
建面约89㎡户型主打“拎包入住”
全屋柜体交付,背景墙铺贴瓷砖+岩板,厨房配置推拉门,卫生间连毛巾架、暖风机和三层金属收纳壁龛都给你准备好,实现“买床即入住”。
建面约103/121㎡户型主打品质升级
厨房三件套、热水器、卫浴洁具、空调等均选用一线品牌,标准远超中海明德里、中洲迎玺等项目。

交通便利
距地铁10号线南坑站C出口步行约600米,2站福田,4站深圳北,5站岗厦北,约8km(直线距离)直达福田CBD。
区位优势 地处梅林关板块,未来将发展成为"大湾区数字经济核心引领区、数字科创先锋示范区",享受深港科技创新合作区辐射红利。
配套商业
项目500米范围内有8号仓奥特莱斯,1.5公里范围内覆盖龙华印象汇、星河COCO City、天虹商场等商业综合体。
教育方面
项目北侧规划广东省一级学校建设标准的72班九年一贯制学校,周边18班小学规划,近邻华南实验学校、万科双语学校等。

✨中建鹏宸云筑✨✽✽✽✽
中建鹏宸云筑售楼处电话☎:400-902-7191【售楼处认证】⭐⭐⭐⭐
中建鹏宸云筑营销中心电话☎:400-902-7191【营销中心认证】⭐⭐⭐⭐
中建鹏宸云筑销售中心电话☎:400-902-7191【销售中心认证】⭐⭐⭐⭐
🔥可来电话预约销售顾问,专业一对一热情服务让您用专业眼光去购房!
免责声明:部分信息来源于网络,如果侵权,请联系及时删除,联系电话:4009027191
房产信息:
越秀地产34.83亿元竞得天河两宗宅地,广州十月土拍盆满钵满
十月收官之际,土拍市场再传捷报。
今日(30日),越秀地产底价竞得天河区广棠片区两宗涉宅用地,成交金额34.83亿元。
随着两宗地块的成功出让,广州10月土拍也正式落下帷幕。
克而瑞数据监测显示,10月广州涉宅用地成交7宗,成交总建面49.23万㎡,成交金额80.71亿元。
下面我们来看看地块素质及周边市场表现如何:

棠德路以东地块计容建筑面积70283㎡,起拍总价22.05亿元,起拍楼面价31380元/㎡,棠德路以东西地块计容建筑面积127852㎡,起拍总价12.78亿元,起拍楼面价30950元/㎡,两宗地块均为容积率均为≤ 2.1。
本次竞得人均为同一主体,在此之前,出让公告中也提到了鼓励在两个地块间设立空中连廊或地下通道加强联系,以及合理统筹布局幼儿园等公服配套的位置,方便项目建成后供业主使用。
而之所以提出该建设要求,是因为从官方航拍图可见,两宗地块距离非常近,有助于房企连片开发。
在建筑高度上,公告明确指出,地块必须满足岑村机场净空控制要求。

公告还指出,鼓励提高住宅阳台面积占比,鼓励配置主景观阳台、入户花园等半开敞空间。

“≤ 2.1的容积率+建筑高度必须满足岑村机场净空控制+新规配建要求”。
从这三个要求或可以推断出,未来地块将打造低密小高层产品。
今年三月天河自规局就宣布对棠东村、棠下村约1043亩土地征收补偿协议均已全部签订,这两宗地块就位列其中。
按照批复德《天河智谷广棠片区控制性详细规划》指出,广棠片区规划科研、商业、医疗等多元用地,并配套车陂涌湿地公园等生态设施,将着力打造“科创研发+生态宜居”的产城融合新样板。

地块位于东圃板块广棠片区内,距离地铁21号线棠东站约两公里,周边有多条公交线路经过,可通达广州各区。

值得一提的是,尽管目前地块距离地铁较远,但出让公告中提到,项目地块北侧应预留公共开敞空间,用于地铁19号线建设。
配套方面,有乐天棠德广场、天河棠下智汇Park、优托帮购物中心等配套,不过距离相对较远;以及清华大学湾区附属学校、广州奥林匹克中学高中部等教育资源。
多个工业园、加油站环伺地块周边,与规划中的岑村机场距离较近,会有较多噪音,未来居住舒适度或将会受到一定程度的影响。

市场表现方面,克而瑞数据监测显示,地块所处的东圃板块今年1-9月商品住宅成交1032套,较去年同时期增长10%,区占率33%。

120-144㎡户型成为了今年东圃板块的主力成交产品,累计317套,占比31%。

随着流速的加快,克而瑞数据监测显示,截至今年9月末东圃板块120-144㎡户型库存701套,去化周期16.2个月。
聚焦到地块周边,克而瑞数据监测显示,近十三月地块周边三公里内商品住宅成交1122套,成交均价74144元/㎡。
距离地块最近的新房项目城投珠江天河壹品,克而瑞数据监测显示,今年1-9月该项目成交148套,成交均价61830元/㎡。
在土地市场上,克而瑞数据监测显示,作为天河区涉宅用地供求主战场,2022-2024年东圃板块涉宅用地供应9宗,供应总建面98.18万㎡,成交6宗,成交总建面71.54万㎡。
主力容积率段集中在2.0-3.0,累计成交3宗。
6宗宅地目前已有5宗转化入市,在这其中,华润置地天河润府一期今年1-9月成交349套,成交均价49060元/㎡,地楼比0.47。
地楼比最高的项目为联投文津府,达到了0.69,该项目今年1-9月成交64套,成交均价56112元/㎡。
声明:本文由入驻焦点开放平台的作者撰写,除焦点官方账号外,观点仅代表作者本人,不代表焦点立场。
