2025聚焦@深圳湾创新科技中心售楼处首页网站-深圳湾创新科技中心营销中心-深圳湾创新科技中心欢迎您-最新价格-户型图-容积率

搜狐焦点来宾站 2025-06-07 16:18:27
用手机看
扫描到手机,新闻随时看

扫一扫,用手机看文章
更加方便分享给朋友

⭐深圳湾创新科技中心售楼处电话:400-909-9980【已认证】⭐⭐⭐ ⭐深圳湾创新科技中心售楼中心电话:400-909-9980【已认证】⭐⭐⭐ ⭐深圳湾创新科技中心营销中心电话:400-909-9980【已认证】⭐⭐⭐

⭐深圳湾创新科技中心售楼处24小时电话【已认证】

在售户型图丨项目介绍丨最新房源丨周边配套丨详细解答〢

⭐◆开发商营销中心诚挚邀请,一键预约,尊享内部折扣!匠心独运的精品项目,恭候您的品鉴与选择。⭐

⭐深圳湾创新科技中心售楼处电话:400-909-9980【已认证】⭐⭐⭐

⭐深圳湾创新科技中心售楼中心电话:400-909-9980【已认证】⭐⭐⭐

⭐深圳湾创新科技中心营销中心电话:400-909-9980【已认证】⭐⭐⭐

✅ 过来参观样板房烦请记得提前来电预约!

✅ 为您安排楼盘现场销售全程接待并讲解,给您更贴心的看房体验!

深圳湾创新科技中心出租

深圳湾科技深态园出租

约480-2400㎡ 开发商租赁

项目基础信息:

产品类型:研发用房

楼层:69层

标准层面积:约2400-2700㎡

单层户数:1-9户

户型面积:约126-1394㎡

层高:4.2m

管理费:21.8㎡/月

空调费:计流量

停车位:1200个

停车费:普通600元/月,固定车位1050/月

电梯数:35部(其中客梯30部)

产权年限:50年(2013.9.18-2063.9.17)

销售面积约2400-2700㎡ 整层起售

【在售产品-写字楼】

楼栋:2栋A座

面积:2400-2700㎡

购买主体须为注册地在深圳市的国高或市高企业;或取得高新区行政主管部门出具的有效购买批复文件的企业

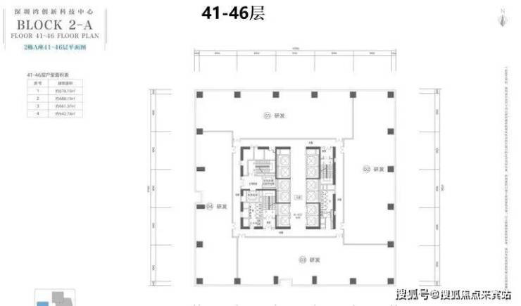
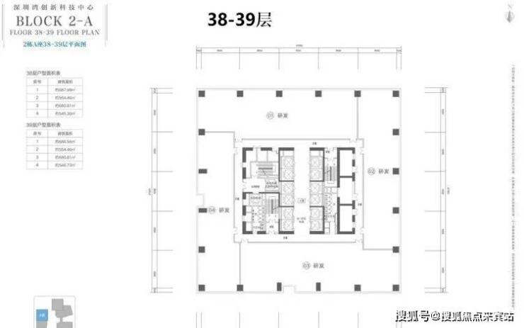
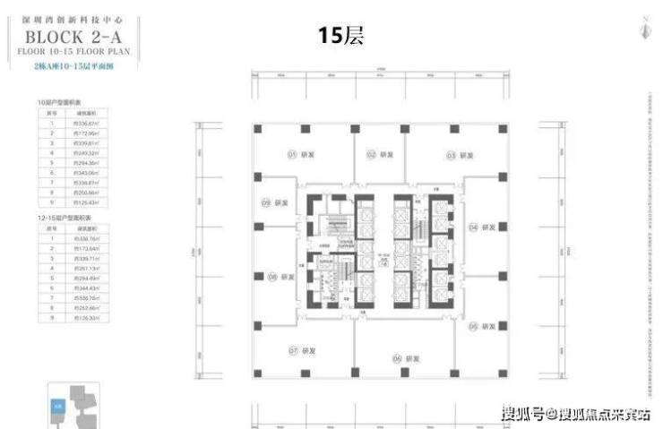
深圳湾创新科技中心·平面图

【项目基础信息】

占地面积:39869.01㎡

建筑面积:484000㎡

容积率:9.65

用地性质:工业用地

楼栋数:1栋A/B/C座、2栋A/B座

产品类型:1栋为研发用房,2栋为宿舍

产权年限:50年(2013.9.18-2063.9.17)

交付时间:现楼

交付标准:毛坯

深圳湾创新科技中心地处南山区科苑南路与高新南十道交汇处,位于深圳市南山高新区南区核心区域,由深圳市属国企世界500强企业深圳市投资控股有限公司开发,深圳湾科技发展有限公司专业运营。项目定位为集科技创新企业研发办公、人才公寓、服务、商业配套等多功能于一体的现代化综合体,以近300米的建筑高度刷新片区城市天际线,入选2022年中国新时代100大建筑,是片区科技园区的新名片。

项目总投资约93亿元,用地面积近4万㎡,由2栋超高层、3栋高层建筑组成,总建筑面积约48万㎡,包括研发用房约27万㎡,宿舍约8万㎡,商业约3万㎡,停车位约1200个(包括246个充电桩)。

项目的研发用房位于2栋A座及B座,以连体双子塔,形成极富人文特色的城市门户界面。在设计理念上,研发用房6-8层、34-36层,通过连廊将两栋独立的塔楼、空中大堂连为一体,除满足双塔办公、中高区换乘的需求外,还为园区企业提供公共休闲交流区。园区地下共有3层,下沉式广场设计,联通整个园区,涵盖地铁、商业街、1200个停车位,以及公共交通接驳功能。

项目拥有13米超高挑空双大堂和6m/s运速双轿厢进口电梯,高效通勤,升级企业商务形象。标准层面积在2400-2700㎡,层高4.2m,可以灵活组合,满足企业的定制化需求。幕墙采用Low-E玻

璃,隔音隔热。双空中连廊提供舒适的休闲空间。高区可俯瞰沙河高尔夫

、深圳湾滨海休闲带,山海稀缺景观一览无余。

交通便利通达

从项目出发,约10分钟可达深圳湾口岸,约15分钟到达太子湾游轮母港及西丽综合交通枢纽(规划中),约20分钟到达福田高铁站,约30分钟到达深圳宝安国际机场。项目与地铁2号线及13号线(在建)科苑站无缝衔接,且自带公交首末站,靠近滨海大道和深南大道,方便触达城市主要生活区、商务区、公园等。

完善区域配套

项目周边环绕深圳湾超级总部基地、前海深港现代服务业合作区、后海金融总部基地、留仙洞总部基地等多个总部集群,持续集聚产业发展核心动力;项目紧邻深圳大学、深圳虚拟大学园、深圳湾公园、红树林生态湿地、沙河高尔夫球场、华侨城,拥有丰富的精英人才资源及生态休闲资源,为企业发展提供优质软性支撑。

优质产业集聚

深圳湾创新科技中心左邻深圳湾创业广场、右拥深圳湾创新广场两大明星服务平台,已形成高科技上市公司研发基地聚集的产业生态,引入字节跳动、冠捷视听、芯海科技等科技类企业和深圳市人才安居集团、担保集团、深重投集团等大型国有企业,同时共享深圳湾科技园区位于南山的9大核心园区产业生态资源,共同在创新链、

人才链、价值链深耕。

(图为入驻深圳湾科技园区部分优秀企业)

活力街区,高效赋能企业

园区的商业主要分布在1栋裙楼负一层至三层,集科技文创、商务服务、餐饮娱乐、时尚乐活等多业态为一体,商务与潮流无缝切换,诠释现代都市全新沉浸式商业体验。目前园区已引进多家连锁品牌店,如星巴克、八合

里牛肉火锅、润园四季椰子鸡、麦当劳、索尼体

验展厅,以及儿童医疗、药店、银行等配套商业。

⭐深圳湾创新科技中心售楼处24小时电话【已认证】

⭐深圳湾创新科技中心售楼处电话:400-909-9980【已认证】⭐⭐⭐

⭐深圳湾创新科技中心售楼中心电话:400-909-9980【已认证】⭐⭐⭐

⭐深圳湾创新科技中心营销中心电话:400-909-9980【已认证】⭐⭐⭐

✅预约来电尊享购房优惠,可预约案场内部销售人员,专业一对一热情服务,让您用专业眼光去买房

✅免责声明:部分信息来源于网络,如果侵权,请联系及时删除,联系电话:400-909-9980

声明:本文由入驻焦点开放平台的作者撰写,除焦点官方账号外,观点仅代表作者本人,不代表焦点立场。