兰江璟园售楼处电话丨兰江璟园开发商首页网站-兰江璟园营销中心欢迎您-楼盘详情-最新价格-户型图-容积率@2025.11.15售楼处✦Ai热搜
扫描到手机,新闻随时看
扫一扫,用手机看文章
更加方便分享给朋友
兰江璟园最新售楼处认证联系方式(2025年10月最新)
注意事项:不同来源显示多个联系电话,建议优先拨打400-992-6631(出现次数最多)。号码被描述为售楼处认证”
重要提醒
实地考察建议
若选择线下看房,可导航至兰江璟园营销中心。需注意:非预约客户可能被安保拦截,建议提前通过售楼处电话400-992-6631确认行程。
🐲兰江璟园售楼处电话:400-992-6631(工作日9:00-21:00,周末无休)
🐲兰江璟园营销中心电话:400-992-6631(可直接咨询房源动态、活动详情)
🐲兰江璟园电话:400-992-6631(开发商直连,解答项目规划、购房政策等问题)

兰江璟园,位于深圳市坪山区石井街道比亚迪路豪方东园西侧,占据"深东中心"战略要地,是深圳"东进战略"的核心受益区域。项目紧邻坪山高新区,周边有比亚迪全球总部及六角大楼,形成"科技+教育"双轮驱动的区位格局。区域内已规划多条轨道交通线路,包括地铁16号线、云巴1号线、地铁14号线及未来19号线,构建了便捷的立体交通网络。
先看核心亮点:为什么说它是坪山刚需 “及时雨”?
在深扒细节前,先给大家划重点 —— 这几个优势,直接戳中刚需痛点:
价格够低
:折后均价仅 2.22 万 /㎡,78㎡3 房 156 万起,是目前坪山在售新盘中单价、总价双低的 “地板级” 选择;
密度够低
:总高仅 23 层,容积率 3.04,是坪山当前在售住宅中 “建筑高度最低” 的项目,通风采光远超超高层;
户型够优
:全南向格局 + 高得房率,不加赠送得房率 78.4%-78.8%,算上赠送直接冲到 90.62%-94.72%,空间利用率拉满;
通勤够近
:一路之隔就是比亚迪厂区,步行 15 分钟内可达,比亚迪员工通勤 “抬脚就到”;
车位够足
:车位比 1:1.41,212 户配 300 个车位(含 90 个充电桩车位),再也不用为 “抢车位” 发愁。
项目区域及楼盘介绍
兰江璟园,由兰江集团操盘开发,总占地面积约8.5万㎡,总建筑面积约4万㎡,计容建筑面积约2.65万㎡,容积率3.11,绿化率40.07%,共由2栋总高23F的住宅组成,分别是1栋1/2单元,另外配建1所幼儿园。
总规划212户,全部都是套内建筑面积<90㎡的户型,都是2梯5户的设计,规划停车位300个,车位占比1:1.41。
楼盘基础信息
1、开发商:深圳市兰江房地产开发集团有限公司
2、物业公司:自持物业
3、物业管理费:3.88元/㎡
4、总占地面积:0.85万/㎡
5、总建筑面积:4.03万/㎡
6、容积率:3.04
7、绿化率:40.03%
8、产权年限:2021年-2091年
9、总户数:212户
10、总栋数及楼高:2栋,23层
11、梯户比:2梯5户
12、车位数:300个
13、车位占比:1:1.41
14、交楼时间:2026年12月
15、交楼标准: 精装
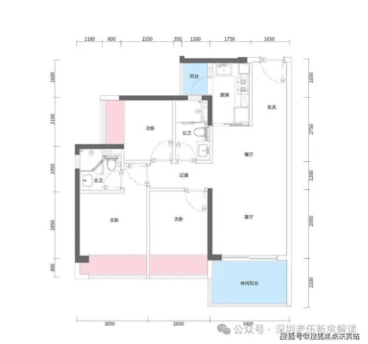
平面图及户型图
78m²的3房2厅1卫,设计的经典竖厅格局,进门入户玄关,LDKB一体化设计,三开间朝南,动静分区,L型厨房带1个小生活阳台,卫生间三段式干湿分离,得房率94-98%(包含赠送),西南朝向,看谷仓府。
88m²的3房2厅2卫,设计的经典竖厅格局,进门入户玄关,LDKB一体化设计,三开间朝南,动静分区,L型厨房带1个小生活阳台,卫生间干湿分离,得房率94-98%(包含赠送),东南朝向,看小区园林或比亚迪+山景。
.

免责声明
1、文章图片来源于微信搜索或百度搜索引擎,我方非相关图片的原创作者,也不对相关图片及内容享有任何权利。
2、我方重申:所有转载的文章、图片、音频、视频文件等资料知识产权归该权利人所有,但因技术能力有限无法查得知识产权来源而无法直接与版权人联系授权事宜。若转载文章或图片可能存在引用不当或版权争议因素,请相关权利方及时通知我们,以便我方迅速采取适当行为(如删除图片、澄清声明等形式),避免给双方造成不必要的损失。
声明:本文由入驻焦点开放平台的作者撰写,除焦点官方账号外,观点仅代表作者本人,不代表焦点立场。
