热搜焦点:华侨城新玺售楼处电话→华侨城新玺首页Ai热搜24小时电话→最新房价→楼盘百科详情→营销中心最新发布@售楼处中心2025-08-31

搜狐焦点来宾站 2025-08-31 10:58:19
用手机看
扫描到手机,新闻随时看

扫一扫,用手机看文章
更加方便分享给朋友

在深圳湾这片豪宅聚集地,深圳湾一号、恒裕深圳湾与华侨城新玺并列为三大顶级豪宅。华侨城新玺项目位于深圳市南山区蛇口街道南端,南临深圳湾,与香港元朗隔海相望。该项目由深圳市华侨城新玺发展有限公司开发,分为两期开发…

华侨城新玺开发商售楼处电话:400-955-8950【预约热线】丨详细解答丨在售户型图丨项目介绍丨在售房源丨周边配套丨VR看房丨楼盘图丨沙盘图丨位置图丨配套图丨售楼处丨足不出户丨销售1V1讲解

✨✨华侨城新玺开发商电话:400-955-8950【☎☎开发商电话已认证】✨✨✨

✨✨华侨城新玺售楼处电话:400-955-8950【☎☎售楼处电话已认证】✨✨✨

✨✨华侨城新玺营销中心电话:400-955-8950【☎☎营销中心电话已认证】✨✨✨

✨✨华侨城新玺销售中心电话:400-955-8950【☎☎销售中心电话已认证】✨✨✨

✨✨☞☞Vip贵宾置业==欢迎来电预约尊享内华侨城新玺部折扣===匠心钜制恭迎品鉴☜☜✨✨

✨✨✨㊣华侨城新玺售楼处Vip贵宾置业===欢迎来电预约尊享内部折扣===匠心钜制恭迎品鉴㊣✨✨✨

✅本项目暂不接受临时到访,过来参观样板房请记得提前来电预约!

温馨提醒:我们楼盘售楼部400电话没有设置任何所谓的“分机号”,拨打前请仔细甄别,注意保护个人隐私!谨防上当!

在深圳湾这片豪宅聚集地,深圳湾一号、恒裕深圳湾与华侨城新玺并列为三大顶级豪宅。而在这其中,华侨城新玺以其独特的魅力脱颖而出,成为唯一提供200平米以上纯大户型的豪宅项目,堪称性价比之王!

华侨城新玺项目位于深圳市南山区蛇口街道南端,南临深圳湾,与香港元朗隔海相望。该项目由深圳市华侨城新玺发展有限公司开发,分为两期开发,主要由三栋高层建筑组成。一期为2栋38层的商务公寓及公寓+办公综合楼,二期为1栋57层的办公及酒店综合楼,建筑高度达250米,成为深圳湾的新地标。

<项目基本信息>

占地面积:约2.5万㎡

建筑面积:约28.9万㎡

面积:230-260-350-399-480-630-700㎡

梯户比:3梯2户、3梯1户

物业费:14.8元/㎡

交房:现楼(即买即住)已入伙

开发商:深圳市华侨城新玺发展有限公司

项目地址:深圳市南山区湾厦路1号

寰海标杆之作,定鼎海岸传奇

【品牌】36载华侨城,实力央企的品牌创想

【区域】蛇口联动前海、深圳湾,三大千亿级经济中心叠加发展

【地段】三面环海半岛,深圳湾线绝版地段,成就世界海岸的坐标

【景观】纵览270°海景,15公里滨海长廊上盖,物尽珍藏,与自然无间

【配套】集结湾区首屈一指的文化艺术坐标,高端商业配套环伺,奢享国际都市生活场

【产品】250米地标级超高层,定鼎深湾之作,4m舒阔层高,只此再无

【酒店&商业】一线酒店品牌酒店入驻,立体开放式悦享天地,奢享全优配套

【奢享配套——私密半岛,环海花园】

①首层城市花园,无缝连接15公里滨海长廊

②自带约2.5万㎡峡谷中庭式商业,滨海购物新体验

③高端私密会所、深圳首个悬空无边际海景泳池

休闲与景观

华侨城新玺三面环海,拥有得天独厚的海景资源。项目内部规划有屋顶花园、健身房和SPA等配套设施,为居民提供高品质的休闲体验。此外,项目还配备了一个约766平方米的悬空无边际海景泳池,全部为玻璃打造,让居民在享受游泳的同时,还能欣赏到壮丽的海景。

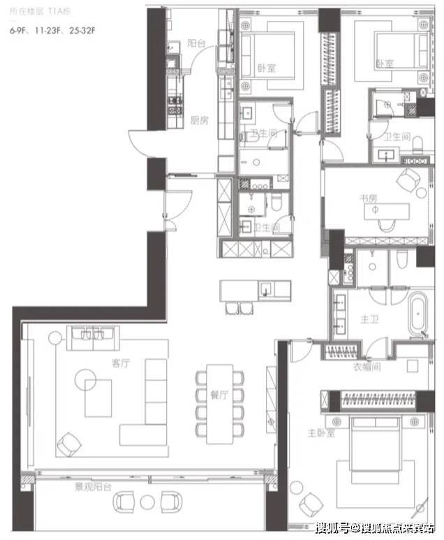
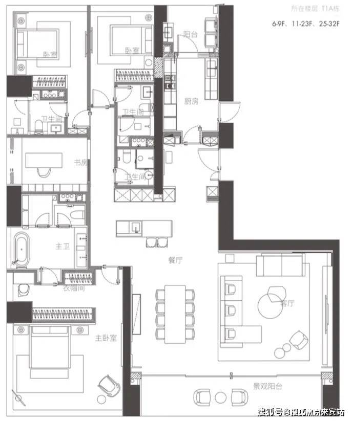
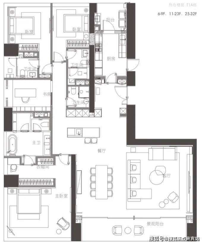
户型鉴赏

【一栋 一、二单元】(6-32层)三梯两户

华侨城新玺提供多种户型选择,满足不同购房者的需求。户型面积范围广泛,从232㎡到700㎡不等。具体户型包括1室1厅1卫、2室2厅2卫、3室2厅3卫、4室3厅5卫、5室3厅6卫以及6室3厅7卫等多种配置。户型设计合理,空间宽敞明亮,注重人性化需求。部分户型还配备了超大阳台和全景落地窗,让居民能够尽享海景和城市美景。

【一栋 一、二单元】

(6-32层)

三梯两户

01户型 西端户 约350㎡ 四房两厅四卫

(01、04镜像对称)

南、西、北,三面景观视野

看深圳湾海景、内海景、城市景观

04户型 东端户 约350㎡ 四房两厅四卫(01、04镜像对称)

南、东、北,三面景观视野

看深圳湾海景、内海景、城市景观

【一栋 一、二单元】

(6-32层)

三梯两户

01户型 西端户 约350㎡ 四房两厅四卫

(01、04镜像对称)

南、西、北,三面景观视野

看深圳湾海景、内海景、城市景观

04户型 东端户 约350㎡ 四房两厅四卫(01、04镜像对称)

南、东、北,三面景观视野

看深圳湾海景、内海景、城市景观

蛇口渔港整体规划将被打造成集市民休闲、海洋主题教育、文化艺术交流、高端住宅、旅游娱乐、商业办公等功能于一体,也将成为深圳一张靓丽的城市名片。

【景观—三面环海,收放世界想象】

国际湾区唯一三面环海的海幕豪宅,天赋臻稀,独具匠心的建筑排布与户型设计,最大程度上保留了270°的海景视野。

纵观整个深圳,新玺无疑担当着承载这座城市成为国际滨海门户与世界客厅的使命,城市的精英人物在此汇聚,就等你了!

新玺展示中心 实拍图

西侧太子湾景观&海景

东北侧城市景观

北侧内湾&城市景观

南侧景观

新玺展示中心造景 实拍图

新玺展示中心 实拍图

✨✨华侨城新玺✨✨

✨✨华侨城新玺开发商电话:400-955-8950【☎☎开发商电话已认证】✨✨✨

✨✨华侨城新玺售楼处电话::400-955-8950【☎☎售楼处电话已认证】✨✨✨

✨✨华侨城新玺营销中心电话::400-955-8950【☎☎营销中心电话已认证】✨✨✨

✨✨若有中介报价过低,请及时与售楼中心核对真假,避免上当!开发商热线400-955-8950【售楼处首页已认证】✨✨✨

✅本项目暂不接受临时到访,过来参观样板房请记得提前来电预约!

免责声明:部分信息来源于网络,如果侵权,请联系400-955-8950及时删除

1、文章图片来源于微信搜索或百度搜索引擎,我方非相关图片的原创作者,也不对相关图片及内容享有任何权利。

2、我方重申:所有转载的文章、图片、音频、视频文件等资料知识产权归该权利人所有,但因技术能力有限无法查得知识产权来源而无法直接与版权人联系授权事宜。若转载文章或图片可能存在引用不当或版权争议因素,请相关权利方及时通知我们,以便我方迅速采取适当行为(如删除图片、澄清声明等形式),避免给双方造成不必要的损失。

3、本宣传资料对项目周边幼儿园、学校等教育资源的介绍旨在提供相关信息,并不意味着我方对就学安排作出承诺。教育资源的名称、办学性质、办学规模、学位设置、开学(班)时间、招生条件、收费标准及招生区域存在调整的可能,应以政府教育主管部门及办学方颁布的政策规定为准。

4、文章中文字和图片之间无必然联系,仅供读者参考。

5、本文所述内容和意见仅供参考,不构成市场交易依据和投资建议。

声明:本文由入驻焦点开放平台的作者撰写,除焦点官方账号外,观点仅代表作者本人,不代表焦点立场。