深圳湾公馆(售楼处)首页网-2025- 深圳湾公馆营销中心(售楼处中心)欢迎您-周边环境-户型-价格-地址-楼盘详情-户型配套-售楼处电话-容积率

搜狐焦点来宾站 2025-08-31 11:52:55
用手机看
扫描到手机,新闻随时看

扫一扫,用手机看文章
更加方便分享给朋友

详情咨询/预约看房热线☎:400-969-0396【售楼处已认证】 深圳【 深圳湾公馆】售楼处电话☎:400-969-0396【售楼中心电话】 ▼▼Vip贵宾置业====欢迎来电预约尊享内部折扣====匠心钜制恭迎品鉴

详情咨询/预约看房热线☎:400-969-0396【售楼处已认证】

深圳【 深圳湾公馆 】售楼处电话☎:400-969-0396【售楼中心电话】

▼▼Vip贵宾置业====欢迎来电预约尊享内部折扣====匠心钜制恭迎品鉴

深圳湾公馆(别名:城脉深圳湾公馆)位于南山区后海大道与东滨路交汇东北角,紧邻全球十大总部之一的深圳湾超级总部基地,周边拥有150万㎡顶级商业、全龄段名校等优渥配套资源。同时还占据“海、陆、空、轨”四维交通体系,深圳湾口岸、太子港、深圳湾机场、香港机场、后海大道、东滨路等“5纵3横”主干道、蛇口线等4地铁均环伺在侧,营造优越之上的湾区生活。

项目基本信息

开发商:广东城脉地产有限公司

项目名称:深圳湾公馆

坐落位置:深圳市南山区后海大道与东滨路交汇处(北师大南山附中旁)

楼盘占地面积/总建筑面积:3000平方米/37000平方米

土地性质:商品房

土地使用起止年限:2010年至2080年

房屋类型:住宅

绿化率:30%

车位配比率:1:1(地下四层)

售楼中心电话:4008368707

楼层:49层,总215户。(套层高5.7米,2.9/2.8米)

交楼时间:现房

物管公司:深圳市物资物业管理有限公司

学区:北师大附中,附小

区域介绍

中国特色社会主义先行示范区

粤港澳大湾区核心引擎,大湾区城市群NO.1

深圳湾超总基地,核心中的核心

百亿级企业总部汇聚

毋庸置疑的经济驱动力

区域价值

粤港澳大湾区核心引擎,大湾区城市群NO.1

深圳湾超总基地,百亿级企业总部汇聚

毋庸置疑的经济驱动力

城脉控股,沿袭深圳的创新基因与领潮精神,于南山之滨,湾区之心,力献一座突破传统的经典作品—深圳湾公馆,于2020年获封CTBUH权威认证“深圳最高纯复式住宅”。在建筑与空间、品牌与智能、生活与服务等层面,深圳湾公馆售楼处电话:4008368707,依照国际新派人士的前沿视野与个性审美而定制,在湾区天际线上,呈现了充满无限可能的复式生活方式。

以建筑美学诠释生活美学

·150米人居地标 傲占山海盛境

品质是建筑的精神,更是恒久的价值。历经国际设计团队AECOM七轮方案调整,深圳湾公馆最终确定为独具特色的L型建筑,以150米地标级高度屹立深圳湾。深圳湾公馆售楼处电话:4008368707,北观塘朗山脉及海岸城商圈繁华景观,南望深圳湾和香港的山景,西南俯瞰大南山翠绿山景与蛇口海港,东南直面深圳湾与跨海大桥,东临深圳湾海景和总部基地。一湾繁华、山海盛境,都化作业主的日常窗前风光。

而同时,独特的L形态最大程度地保证了每一户的通风、采光与景观面,让清风阳光与建筑有了更多的来往,也让山海城的景观视野恢弘无遮挡。

商业配套:深圳湾万象城|万象天地|来福士广场|海岸城|海上世界|天虹君尚等繁华一站式商业

人文配套:15公里滨海休闲长廊|深圳湾超级总部基地|深圳湾文化广场|深圳湾大街|深圳歌剧院

周边学校:按目前学区划分范围来看,小学属于北师大南山附属小学、中学属于北师大南山附中

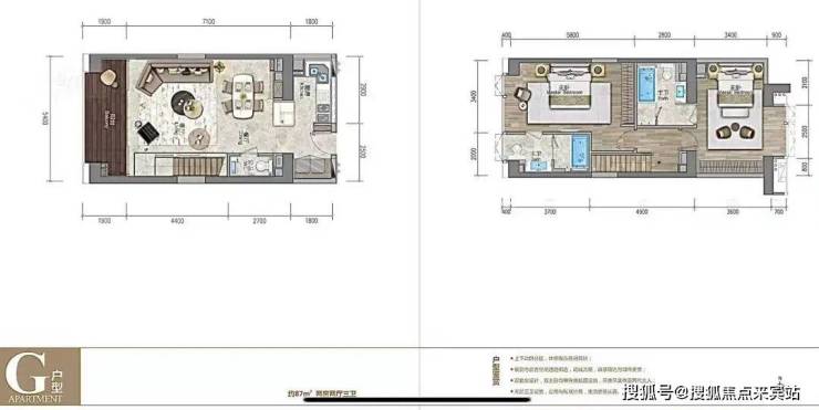
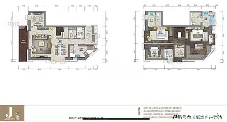
户型鉴赏

【产品推荐】(纯复式,层高5.7米。一层2.9米,二层2.8米)

79㎡复式三房两厅三卫

南北通透,5.4米大开间,复式下层餐厨客厅连宽景阳台,另带一个法式小阳台。深圳湾公馆售楼处电话:4008368707,复式上层私密卧房全明采光,动静分区私享个性生活。另一个次卧带衣帽间。

88㎡复式三房两厅三卫 南北通透,5.4米大开间,复式下层餐厨客厅连宽景阳台,复式上层私密卧房全明采光,动静分区私享个性生活。

88㎡复式三房两厅三卫

双向通透采光,5.4米开间客厅及主卧,双套房周全设计,室内多变空间可根据家庭需要设置独特的功能。

113㎡复式三房两厅三卫+工人房

南北通透三面景观,5.6米客厅与主卧开间,独具品位,尽享奢阔。

152㎡复式三套房两厅四卫+双功能房

双向通透三面采光,尽赏深圳湾景观,6.3米开间,三套房设计,两间多功能房满足个性化使用。

装修:带德意一线品牌精装修

-4至-1层:地下停车库

1层:是“私享名车荟”,业主可以享受宾利、劳斯莱斯等名车的一键预约出行,已经深港保姆车接送往返港深!

2至4层:高端酒店

5层:有25米长的恒温泳池、健身房、咖啡阅读空间等

咨询楼盘详情

详情咨询/预约看房热线☎:400-969-0396【售楼处已认证】

深圳【 深圳湾公馆 】售楼处电话☎:400-969-0396【售楼中心电话】

▼▼Vip贵宾置业====欢迎来电预约尊享内部折扣====匠心钜制恭迎品鉴

免责声明:本文部分内容来自网络,如无意中侵犯了某方的知识产权,告之即删。

声明:本文由入驻焦点开放平台的作者撰写,除焦点官方账号外,观点仅代表作者本人,不代表焦点立场。