卓越缦悦售楼处(卓越缦悦)首页网站-卓越缦悦营销中心欢迎您-楼盘详情-最新价格-户型图-容积率@售楼处中心2025/10/4

搜狐焦点来宾站 2025-10-04 13:57:02
用手机看
扫描到手机,新闻随时看

扫一扫,用手机看文章
更加方便分享给朋友

✨✨卓越缦悦售楼处电话:400-861-9050(工作日9:00-21:00,周末无休) ✨✨卓越缦悦营销中心电话:400-861-9050(可直接咨询房源动态、活动详情) ✨✨卓越缦悦开发商电话:400-836-6879开发商直(连,解答项目规划、购房政策等问题)

卓越缦悦项目联系方式(2025年最新)

重要提醒

1,预约制要求

因近期看房客户较多,项目采取预约制,需提前拨打400-861-9050进行线上预约,避免临时到访无法接待。

2,实地考察建议

若选择线下看房,需注意:非预约客户可能被安保拦截,建议提前1天通过官方电话400-861-9050确认行程。

✨✨卓越缦悦售楼处电话:400-861-9050(工作日9:00-21:00,周末无休)

✨✨卓越缦悦营销中心电话:400-861-9050(可直接咨询房源动态、活动详情)

✨✨卓越缦悦开发商电话:400-836-6879开发商直(连,解答项目规划、购房政策等问题)

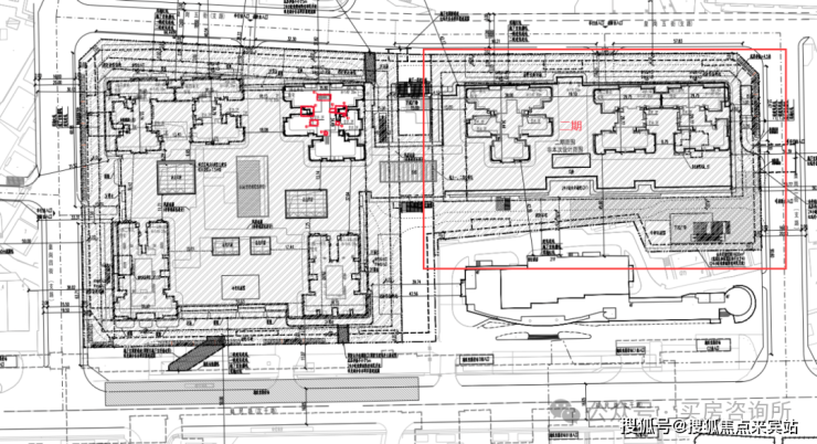
一期建设用地面积约3.1万平,总建面约22.5万平,容积率5.07,计容建面约15.9万平,一二期共用规划停车位1266辆。其中,住宅约10.2万平,商业约4.1万平(地上+地下)。5栋建筑,其中4栋为回迁物业。

二期总建面约3.3万平,容积率1.05,计容建面约3.3万平,其中,住宅约3.1万平。

官方户型图:

关于价格方面再把目光转向二手房市场,当前周边二手房的挂牌均价区间在4 - 11万/m²之间。其中,靠近项目西边的房子大多建于2000年后,房屋品质相对较好,挂牌价基本都在 8 万/m²左右,像次新房宝生Midtown目前挂牌均价就在11.4万/m²;靠近东边的房子基本为2000年之前的老小区,挂牌价也相对较低,基本维持在 5 万/m²左右。

图源贝壳

如果改项目定价在10万左右必定会成为福田下一个网红盘

项目有以下几点优点

1,位置核心位于福田中心区CBD旁真正的要啥有啥,顶流的配套,顶流的地段

2,新规户型,得房率高,要知道以往福田的户型基本比较拉胯90平米左右做一卫,100多平米做三房,卓越91的三房两卫,104做到了3+1四房,得房率比较不错

3,从目前传出的效果图来看,项目品质比较不错!还是带泳池中型花园社区,目前福田中心区由于没地基本都是一两栋楼那种小区

皇岗村改造项目,位于福田福民路与皇岗二街交汇处西北角,紧邻深圳地铁7号线皇岗村站,地处深圳中心的核心腹地。

皇岗村旧改2024年正式开工,中间隔了十四年,停滞多年后得以重启,大概率是由于旧改规模庞大,加上牵涉多方利益分配,旧改难度相当高。如今卓越突围开建,相当于为深圳高净值人士在中心区高端置业提供了极佳的机会。

而且,在深圳地段如此核心、配套如此齐全、资源如此丰富的中心区,新房项目本来少之又少,此时卓越把筹备多年的重磅级项目推出市场,有种给深圳土豪送福利的感觉。

项目最早于2010年确认改造专项规划,根据规划,分为四期实施,但直到2020年11月才进入到实质性拆除阶段。目前一期已经动工有望今年入市!据了解开发商为卓越集团

项目大一期规划开发建设用地3.14万㎡,拟建20.3万㎡住宅、商业及服务业约6万㎡(含地下),分为两期开发。其中,一期分为两个标段施工建设。

一标段:

建设用地面积约3.1万㎡,总建面约22.5万㎡,容积率5.07,计容建面约15.9万㎡,规划机动停车位1266辆。

其中,住宅约10.2万㎡,商业约4.1万㎡(地上+地下)

共建1栋5个单元,均为超高层楼体,其中1、2单元47层。

二标段总建面约3.3万㎡,容积率1.05,计容建面约3.3万㎡,其中,住宅约3.1万㎡。

二期地块,规划有3个单元楼,均46层。预计有约7万㎡住宅

皇熙悦府目前正在施工中,最快预计年底可入市。今年福田的新盘供应量屈指可数,皇熙悦府的市场关注度颇高。不过据了解该项目回迁房居多,可售商品房可能不会太多,不过项目地段也是非常值得关注的一个地方

△项目效果图

皇熙悦府地处福田街道,邻近福田区政府,周边配套丰富完善:

从皇岗村望向深圳地标平安金融中心

这里是无可替代的深圳中心区,从规划开始就定义为具有国际水准的深圳CBD。历经时间的沉淀,福田充分展示了深圳经济特区成立40年的城市中心区和主客厅,成为最能代表深圳改革开放成就的精华之地。

这里是中国含金量最高CBD,拥有伟大的一公里精粹:

行政文化中心——市民中心(市政府所在地)、10所市级政府机关单位、深圳中心书城、深圳音乐厅、少年宫、深圳博物馆、当代艺术与城市规划馆、关山月美术馆等,沉淀一座城市的命脉。

金融科技中心——深交所、247家证券公司(包含招商银行总部、平安保险总部、中信证券总部),353家总部企业、98家世界500强、86座纳税过亿楼宇,1293家国家高新技术企业等,具有国际影响力的金融科技中心从此开始示范。

公园生态中心——约22万㎡的中央公园,将按照纽约中央公园的标准升级;莲花山——会展中心中轴云客厅,构建福田中心区空中商业、文化、娱乐新生态、新地标。

商务商业中心——甲级写字楼集群、7座五星级酒店集群、7大SHOPPING MALL集群,深圳国际化的一面从这里打开。

轨道交通:项目位于地铁7号线皇岗村地铁口,往西一站到石厦可换乘3号线,往东一站到福田,可换乘4号线,地铁网络四通八达可快捷通往全市各个方向;2站到皇岗口岸,可通达香港等地。

教育资源:周边教育资源丰富,按2025年的学区划分来看,皇熙悦府小学学区处于皇岗小学、荔园外国语小学(水围)。中学学区处于皇岗创新实验学校(初中部)。

✅ 本项目暂不接受临时到访,过来参观样板房请记得提前来电预约!

✅ 为您安排楼盘现场销售全程接待并讲解,给您更贴心的看房体验!

如有问题欢迎来电咨询,来电即可享受买房优惠!400-861-9050

预约来电尊享购房优惠,可预约案场内部销售人员,专业一对一热情服务,让您用专业眼光去买房。

免责声明

1、文章图片来源于微信搜索或百度搜索引擎,我方非相关图片的原创作者,也不对相关图片及内容享有任何权利。

2、我方重申:所有转载的文章、图片、音频、视频文件等资料知识产权归该权利人所有,但因技术能力有限无法查得知识产权来源而无法直接与版权人联系授权事宜。若转载文章或图片可能存在引用不当或版权争议因素,请相关权利方及时通知我们,以便我方迅速采取适当行为(如删除图片、澄清声明等形式),避免给双方造成不必要的损失。

3、本宣传资料对项目周边幼儿园、学校等教育资源的介绍旨在提供相关信息,并不意味着我方对就学安排作出承诺。教育资源的名称、办学性质、办学规模、学位设置、开学(班)时间、招生条件、收费标准及招生区域存在调整的可能,应以政府教育主管部门及办学方颁布的政策规定为准。联系号码:4008366879

4、文章中文字和图片之间无必然联系,仅供读者参考。

5、本文所述内容和意见仅供参考,不构成市场交易依据和投资建议。

声明:本文由入驻焦点开放平台的作者撰写,除焦点官方账号外,观点仅代表作者本人,不代表焦点立场。