华发院子(华发院子营销中心)首页网站-华发院子售楼处-华发院子欢迎您-楼盘详情-最新价格-户型图-容积率@售楼处

搜狐焦点来宾站 2025-06-04 15:41:04
用手机看
扫描到手机,新闻随时看

扫一扫,用手机看文章
更加方便分享给朋友

华发院子,是继华发山庄之后,华发升级迭代的新中式别墅产品。③18套临河独栋(近三亩一栋),其中10套地上建筑面积约为330㎡、8套地上建筑面积约为360㎡,地下建面约420~490㎡,花园面积约1300㎡,加…

🔘华发院子售楼处电话:400-832-8772【售楼处已认证】

🔘华发院子开发商电话:400-832-8772【售楼处已认证】

✅ 为您安排楼盘现场销售全程接待并讲解,给您更贴心的看房体验!

🔘华发院子营销中心电话:400-832-8772【售楼处已认证】

🔘华发院子展示中心电话:400-832-8772【售楼处已认证】

☞☞Vip贵宾置业==欢迎来电预约尊享内部折扣===匠心钜制恭迎品鉴☜☜

✅ 过来参观样板房烦请记得提前来电预约!

华发院子,是继华发山庄之后,华发升级迭代的新中式别墅产品。项目位于珠海西部中心城区,北靠又一城、南望黄杨河!小区整体三面环水,享水郡省级湿地公园天然大氧吧。联袂名家共同打造,融合了传统中国元素及岭南特色文化,打造出来极具品质的标杆新中式院墅.

项目名称:华发院子

开发商:珠海华郡房产开发有限公司

物业类型:别墅

占地面积:89466㎡

建筑面积:35832㎡

容积率:0.4

竣工时间:预计2024-12-31

物业公司:华发物业服务有限公司

项 目 产 权 | 70年

阅遍世界之后的人生,需要的其实不多,唯一方院落即可。

可部分传统墅居产品,邻里间院子隐私性有所缺失,同时通风采光有时候无法层层兼得。

由此,华发院子户户高门阔府,双拼也能拥有独门独院,实现真正的私属生活。

| 院子实拍

院墅地上三层,层层立体独立阔绰空间,与此同时,几乎每一层都带有露台,全优采光通风,阳光温煦中,清风拂面,美景如画,好不惬意。

清晨,在庭院品一壶热茶;午后,在后花园享受阳光浴;傍晚,与家人在星空露台共话家常,享受到「俯仰天地」的墅居体验。

| 院子室内实拍

懂行的人都知道,别墅地下层可以营造茶室、娱乐区等美好生活的愿望,但真正使用起来,最大问题莫过于采光不足。

在华发院子,完全无需担心这个问题。作为近两年的全新别墅产品,华发院子打造出创新式的阳光下沉庭院,地下室与阳光基本没有界限,自然和房子,互相生长。

| 院子负一层实拍

底子有了,里子也有了,这才是真别墅居住格局,华发院子给予家族生活的每一位家庭成员足够的尊重。

华发院子

地上面积约140㎡双拼户型臻席递减

总价470万起,卖一套少一套

随着楼市利好政策的不断出台

现在是进阶理想墅居的最佳时机

项目占地8.9万㎡,计容建面3.6万㎡,容积率仅0.4。

共201栋别墅产品,分别是:

①130套双拼,地上建筑面积约140㎡,地下建筑面积约210~280㎡,花园面积约125~175㎡,加赠送总使用面积600㎡起;

②53套雅士独栋,地上建筑面积约210㎡,地下建筑面积约330~400㎡,花园面积约250㎡,加赠送总使用面积1000㎡起;

③18套临河独栋(近三亩一栋),其中10套地上建筑面积约为330㎡、8套地上建筑面积约为360㎡,地下建面约420~490㎡,花园面积约1300㎡,加赠送总使用面积约2100㎡起。

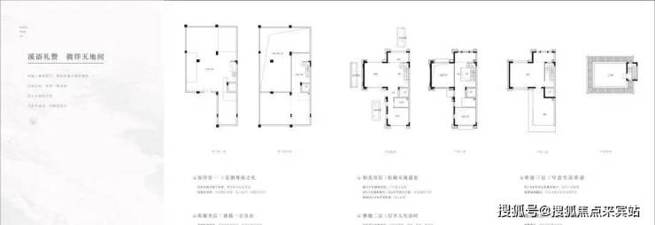
【天地之美 一院鉴赏】

约140㎡溪语——双境雅墅

建筑面积约350-420㎡

溪语礼赞 徜徉天地间

▍双车位独立地下车库设计

▍5.8米地下层高,多元功能空间随意打造

▍约123㎡大庭院,休闲小憩观景

▍约6.2米挑高客厅,约4米开间大尺度

▍约7.8米开间主卧套间设计,独享阔绰露台

约209㎡风吟——奢境独院

建筑面积约530-610㎡

行山问水 且听风吟

▍三车位独立地下车库,约5.8米地下层高

▍约330-380㎡地下空间规划

▍约254㎡开放式围合庭院

▍首层约4.6米开间、6.7米宽厅,客餐厅一体

▍约7.2米开间主卧搭配露台,自在休闲娱乐空间

约329㎡悦澜——奢境河院

建筑面积约750-790㎡

千秋藏于此 人生悦观澜

▍整期产品仅18套,一线河景,超大庭院,绝版稀缺大独栋

▍配置四车位,约420-460㎡地下室,采光充足

▍首层约7米挑高,约6.4米大比例开间客厅

▍二层私享卧室套间,独立卫浴衣帽间

▍三层约6.4米奢华主卧,三大露台,独享一线河景

珠海华发院子140㎡户型实景图

交通方面:华发院子,位于西城核心区域,临近双湖桥。衔接金湾华发商都仅需10分钟行程;通过洪鹤大桥可40分钟内到达横琴或拱北口岸。

商圈方面:自带华发又一城约2.5万㎡自持商业——华发新天地商业街,华润万家、阅潮书店、一得便利店等品牌进驻,新型农贸市场和电影院已经与商业街签约为华发又一城业主打造成熟大城享受,实现“楼上居住楼下购物”一站式吃喝玩乐的精彩生活

教育方面:华发又一城,择址西城教育高地,斗门容闳国际幼稚园、斗门容闳学校、珠峰实验学校、斗门实验二小四名校环伺,12年一站式菁英教育护航。家门口读名校,这正是华发又一城一次又一次创造热销传奇的大城自信。

生态休闲:华发院子,周边设有湿地公园这样的公共场所,更有被称之为“斗门情侣路”的黄杨河畔。其独享约3.3公里黄杨河河岸线,周边环绕超1000亩省级湿地公园,背靠逾170公顷尖峰山森林公园,整个小区宛如长在一座巨大的天然氧吧中

医疗方面:华发院子,项目的医疗资源同样齐备,毗邻遵义医科大学第五附属珠海医院、妇幼保健院、珠海同和医院等,另外西部医疗中心更可满足未来综合性医疗需求,也为每一个孩子的健康成长保驾护航。

🔘华发院子售楼处电话:400-832-8772【售楼处已认证】

🔘华发院子开发商电话:400-832-8772【售楼处已认证】

✅ 为您安排楼盘现场销售全程接待并讲解,给您更贴心的看房体验!

🔘华发院子营销中心电话:400-832-8772【售楼处已认证】

🔘华发院子展示中心电话:400-832-8772【售楼处已认证】

☞☞Vip贵宾置业==欢迎来电预约尊享内部折扣===匠心钜制恭迎品鉴☜☜

✅ 过来参观样板房烦请记得提前来电预约!

免责声明:本文如无意中侵犯了某方的知识产权告知即删,部分内容图片可能来源于网络,无法核实其真实出处,如涉及侵权请联系本网站删除!!

声明:本文由入驻焦点开放平台的作者撰写,除焦点官方账号外,观点仅代表作者本人,不代表焦点立场。