鸿荣源珈誉玖玺售楼处- 2025最新房价丨在售户型详解丨项目详情丨营销中心
扫描到手机,新闻随时看
扫一扫,用手机看文章
更加方便分享给朋友
✅购房困惑?专业帮您!🎯
专属房产顾问一对一精准服务(直连开发商)
【鸿荣源珈誉玖玺】营销中心电话:400-873-0112【售楼处电话已认证】
丨楼盘位置丨户型介绍丨房源情况丨优惠活动丨教育资源丨交通便利丨样板间展示丨社区环境丨交房标准丨周边配套
【珈誉玖玺 爆款上新 户户绝美景观】
全新7栋震撼登场 看山/湖/海/商业/园林
‼明星王牌户型 首发即绝版 价格仅限加推当天‼
约109㎡双龙抱珠四房,折后单价约5.1-5.28万/㎡,折后总价约557-576万
约98㎡南北通大横厅三房,折后单价约4.56-4.86万/㎡,折后总价约448-477万
约94㎡南向性价三房,折后单价约4.52-4.79万/㎡,折后总价约427-452万
‼7栋青龙正位,3梯5户,户户绝美观景‼
南向内看花园全景、远眺湾区海景
南向外看凤凰山景、立新湖景
北向外看"湾区壹方"商业地标
【新品户型鉴赏】
约109㎡4房绝版双龙抱珠
折后单价约5.1-5.28万/㎡,折后总价约557-576万,价格仅限加推当天‼
‼整个珈誉大城约8000套房中唯一的44套,首发即绝版,双龙抱珠,端头位独门独户,享玖玺最长景观视距。
‼360°全明采光,入户长飘窗,客厅及全部卧室均南向看园林,双主卧L型飘窗,全明采光+全览景观,风水上位,玖系王牌户型。
【新品户型鉴赏】
约98㎡3房南北通大横厅 约93%实用率
折后单价约4.56-4.86万/㎡,折后总价约448-477万,价格仅限加推当天‼
‼06户型是整个珈誉大城约8000套房中唯一的44套,首发即绝版,超强双面采光,客餐厅约8米超长飘窗,6开间全朝南看园林全景,高区可看湾区海景、凤凰山景、立新湖景。
‼01户型是珈誉大城稀缺明星户型,全屋三朝向全明采光,完美动静分区,爆款户型应市限量补货。
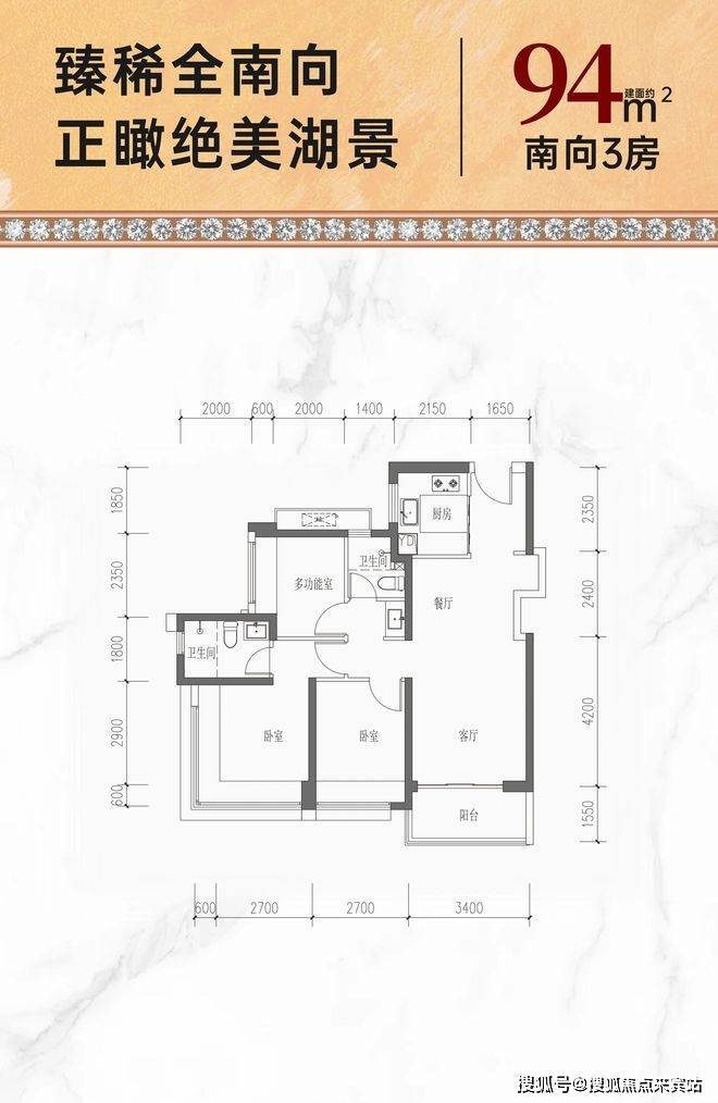
【新品户型鉴赏】
约94㎡经典3房南向高性价
折后单价约4.52-4.79万/㎡,折后总价约427-452万,价格仅限加推当天‼
‼经典3房2卫,东南朝向,户型实用,空间阔绰,超高性价比!主卧270°采光,西南向可看园林全景、湾区海景,东南向可看凤凰山景、立新湖景。
【热销户型鉴赏】建面约75㎡-199㎡全能3-4房
基本信息:
【占地面积】:约4.8万㎡
【园林面积】:约2.9万㎡
【户型产品】:约75-199㎡3-4房全面户型
【本次新品】:约109㎡双龙抱珠奢阔4房/
约98㎡南北通大横厅3房/约94㎡南向性价3房
【装修情况】:带装修交付
【产权年限】:70年(2022.5-2092.5)
【项目地址】:深圳·宝安大道和凤塘大道交汇(11号线塘尾站)
【玖畅·地铁直连 通达全城】
✅下楼即达地铁口:门口连廊直连地铁11号线(主体已建成),距离地铁口更近,畅享都市便捷生活 ;
✅家门口即11号线塘尾站:6站宝中、7站前海、9站后海、11站车公庙,便捷通达南山、福田核心片区。
【玖繁·百亿商业 咫尺繁华 】
✅下楼即享商业:百亿超级商圈,定鼎西部新中心 ,湾区最大穹顶“凤冠天幕”结构已完成,外立面已显现。
鸿荣源打造又一【湾区城市级购物中心】
约50万㎡“湾区壹方”商业,沿用壹方商业大师级运营团队自持运营!
城市超级奥莱定位,对标国际知名奥莱Mills,定义湾区城市级商业新模式!
【玖汇·全维配套集萃】
周边环绕万丰湖湿地公园、立新湖公园、凤凰山森林公园等,悠然享受城市森意;
近新桥文体中心、沙井文体中心(建设中),高标人文配置,悦享品质生活。
【玖遇·围合式艺术大园林】
约2.9万㎡舒居艺术大园林,围合式布局,最大楼间距约161米;
以西班牙著名画家《记忆的永恒》为灵感,打造超现实主义花园,多重梦境空间。
【玖享·全龄双泳池 礼遇归家礼仪轴线】
♀配备全龄子母双泳池、亲子乐园、交流花园,构建全龄活动功能配套,主出入口列阵式礼仪轴线,体现归家仪式感,品质尊崇感。
【玖铸·实力房企 品牌保障】
鸿荣源,城市地标缔造者,与城市共荣;
汇集鸿荣源34年匠心精铸,传承“玖”系精工品质,携超能标杆钜作,献礼湾区;
2015年至今,地产开发销售额累计逾1000亿,累计服务客户逾4万户 ;
打造了前海鸿荣源中心、壹方玖誉、壹成中心、香蜜湖熙园等标杆项目。
【玖品·高端物业 共筑美好生活】
鸿荣源物业,国家物业管理一级资质企业,致力于做中国高端物业专属服务的先行者,实现客户对美好生活的向往,中国物业服务品牌100强,粤港澳大湾区物业服务综合实力50强。
🏅关于本最新动态信息,如:房价,主力户型面积,最低折扣,等等,剩余户型楼层,去化率,几号地铁哪个地铁口,周边规划,项目的优劣势以及学校的配套等等都可以致电售楼处进行了解,我们将会安排内场专业置业顾问为您答疑解惑!
✅ 所有疑问,一通电话全解决!
🎯 内部置业顾问VIP解答,独家优惠仅限来电客户!
📞 24小时热线,黄金时段优先安排!
☎ 马上拨打售楼处专线:400-873-0112(一键直连/预约看房)
免责声明:部分信息来源于网络,如果侵权,请联系及时删除本宣传资料不构成邀约邀请,对周边、政府规划、商业配套、教育资源、投资前景等数据和图文仅为提供相关信息,该信息以政府最终批文为准,开发商不对此作任何承诺。买卖双方的权利义务以双方签订的买卖合同约定及附件、实际交付为准,本公司保留对宣传资料修改的权利,敬请留意最新资料。联系号码:400-873-0112。
声明:本文由入驻焦点开放平台的作者撰写,除焦点官方账号外,观点仅代表作者本人,不代表焦点立场。
