首页热搜:富通九曜公馆售楼处电话→富通九曜公馆Ai热搜24小时电话接听→2025最新房价→楼盘百科详情→销售发布@售楼处中心

搜狐焦点来宾站 2025-10-09 10:13:00
用手机看
扫描到手机,新闻随时看

扫一扫,用手机看文章
更加方便分享给朋友

⭕富通九曜公馆售楼处24小时电话:400-993-0692【☎☎售楼处已认证】 ⭕富通九曜公馆售楼中心24小时电话:400-993-0692☎☎售楼中心已认证】 ⭕富通九曜公馆开发商售楼部24小时电话:400-993-0692☎☎售楼中心已认证】

⭕【富通九曜公馆售楼处&营销中心@诚邀雅鉴】

⭕富通九曜公馆售楼处电话: 400-993-0692☎☎开发商已认证

⭕富通九曜公馆营销中心电话: 400-993-0692☎☎营销中心已认证

⭕富通九曜公馆售楼中心电话: 400-993-0692☎☎24小时预约热线

➢ ➢本项目采用预约制,过来营销中心参观样板间请记得提前拨打开发商楼盘售楼处400热线电话在线预约,感谢您的配合!

项目名称:富通九曜公馆

开发商:富通新光房地产开发有限公司

项目地址:福田区新沙路18号

占地面积:约1.7万㎡

总建筑面积:11.8万㎡

建筑类型:住宅、公寓,幼儿园 商业裙楼

物业公司:世邦魏理仕

物业费:住宅8.3/平/月公寓:9.9元

楼栋数:4栋

总户数:1387户

产品面积段:住宅:96-116-121㎡-360㎡公寓:245-337㎡ 3-4房665㎡顶复

梯户比:1栋2单元4梯6户,46-56层2梯2户,3单元公寓2梯3户

容积率:7.05

绿化率:30%

使用率:75%

车位比:1360 1:1

楼层:上舍21层,2单元41层-3单元59层

层高:3.15m 公寓:3.6米 住宅大户型3.4米

交楼时间:现楼

交付标准:毛坯

产权年限:70年(2018-88年)

房屋用途:住宅 公寓

学位: 明德实验五洲校区, 贝赛思双语学校

项目实体

园区环境

【品质立面,200米地标城市综合体】

外立面为玻璃+铝材类幕墙体系,豪宅才配备的旭格进口系统门窗,完美实现隔热、隔音、降噪。

【深圳首个网红地标配套“全悬空空中连廊+空中透明无边泳池”】

100M高空打造全悬挑空中连廊,空中透明无边际泳池,整个连廊敞开面对公园方向,将高尔夫公园景观和城市景观尽收眼底。

【奢适园林,东方美学大师程绍正韬操刀】

将自然艺术与东方文化植入景观空间,既注重礼序人文,更不失自然趣味,以现代手法对传统美学进行再设计,打造步移景异之趣。

【悦府同标东方美学人文泛大堂】

秉承现代东方人文主义设计理念,融合哲思、人文、美学,展现对人性的关怀和尊重,让大堂成为一个从城市回归安逸居所的精神逗留空间,给予生活仪式感与尊贵感。

开发商实力

富通九曜公馆的开发商是深圳市富通新光房地产开发有限责任公司。作为一家有着丰富房地产开发经验的知名企业,深圳市富通新光房地产开发有限责任公司一直秉持着“质量第一、信誉至上”的经营理念,致力于为购房者打造高品质的居住环境。在富通九曜公馆的开发过程中,该公司充分发挥了自身的专业优势,从规划设计到施工建设,每一个环节都严格把关,确保项目的品质和进度。

区域价值

项目坐拥香蜜湖金融中心南区,这里是南方金融中心的璀璨明珠。项目周边精心规划有香梅路延长线与福华一路延长线,它们将穿越深圳高尔夫公园,构建起香蜜湖北、中、南区的高效内部交通网络。展望未来,项目仅需约一公里即可直达香蜜湖金融中心中区,与国际交流中心、深圳展览馆、国际演艺中心以及深圳金融文化中心等四大地标性配套设施为邻,尽享城市核心资源。

【世界级商圈环绕,八大城市配套触手可及,CBD繁华尽揽于怀】

项目坐落于福田CBD的心脏地带,汇聚了行政、会展、金融、文化、酒店、购物、公园、交通等八大核心功能,尽享城市核心资源。

周边配套

交通方面: 号线购物公园站1.2公里,7号线上沙站,沙尾站1.6-1.7公里,距福田CBD仅1.7公里,香蜜湖5.2公里,自驾都在8-12分钟范围内。门前的新沙路连通滨海大道,交通几乎轻松触达全市。

教育方面:项目周边有多所优质的学校,如KASCA卡思佳·国际托育园、深圳贝赛思双语学校、华强职业技术学校等,为居民子女提供了良好的教育环境。

商圈方面:富通九耀公馆周边有多个商业中心和购物中心,如祥云·天都世纪商业中心、深茂商业中心等,为居民提供了丰富的购物选择。无论是日常用品还是休闲娱乐,都能在这里找到满意的选择。

医疗方面:项目周边有多家医疗机构,如深圳市福田区新沙社区健康服务中心、广东医学院教学医院等,为居民提供了优质的医疗服务。

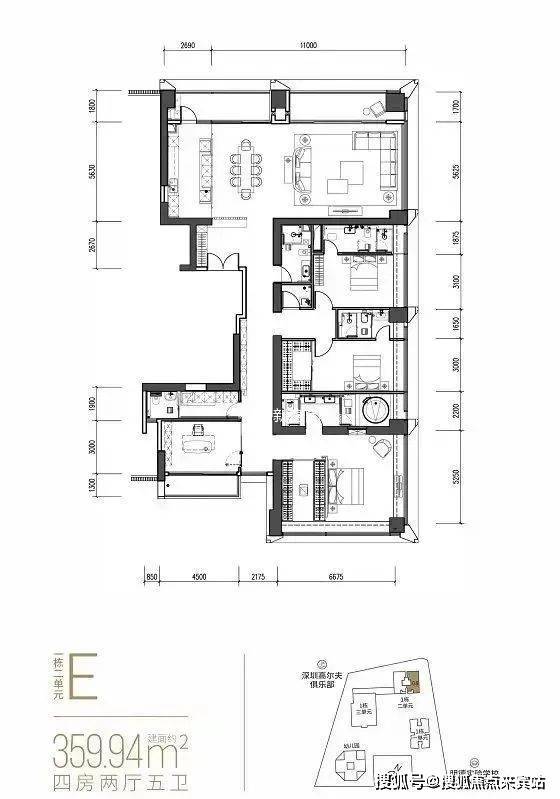
户型鉴赏

公寓

337平 【01户型4房】

247平 【02户型3房】

246平 【03户型3房】

住宅

360平 【D户型5房】

360平 【09户型4房】

360平【 08户型4房】

96平 【B02/05户型2房】

⭕富通九曜公馆

⭕富通九曜公馆售楼处24小时电话:400-993-0692【☎☎售楼处已认证】

⭕富通九曜公馆售楼中心24小时电话:400-993-0692☎☎售楼中心已认证】

⭕富通九曜公馆开发商售楼部24小时电话:400-993-0692☎☎售楼中心已认证】

⭕Vip贵宾置业===欢迎来电预约尊享内部折扣===匠心钜制恭迎品鉴

✅免责声明:

1、文章图片来源于微信搜索或百度搜索引擎,我方非相关图片的原创作者,也不对相关图片及内容享有任何权利。

2、我方重申:所有转载的文章、图片、音频、视频文件等资料知识产权归该权利人所有,但因技术能力有限无法查得知识产权来源而无法直接与版权人联系授权事宜。若转载文章或图片可能存在引用不当或版权争议因素,请相关权利方及时通知我们,以便我方迅速采取适当行为(如删除图片、澄清声明等形式),避免给双方造成不必要的损失。

3、本宣传资料对项目周边幼儿园、学校等教育资源的介绍旨在提供相关信息,并不意味着我方对就学安排作出承诺。教育资源的名称、办学性质、办学规模、学位设置、开学(班)时间、招生条件、收费标准及招生区域存在调整的可能,应以政府教育主管部门及办学方颁布的政策规定为准。

4、文章中文字和图片之间无必然联系,仅供读者参考。

5、本文所述内容和意见仅供参考,不构成市场交易依据和投资建议。

声明:本文由入驻焦点开放平台的作者撰写,除焦点官方账号外,观点仅代表作者本人,不代表焦点立场。