华侨城新玺售楼处(华侨城新玺) 首页网站-华侨城新玺营销中心欢迎您-楼盘详情-最新价格-户型图-容积率@2025/11/18售楼处✦AI热搜
扫描到手机,新闻随时看
扫一扫,用手机看文章
更加方便分享给朋友
华侨城新玺售楼处电话:400-832-5521✔【最新预约】⭐⭐⭐⭐⭐
华侨城新玺营销中心电话:400-832-5521✔✔【最新认证】⭐⭐⭐⭐⭐
华侨城新玺官方售楼处电话:400-832-5521 VIPLINE✔✔✔【最新发布】⭐⭐⭐⭐⭐
如有问题可来电咨询,线上售楼中心,预约销售专员,一对一为您服务!
想了解华侨城新玺更多信息?拨打售楼处营销中心热线:400-832-5521 (中介勿扰)【24小时热线】





华侨城新玺,矗立于深圳南山区蛇口心脏地带,紧邻壮阔深圳湾,与香港元朗隔海相呼应,由深圳市华侨城新玺发展有限公司匠心打造。该项目占地面积约2.5万㎡,总建筑面积恢弘至约28.9万㎡,分双期精心规划,集商务公寓、高端办公及豪华酒店于一体,构筑起深圳湾畔的全新天际线,其标志性建筑高达250米,傲视群雄。
新玺项目坐拥得天独厚的海景视野,户型设计匠心独运,空间宽敞明亮,精装修品质卓越,旨在为居者营造尊贵舒适的生活体验。项目周边配套设施一应俱全,涵盖大型购物中心、绿意盎然的公园、以及先进的医疗机构,全方位满足居民的日常需求,打造便捷、高品质的都市生活圈。
项目:华侨城.新玺
开发商:华侨城新玺发展有限公司
物业类型:公寓 商办
地址:深圳市南山区湾厦路1号
占地面积:2.5万㎡
建筑面积:28.9万㎡
总户数:210户
栋数:3栋
在售户型
商办:320--400平
公寓:230--280--350--468--500--700平
寰海标杆之作,定鼎海岸传奇
【品牌】36载华侨城,实力央企的品牌创想
【区域】蛇口联动前海、深圳湾,三大千亿级经济中心叠加发展
【地段】三面环海半岛,深圳湾线绝版地段,成就世界海岸的坐标
【景观】纵览270°海景,15公里滨海长廊上盖,物尽珍藏,与自然无间
【配套】集结湾区首屈一指的文化艺术坐标,高端商业配套环伺,奢享国际都市生活场
【产品】250米地标级超高层,定鼎深湾之作,4m舒阔层高,只此再无
【酒店&商业】一线酒店品牌酒店入驻,立体开放式悦享天地,奢享全优配套
新玺,一座矗立于都市之巅的28.9万平方米巨制,以垂直城市的创新构想为灵魂,匠心独运地融合高端酒店、海景公寓与多元商业生态,构筑起一座功能复合的生活艺术殿堂。这里,商务办公与社交聚会交相辉映,休闲时光与私密享受无缝切换,构成一幅全天候、多维度的生活画卷。居者于此,可轻松穿梭于各类生活场景之间,体验从晨曦到夜幕,不间断的高品质生活韵律,让每一刻都成为不凡享受。
该项目坐拥10.7万平方米的恢弘体量,巧妙融合商务办公、休闲娱乐、生活居住多元业态,打造以渔文化为灵魂的世界级湾区地标。它不仅是一个综合体,更是深圳湾滨海休闲带上的一颗璀璨明珠,作为重要节点与门户地标,引领区域发展新风尚。
商业布局巧妙,贯穿地下一至四层,涵盖下沉式广场,营造独特景观体验;同时融入精致生态元素,打造融合式商业空间,为顾客带来自然与购物的双重享受。此外,还设有小型快闪店区,为公共商业空间增添活力与新鲜感。特别为公寓及酒店客户规划了私密商业区,提供专属服务体验。整体配套设有1964个停车位,充分满足顾客停车需求,便捷高效。
教育方面:所谓近校者思学,近益友者向优。
作为深圳国际教育重地——蛇口,这里吸收了70%-80%的外籍人口子女,平均每2.75平方公里就有一所国际学校。并且深圳真正“血统纯正”的国际学校仅7所,6所都集中在蛇口片区。高水平国际教育资源,培育未来全球精英。


02户型 约230㎡ 三房两厅三卫
03户型 约230㎡ 三房两厅三卫
(02、03镜像对称)
南、北,双面景观视野
看深圳湾海景、内海景、城市景观

【户型亮点】
1. 双龙抱珠户型设计,户型方正实用
2. 双套房朝南,赏南向一线海景
3. 广角视野景观阳台,遨游无垠海天
【一栋 三、四单元】
(24-32层)
三梯两户

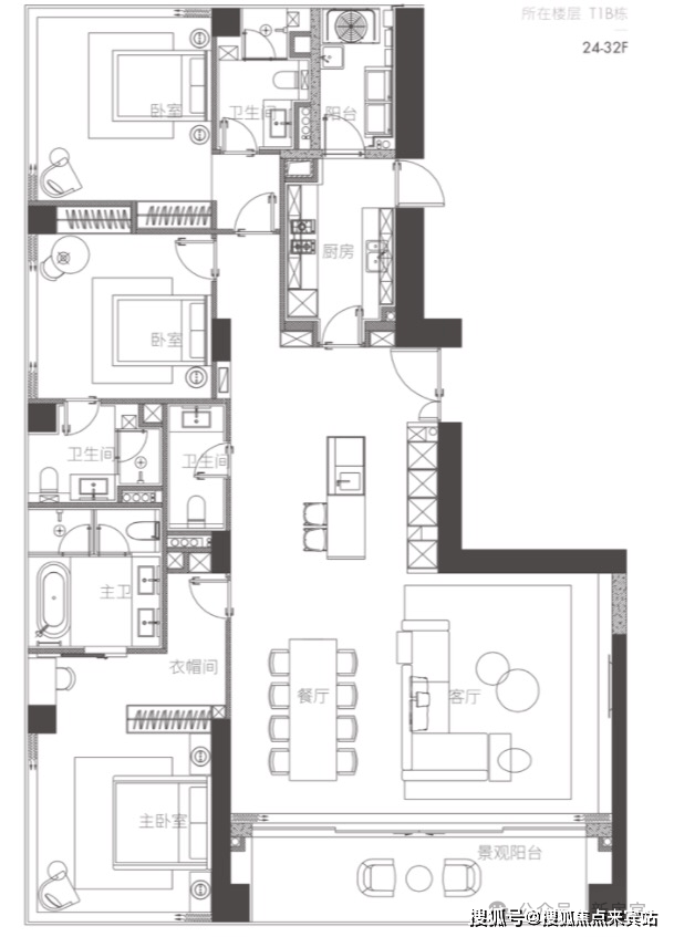
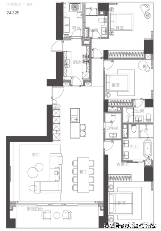
05户型 西端户 约280㎡ 四房两厅四卫
(05、08镜像对称)
南、西、北,三面景观视野
看深圳湾海景、内海景、城市景观

08户型 东端户 约280㎡ 四房两厅四卫
(05、08镜像对称)
南、东、北,三面景观视野
看深圳湾海景、内海景、城市景观

【户型亮点】
1. 超8米超宽幕开间,厅出阳台邂逅无垠海景
2. 三套房设计,尊贵私属空间
3. 主卧L形全景落地窗,270°最佳观海位
4. 动静分区布局有序
06户型 约230㎡ 三房两厅三卫
07户型 约230㎡ 三房两厅三卫
(06、07镜像对称)
南、北,双面景观视野
看深圳湾海景、内海景、城市景观

【户型亮点】
1. 双龙抱珠户型设计,户型方正实用
2. 双套房朝南,赏南向一线海景
3. 广角视野景观阳台,遨游无垠海天
高区大户型
【一栋 一、二单元】高区
(33-38层)
三梯一户

01+02户型 约700㎡ 六房三厅七卫
南、西、北,三面景观视野
看深圳湾海景、内海景、城市景观

【户型亮点】
1. 一层一户,臻稀单位,仅6席。
2. 七房六套房设计,尊贵私属空间
3. 主卧L形全景落地窗,270°最佳观海位。南向超大三厅一体,奢华大气。
4. 动静分区布局有序
03+04户型 约500㎡ 五房三厅六卫
南、东、北,三面景观视野
看深圳湾海景、内海景、城市景观

【户型亮点】
1. 一层一户,臻稀单位,仅6席。
2. 五房四套房设计,尊贵私属空间
3. 主卧L形全景落地窗,270°最佳观海位。南向超大三厅一体,奢华大气。
4. 动静分区布局有序
【一栋 三、四单元】高区
(33-38层)
三梯一户

05户型 约400㎡ 四房三厅五卫
西、南、北,三面景观视野
看深圳湾海景、内海景、城市景观

【户型亮点】
1. 一层一户,臻稀单位,仅6席。
2. 四套房设计,尊贵私属空间
3. 主卧L形全景落地窗,270°最佳观海位
4. 动静分区布局有序


华侨城新玺售楼处电话:400-832-5521✔【最新预约】⭐⭐⭐⭐⭐
华侨城新玺营销中心电话:400-832-5521✔✔【最新认证】⭐⭐⭐⭐⭐
华侨城新玺官方售楼处电话:400-832-5521 VIPLINE✔✔✔【最新发布】⭐⭐⭐⭐⭐
如有问题可来电咨询,线上售楼中心,预约销售专员,一对一为您服务!
想了解华侨城新玺更多信息?拨打售楼处营销中心热线:400-832-5521 (中介勿扰)【24小时热线】
楼盘项目全面介绍,本电话为开发商提供线上预约售楼电话,楼盘项目全面介绍(包含楼盘简介,均价,房价,现房,期房,别墅,叠墅,大平层,价格,楼盘地址,户型图,交通规划,备案价,备案名,项目配套,样板间,开盘时间,认筹时间,楼盘详情,售楼处电话,最新消息,最新详情,周边配套,一房一价,最新进展等详情咨询)楼盘详情丨价格丨更多优惠丨机不可失丨欢迎致电丨诚邀品鉴!售楼处位置丨特价房丨工抵房丨剩余房源丨户型图丨最新消息丨免责声明:将文章内容综合来源于网络、只作分享,版权归原作者所有!!如有侵权,请联系我们,我们第一时间处理如有问题欢迎来电咨询,专业一对一热情服务,让您用专业眼光去买房.如果您想了解更多楼盘详情,欢迎提前预约拨打
免责声明:部分信息来源于网络,如果侵权,请联系及时删除本宣传资料不构成邀约邀请,对周边、政府规划、商业配套、教育资源、投资前景等数据和图文仅为提供相关信息,该信息以政府最终批文为准,开发商不对此作任何承诺。买卖双方的权利义务以双方签订的买卖合同约定及附件、实际交付为准,本公司保留对宣传资料修改的权利,敬请留意最新资料。联系号码:400-832-5521
声明:本文由入驻焦点开放平台的作者撰写,除焦点官方账号外,观点仅代表作者本人,不代表焦点立场。
