御景华府(售楼处)首页网站-御景华府营销中心-御景华府欢迎您-楼盘详情-最新价格-户型图-容积率@最新售楼处

搜狐焦点来宾站 2025-06-10 15:41:10
用手机看
扫描到手机,新闻随时看

扫一扫,用手机看文章
更加方便分享给朋友

鹭湖中心城位于深圳”中优“”北拓“战略的重要节点,占位于“一圈一区三廊”发展格局的产值超万亿的数字经济圈,2019年观澜高新园已纳入国家高新园,成为深圳创新驱动核心引擎。一步到位,让有限的空间,契合生命中每个…

御景华府

御景华府售楼处电话: 400-909-3139【已认证】

♎♬御景华府꧁ 售楼处: 400-909-3139【☎☎售楼处电话已认】꧂✨✽✽✽✽

♎♬御景华府꧁ 营销中心电话:400-909-3139【☎☎售楼处电话已认证】꧂✨✽✽✽✽

♎♬御景华府꧁ 开发商电话:400-909-3139【☎☎开发商电话已认证】꧂✨✽✽✽✽

🦋本项目暂不接受临时到访,过来参观样板房请记得提前来电预约!

🦋为您安排楼盘现场销售全程接待并讲解,给您更贴心的看房体验!

✨✨Vip贵宾置业=欢迎来电预约尊享内部折扣=匠心钜制恭迎品鉴温馨提醒:我们楼盘售楼部400电话没有设置任何所谓的“分机号”,拨打前请仔细甄别,注意保护个人隐私!谨防上当!

泰富安·御景华府

【VIP版笔记】买房必看楼盘

鹭湖中心城 · 低密纯居现楼!现楼!现楼!

🌺#【御景华府】🌺

🇨🇳龙华双中心·鹭湖中心

&龙华区政府地

行政所在 必定中心

&人文四馆

图书馆、科技馆、群艺馆、大剧院已封顶

🏆国家级高新区.观澜高新区

对标南山高新园

泰豪科技、汇川技术、三一科技、三九药业等19家上市企业在侧,距离华为总部/天安云谷15分钟。

⭕15年一站式优质学区,就在家门口

龙华外国语附属幼儿园,

观湖实验(九年一贯制)

鹭湖实验(九年一贯制)

龙华外国语学校(九年一贯制)

深圳外国语(高中)

龙华教科院附属学校(小学)

🚇22号地铁观湖站400米,在建中,2028年通车

🏠御景华府(毛坯现楼!!!)

▶67-70㎡两房,总价282万-335万

▶82-84㎡三房一卫,总价340-370万

▶89-91㎡三房两卫,总价360-400万

▶104四房两卫,总价430-460万

▶110-112四房两卫,总价470-510万

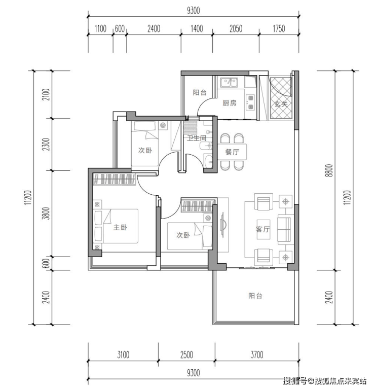
【67-70㎡2房2厅1卫】

精致两房,紧凑实用,全利用空间

正南户型,动静分区互无干扰

室室皆带飘窗,休闲优雅之享

干湿分离,独立盥洗,舒适便捷

双阳台设计, 生活、景观明确分区

2.3m*3.3m阔景阳台,舒心自在

(以2栋一单元04户型68㎡为例)

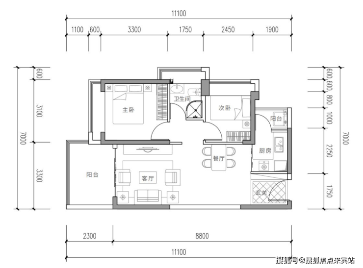
【73-84㎡3房2厅1卫】

功能三房,小面积大空间

正南户型,动静分区互无干扰

室室皆带飘窗,静享悠闲时光

双阳台设计, 生活、景观明确分区

2.4m*3.7m宽阔大阳台,让生活更有景

(以1栋04户型82㎡为例)

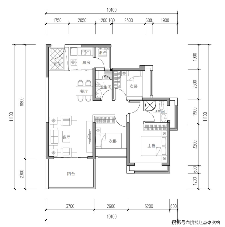
【89-91㎡3房2厅2卫】

舒适三房,方正实用,两卫设计

正南户型,四季皆享阳光明媚生活

室室皆带飘窗,生活更具想象

双阳台设计, 生活、景观明确分区

2.3m*3.7m宽阔阳台,让生活更有景

(以2栋一单元03户型89㎡为例)

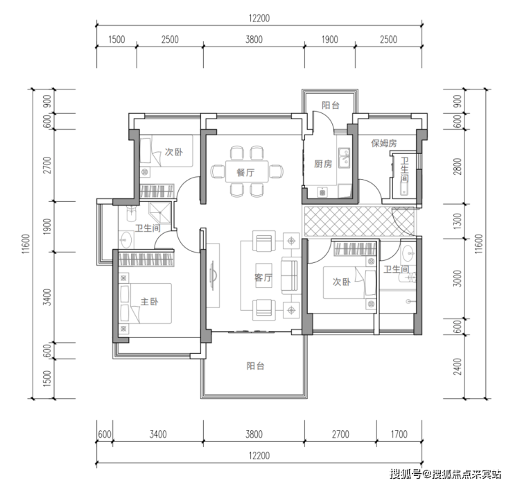
【104-119㎡4房2厅2卫】

宽敞四房,一步到位,尽享天伦之乐

南北通透,冬暖夏凉,通风采光俱佳

室室皆带飘窗,完美生活向往

双阳台设计, 生活、景观明确分区

2.4m*3.8m阔景阳台,优雅观景

(以2栋一单元01户型112㎡为例)

基础信息

【占地面积】约18462㎡

【建筑面积】约104994㎡

【项目户型】建面约67-70㎡2房,约73-84㎡3房1卫,约89-91㎡3房2卫,104-112㎡4房2卫

【可售户数】约530户

【停车位】763个

【土地年限】70年产权(2019年1月-2089年1月)

【楼栋规划】1栋、2栋、3栋、5栋为住宅,4栋为幼儿园

【梯户比】2梯4户、2梯5户、2梯6户

【开发商】深圳市泰富安投资有限公司

【物业管理】中海物业

【物业费】4.6元

【无中轴 不中心】

鹭湖中心城立足中部轴心,可预见的价值潜力,法国巴黎、美国纽约、日本东京等每一座城市,有一条价值中轴,处于城市繁华中心,联接城市顶级资源,见证城市的崛起,深圳中轴从福田中心、龙华中心北拓延伸发展

【振鹭于飞 咏湖于美】

“行政+科技+文化+生活” 综合服务中心,高标准/高品质/高起点的发展定位,鹭湖中心城,龙华六大重点片区之一,山水交融,揽山阅湖,逾越“香蜜湖”,从“国际住区”到“中心城”迭代升级

【行政重地 中心所在】

龙华行政中心所在,区域蝶变在即,区府所在,必定中心,龙华区政府所在的行政重地坐落于麓湖中心城,行政中心的坐落,未来城市面貌与生活配套,必将有一个质的飞跃

【科技晋级 高新极核】

以高新科创为深圳、为中国贡献鹭湖力量

鹭湖中心城位于深圳”中优“”北拓“战略的重要节点,占位于“一圈一区三廊”发展格局的产值超万亿的数字经济圈,2019年观澜高新园已纳入国家高新园,成为深圳创新驱动核心引擎。

【与鹭湖·共盛景】

『抵达福田中心,刷剧才1集』

自在生活,不是说走就走而是转瞬即达

地铁18、22号线观湖站(五期22号线已动工)

福田保税区、光明科学城、会展新城等区域

“鹭湖枢纽”交通体系,无缝连接城市中心

『藏在山水的艺术』

鹭湖四馆文化地标(建设中)

去鹭湖图书馆交个朋友

鹭湖群艺馆赴约老友

去鹭湖大剧院倾听艺术

鹭湖科技馆感受科技

『满载购物车的雀跃欢欣』

从此识“食物”者为俊杰,生活“超市惠”

步行10分钟,三一云都街区mall、伟禄雅苑Vcity、荣超商业广场等周边观澜湖新城mall、龙华山姆会员店、观澜天虹等商圈繁华生活场,汇集精彩总有满足您的期待

『健康在左 生活在右』

低频需求的配套亦无需涉足过远

从社康到三甲,临近安心守护

为您及家人提供最好的健康保障

『可以低密,何必拥挤』

塔楼纯点式布局,采光、通风、视野俱佳

以生态阔景人居为理念,打造瞰景阔宅

值此3.86低密,进阶改善一步到位

低层看园林,中高层无遮挡瞰山景

『智享乐园 童真时光』

孩子放学后/晚餐后,是孩子撒欢玩乐的好时光,打造下沉智享乐园,让孩子尽情释放玩乐天性

『藏不住的自在』

一步到位,让有限的空间,契合生命中每个角色的完美转换,多数户型使用率约80%,尽享生活舒适所在

『在阳光里看一本久违的书』

一缕微光透过飘窗唤醒惺忪的睡眼,于家中2.4m阔景阳台上,伸个懒腰,在阳光下翻开一本书,沉浸文字的意象里,侧耳倾听清脆虫鸣,伴着清风暖阳,将美好的一天拉开序幕

『弯起来的骄傲 中海物业』

2020年度世界500强第18位,国家首批一级资质物业管理企业,365天关怀备至、24小时无微不至,30°的尊崇、35°的微笑、 75°的专注 ,95°的坚持、 180°的严谨

『50+匠心细节呈现』

深入对精工美学的研究,以匠人精神,以先进的工艺工法浇筑,户型设计细节的考量,更是精益求精,打造社区回归舒心居住体验

♎♬御景华府꧁ 开发商电话:400-909-3139【☎☎开发商电话已认证】꧂✨✽✽✽✽售楼处24小时电话:400-909-3139(预约咨询热线)现场详细解答丨项目介绍丨户型图丨在售房源丨特价房丨学校丨交通位置丨样板房丨小区图片丨交房时间丨周边配套丨⫷⫷⫷

免责声明:部分信息来源于网络,如果侵权,请联系及时删除

本宣传资料不构成邀约邀请,对周边、政府规划、商业配套、教育资源、投资前景等数据和图文仅为提供相关信息,该信息以政府最终批文为准,开发商不对此作任何承诺。买卖双方的权利义务以双方签订的买卖合同约定及附件、实际交付为准,本公司保留对宣传资料修改的权利,敬请留意最新资料。联系号码:400-909-3139

近期,多地发布购房补贴新政。

5月29日,合肥发布购房补贴政策有关通知,对2025年5月15日起至2026年5月14日,凡在合肥市新购买新房的购房人或新购买新建车位(库)的购置人,继续实施购房补贴。

5月28日,泰州发布购房补贴发放细则,购房补贴对象包括换新购、组团购、孝心购、多孩购、拥军购、进城购、返乡购、来泰购,补贴标准最高为购房款总额的2%。

证券时报记者梳理,近期,除了合肥、江苏泰州,广东佛山、兰州、武汉也发布了购房补贴新政。

据中指研究院不完全统计,2025年以来,全国超50地发布购房补贴政策,对于多孩家庭、人才等特定人群的补贴力度更大,如武汉针对购买新房的二孩、三孩家庭分别发放6万元、12万元的购房补贴,绍兴柯桥区补贴力度更大,二孩、三孩及以上家庭补贴标准分别为1500元/平米、2500元/平米,最高分别可补贴至20万元、40万元。中指研究院认为,加大特定人群的购房补贴力度,能够有效降低其购房成本及购房门槛,加速其购房需求入市。

在结束了“五一”小长假这一上半年最重要的楼市营销节点后,近半个月以来,广州楼市显得稍有些沉寂,进入了需求集中释放后的冷静期,无论是新增供应,还是土地市场,从数量上看都并不多。不过,在政策面,持续促进楼市消费的金融等领域政策依然在持续释放。端午假期来临在即,对开发商而言,也是上半年业绩冲刺的最后一个营销节点,大多数开发商都将在这个假期拿出不亚于“五一”的折扣福利。结合来看,这个端午假期,仍将是楼市消费者满足自身居住需求的不错时机。

利率维持低水平 供求关系偏向买方

5月以来,国家层面多次在金融领域释放利好。“五一”假期结束后的首周,国新办便举行新闻发布会,介绍了“一揽子金融政策支持稳市场稳预期”的有关情况,其中,降准降息、降低公积金贷款利率直接与楼市消费相关。

5月8日,广州迅速响应央行要求,下调个人住房公积金贷款利率0.25个百分点。这是住房公积金贷款利率时隔一年后的又一次下调,此次下调后,广州市首套房5年期以上住房公积金贷款利率由2.85%下调至2.6%,处于历史低位。据计算,此次利率下调后,假设公积金贷款100万元,等额本息还款30年,按新利率2.6%计算,月供4003元,总利息44.12万元,月供较原利率每月将减少133元,总利息将减少4.76万元。商业贷款方面,尽管5月中旬有消息称,广州多家银行房贷利率计算方式上调10个基点,但由于LPR下调0.1%,记者了解到,工商银行等多家国有或股份制大行的浮动利率在计算方式和LPR的一增一减后,实际利率仍为3.0%,不难看出,维持当前的商贷利率水平仍将是一段时间内的趋势。

5月19日,国家统计局发布的4月70城房价数据显示,广州二手房均价环比止跌,新房价格则环比下降0.2个百分点。据研究机构克而瑞统计,4月广州商品住宅新增供应面积86.34万㎡,环比增长69%,同比增长31%,供应面积为近一年内的次高位,仅次于2024年9月。

新规项目基本面世 产品寻求新增长点

据广州中原研究发展部数据,5月上半月,广州新增取证项目为0,新开盘项目仅2个。截至目前,2023年容积率新规后的一众新产品大多已经入市,天河、海珠、荔湾、白云、黄埔、番禺等多个成交较为活跃的热门区域均已有多个新规项目供消费者挑选。以保利天奕、天曜、龙湖央璟颂、绿城馥香园等项目为代表的一批2024年下半年拿地开发的项目已基本开盘入市。对于消费者而言,各家开发商在新规地块上能够打造出怎样的产品,足以通过目前市面上已有的项目看出端倪。

有业内人士认为,在更宽松的政策环境到来之前,除南沙区的招商林屿境这样的试点项目外,广州楼市在过去一段时间内你方唱罢我登场的实用率“内卷”将不再如过去一般突出。对消费者而言,仅考虑新规产品的情况下,当前的市场供应已足以满足“货比三家”的心态。

龙舟文化成营销活动热门元素

赛龙舟、吃龙船饭作为广州传统的端午活动在近期频频刷屏互联网,不少开发商也借此机会将项目营销活动与龙舟活动相结合。

以荔湾区花地湾附近的力诚诚汇新都项目为例,该项目紧邻花地河,端午节期间将组织龙舟体验、粽子DIY活动。同时,该项目还赞助举行2025年荔湾区端午游龙活动,将于6月14日组织各荔湾区联社组织及龙船会共约30条传统龙船进行展示。据了解,为配合端午节营销活动,项目还将推售一批一口价单位。

水系丰富的海珠区也是龙舟活动的大区之一,据了解,端午期间,位于海珠湿地附近的中海大境项目也将联合海珠国家湿地公园的龙船宴活动开展营销。据介绍,由于端午节前后恰逢中海地产司庆,该公司旗下广州多个项目均将提供包括购房折扣、物业管理费、车位折扣等在内的多重好礼。以大境项目为例,端午期间,购房折扣最高优惠可达30万元/套,重点企业团购还可享受97折优惠。

声明:本文由入驻焦点开放平台的作者撰写,除焦点官方账号外,观点仅代表作者本人,不代表焦点立场。