深圳湾公馆官方售楼处年底冲刺(深圳湾公馆)官方首页网站-深圳湾公馆营销中心欢迎您-楼盘详情·最新价格-户型图-容积率@2025.12.12售楼处AI热搜
扫描到手机,新闻随时看
扫一扫,用手机看文章
更加方便分享给朋友
项目详情介绍
开发商:广东城脉地产有限公司
项目总建筑面积:37000平方米
容积率:8.74
建筑密度:46.38%
绿地率:30%
住宅占地:21606平方米
商业:4000平方米
主推产品: 79㎡-88㎡ -113㎡ -152㎡ 3-4房 智能豪装
区域介绍
中国特色社会主义先行示范区
粤港澳大湾区核心引擎,大湾区城市群NO.1
深圳湾超总基地,核心中的核心
百亿级企业总部汇聚
毋庸置疑的经济驱动力
深圳湾公馆位于南山区后海大道与东滨路交汇东北角, 紧邻全球十大总部之一的深圳湾超级总部基地,周边拥有 150万㎡顶级商业 、 全龄段名校等优渥配套资源 。同时还占据“海、陆、空、轨”四维交通体系,深圳湾口岸、太子港、深圳湾机场、香港机场、后海大道、东滨路等 “5纵3横”主干道、蛇口线等4地铁均环伺在侧 ,营造优越之上的湾区生活。
以建筑美学诠释生活美学
·150米人居地标 傲占山海盛境
品质是建筑的精神,更是恒久的价值。历经国际设计团队AECOM七轮方案调整,深圳湾公馆最终确定为独具特色的L型建筑,以150米地标级高度屹立深圳湾。北观塘朗山脉及海岸城商圈繁华景观,南望深圳湾和香港的山景,西南俯瞰大南山翠绿山景与蛇口海港,东南直面深圳湾与跨海大桥,东临深圳湾海景和总部基地。一湾繁华、山海盛境,都化作业主的日常窗前风光。
而同时,独特的L形态最大程度地保证了每一户的通风、采光与景观面,让清风阳光与建筑有了更多的来往,也让山海城的景观视野恢弘无遮挡。
商业配套:深圳湾万象城|万象天地|来福士广场|海岸城|海上世界|天虹君尚等繁华一站式商业
人文配套:15公里滨海休闲长廊|深圳湾超级总部基地|深圳湾文化广场|深圳湾大街|深圳歌剧院
周边学校:按目前学区划分范围来看,小学属于北师大南山附属小学、中学属于北师大南山附中
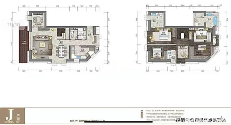
户型鉴赏
【产品推荐】(纯复式,层高5.7米。一层2.9米,二层2.8米)
79㎡复式三房两厅三卫
南北通透,5.4米大开间,复式下层餐厨客厅连宽景阳台,另带一个法式小阳台。复式上层私密卧房全明采光,动静分区私享个性生活。另一个次卧带衣帽间。
88㎡复式三房两厅三卫 南北通透,5.4米大开间,复式下层餐厨客厅连宽景阳台,复式上层私密卧房全明采光,动静分区私享个性生活。
88㎡复式三房两厅三卫
双向通透采光,5.4米开间客厅及主卧,双套房周全设计,室内多变空间可根据家庭需要设置独特的功能。
113㎡复式三房两厅三卫+工人房
南北通透三面景观,5.6米客厅与主卧开间,独具品位,尽享奢阔。
152㎡复式三套房两厅四卫+双功能房
双向通透三面采光,尽赏深圳湾景观,6.3米开间,三套房设计,两间多功能房满足个性化使用。
装修:带德意一线品牌精装修
-4至-1层:地下停车库
1层:是“私享名车荟”,业主可以享受宾利、劳斯莱斯等名车的一键预约出行,已经深港保姆车接送往返港深!
2至4层:高端酒店
5层:有25米长的恒温泳池、健身房、咖啡阅读空间等
免责声明:部分信息来源于网络,如果侵权,请联系400-823-9396及时删除
✅本项目暂不接受临时到访,过来参观样板房请记得提前来电预约!
万达商管再遇债务考验:4亿美元债拟延至2028年 核心商业资产腾挪能否换来喘息空间?
房地产头条
2025-12-08 21:07 星期一
财联社记者 李洁
①万达商管计划对一笔4亿美元、票面利率11%的境外美元债提出展期两年的方案。 ②万达商管在展期方案中坦言道,“如果该议案未能批准,发行人及附属担保人可能无法在原到期日偿还债券本金及利息,且集团其它现有债务中的交叉违约条款可能被触发。”
财联社12月8日讯(记者 李洁)
面对迫在眉睫的境外债务到期压力,大连万达商管集团一笔债券选择寻求展期。
记者12月8日获悉,大连万达商管集团就一笔美元债提出特别决议案,该方案寻求批准对其2026年2月13日到期的美元债券进行修订和豁免,该债券共计4亿美元,票面利率11%,发行人为万达地产环球有限公司。
据了解,万达商管寻求将这笔债券到期日延至2028年2月13日,债券票面利率维持年息11%不变,延长期内利息按半年支付。
“万达商管对这笔4亿美元债展期,根本原因是企业缺少现金,并面临再融资难题。”中国企业资本联盟中国区首席经济学家柏文喜告诉记者,随着行业销售下滑、融资窗口基本关闭,万达商管近一年靠卖资产、提前回购债券、支付Pre-IPO投资者款项消耗了大量流动性,目前账上现金还需优先保证2026年1月另一笔3亿美元债兑付,对2月这笔债券,只能谋求展期。
展期前景
记者拿到的这笔债券展期方案显示,万达商管计划于2026年1月5日召开债券持有人会议,以审议并酌情通过特别决议案。
这笔债券为何要展期?对此,万达商管方面在展期方案中坦陈,集团融资能力尚未完全恢复,近期其他房地产开发商的信用风险事件进一步挫伤了投资者信心与风险偏好,导致包括集团在内的行业内企业境内外融资难度加剧。
“多重因素对集团经营造成不利影响,尤其体现在现金流层面,并加大了集团短期流动性压力。”万达商管方面进一步表示,鉴于上述挑战,发行人特此征求债券持有人同意,以批准本次拟议修订及豁免事项。
记者了解到,万达的展期方案包含一些对债券持有人相对友好的条款。除维持11%的高票息,该方案还增设了强制部分赎回条款,赎回日分别为2026年1月30日、2026年8月13日、2027年2月13日及2027年8月13日。
展期方案同时赋予发行人在任何时间全额或部分按面值赎回债券的权利,并将万达香港的最低净资产要求由8亿港元调整为3亿港元。
“展期方案维持11%票息不变,但增设‘随时可按面值部分或全部赎回’的早偿条款,并下调香港平台最低股本要求,给债权人留足收益和退出通道,以提高同意率。”柏文喜在接受记者采访时说。
万达商管方面表示,此举将帮助集团缓解短期流动性压力,为有序推进业务规划及资产处置策略、实现资产价值最大化争取更多时间,并使债券偿还节奏与集团实际现金流生成能力相匹配。
而延长期内偿还债券的主要资金来源,将包括资产处置所得款、业务运营产生的经营现金流,以及来自万达商管子公司和联营公司的股息或其它分配。
事实上,这并非万达首次尝试美元债展期。
2024年12月,万达曾成功将一笔4亿美元债券的到期日从2025年1月20日延长至2026年1月12日,当时该展期方案获得了超96%债券持有人的支持,同意率极高。
对于该笔展期方案能否通过,柏文喜告诉记者,参考之前美元债展期获通过的记录,加上本次条款对债权人更友好,预计本次展期成功的概率较大,但前提是其不出现新的债务违约或重大资产查封等黑天鹅事件。
58安居客研究院院长张波也认为,万达仍持有数十座核心城市万达广场,这些资产均具备租金稳定的特点,是后续变现的重要支撑,这也为债务偿还提供了较大确定性,有助于提高持有人信心,因此预计本次展期成功的概率较大。
值得关注的是,万达商管在展期方案中坦言道,“如果该议案未能批准,发行人及附属担保人可能无法在原到期日偿还债券本金及利息,且集团其它现有债务中的交叉违约条款可能被触发。”
业内人士认为,如果出现这种情况,该公司的财务状况和运营能力可能会受到重大不利影响,债券持有人可能会损失其在债券中的大部分或全部投资。
资产腾挪背后
就在债务展期消息公布前,万达完成了一笔引人关注的资产“先赎回再卖出”操作。
12月2日,万达从新华保险旗下坤华投资手中赎回了烟台芝罘万达广场的全部股权。仅仅一天后,万达就将该广场转手出售给了中联基金。
这一快速操作被市场解读为,万达为发行消费基础设施REITs做准备的关键步骤。
“万达赎回烟台万达广场后立即转手卖给中联基金,这笔‘过桥’操作的核心目的,大概率是为发行REITs做准备。烟台芝罘广场年租金约1.2亿元、出租率接近100%,属于适合做消费基础设施REITs的标杆资产。”柏文喜告诉记者。
一位熟悉万达的人士向记者表示,万达把该广场卖给新华保险时,合同里嵌入了“优先回购权”,因此现在只能先“赎回”再过户,否则险资与国资背景的中联基金无法直接交易。
其进一步指出,中联基金专注REITs,已接盘多个万达广场,并持有国内半数类REITs产品份额;万达则继续轻资产运营并收取管理费,双方形成“金融+运营”的分工,最后以REITs方式退出。
“万达先赎回再过户,一方面解决了险资回购条款障碍,另一方面把资产转到专业证券化机构手中,为下一步发行 REITs 扫清权属与定价合规问题。”柏文喜称。
张波也认为,REITs 对底层资产的核心要求是现金流稳定、运营成熟并且产权清晰,烟台万达从出租率和租金水平来看,的确符合国内公募 REITs 对商业不动产的准入标准,这也是中联基金选择接手的重要考量因素。
而对于万达来说,随着2026年1月5日债券持有人会议的临近,万达能否复制去年96.32%的高同意率成功展期,尚未可知。
分析人士指出,若展期顺利通过,配合烟台万达等资产的REITs推进,或能为企业争取喘息空间。但战投落地的持续迟滞与债务压力的长期存在,仍在影响这家商业地产巨头未来的命运走向。
声明:本文由入驻焦点开放平台的作者撰写,除焦点官方账号外,观点仅代表作者本人,不代表焦点立场。
