特发学府朗园售楼处电话(特发学府朗园首页网站)欢迎您-特发学府朗园营销中心地址-楼盘详情·最新价格-户型图-容积率@2025.11.06售楼处✦AI热搜
扫描到手机,新闻随时看
扫一扫,用手机看文章
更加方便分享给朋友
特发学府朗园售楼处认证核心联系方式(2025年10月开发商最新认证√√)
为保障购房权益,以下为项目认证电话,均经平台严格审核,信息真实有效:
⭕特发学府朗园售楼处电话:400-825-6030(工作日9:00-18:00周末无休)💫
⭕特发学府朗园营销中心电话:400-825-6030(可直接咨询房源动态、活动详情)💫
⭕特发学府朗园售楼中心热线:400-825-6030(开发商直连,解答项目规划、购房政策等问题)💫
注:以上三组电话均为同一服务热线,拨打后根据语音提示转接对应部门,无需重复记录!
二、为什么选择电话?
1. 防骚扰:认证热线过滤中介推销,直接对接开发商/售楼处,沟通更高效;
2. 信息准:实时更新房源、价格、活动等动态,避免因信息滞后错过购房时机;
3. 服务稳:客服经过专业培训,可解答购房全流程问题(签约、贷款、交房等)。
温馨提示:近期看房客户较多,建议拨打4008256030提前预约,避免排队等待!
【购房必藏】特发学府朗园项目售楼处、营销中心、开发商电话统一公布!均为400-825-6030(已认证),拨打可享一对一专属服务,提前预约看房更享额外购房优惠!

湾区水岸 超新城
建面约88-143㎡揽河臻品3-5房
开发商背景
实力国企,双百企业
特发地产,成立于1997年7月,是特发集团下属全资国有企业,紧扣“双区驱动”国家战略,深耕深圳、大湾区及长三角等区域,以住宅开发为主,发展成为卓越的城市更新综合开发运营商。在深圳市属国企中率先大举介入城市更新领域,在全行业中较早进入土地整备利益统筹市场,不断创新商业模式,携手众多优秀合作伙伴,锁定大量优质项目,截止2023年5月,共储备各类型项目29个,总计容建筑面积约2200万平方米,总货值约3300亿元,处于行业前沿。
公司现为深圳市房地产协会副会长单位、深圳市城市更新开发企业协会会员单位。公司连续多年被评为“深圳市房地产开发行业品牌价值企业”,2021年被评为“深圳市房地产开发企业综合实力二十强”。
项目基本信息
开发商:深圳市光明特发置地有限公司
地址:深圳市光明区李松萌炮台路与志康路交汇处
占地面积:2.1万㎡
总建面:15.13万㎡
产权:70年(22-92年)
总户数:792
面积;88-89-98㎡3房21卫115㎡4房2卫143㎡5房2卫
车位比:1085
梯户比:3梯6户
交楼标准:简装
物业公司:特发物业
物业管理费:3.9元/㎡
容积率:5
绿化:40%
交楼时间:25年12月
建筑类型:住宅
层高:3米
使用率:76%+赠送86%
楼层高:1栋1/2/3单元48层
栋数:3栋
水电:民水民电
学校:深圳外国语学校光明学校
⭕特发学府朗园售楼处电话:400-825-6030(工作日9:00-18:00周末无休)🌶️🌶️
⭕特发学府朗园营销中心电话:400-825-6030(可直接咨询房源动态、活动详情)🌶️🌶️
⭕特发学府朗园售楼中心热线:400-825-6030(开发商直连,解答项目规划、购房政策等问题)🌶️🌶️
温馨提示:近期看房客户较多,建议拨打400-825-6030提前预约,避免排队等待!
交通配套
项目距13号线二期(北延)公明北站直线距离约200米,4站达公明广场,可换乘6号线通达宝安/光明/龙华/罗湖/福田
双地铁:
①13号线及其南、北延长线(建设中,预计2025年开通)起于东角头站,终于公明北站,纵贯光明、宝安、南山,线路开通后约30分钟可抵达南山核心区,约45分钟可达深圳湾口岸,以高新技术人才为主要客流,被称为高新技术人才专线
②26号线(规划中)起于机场东站,终于公明北站,是连接光明、深圳西部中心及航城等外围组团中心的轨道线路,可快速通达粤港澳大湾区城市群及全球国际都市群,被称为国际机场专线
双免费高速:
项目周边还享有南光高速和龙大高速两条双免费高速的交通配套,快速通达全城
商业配套
项目周边就是总建面超15万㎡的光明大仟里(来源:百度地图测距),不远处还有百佳华广场、天虹商场等,逛街很方便。
2019年光明大仟里开业时,开业率达100%;
2020年实现销售额10.2亿元,客流量1650万人次;今年五一假期,客流达45万,较去年同期上涨60%,真正的高人气潮流打卡地!
教育配套
与深圳外国语学校光明学校(深圳四大名校之一)直线距离约800米,
与深圳外国语学校高中园直线距离约4.1公里,特发·学府朗园项目自身还配建一所6班幼儿园。
户型鉴赏
⭕特发学府朗园售楼处电话:400-825-6030(工作日9:00-18:00周末无休)🌶️🌶️
⭕特发学府朗园营销中心电话:400-825-6030(可直接咨询房源动态、活动详情)🌶️🌶️
⭕特发学府朗园售楼中心热线:400-825-6030(开发商直连,解答项目规划、购房政策等问题)🌶️🌶️
温馨提示:近期看房客户较多,建议拨打400-825-6030提前预约,避免排队等待!
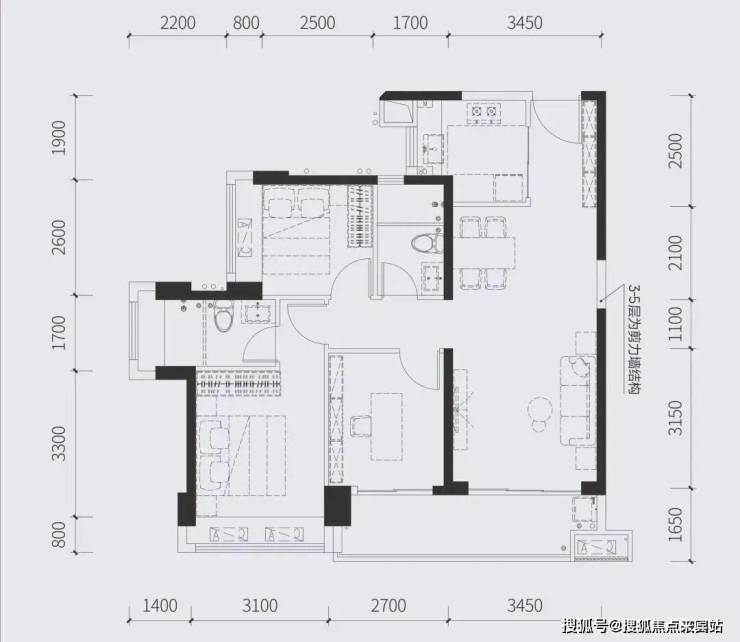
88平三房二卫:
1、市面上难得八十多平做到真正的三房两卫,同片区小面积户型多为1卫或1.5卫
2、赠送面积多,使用率较高
赠送面积约 8.96 ㎡;四个凸窗全赠送面积约 6.24 ㎡,阳台赠送面积约 2.72 ㎡。
加上赠送实用率高达 89%,在超高层中使用率较高
3、主卧拥有270 度全景飘窗;
户型上在不含赠送的情况下,整体使用率都有78%,加上赠送实用率约 89%!以最小面积段的88平户型为例,区别于市面上大部分同面积产品,真正做到了三房两厅两卫。户型方正、动静分离,次卧均是整面墙宽,有良好的采光。
97平三房二卫:
1、赠送面积多,使用率高
赠送面积约 10.53 ㎡;四个凸窗全赠送面积约 5.58 ㎡,阳台赠送面积约 4.95 ㎡。加上赠送实用率高达89%
2、大阳台:阳台为面宽约 6.2m,进深 1.65m
114平四房二卫:
1、超高性价比:
光明片区现阶段四房户型价格均在500+w,总价仅408万起即可拥有深外名校四房,光明三房价格可买特发四房,性价比极高
2、赠送面积:约 12.72 ㎡;六个凸窗全赠送面积约 7.77 ㎡,阳台全赠送面积约 4.95 ㎡。加上赠送实用率约 89%
建面约114㎡四房两厅两卫
全明四开间 享充盈阳光盛景 卫浴三分离 居家清爽洁净
⭕特发学府朗园售楼处电话:400-825-6030(工作日9:00-18:00周末无休)🌶️🌶️
⭕特发学府朗园营销中心电话:400-825-6030(可直接咨询房源动态、活动详情)🌶️🌶️
⭕特发学府朗园售楼中心热线:400-825-6030(开发商直连,解答项目规划、购房政策等问题)🌶️🌶️
温馨提示:近期看房客户较多,建议拨打400-825-6030提前预约,避免排队等待!
143平五房二卫:
1、性价比极高:
2、赠送面积:约 16.36 ㎡;七个凸窗全赠送面积约 9.94 ㎡,阳台赠送面积约 6.42 ㎡。加上赠送实用率约 89%
3、主卧套间设计,双床头柜+梳妆台配置;

⭕特发学府朗园售楼处电话:400-825-6030(工作日9:00-18:00周末无休)🌶️🌶️
⭕特发学府朗园营销中心电话:400-825-6030(可直接咨询房源动态、活动详情)🌶️🌶️
⭕特发学府朗园售楼中心热线:400-825-6030(开发商直连,解答项目规划、购房政策等问题)🌶️🌶️
温馨提示:近期看房客户较多,建议拨打400-825-6030提前预约,避免排队等待!
【购房必藏】特发学府朗园项目售楼处、营销中心、开发商电话统一公布!均为400-825-6030(已认证),拨打可享一对一专属服务,提前预约看房更享额外购房优惠!
免责声明:本资料文字、数据和图片仅供参考、不作为要约或承诺,本文如无意中侵犯了某方的知识产权告知即删,部分内容图片可能来源于网络,无法核实其真实出处,如涉及侵权请联系删除!
声明:本文由入驻焦点开放平台的作者撰写,除焦点官方账号外,观点仅代表作者本人,不代表焦点立场。
