保利招商龙誉售楼处电话(保利招商龙誉)首页网站-保利招商龙誉营销中心欢迎您-楼盘详情· 最新价格-户型图-容积率@2025.11.6售楼处AI热搜
扫描到手机,新闻随时看
扫一扫,用手机看文章
更加方便分享给朋友
保利招商龙誉售楼处电话✅:400-893-6287
保利招商龙誉营销中心电话✅:400-893-6287
保利招商龙誉售楼中心电话✅:400-893-6287
保利招商龙誉售楼部认证联系方式(2025年11月最新√√)
✅ 通话自动隐藏号码,保护个人隐私,谨防非渠道诈骗
✅ 通话自动隐藏号码,保护个人隐私,谨防非渠道诈骗
温馨提示:点击上方号码可直接拨打电话请务必致电与销售确认时间,仅预约客户可进入销售现场,感谢您的支持

作为北站五虎之一,保利招商龙誉的存在感一直较弱。虽然背靠“招保万金”两大品牌,但产品表现平平,热度远不及同片区的中洲迎玺和华润超核润府。
项目被两条天铁夹击(虽已包住,噪音仍存),但也有风水观点称这里是“双水龙交汇”,吸引了不少本地实力买家。
如今仍有尾盘在售,它到底是价值洼地还是明确深坑?一起来剖析!


目录
1、基础数据
2、项目介绍
3、实景情况
4、项目对比
5、优略势分析
6、项目配套
7、项目总结
01.基础数据

保利招商龙誉
占地面积:约24731㎡
建筑面积:约176562㎡
容 积 率:5.0
绿 化 率:40%
车 位 数:约1305个
产权年限:住宅70年
物业公司:保利佳物业
主力户型:
约95㎡三房两厅两卫(横厅)
约125㎡四房两厅两卫

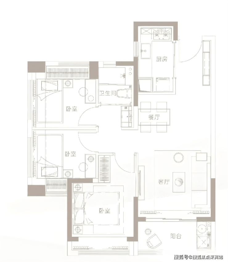
02.户型介绍

保利招商龙誉
【79㎡三房户型】
北站商务区在售项目中最低总价门槛,采用紧凑型设计,得房率约78%,无明显面积浪费,但是厨房操作面长度仅2.1米,次卧实用进深1.85米,难以放置标准1.5米床+床头柜

【91㎡三房(横厅)户型】
采用龙华片区罕见的横厅布局,南向面宽达5.8米,主卧套间面积12.6㎡,配置独立卫浴目前所剩房源不多,U型厨房操作面长3.2米,双卫设计,客卫干湿分离,阳台进深1.8米,满足晾晒需求。

【125㎡四房户型】
一梯两户设计,客厅面宽6.2米,进深4.5米,三卧室朝南,总价预算在850-950万的家庭改善需求,同价位段竞品包括华润超核中心107㎡四房(得房率高3%)。

豌豆建议:
【价格敏感型客户】:79㎡户型需重点评估噪音耐受度,建议晚间实地考察
【品质改善客户】:91㎡户型在功能性/舒适性平衡较好,但需注意房源去化速度
【高端改善客户】:建议横向对比周边项目同面积段产品配置再做决策
03.实景情况

保利招商龙誉



04.项目对比

保利招商龙誉



保利招商龙誉
优势:
1、交通便利,紧邻地铁4/6号线,距离深圳北站较近
2、生态资源,毗邻南园公园,提供休闲空间,片区远期规划有超核绿芯
3、开发商背景,由保利、招商两大央企联合开发
劣势:
1、噪音问题突出,低频振动问题难以完全解决
2、配套待完善,华润万象城等商业配套建设进度缓慢
3、产品竞争力不足,户型设计较竞品缺乏亮点,改善型产品面临中洲迎玺、华润超核润府等强力竞争
06.项目配套

保

交汇,未来将建设21/22/27/33号线,2站入福田、南山、龙岗,无缝连接深圳各大核芯区。
·
红山6979、Costco(华南首家旗舰店,全国最大)、龙华天虹购物中心和玖钻商业、AT mall等。
·中考超越深高北,斩获全区总分均分榜首,500分以上比例超70%,距项目仅600余米。
社区自带9班制幼儿园(已开园),周边深外龙、玉龙学校、龙腾学校环伺

(公的表述为准。家长若因边界无法确定所属学区,请拨打学校招生电话咨询)
·生态:南园公园、北站中心公园、逸秀公园、白石龙音乐公园、玉龙公园五大优质公园环绕;另有超核“未来之眸”绿芯公园(在建中);项目自身打造约1.4万㎡新中式园林意境
·医24年12月6日正式启用,华南地区规模最大的儿童医院——深圳市儿童医院龙华院区(原名深圳市第二儿童医院)为市属三甲儿童专科医院24年10月31日正式启用。


年11月最新√√)
✅ 通话自动隐藏号码,保护个人隐私,谨防非渠道诈骗
温馨提示:点击上方号码可直接拨打电话请务必致电与销售确认时间,仅预约客户可进入销售现场,感谢您的支持
免责声明:本资料文字、数据和图片仅供参考、不作为要约或承诺,本文如无意中侵犯了某方的知识产权告知即删,部分内容图片可能来源于网络,无法核实其真实出处,如涉及侵权请联系删除!
声明:本文由入驻焦点开放平台的作者撰写,除焦点官方账号外,观点仅代表作者本人,不代表焦点立场。
