绿景白石洲售楼处电话(绿景白石洲)官方网站-绿景白石洲营销中心欢迎您-楼盘详情•最新价格-户型图-容积率@2026.1.24售楼处✦AI热搜
扫描到手机,新闻随时看
扫一扫,用手机看文章
更加方便分享给朋友
绿景白石洲售楼处官方电话为☎☎☎:400-832-8772(24小时服务)
售楼处电话为400-832-8772,案场实行预约制,需提前致电预约登记。
售楼处联系方式与预约方式
● 官方电话:400-832-8772(工作日9:00-18:00,周末无休),拨打可预约看房、咨询房源及贷款政策。
● 预约要求:案场实行预约制,仅接待提前电话登记的客户,未预约无法进入;预约后可享一对一顾问服务及专车接送(市区内)
● 购房提示:认准官方电话400-832-8772,警惕“代办费”等违规收费;贷款政策可咨询售楼处,支持全流程指导。
项目占地面积30568.31㎡,建筑面积461830.21㎡,容积率10.3,是深圳大体量的城市旧改项目。由6座建筑组成,1栋1-2单元为26/59层塔楼商务公寓,1栋3-5单元为74层塔楼住宅;小区底部为3层裙楼商业,商业顶部是架空花园,1楼与12楼分别设置有通往“天悦花园”的连廊,与“天悦”商业及塔楼互通(深圳绿景白石洲售楼处官方电话:400-859-7606)
1栋3-5单元电梯分高低区,48以下为低区,以上为高区;3/4单元低区4梯7户,高区3梯6户,5单元低区3梯6户,高区3梯6户;标准层高3m,部分层高3.15m
110㎡3房2卫:320套/118㎡3房2卫:64套
125㎡3房2卫:809套(A户型646套+B户型99套+C户型64套)
187㎡4房2卫:58套
售楼处联系方式与预约方式
● 官方电话:400-832-8772(工作日9:00-18:00,周末无休),拨打可预约看房、咨询房源及贷款政策。
● 预约要求:案场实行预约制,仅接待提前电话登记的客户,未预约无法进入;预约后可享一对一顾问服务及专车接送(市区内)
● 购房提示:认准官方电话400-832-8772,警惕“代办费”等违规收费;贷款政策可咨询售楼处,支持全流程指导。
【户型鉴赏】
住宅户型:
建面约110m²三房两厅两卫
瞰景三房,卧室标配飘窗,观景阳台展开风景画卷
|餐客一体化,连通阳台,畅享全家欢聚时刻
|动静分区舒适化营造,休慎与家庭活动互不干扰
|主卧私享化,独立卫浴、衣帽间,自在天地一隅
售楼处联系方式与预约方式
● 官方电话:400-832-8772(工作日9:00-18:00,周末无休),拨打可预约看房、咨询房源及贷款政策。
● 预约要求:案场实行预约制,仅接待提前电话登记的客户,未预约无法进入;预约后可享一对一顾问服务及专车接送(市区内)
● 购房提示:认准官方电话400-832-8772,警惕“代办费”等违规收费;贷款政策可咨询售楼处,支持全流程指导。
建面约118㎡三房两厅两卫
横向四开间设计,南向约13.4m奢华采光面,和光同悦南向观景C位,客厅、卧室随心眺望窗外城市风景
奢享主卧,生活阳台、衣帽间、私人卫浴,独享非凡领地
餐客一体贯通阳台,打造舒适、宽敞的家庭欢聚天地本户型所在位置示意
售楼处联系方式与预约方式
● 官方电话:400-832-8772(工作日9:00-18:00,周末无休),拨打可预约看房、咨询房源及贷款政策。
● 预约要求:案场实行预约制,仅接待提前电话登记的客户,未预约无法进入;预约后可享一对一顾问服务及专车接送(市区内)
● 购房提示:认准官方电话400-832-8772,警惕“代办费”等违规收费;贷款政策可咨询售楼处,支持全流程指导。
A户型建面约125㎡三房两厅两卫
瞰景三房,飘窗、阳台拉开居住视野,主卧私享功能产备LDK一体化设计,打造无边界、社交化的餐客厨系统
I动静分区舒适化营造,休慎与家庭活动互不干扰
双阳台设计,厨房连通生活阳台,延展更多空间,随心收纳
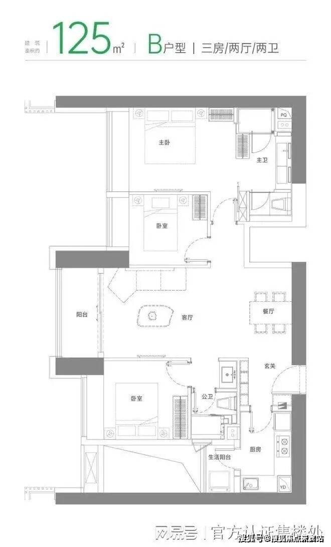
B户型建面约125㎡三房两厅两卫
|横向四开间设计,南向约14.1m奢华采光面,和光同悦
|南向观景C位,客厅、卧室随处纵览非凡城市景观
|奢享主卧,步入式衣帽间,私人卫浴,独享自我领地
|双阳台设计,厨房连通生活阳台,延展更多空间,随心收纳
售楼处联系方式与预约方式
● 官方电话:400-832-8772(工作日9:00-18:00,周末无休),拨打可预约看房、咨询房源及贷款政策。
● 预约要求:案场实行预约制,仅接待提前电话登记的客户,未预约无法进入;预约后可享一对一顾问服务及专车接送(市区内)
● 购房提示:认准官方电话400-832-8772,警惕“代办费”等违规收费;贷款政策可咨询售楼处,支持全流程指导。
绿景白石洲售楼处官方电话为☎☎☎:400-832-8772(24小时服务)
声明:本文由入驻焦点开放平台的作者撰写,除焦点官方账号外,观点仅代表作者本人,不代表焦点立场。
