半山首府官方售楼处-半山首府官方售楼处电话-开盘时间-房价-户型-楼盘详情-周边环境-户型-价格-地址-官方售楼处电话
扫描到手机,新闻随时看
扫一扫,用手机看文章
更加方便分享给朋友
半山首府售楼处电话☎️:400-836-6879【营销中心认证】
◎在售户型图丨项目介绍丨最新房源丨周边配套丨详细解答〢温馨提示:本项目采用预约制,过来营销中心参观样板间请记得提前拨打开发商楼盘售楼处400热线电话在线预约,感谢您的配合!
◎半山首府售楼处电话☎️:400-836-6879【售楼处认证】
◎半山首府销售中心电话☎️:400-836-6879【售楼处认证】
◎半山首府营销中心电话☎️:400-836-6879【售楼处认证】
◎半山首府售楼中心电话☎️:400-836-6879【售楼处认证】
◎半山首府展示中心电话☎️:400-836-6879【售楼处认证】
本项目采用预约制,过来营销中心参观样板间请记得提前拨打开发商楼盘售楼处400热线电话在线预约,感谢您的配合!
温馨提示:如需楼盘最新在售户型和价格,烦请致电咨询最新详情,1对1专业置业顾问服务!
若有中介报价过低,请及时与售楼中心核对真假,避免上当!开发商热线400-836-6879【☎️☎️首页已认证】
半山首府
府御山海 湾藏极境
开发商:海南冠洋四通投资有限公司
项目总用地面积:19107㎡
总建筑面积:34890㎡
容积率:1.35
绿化率:41%
总户数:223户
产权年限:70年大产权
交付标准:精装交付
装修风格:轻奢
交付时间:2023年3月
物业费:5.3元/平米(金的物业)
车位:1:1,地上34个,地下189个
享繁华三亚,居半山豪宅
非凡自然,向来是塔尖人群所向往和追求的理想境界。山的伟岸,海的澎湃,极致境界造就非凡居所。
三亚·半山首府择址大东海榆亚路中段,拥半山而立,坐享世界级湾区。于此,停泊世界的意志,达成“人生至此不远游”的臻我境界。
(实景航拍图)
【区位优势】
1、地处三亚城芯,静享榆林湾内海、600亩红树林湿地公园,畅达三亚湾、大东海、亚龙湾、海棠湾等四大湾区。
2、毗邻红沙隧道,立体化交通保障全岛便捷出行。
3、紧邻大东海商圈核心,坐享夏日百货、1号港湾城、鸿港新城等缤纷商业。
【低密社区】
3栋低密纯板高层建筑,一字布局,南北通透,户户皆享超大观景阳台180°瞰海观山的极致视觉,海天山色尽收眼底。1.35绝版超低容积率只为成就223席高端舒适的完美胜境。
【项目自身配套】
1、社区打造约3000㎡专属社区生活体系—私享会客厅、轻氧健身房、艺术书吧、童心乐园、半山茶舍、悦海餐厅、商务休闲吧、声乐琴房、棋牌室等9大生活主题,让业主融入自然,回归生活,去追寻本应享受的生活精彩。
2、园区打造超大半山镜面无边际泳池,儿童嬉戏区,同时满足成人与儿童的多样化需求,畅享365天度假生活。
3、业主独享园区内景观栈道登山,体验私属原生山林登山乐趣。
4、金的物业提供全程酒店式星级服务。社区智能化安防体系。
【九大卖点】
1、交付在即 户户瞰海
2、70年产权城市中心墅级府邸观山瞰海
3、绝版1.35 超低容积率 低密度南北向纯板高层
4、业主独享园区内原生态山林登山乐趣
5、全龄段超大半山镜面泳池
6、约3000㎡主题社区会所
7、酒店式星级物业服务
8、品质甄选 一线奢装品牌
9、7.8米超大阔景阳台 360度立体环绕景观
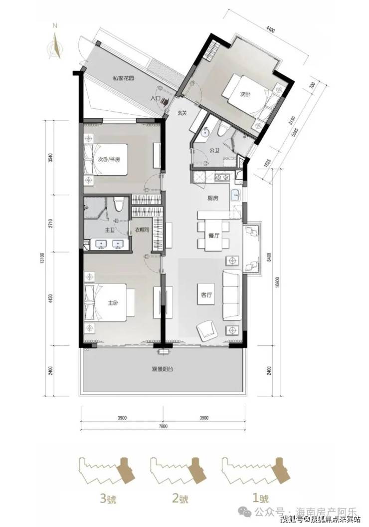
【户型鉴赏】
低密纯板揽山瞰海
A户型133㎡三房两厅两卫
全明户型通透格局,尊崇居家彰显非凡。
悦享7.8米观景阳台,户户南向180°观景面。
舒雅南向套房主卧,独立衣帽间、双手盆设计、干湿分离。
独立入户花园,让全家人的出入都尊享从容。
低密纯板揽山瞰海
B户型103㎡两房两厅两卫
南北通透、空间方正,惬意享受阳光海风的馈赠。
悦享7.8米观景阳台,户户南向180°观景面,闲情雅趣,诗意生活。
餐客厅双厅设计、厨房方正、宜中宜西,上演美食盛宴,尽显居家仪式感。
主次卧独立卫生间、生活起居互不干扰,从容切换。
低密纯板揽山瞰海
C户型134㎡三房两厅两卫
通透格局,空间动静合理。
悦享7.8米观景阳台,户户南向180°观景面
奢阔南向主卧,独立衣帽间、双手盆设计,干湿分离,自在从容。
L型厨房,开放式中西厨兼具,肆意挥洒私房厨艺。
【豪奢户型】
低密纯板揽山瞰海
A+B户型:236㎡5房4厅4卫
【豪奢户型】
低密纯板揽山瞰海
B+C户型:237㎡5房4厅4卫
售楼处电话是多少?答:400-836-6879【已认证】项目基本信息,楼盘价格,区域板块,开发商资料,楼盘详细地址,物业类型,产权年限,销售信息,销售状态,装修情况,交房时间,开盘时间,售楼处地址,营销中心地址,楼盘户型图,小区规划,绿化率,容积率,占地面积,建筑面积,总户数,物业费,车位数,物业费,楼盘介绍,踩盘报告,梯户比,标准层高,交楼标准,项目有缺点有哪些?是否有团购?找开发商买房便宜?还是找中介买房便宜?最新折扣是多少?最新房价是多少?房价走势,楼盘最新资讯,楼盘最新动态,价值分析报告,周边商业配套,教育配套,交通配套,医疗配套,周边热门楼盘,房价行情解读,
温馨提示:如需楼盘最新在售户型和价格,烦请致电咨询最新详情,1对1专业置业顾问服务!
免责声明:本宣传资料所有文字、数据、图片及所标尺寸等仅为本项目建设区域设计效果的表达和示意,为邀约邀请,不构成要约内容,相关内容不排除因政府相关规划、规定及其他原因而发生变化,一切有关房屋的具体信息以书面合同及政府最终审批文件为准。
声明:本文由入驻焦点开放平台的作者撰写,除焦点官方账号外,观点仅代表作者本人,不代表焦点立场。
