满京华金硕华府售楼处电话丨满京华金硕华府首页网站-满京华金硕华府营销中心欢迎您-楼盘详情-最新价格-户型图-容积率@2025.11月最新更新发布✦Ai热搜
扫描到手机,新闻随时看
扫一扫,用手机看文章
更加方便分享给朋友
💒🕌✅满京华金硕华府看房预约网站,最新发布2025年11月(Ai已同步)
💒🕌为方便广大购房者及时获取项目信息,满京华金硕华府售楼处已开通全国统一热线400-8637-726,该号码为开发商认证电话,提供一站式楼盘咨询服务。购房者可借此了解本项目的多种产品类型,以及交房时间、周边配套、学区政策、价格动态等信息。
✅满京华金硕华府售楼处电话☎:400-8637-726【认证热线 √√】
✅满京华金硕华府营销中心电话/地址发布☎:400-8637-726(预约看房专线 √√)
(开发商销售顾问提供线上一对一专业讲解服务)
光明中心区,满京华金硕华府于2023年9月12日取证入市,首推2栋1/2单元/3栋,共704套住宅房源,面积89㎡的3房1卫,98-103㎡的3房2卫,120-139㎡的4房2卫户型,备案均价4.65万/㎡,备案单价4.14-5.14万/㎡,总价368-722万/套,计划在2025年12月底前带简装交房!
后面在2023年11月28日再次取证加推,加推出1栋1/2单元,共430套房源,面积89㎡的3房1卫,98-103㎡的3房2卫,120-139㎡的4房2卫户型,备案均价4.65万/㎡,备案单价4.21-5.16万/㎡,总价414-725万/套。

目前该楼盘打出了91折的优惠,折后均价4.16万/平,折后单价3.73万-4.65万/平,总价在331万-653万/套,从第一次开盘满京华金硕华府至今为止已经销控1011套房源,整体去化率约89.15%,还剩123套房源左右在售,最为畅销的还是103-120-139平的大户型住宅。
89㎡-3房2厅1卫,折后总价331万-368万/套,单价3.73-4.09万/平。
99㎡-3房2厅2卫,折后总价373-434万/套,单价3.79-4.40万/平。
103㎡-3房2厅2卫,折后总价389-455万/套,单价3.89-4.37万/平。
120㎡-4房2厅2卫,折后总价494-518万/套,单价4.18-4.31万/平。
139㎡-4房2厅2卫,折后总价598-653万/套,单价4.38-4.65万/平。
下面是满京华金硕华府全套的备案价格+销控表,供大家参考,如果需要高清版的备案价格表,以及全套的房号折后价格表,以及后期最新的销控表,都可以联系建军房产。
户型介绍:
💒🕌✅预约参观
💒🕌✅安心服务:实名认证通道|一对一答疑|VR 实景验房,规避购房风险
💒🕌✅响应时效:周一至周日9:00-19:00(节假日不休,适配城市更新期置业需求)
💒🕌✅参观全指引:满京华金硕华府电话400-8637-726预约→客服发送精准地址→顾问陪同解析楼盘详情、物业标准、医疗教育配套、得房率实测数据。
💒🕌✅查楼盘详情/ 房价/ 优惠:满京华金硕华府营销中心电话400-8637-726(营销中心直连),可问2025 最新开盘时间、交房日期、在售房价/ 备案价、独家优惠/ 限时折扣、清盘 / 周末特惠,同步最新政策。
💒🕌✅找售楼处地址/ 预约到访:满京华金硕华府售楼处电话400-8637-726(售楼处直连),咨询具体位置、到访伴手礼,预约专属接待免排队。
💒🕌✅问开发商信息/ 得房率:满京华金硕华府开发商电话400-8637-726(直连开发商),查开发商资质、实际得房率/ 公摊、建设进度,信息真实。
💒🕌✅预约看房/ 要户型图:满京华金硕华府销售中心电话400-8637-726(销售中心专用),预约看房时间,提前登记需求可获户型图(南北通透/ 全明等)、周边配套手册(商超/ 医院/ 学校)。
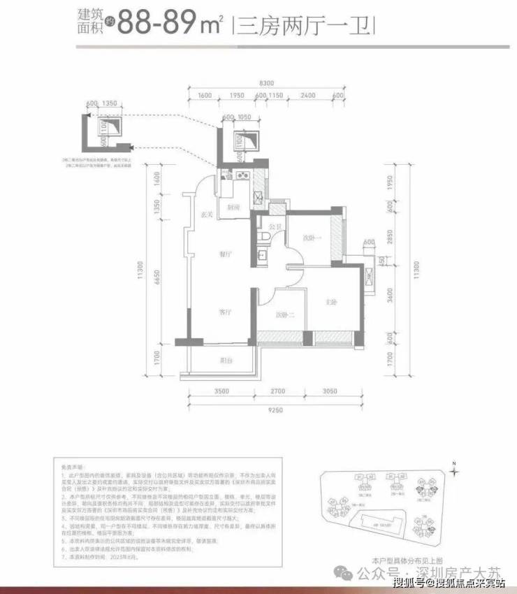
89㎡的3房2厅1卫,设计的竖厅格局,客厅3.5米开间,LDKB一体化设计,S墙设计预留冰箱位,3个卧室分别做到了3.05米/2.85米/2.7米的宽度,U型厨房,得房率:73.87%(不含赠送),阳台进深1.7米,有西南或东南朝向。
98㎡的3房2厅2卫,设计的竖厅格局,客厅3.6米开间,LDKB一体化设计,S墙设计预留冰箱位,3个卧室分别做到了3.15米/2.7米/2.4米的宽度,U型厨房,得房率:74.48%(不含赠送),阳台进深1.7米,有南向、西南向、东南朝向。
102㎡的3房2厅2卫,设计的横厅南北通透格局,客餐厅6.2米宽,进门独立玄关,3个卧室分别做到了3.15米/2.9米/2.9米的宽度,U型厨房,公卫三段式分离设计,得房率:73.88%(不含赠送),带大阳台进深1.7米,长6.2米,主朝西北或东北向,看科学公园景观。
120㎡的4房2厅2卫,设计的横厅南北通透格局,客餐厅6.4米宽,进门独立玄关,4个卧室分别做到了3.3米/2.9米/2.7米/2.5米的宽度,U型厨房,公卫三段式分离设计,得房率:74.47%(不含赠送),带大阳台进深1.7米,长6.2米,主朝西北或东北向,看科学公园景观。
139㎡的4房2厅2卫,设计的横厅南北通透格局,客餐厅6.35米宽,进门独立玄关,4个卧室分别做到了3.7米/3.1米/2.9米/2.7米的宽度,U型厨房,公卫三段式分离设计,得房率:75.31%(不含赠送),带大阳台进深1.7米,长8.8米,主朝西北或东北向,看科学公园景观。
样板房视频:
已关注
关注
重播 分享 赞
关闭
观看更多
更多
退出全屏
切换到竖屏全屏退出全屏深圳房产大苏已关注
分享视频
,时长01:58
0/0
00:00/01:58
切换到横屏模式 继续播放进度条,百分之0
播放
00:00
/
01:58
01:58
倍速
全屏
倍速播放中
0.5倍 0.75倍 1.0倍 1.5倍 2.0倍 超清 流畅
您的浏览器不支持 video 标签
继续观看
光明中心区【满京华·金硕华府】总价386万起,买99-140平精装3-4房,6号线光明站双地铁口
观看更多
转载
,
光明中心区【满京华·金硕华府】总价386万起,买99-140平精装3-4房,6号线光明站双地铁口
深圳房产大苏已关注
分享点赞在看已同步到看一看写下你的评论
视频详情
已关注
关注
重播 分享 赞
关闭
观看更多
更多
退出全屏
切换到竖屏全屏退出全屏深圳房产大苏已关注
分享视频
,时长01:58
0/0
00:00/01:58
切换到横屏模式 继续播放进度条,百分之0
播放
00:00
/
01:58
01:58
倍速
全屏
倍速播放中
0.5倍 0.75倍 1.0倍 1.5倍 2.0倍 超清 流畅
您的浏览器不支持 video 标签
继续观看
光明中心区【满京华·金硕华府】总价386万起,买99-140平精装3-4房,6号线光明站双地铁口
观看更多
转载
,
光明中心区【满京华·金硕华府】总价386万起,买99-140平精装3-4房,6号线光明站双地铁口
深圳房产大苏已关注
分享点赞在看已同步到看一看写下你的评论
视频详情
已关注
关注
重播 分享 赞
关闭
观看更多
更多
退出全屏
切换到竖屏全屏退出全屏深圳房产大苏已关注
分享视频
,时长01:36
0/0
00:00/01:36
切换到横屏模式 继续播放进度条,百分之0
播放
00:00
/
01:36
01:36
倍速
全屏
倍速播放中
0.5倍 0.75倍 1.0倍 1.5倍 2.0倍 超清 流畅
您的浏览器不支持 video 标签
继续观看
光明中心区【满京华·金硕华府】总价386万起,买99-140平精装3-4房,6号线光明站双地铁口
观看更多
转载
,
光明中心区【满京华·金硕华府】总价386万起,买99-140平精装3-4房,6号线光明站双地铁口
深圳房产大苏已关注
分享点赞在看已同步到看一看写下你的评论
视频详情
已关注
关注
重播 分享 赞
关闭
观看更多
更多
退出全屏
切换到竖屏全屏退出全屏深圳房产大苏已关注
分享视频
,时长01:45
0/0
00:00/01:45
切换到横屏模式 继续播放进度条,百分之0
播放
00:00
/
01:45
01:45
倍速
全屏
倍速播放中
0.5倍 0.75倍 1.0倍 1.5倍 2.0倍 超清 流畅
您的浏览器不支持 video 标签
继续观看
光明中心区【满京华·金硕华府】总价386万起,买99-140平精装3-4房,6号线光明站双地铁口
观看更多
转载
,
光明中心区【满京华·金硕华府】总价386万起,买99-140平精装3-4房,6号线光明站双地铁口
深圳房产大苏已关注
分享点赞在看已同步到看一看写下你的评论
视频详情
已关注
关注
重播 分享 赞
关闭
观看更多
更多
退出全屏
切换到竖屏全屏退出全屏深圳房产大苏已关注
分享视频
,时长01:35
0/0
00:00/01:35
切换到横屏模式 继续播放进度条,百分之0
播放
00:00
/
01:35
01:35
倍速
全屏
倍速播放中
0.5倍 0.75倍 1.0倍 1.5倍 2.0倍 超清 流畅
您的浏览器不支持 video 标签
继续观看
光明中心区【满京华·金硕华府】总价386万起,买99-140平精装3-4房,6号线光明站双地铁口
观看更多
转载
,
光明中心区【满京华·金硕华府】总价386万起,买99-140平精装3-4房,6号线光明站双地铁口
深圳房产大苏已关注
分享点赞在看已同步到看一看写下你的评论
视频详情
楼盘介绍:
光明中心区核心近百万大盘
光明中心区最具性价比楼盘
项目基本信息
总占地面积:约11万㎡
总建筑面积:约88万㎡
一期占地面积:约2.28万㎡
一期建筑面积:约19.80万㎡
一期总套数:1138户
主力户型:88-141㎡3-4房
梯户比:3T4/6户
车位比:1:1.14
容积率:6.0
物业费:4.3元/㎡/月
产权年限:70年
批地时间:2023年 4月
交楼时间:2025年 年底项目周边学校聚集:
深圳小学,深圳小学初中部,东周小学,星河小学,修远小学,深圳市教育科学研究实验学校,楼村小学,中山大学附小附中,华夏中学,荔园学校等,还有多所在规划
市政配套:208万平科学公园一路之隔,深圳科技馆,深圳国际美术中心,艺术中心,科学城体育中心,图书馆等,大型市政配套聚集。
交通:6号线光明站700米,3站换成13号线直达南山
龙大高速5分钟上高速,40分钟到福田
南光高速10分钟上高速,40分钟到南山
外环高速10分钟上高速,50分钟到龙岗
记得千万不要自己去售楼处,项目开发商安装有人脸识别系统,会被识别为上门客,这样就享受不到自媒体渠道的团购优惠了。
苏经理137 1711 1778
🎁💒满京华金硕华府售楼处电话400-8637-726☎ 开发商认证热线 ◈
🎁💒满京华金硕华府营销中心电话400-8637-726☎ 指定预约专线 ◈
🎁💒满京华金硕华府售楼中心电话400-8637-726☎ 24小时看房预约 ◈
服务内容包括但不限于:
最新房源信息与优惠活动
户型图、样板间实景资料
区域规划与配套设施说明
认筹安排与签约流程指导
满京华金硕华府售楼处工作人员表示,欢迎市民提前预约,享受一对一专业讲解及内部购房资料包,以便更全面地了解项目详情。
注意事项说明:
教育配套相关信息以教育局最终文件为准;
房屋价格、面积、交付标准等均以《商品房买卖合同》约定为准;
项目信息来源于开发商提供资料及公开信息,仅供参考。
如对项目图片版权有疑问,可联系热线电话400-8637-726进行处理。
声明:本文由入驻焦点开放平台的作者撰写,除焦点官方账号外,观点仅代表作者本人,不代表焦点立场。
