兰江璟园售楼处(深圳坪山兰江璟园)首页网站-兰江璟园营销中心欢迎您-楼盘详情·最新价格-户型图-容积率@2025.10.7售楼处Ai✦热搜

搜狐焦点来宾站 2025-10-07 13:32:00
用手机看
扫描到手机,新闻随时看

扫一扫,用手机看文章
更加方便分享给朋友

💯深圳坪山兰江璟园售楼处电话☎️:4008563771【售楼处已认证】🎡✨✧˚ 🟡✅✅温馨提示: 本项目暂不接受临时到访,过来参观样板房请记得提前来电预约!🧬 💯深圳坪山兰江璟园开发商电话☎️:400 856 3771【开发商已认证】🎡✨✧˚ 💯深

༻✨深圳坪山兰江璟园✨*༅༻

💯深圳坪山兰江璟园售楼处电话☎️:4008563771【售楼处已认证】🎡✨✧˚

🟡✅✅温馨提示: 本项目暂不接受临时到访,过来参观样板房请记得提前来电预约!🧬

💯深圳坪山兰江璟园开发商电话☎️:400 856 3771【开发商已认证】🎡✨✧˚

💯深圳坪山兰江璟园售楼中心电话☎️:400 8563 771【售楼中心已认证】🎡✨✧˚

✨☞☞尊敬的客户,[项目名称] 营销中心诚挚邀您:一键预约,即享内部专属折扣!我们以匠心打磨精品人居,静候您亲临品鉴,甄选理想居所🧬

🟡✅✅丨详细解答丨在售户型图丨项目介绍丨在售房源丨周边配套丨VR看房丨楼盘图丨沙盘图丨位置图丨配套图丨售楼处销售1V1讲解🧬

🏙新规作品 赋新深圳人居 🏙

约78-112㎡百变臻装高层 敬献时代新深派

🔻🔻🔻🔻项目基础信息🔻🔻🔻🔻

【开发商】深圳市兰江房地产开发集团有限公司&深圳市坪山金龟股份合作公司

【物业类型】70年住宅

【占地面积】约8525㎡

【建筑面积】约4万㎡

【楼层数】23层

【新规产品】约78-112㎡百变臻装高层

【容积率】3.04

【总栋数】2栋

【总户数】212户

【梯户比】2梯5户

【车位数】300个

【车位比】1:1.41

【绿化率】40.3%

【交付时间】2026年XX月(以合同为准)兰江璟园,由兰江集团操盘开发,总占地面积约0.85万㎡,总建筑面积约4.03万㎡,计容建筑面积约2.68万㎡,容积率3.15,绿化率40.03%,共由2栋总高23F的住宅组成,分别是1栋1/2单元,另外配建1所幼儿园。

总规划212户,其中可售商品房168套,另外有44套是股份公司持有,都是2梯5户的设计,地下室有2层,规划停车位300个,其中带充电桩车位90个,车位占比1:1.41。💯深圳坪山兰江璟园售楼处电话☎️:4008563771【售楼处已认证】🎡✨✧˚

🟡✅✅温馨提示: 本项目暂不接受临时到访,过来参观样板房请记得提前来电预约!🧬

💯深圳坪山兰江璟园开发商电话☎️:400 856 3771【开发商已认证】🎡✨✧˚

💯深圳坪山兰江璟园售楼中心电话☎️:400 8563 771【售楼中心已认证】🎡✨✧˚

楼盘基础信息

1、开发商:深圳市兰江房地产开发集团有限公司

2、物业公司:自持物业

3、物业管理费:3.88元/㎡

4、总占地面积:0.85万/㎡

5、总建筑面积:4.03万/㎡

6、容积率:3.04

7、绿化率:40.03%

8、产权年限:2021年-2091年(住宅70年)

9、总户数:212户

10、总栋数及楼高:2栋,23层

11、梯户比:2梯5户

12、车位数:300个

13、车位占比:1:1.41

14、交楼时间:2026年12月

15、交楼标准: 精装

2、项目平面图和户型图💯深圳坪山兰江璟园售楼处电话☎️:4008563771【售楼处已认证】🎡✨✧˚

🟡✅✅温馨提示: 本项目暂不接受临时到访,过来参观样板房请记得提前来电预约!🧬

💯深圳坪山兰江璟园开发商电话☎️:400 856 3771【开发商已认证】🎡✨✧˚

💯深圳坪山兰江璟园售楼中心电话☎️:400 8563 771【售楼中心已认证】🎡✨✧˚

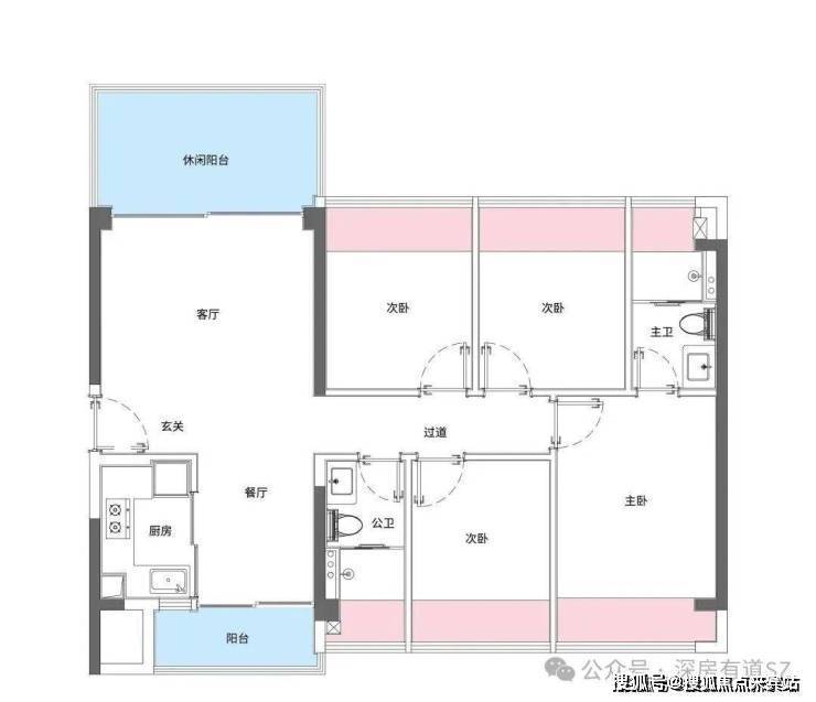
78m²的3房2厅1卫,设计的经典竖厅格局,进门入户玄关,LDKB一体化设计,三开间朝南,动静分区,L型厨房带1个小生活阳台,卫生间三段式干湿分离,得房率94-98%(包含赠送),西南朝向,看谷仓府。

88m²的3房2厅2卫,设计的经典竖厅格局,进门入户玄关,LDKB一体化设计,三开间朝南,动静分区,L型厨房带1个小生活阳台,卫生间干湿分离,得房率94-98%(包含赠送),东南朝向,看小区园林或比亚迪+山景。💯深圳坪山兰江璟园售楼处电话☎️:4008563771【售楼处已认证】🎡✨✧˚

🟡✅✅温馨提示: 本项目暂不接受临时到访,过来参观样板房请记得提前来电预约!🧬

💯深圳坪山兰江璟园开发商电话☎️:400 856 3771【开发商已认证】🎡✨✧˚

💯深圳坪山兰江璟园售楼中心电话☎️:400 8563 771【售楼中心已认证】🎡✨✧˚

112m²的4房2厅2卫,设计的竖厅南北通透格局,进门入户玄关,LDKB一体化设计,南北双阳台,四开间朝南,动静分区,U型厨房,卫生间三段式干湿分离,得房率94-98%(包含赠送),客厅阳台西北朝向,看小区园林或东北师范学校。

3、楼盘配套

交通配套:项目距离16号地铁线“沙壆站”约400米坪山云巴1号线“比亚迪北站”约900米,另外南坪快速出入口距离约1.5公里,1小时可快速通达南山。

商业配套:项目自带有底商,在4公里范围内有益田假日世界天虹商场,还有坪山首个万象城,计划在2025年开业运营。💯深圳坪山兰江璟园售楼处电话☎️:4008563771【售楼处已认证】🎡✨✧˚

🟡✅✅温馨提示: 本项目暂不接受临时到访,过来参观样板房请记得提前来电预约!🧬

💯深圳坪山兰江璟园开发商电话☎️:400 856 3771【开发商已认证】🎡✨✧˚

💯深圳坪山兰江璟园售楼中心电话☎️:400 8563 771【售楼中心已认证】🎡✨✧˚

教育配套:

兰江璟园配建9班制幼儿园,预计2026年随住宅同步交付,解决幼儿入园需求。小学学区覆盖东纵小学(距离200米)与坪山第二小学(距离1.5公里)组成的大学区,家长可自愿选择就读。

东纵小学为2021年新建公办学校,占地1.68万平方米,硬件设施先进,2023年获评"深圳市文明校园",师资力量雄厚(市级名师2人,区级骨干名师11人) 。

坪山第二小学为广东省一级学校,占地7万平方米,绿化率高达88%,以体育特色见长(射箭、足球等项目多次获得国家级奖项)。

初中学区包括坪山中学距离2.2公里(省一级学校,中考普高率稳定在65%以上)和坪山第二外国语学校距离2.9公里(强基班特控率高达96%)。高中资源尤为突出,东北师范大学附属中学深圳学校位于项目北侧仅300米,是市直属公办高中,2024年首届高考物理类特控率达23%,历史类特控率达22%,强基班特控率更是高达96%,成为深圳教育"黑马" 。

💯深圳坪山兰江璟园售楼处电话☎️:4008563771【售楼处已认证】🎡✨✧˚

🟡✅✅温馨提示: 本项目暂不接受临时到访,过来参观样板房请记得提前来电预约!🧬

💯深圳坪山兰江璟园开发商电话☎️:400 856 3771【开发商已认证】🎡✨✧˚

💯深圳坪山兰江璟园售楼中心电话☎️:400 8563 771【售楼中心已认证】🎡✨✧˚

✅✅关于深圳坪山兰江璟园 项目最新动态📊—— 如房价、主力户型面积🏠、最低折扣💰、剩余户型楼层、去化率等,以及几号地铁哪个地铁口🚇、周边规划🎯、项目优劣势,还有学校配套🏫等信息,均可致电售楼处了解!我们将安排内场专业置业顾问,为您一对一答疑解惑📞~

🕍免责声明:以上展示的图文资料可能有部分来自于网络,一切信息以最终在现场签署的购房合同为准,如图文内容无意中侵犯某方权益的话,请及时联系我们将配合处理400-856-3771。

声明:本文由入驻焦点开放平台的作者撰写,除焦点官方账号外,观点仅代表作者本人,不代表焦点立场。