《会展湾云岸售楼处年底冲刺电话 (会展湾云岸) 首页网站-会展湾云岸营销中心欢迎您-楼盘详情・最新价格-户型图-容积率@2025.12.8售楼处AI热搜》
扫描到手机,新闻随时看
扫一扫,用手机看文章
更加方便分享给朋友
Huizhanwan
会展湾·云岸
01
项目概况
【项目地址】:深圳宝安区展云路与重庆路交汇处
【总占地】:约5.3万㎡
【总建面】:约8.8万㎡
【产权年限】 : 40年
【容积率】:1.66
【商务公寓】 : 约35016㎡
【商业】 : 约10316㎡
【办公】:约42500㎡
【停车位】:773个
【物业公司】:深圳华侨城湾区发展有限公司
【物业费】:7元/㎡
【交付时间】:2022年10月31日
02
七大价值亮点
立足湾区核心,多重战略区位叠加,深圳经济增长极
全球第一大会展综合体,鼎立湾区门户
全球最大会展中心,深圳面向全球的窗口
9倍会展经济带动效应,深圳经济加速器350万会展经济圈
融创冰雪文旅城,世界级文旅配套
两大央企华侨城&招商联袂,品牌保障实力护航
湾区五维立体交通,构建跨越时区的交通网
03
五大必买理由
一个核心—粤港澳之核、大湾区之心
29平方公里会展新城—珠三角广深港发展走廊核心,由“三城一港”构成—国际会展城、海洋新城、会展田园城和综合港区,打造深圳在全球科技创新和海洋中心城市的重要战略之称
国际会展城—全球会展产业发展高地,形成“会展+科创”的世界会展产业示范区
海陆空铁轨、湾区1小时经济圈
地铁:20号线地铁国展南站园区上盖,1站可达国际机场,预计年底通车。12号线途经南山和宝安两个行政区,无缝衔接11号线和6号线,预计2022年年底通车,未来将实现20分钟抵达市中心区
轨道:穗莞深城际已开通,迅速链接市内各区及珠三角城市
陆路:现有4条快速干道(沿江,广深,外环,京港澳),在建深中通道,滨江大道规划中,即将全面构建大湾区交通网络
航空:深圳宝安国际机场T3航站楼已启用,T4航站楼与机场第三跑道在建,未来可实现多条航线直飞全球超120个城市
超300万方深圳会展湾 拉动区域经济引擎
约160万㎡深圳会展中心,约154万㎡会展综合配套,形成包含城市地标、产业总部、商业中心、国际酒店群、产业展馆、精品公寓、生态公园、交通枢纽等复合功能物业群,构建集全球信息交流和消费体验于一体的会展商务平台
会展中心经济带动产业1:9,深圳经济增长级
第三,要做好后继人才的培养工作。公司成立十一年了,当年创业的壮年人已经逐渐变成了老年
会展湾酒店供不应求,缺口巨大
2021年展会排期超60场,预计总展览面积超280万㎡、参展人数预计将超300万人,无限拉动周边区域配套收入,会展湾酒店供不应求,缺口巨大,公寓价值凸显
04
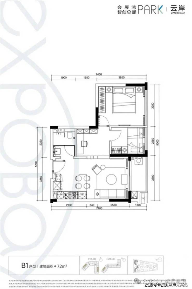
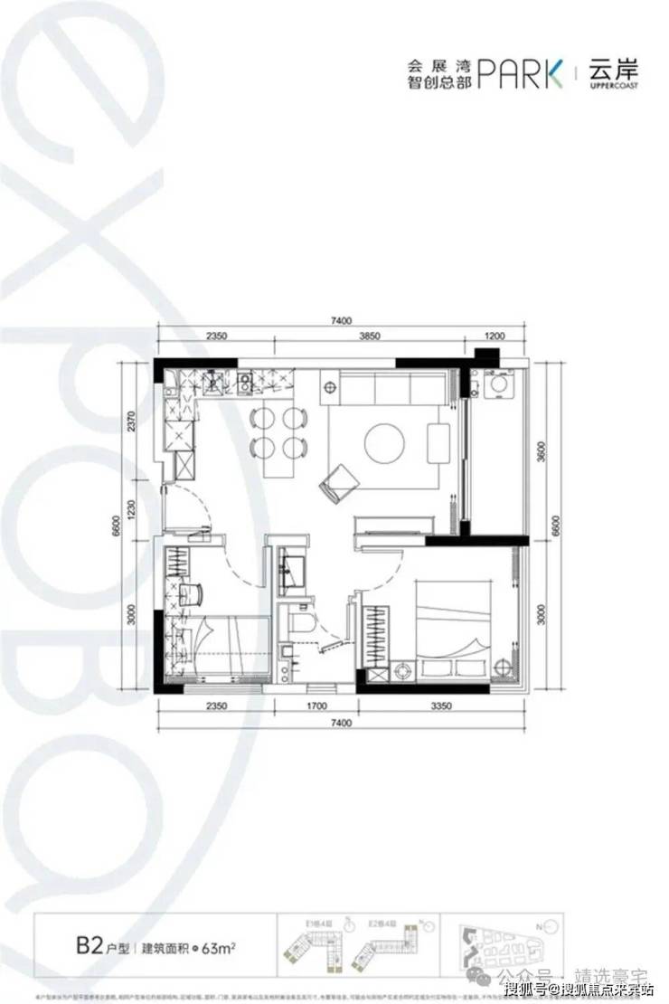
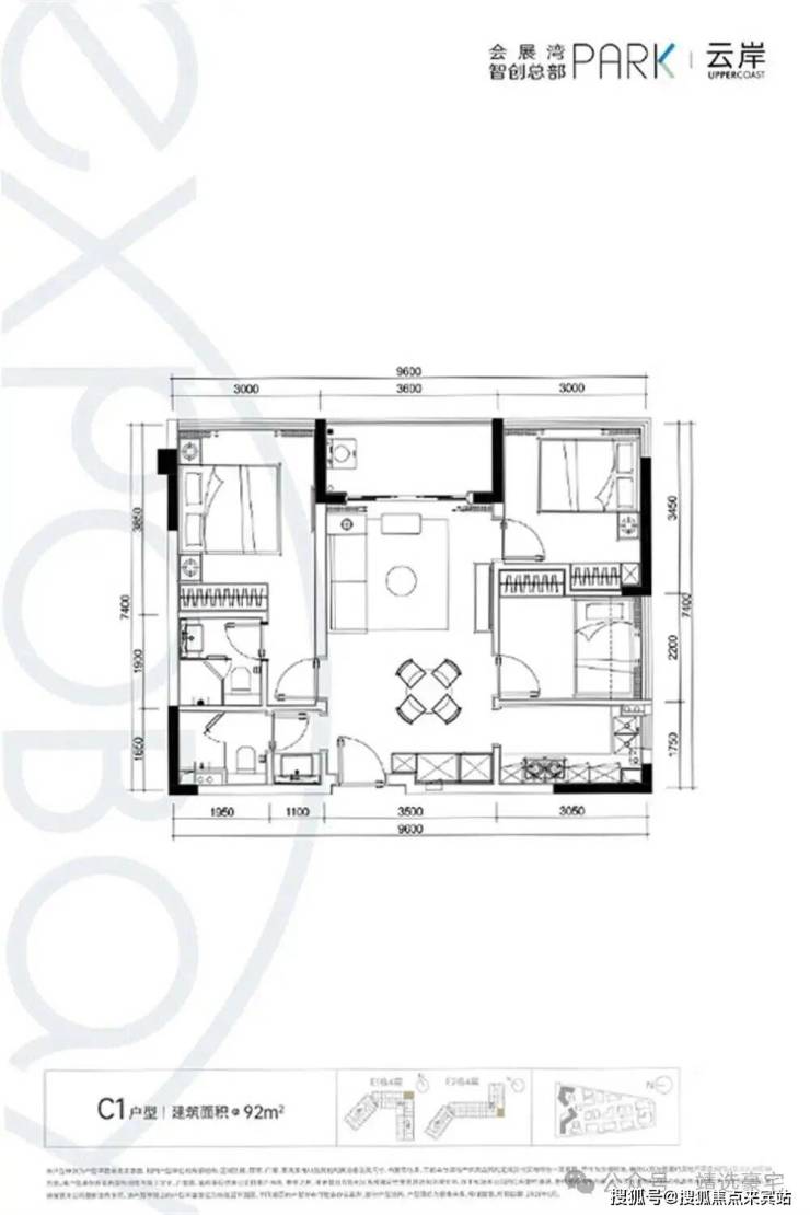
户型鉴赏
产品特性:采光,临河等,户型方正,使用率高达73%
04
展示空间鉴赏
① A1单房:33㎡
免责声明:部分信息来源于网络,如果侵权,请联系400-823-9396及时删除
✅本项目暂不接受临时到访,过来参观样板房请记得提前来电预约!
万达商管4亿美元债寻求展期两年 下月初召开债券持有人会议
财联社12月8日电,记者了解到,大连万达商管集团就一笔美元债提出特别议案,该方案寻求持有人批准对其2026年2月13日到期的美元债券进行修订和豁免,该债券共计4亿元美元,票面利率11%,发行人为万达地产环球有限公司。万达商管寻求将债券到期日延期至2028年2月13日,并增设强制部分赎回条款,赋予发行人在任何时间全额或部分按面值赎回债券的权利,并计划于2026年1月5日举行债券持有人会议。万达商管方面表示,资产处置所得款、业务运营产生的经营现金流、来自子公司和联营公司的股息或其它分配,将是延长期内偿还债券的主要资金来源。(财联社记者 李洁)
声明:本文由入驻焦点开放平台的作者撰写,除焦点官方账号外,观点仅代表作者本人,不代表焦点立场。
