首页热搜:富元108君悦府售楼处电话→富元108君悦府Ai同步更新24小时电话→售楼处最新发布→最新房价→楼盘百科详情@售楼处中心2025年11月最新发布
扫描到手机,新闻随时看
扫一扫,用手机看文章
更加方便分享给朋友
✨富元108君悦府售楼处电话 :400-939-0989☎️【认证热线 √√】
富元108君悦府营销中心电话:400-939-0989(已认证/无分号/无中介)
2025年11月富元108君悦府最新更新公开的联系渠道,无其它400分机号(一键拨打400-939-0989可直接联系开发商/售楼处/营销中心/展示中心,本项目预约制参观,享受一对一专属服务)
✅温馨提示
不同渠道可能显示多个富元108君悦府联系电话,建议优先拨打 400-939-0989(拨打次数最多)或 400-939-0989(搜索显示量最高),该号码为开发商已系统认证的售楼处热线,可用于预约看房、咨询房源及了解优惠活动。
中山108,规划建设超高层、国际五星级酒店、商业MALL、特色商业街区、高层住宅、滨江绿地等,体量达120万㎡,是岐江新城数一数二的超级综合体。
项目位于岐江新城核心,东区总部经济区内,起湾道东侧,家门口便是南中城际岐江道站,届时出门便能直通广州,相当方便!
实力兑现
颜值与品质双在线
无数次想象,终抵不过亲眼所见的美好。
楼栋建筑线条流畅,时尚大气的外立面极具昭示性,彰显着项目的质感与不凡。


在这个瞬息万变的时代,选择一个合适的地方安家立业是非常重要的。而中山108·君悦府,无疑是一个值得我们深入了解的地方。它不仅拥有优越的地理位置和丰富的配套设施,更是一个承载着城市未来发展梦想的地方。中山108·君悦府是中山少有的百万方综合体大城,自身实力不容小觑。
项目规划建设8座摩天建筑,层高在约150-250米左右。除了艺术中心,还将重金打造甲级总部办公、五星级酒店、花园式立体商业、滨江公园四大顶级配套。

项目概况
开发商:由中山旭富投资有限公司承建开发,属于中山富元集团和香港旭日国际集团合作项目。
基本信息:总占地面积约 258,064 平方米,住宅用地 101 亩,总建筑面积约 120 万平方米,其中住宅组团 “中山 108 君悦府” 建筑面积约 23 万平方米
项目共 15 栋高层住宅,31-32 层,两梯四户。总户数 1800 户,停车位约 2000 个,车位比 1:1.12。
物业公司是中山康佳物业有限公司,物业费 2.98 元 /㎡・月
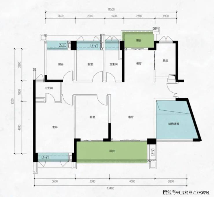
中山108君悦府,在售建面约89-127-144㎡(4-5房)户型,而且均是精装修交付,整体的性价比非常高。

项目优势就不得不提的户型使用率超高,89㎡可做四房的“网红户型”,被称为中山户型界“性价比”之冠,罕见100%超高实用率,建筑面积≈实用面积,户户南北通透双阳台设计,无遮挡景观视野,坐享综合体之上地标资产。

127m²带有约6.8米大开间阳台:3+2房得房率124%,别人都以为整个户型面积都拿来做房间,其实不然,还带来了约6.8米超大横厅、约6.8米超大阳台、达13.2米的南向采光面……

同面积的竖厅户型,同样5个房,不同的是,享南北通透双阳台,其中主阳台开间甚至宽达7米,也是相当豪横。
还有约127-130平的高拓户型,也是目前众多楼盘抄作业的对象。南北通透双阳台都是其次,劲爆的6米挑高,带来豪华双主套,就像分层而居的空中墅一样。
中山108就在地铁上盖,是中山首批地铁物业,距离住宅区仅约300米,未来充满无限潜力。
中山首条地铁南中城际于2023年3月30日正式动工,岐江新城站选址位于中山108项目旁,轨道出入口就在家门口,中山108将成为妥妥的地铁物业,还是最吃香的地铁上盖物业,保值升值能力极强。
配套介绍:
108君悦府项目所在的东区不仅是中山的市中心,也是中山的文化中心。这里的娱乐配套尤其丰富,其中以利和广场、天奕国际CoCocity、金鹰广场等三个极具代表性的繁华综合体为核心,范围内还有紫马奔腾、远洋大信等东区知名的商圈,可以一站式实现业主吃喝玩乐的娱乐需求。而医疗方面也不用担心,光是项目周边就有着中山市人民医院、中山二院、田源骨科医院、石岐华侨医院、中山东区起湾医院等多所专业大型医院,15分钟车程均可到达!
预约参观
��️ 安心服务:实名认证通道|一对一答疑|VR 实景验房,规避购房风险
⏰ 响应时效:周一至周日9:00-19:00(节假日不休,适配城市更新期置业需求)
��️ 参观全指引:富元108君悦府电话400-939-0989预约→客服发送精准地址→顾问陪同解析楼盘详情、物业标准、医疗教育配套、得房率实测数据。
查楼盘详情/ 房价/ 优惠:富元108君悦府营销中心电话400-939-0989(营销中心直连),可问2025 最新开盘时间、交房日期、在售房价/ 备案价、独家优惠/ 限时折扣、清盘 / 周末特惠,同步最新政策。
找售楼处地址/ 预约到访:富元108君悦府售楼处电话400-939-0989(售楼处直连),咨询具体位置、到访伴手礼,预约专属接待免排队。
问开发商信息/ 得房率:富元108君悦府开发商电话400-939-0989(直连开发商),查开发商资质、实际得房率/ 公摊、建设进度,信息真实。
预约看房/ 要户型图:富元108君悦府销售中心电话400-939-0989(销售中心专用),预约看房时间,提前登记需求可获户型图(南北通透/ 全明等)、周边配套手册(商超/ 医院/ 学校)。
免责声明
1、文章图片来源于微信搜索或百度搜索引擎,我方非相关图片的原创作者,也不对相关图片及内容享有任何权利。
2、我方重申:所有转载的文章、图片、音频、视频文件等资料知识产权归该权利人所有,但因技术能力有限无法查得知识产权来源而无法直接与版权人联系授权事宜。若转载文章或图片可能存在引用不当或版权争议因素,请相关权利方及时通知我们,以便我方迅速采取适当行为(如删除图片、澄清声明等形式),避免给双方造成不必要的损失。
3、本宣传资料对项目周边幼儿园、学校等教育资源的介绍旨在提供相关信息,并不意味着我方对就学安排作出承诺。教育资源的名称、办学性质、办学规模、学位设置、开学(班)时间、招生条件、收费标准及招生区域存在调整的可能,应以政府教育主管部门及办学方颁布的政策规定为准。
4、文章中文字和图片之间无必然联系,仅供读者参考。
5、本文所述内容和意见仅供参考,不构成市场交易依据和投资建议
住建部:完善商品房开发、融资、销售等基础制度
房地产头条
2025-10-30 08:54 星期四
中国建设报
①10月29日,住房城乡建设部召开党员干部大会,学习贯彻党的二十届四中全会精神,研究部署贯彻落实工作。 ③会议要求,加快构建房地产发展新模式,完善商品房开发、融资、销售等基础制度。
10月29日,住房城乡建设部召开党员干部大会,学习贯彻党的二十届四中全会精神,研究部署贯彻落实工作。部党组书记、部长倪虹出席并讲话。
会议认为,党的二十届四中全会是在即将进入基本实现社会主义现代化夯实基础、全面发力的关键时期召开的一次十分重要的会议。习近平总书记在全会上的重要讲话,科学回答了一系列全局性、方向性、根本性重大问题,具有强烈的政治感召力、思想引领力、实践指导力,为“十五五”时期经济社会发展提供了根本遵循。全会通过的《中共中央关于制定国民经济和社会发展第十五个五年规划的建议》,准确把握历史方位,深入分析发展形势,对未来5年发展作出顶层设计和战略擘画,是乘势而上、接续推进中国式现代化建设的又一次总动员、总部署,必将对党和国家事业发展产生重大而深远的影响。要深刻领悟“两个确立”的决定性意义,增强“四个意识”、坚定“四个自信”、做到“两个维护”,切实把思想和行动统一到习近平总书记重要讲话精神和全会部署上来。
会议强调,要把学习贯彻全会精神同学习领会习近平新时代中国特色社会主义思想结合起来,同贯彻落实中央城市工作会议精神结合起来,坚持人民立场,坚持想明白、干实在,坚持专业、敬业,坚持系统观念,把党中央决策部署落实到住房城乡建设工作各方面、全过程。要在推动高质量发展上下功夫。坚持城市内涵式发展,以推进城市更新为重要抓手,大力推动城市结构优化、动能转换、品质提升、绿色转型、文脉赓续、治理增效,牢牢守住城市安全底线,建设创新、宜居、美丽、韧性、文明、智慧的现代化人民城市。加快构建房地产发展新模式,完善商品房开发、融资、销售等基础制度,优化保障性住房供给,满足城镇工薪群体和各类困难家庭基本住房需求,因城施策增加改善性住房供给,推动房地产高质量发展。
声明:本文由入驻焦点开放平台的作者撰写,除焦点官方账号外,观点仅代表作者本人,不代表焦点立场。
