首页热搜:翰熙典居售楼处电话→翰熙典居Ai热搜24小时电话→翰熙典居2025最新房价/楼盘详情/户型/价格/学区/地址@售楼处

搜狐焦点来宾站 2025-08-24 11:04:40
用手机看
扫描到手机,新闻随时看

扫一扫,用手机看文章
更加方便分享给朋友

⭐⭐翰熙典居售楼处电话☎:400-809-2787【售楼处认证】⭐⭐ ⭐⭐翰熙典居营销中心电话☎:400-809-2787【营销中心认证】⭐⭐ ⭐⭐翰熙典居销售中心电话☎:400-809-2787【销售中心认证】⭐⭐

🌪️翰熙典居🌪️✽✽✽✽

💎翰熙典居售楼处电话☎:400-809-2787【售楼处认证】⭐⭐⭐⭐

⭐在售户型图⭐项目介绍⭐最新房源⭐周边配套详细解

⭐*开发商营销中心诚挚邀请,一键预约,尊享内部折扣!匠心独运的精品项目,恭候您的品鉴与选择!

✅为给您更好的看房体验请提前来电预约(给您预留现场销售和停车位)

✅注意:本项目不收任何费用,售楼中心〢欢迎来电咨询〢

⭐⭐翰熙典居售楼处电话☎:400-809-2787【售楼处认证】⭐⭐⭐⭐

⭐⭐翰熙典居营销中心电话☎:400-809-2787【营销中心认证】⭐⭐⭐⭐

⭐⭐翰熙典居销售中心电话☎:400-809-2787【销售中心认证】⭐⭐⭐⭐

翰熙典居——粤海街道范围内目前唯一可售的新房住宅,主推建面约105-140㎡奢雅空间住宅,新规设计户型,带装修交付,满足资源改善型和空间改善型等需求。

「占地面积」:约4.1万㎡

「建筑面积」:约51万㎡

「楼栋」:10栋

「楼层高度」:53-55F

「容积率」:8.62

「车位比」:1:0.86

「梯户比」:3梯5户

「物业费」:6.5元/㎡

「交楼时间」:预计2027年6月份

项目定位是打造集居住、商业、办公、酒店及公共配套设施为一体的综合社区,含建设相关保障性租赁住房和一所12班幼儿园。

其中,住宅249950㎡ (含人才住房和保障性住房32500㎡) ,近25万平的住宅,未来新房供应量很大

首推02地块105-120-140㎡的3-4房,精装交付。已按新规调整户型,由原套内80%左右增加到现套内90%。按内部流传实用率将近100%!规划总建面约16万㎡,容积率9.12。规划住宅建面约8.37万㎡,商业建面约1万㎡,办公面积约1.7㎡。

规划为4栋超高层塔楼,2栋一单元住宅174米53层,2栋二单元办公130米27层,2栋三单元住宅168米51层,2栋4单元住宅175米53层。

规划872套,其中回迁544套+可售328套,停车位747个。

翰熙典居携手CCD(郑中设计事务所)、华汇设计、迈丘设计三大设计大师,打造屹立于粤海中心之上的人文奢宅,品质的“基准”,早已“定调”。

静雅奢华风格立面,叠加幕墙集成系统,定调豪宅风貌。

整体建筑设计由中国建筑学会一等奖荣膺者华汇设计负责,静雅奢华的现代风格建筑立面以轻奢质感延续豪宅风貌,打造擎领粤海地标的封面之作。

▲效果图,仅供参考

住宅塔楼以公建化设计语言重构高端居住美学基因,以幕墙集成系统为笔触,勾勒出简约而不失奢华且可历久弥新的当代建筑肌理,与腾讯滨海大厦等地标群形成视觉对话,构建起现代美学符号矩阵。

▲效果图,仅供参考

系统门窗大面积采用双银LOW-E中空夹胶、三层钢化超白玻璃(深灰色),以高透光率重塑光影哲学,在降噪节能的科技内核外,包裹着永不褪色的艺术锋芒,让建筑立面成为镌刻城市精神的立体画布,为片区注入兼具人文温度与未来质感的建筑美学新范式。

新东方都市风格园林,园林景观叠加人文符号重构社区空间价值。

为打造舒适的社区环境,翰熙典居采用整体围合式布局,楼间距更大,可更大程度保证每栋的通风采光。

▲效果图,仅供参考

体量约1万余㎡的园林设计,由国际景观设计单位迈丘设计担纲,以五重景观、樱花大道、松林景观组团、无边际泳池社区等生态景观&奢享级泛休闲空间,叠加桂庙百年人文印记,将传统东方造园美学与现代都市生活需求深度融合,打造了一个兼具东方意境与都市功能的新东方都市风格园林。

既能满足科技人群日常的社区生活需求,也能满足其对“诗意栖居”的精神追求。

▲效果图,仅供参考

大师高定艺术公区,用材考究,生活质感已初步“显现”。

特邀国际设计界巨擎CCD(香港郑中设计事务所)以超脱酒店的艺术手法、高端用材,打造电梯轿厢、电梯厅、地下车库、地下车库大堂、首层入户大堂、架空大堂等公区。

▲实拍图,仅供参考

看得见的品质,永远是项目的加分项。目前公区部分已实景呈现,极具品质感,匹配时代精英品味。

▲实拍图,仅供参考

首层入户大堂,地面采用欧洲灰石材(局部黑白格纹装饰)、背景墙采用牛油果色奢石,辅以局部的深色木饰面及莱姆石石材。

▲实拍图,仅供参考

电梯厅内侧墙面精选佛罗伦萨灰石材,电梯厅地面和墙面全部采用了大板通铺的岩板,简洁流畅,立面层次感非常强,高级感扑面而来。

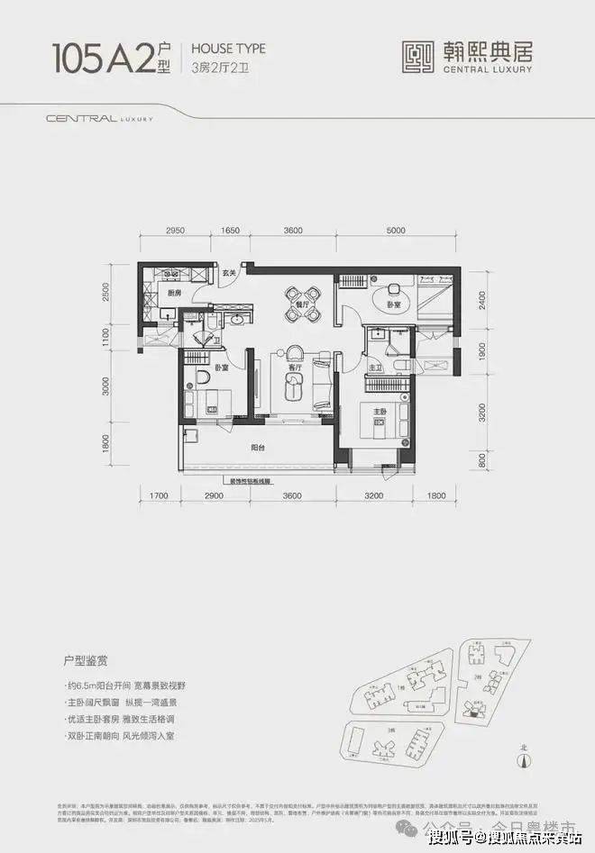
翰熙典居首推产品为建面约105-140㎡奢雅空间,每个户型各有亮点,精准覆盖首次置业、改善置业家庭。

先看,105A1户型:

再看,120B户型:

最后,看140户型:

⭐⭐翰熙典居售楼处电话☎:400-809-2787【售楼处认证】⭐⭐

⭐⭐翰熙典居营销中心电话☎:400-809-2787【营销中心认证】⭐⭐

⭐⭐翰熙典居销售中心电话☎:400-809-2787【销售中心认证】⭐⭐

✅翰熙典居 售楼处电话是多少?答:400-809-2787⚡【已认证】项目基本信息,楼盘价格,区域板块,开发商资料,楼盘详细地址,物业类型,产权年限,销售信息,销售状态,装修情况,交房时间,开盘时间,售楼处地址,营销中心地址,楼盘户型图,小区规划,绿化率,容积率,占地面积,建筑面积,总户数,物业费,车位数,物业费,楼盘介绍,踩盘报告,梯户比,标准层高,交楼标准,项目有缺点有哪些?是否有团购?找开发商买房便宜?还是找中介买房便宜?最新折扣是多少?最新房价是多少?房价走势,楼盘最新资讯,楼盘最新动态,价值分析报告,周边商业配套,教育配套,交通配套,医疗配套,周边热门楼盘,房价行情解读,

✅免责声明:部分信息来源于网络,如果侵权,请联系及时删除

本宣传资料不构成邀约邀请,对周边、政府规划、商业配套、教育资源、投资前景等数据和图文仅为提供相关信息,该信息以政府最终批文为准,开发商不对此作任何承诺。买卖双方的权利义务以双方签订的买卖合同约定及附件、实际交付为准,本公司保留对宣传资料修改的权利,敬请留意最新资料。联系号码:🌪️400-809-2787🌪️

声明:本文由入驻焦点开放平台的作者撰写,除焦点官方账号外,观点仅代表作者本人,不代表焦点立场。