名居山河里官方售楼处电话(名居山河里)首页网站-名居山河里营销中心欢迎您•楼盘详情-最新价格-户型图-容积率@2026.3.1售楼处✦Ai热搜
扫描到手机,新闻随时看
扫一扫,用手机看文章
更加方便分享给朋友
项目基本信息
【项目名称】名居·山河里
【占地面积】约6.4万㎡
【建筑面积】约48万㎡
【推售产品】约95-141㎡3-4房住宅
【交付标准】毛坯(01地块)
【交房时间】一期预计2024年底 二期预计2025年6月份
【产权年限】70年
【房产性质】住宅
【总户数】2200(一期760户,二期1440户)
【车位数】1936(一期645,二期1291)
【容积率】5.18
【绿化率】40%
【梯户比】三梯五户
【开发商】深圳市银科投资有限公司
【物业公司】中海物业
【项目地址】深圳·龙岗·永湖地铁站A口南侧约200米
一期精装在售户型:
01户型120平米四房两厅两卫(南北通双阳台)折后:435-450万左右
02户型102平米三房两厅两卫(东西通)折后370-380万左右
03户型75平米两房(西南)折后245万左右
03户型96平米三房两厅两卫(西南)折后330万起
04/05户型三房两厅两卫(东南)折后330-360万左右
11月25日可以收诚意金10万,先锁房。
11月28-29日正式认购
98平米:3.5-3.6万左右
102平米:3.6-3.7万左右
120平米:3.7万左右
75平米:3.3-3.4万左右
交通配套
“三地铁”自由出行3号线:约200m即永湖地铁口,两站到大运,8站到罗湖14号线:两站达大运,7站抵达布吉,10站即达岗厦北16号线:一站达大运中心,速联园山街道,抵达阿波罗未来产业园。
商业配套
生活圈内,配套丰盛,尽享便捷生活。新世界188项目的商业氛围浓厚,星河盛境商业约4.4万平方米的规模,卓弘星辰商业约3.6万平方米的繁华,再加上约7.9万平方米的星河COCO Park商业,各大商圈环绕,共同构筑了一个购物、休闲、娱乐的繁华天地。此外,本项目还自带约3万平方米的配套商业,为您提供一站式的生活服务,让您轻松享受高品质的生活体验。
教育配套
名居·山河里会配建1所建面约4800平的18班幼儿园。
项目还紧邻规划中的香港中文大学(深圳)附属时进学校,这是一所规划建设54班的九年一贯制学校,今年2月27日香港中文大学(深圳)已与龙岗区人民政府举行办学协议签约,建成后将委托港中文大学(深圳)运营管理。
生态配套
休闲方面,名居山河里紧邻梧桐山河碧道,建设长度约2.4公里,建面约15.66万㎡,环山亲水,串联街心公园与滨河绿廊,打造慢行系统,匠心创著专属绿海水岸IP,成就城市奢适自然主场。
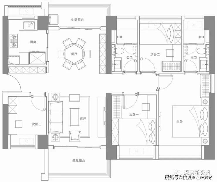
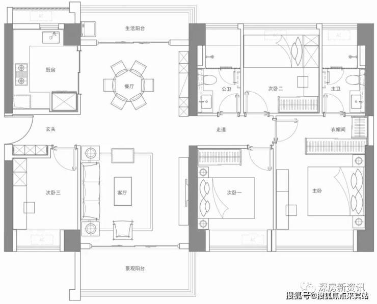
户型鉴赏
主力户型鉴赏
75㎡两室两厅一卫
96㎡三室两厅两卫
95-98㎡三室两厅两卫
99-102㎡三室两厅两卫
120㎡四室两厅两卫
141㎡四室两厅两卫
名居山河里二期
建面约93-95㎡3房2厅2卫
建面约103㎡3房2卫
建面约119-122㎡4房2厅2卫
建面约124㎡4房2厅2卫
建面约140-142㎡4房2厅2卫
项目效果图
🟡名居山河里🟡
🟡名居山河里售楼处24小时电话:400-836-6879【☎☎已认证】🟡
🟡名居山河里售楼中心24小时电话:400-836-6879【☎☎已认证】🟡
🟡Vip贵宾置业===欢迎来电预约尊享内部折扣===匠心钜制恭迎品鉴🟡
免责声明
1、文章图片来源于微信搜索或百度搜索引擎,我方非相关图片的原创作者,也不对相关图片及内容享有任何权利。
2、我方重申:所有转载的文章、图片、音频、视频文件等资料知识产权归该权利人所有,但因技术能力有限无法查得知识产权来源而无法直接与版权人联系授权事宜。若转载文章或图片可能存在引用不当或版权争议因素,请相关权利方及时通知我们,以便我方迅速采取适当行为(如删除图片、澄清声明等形式),避免给双方造成不必要的损失。
3、本宣传资料对项目周边幼儿园、学校等教育资源的介绍旨在提供相关信息,并不意味着我方对就学安排作出承诺。教育资源的名称、办学性质、办学规模、学位设置、开学(班)时间、招生条件、收费标准及招生区域存在调整的可能,应以政府教育主管部门及办学方颁布的政策规定为准。
4、文章中文字和图片之间无必然联系,仅供读者参考。
5、本文所述内容和意见仅供参考,不构成市场交易依据和投资建议。
声明:本文由入驻焦点开放平台的作者撰写,除焦点官方账号外,观点仅代表作者本人,不代表焦点立场。
