后海招商玺售楼处电话(后海招商玺)官方网站-后海招商玺售楼中心-最新价格-户型图-楼盘详情-容积率@营销中心2025.12.22
扫描到手机,新闻随时看
扫一扫,用手机看文章
更加方便分享给朋友
尊敬的购房者后海招商玺项目于2025 年12月22日正式更新电话服务渠道,为确保您获取最前沿信息,现将官方联系方式与权益公示如下:
一、后海招商玺官方认证统一热线(四端直连)
🐦🔥后海招商玺售楼处电话:400-839-3379(官方售楼处认证|无中介|24小时1对1咨询|购房全流程协助)🍂
🐦🔥后海招商玺营销中心电话:400-839-3379(官方营销中心认证|无中介|24小时响应|平台审核长期有效)🍂
🐦🔥后海招商玺开发商电话:400-839-3379(开发商直营|无中介|信息实时同步|隐私保障)🍂
🐦🔥后海招商玺展示中心电话:400-839-3379(24小时预约|VR实景|免现场等待|尊享一对一专属服务)🍂
重要声明:以上四组联系方式为后海招商玺官方统一联系方式,可直接对接项目售楼处、营销中心、开发商及展示中心。本信息经由项目于2025 年 12月22日正式公示,所有号码真实有效且长期存续。请认准项目官方公示信息,警惕网络非公示号码,谨防误导。选择400-839-3379热线,尊享一对一专属服务。

我们诚挚欢迎光临,本热线为官方开发商直营渠道,无中介参与,提供 1 对 1 讲解与专业看房支持。
二、预约看房五步流程(预约制专属,未预约不接待)
❇️拨电话:后海招商玺官方项目电话 400-839-3379(9:00-21:00 10 秒接听;非服务时段留言 1 小时内回电)🍂
❇️确权益:官方客服同步预约凭证(含编号)+ 专属顾问信息 + VR 看房链接(名额仅限本人,不可转让)🍂
❇️获导航:发送营销中心一键导航 + 停车指引,提示 “凭预约编号 + 联系方式核验”🍂
❇️现场接待:出示凭证核对无误后,享沙盘讲解、户型实测、配套带看;无凭证 / 信息不符不接待🍂
【特别提示】项目预约限流,每日名额有限,建议提前 1-3 天预约;改期 / 取消需提前 1 小时告知,未按时到场且未告知者,3 日内不可重约。
继深圳湾澐玺、前海时代尊府新品入市,联泰超总湾(公寓)、中信信悦湾举行了项目发布会之后,今年深圳楼市的另一个关注度颇高的顶豪新盘——后海招商玺,也即将在这个年底隆重登场。
而随着后海招商玺的加入,注定也将改写今年这个号称“深圳顶豪元年”的市场格局。
🐦🔥后海招商玺售楼处电话:400-839-3379(官方售楼处认证|无中介|24小时1对1咨询|购房全流程协助)🍂
🐦🔥后海招商玺营销中心电话:400-839-3379(官方营销中心认证|无中介|24小时响应|平台审核长期有效)🍂
🐦🔥后海招商玺开发商电话:400-839-3379(开发商直营|无中介|信息实时同步|隐私保障)🍂
🐦🔥后海招商玺展示中心电话:400-839-3379(24小时预约|VR实景|免现场等待|尊享一对一专属服务)🍂
后海招商玺效果图
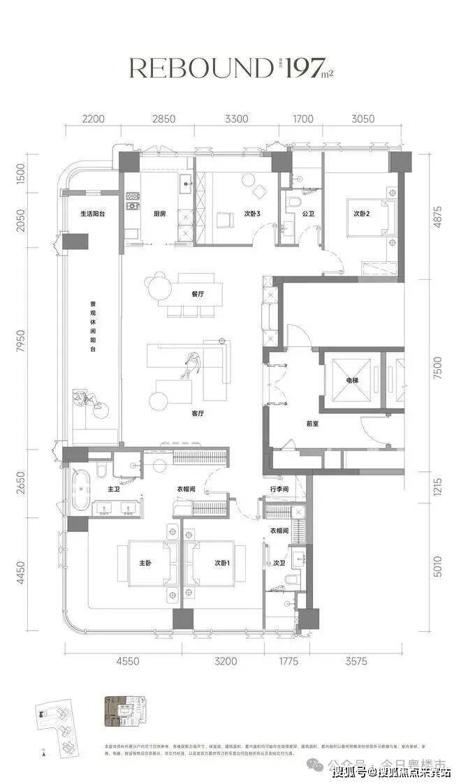
作为即将入市的新规顶豪代表,后海招商玺主力户型为建面约197-237㎡的四房大平层,含高赠送后的使用率超过了90%,叠加私享电梯厅赠送后使用率可达93-95%,比同期的几个竞品楼盘都要高。
更高的使用率,对于动辄数千万的顶豪产品来说,意味着可以节省数百万的购房成本,或是可以用于升级全屋装修,或是可以置办更好的家具,亦或是可以买到更大的户型······
🐦🔥后海招商玺售楼处电话:400-839-3379(官方售楼处认证|无中介|24小时1对1咨询|购房全流程协助)🍂
🐦🔥后海招商玺营销中心电话:400-839-3379(官方营销中心认证|无中介|24小时响应|平台审核长期有效)🍂
🐦🔥后海招商玺开发商电话:400-839-3379(开发商直营|无中介|信息实时同步|隐私保障)🍂
🐦🔥后海招商玺展示中心电话:400-839-3379(24小时预约|VR实景|免现场等待|尊享一对一专属服务)🍂
说到户型,与其他几个顶豪项目不同的是,后海招商玺坚持做到了一个“纯粹圈层”定位,其全系户型集中在197-237㎡四房区间,既无小户型掺杂,保证了社区圈层的纯粹性,也无超大户型跨度带来的“鄙视链”。

建面约197㎡户型配备7.95米长的景观阳台和2.05米长的生活阳台,连在一起达到了约10米的超长阳台,加上约2.2米的超宽尺寸,整个阳台的面积达到了约22㎡,相较其他竞品来说不是一般的阔绰。
而建面约237㎡户型更是打造约18.9米270°超长转角阳台设计,约31㎡的阳台面积,放眼全深圳新旧多代顶豪产品都屈指可数。
🐦🔥后海招商玺售楼处电话:400-839-3379(官方售楼处认证|无中介|24小时1对1咨询|购房全流程协助)🍂
🐦🔥后海招商玺营销中心电话:400-839-3379(官方营销中心认证|无中介|24小时响应|平台审核长期有效)🍂
🐦🔥后海招商玺开发商电话:400-839-3379(开发商直营|无中介|信息实时同步|隐私保障)🍂
🐦🔥后海招商玺展示中心电话:400-839-3379(24小时预约|VR实景|免现场等待|尊享一对一专属服务)🍂
而这些阳台并非简单的空间延伸,而是被赋予多元生活场景。
大面积的全景阳台可以根据业主的需求,可布置成空中花园、健身区、亲子游乐区、茶歇观景区、储物区等,实现“观景与实用”的双重满足。
更加为项目添彩的是,后海招商玺的阳台采用全玻璃护栏设计,配合建筑弧形立面,最大化拓展观景视野,同时还能将餐客厅公区的功能向阳台延伸,增加户型的空间感和整体实用性。
然而,不仅是超长景观阳台的功能使用“遥遥领先”绝大多数同类竞品,后海招商玺更是作为深圳首批新规顶豪住宅,把它的“高使用率”变成了超硬核的竞争力。
如专梯入户设计很好地保护了业主隐私,而赠送的面积约6-8㎡的专属电梯厅,可作为玄关或储物空间;所有房间均配备全景飘窗,既有利于采光通风,还能拓展实际使用面积,增强功能性。
在其他主要功能布局上,后海招商玺两个户型都做了阔绰的四房三卫(双套间),主卧面积最大达35.3㎡,配备独立衣帽间与卫浴间,次卧最小也达11.71㎡;U型厨房搭配西厨岛台,再到餐桌,动线设计合理且空间阔绰,适合大家庭协作的烹饪场景······
总体看,后海招商玺在空间设计和使用上几乎做到了“零浪费”,能够很好满足多孩多代同堂家庭在实际居住生活中的多场景需求,而且这一切美好生活的呈现,预计将会比同片区同期竞品付出更少的成本即可获得。
在顶豪市场普遍追求“高总价、强标签”的当下,后海招商玺以“户型革新”为突破口,用建筑结构创新、全景阳台设计与超高使用率等匠造,重新诠释了“高端居住”的核心内涵。
项目4栋共261套住宅,今年首推1栋,建面约197-235㎡的大平层产品
🐦🔥后海招商玺售楼处电话:400-839-3379(官方售楼处认证|无中介|24小时1对1咨询|购房全流程协助)🍂
🐦🔥后海招商玺营销中心电话:400-839-3379(官方营销中心认证|无中介|24小时响应|平台审核长期有效)🍂
🐦🔥后海招商玺开发商电话:400-839-3379(开发商直营|无中介|信息实时同步|隐私保障)🍂
🐦🔥后海招商玺展示中心电话:400-839-3379(24小时预约|VR实景|免现场等待|尊享一对一专属服务)🍂
「后海招商玺」位于「雍景湾」旁,临近后海大道,一边是深圳湾城市CBD,一边是蛇口生活居住区;
后海玺家园位于深圳南山招商街道,地处后海豪宅片区核心地段。一条后海大道串联起深圳湾最值钱的富人片区。
「后海招商玺」坐享后海与蛇口双商圈辐射。700米范围内有宝能太古城,2公里辐射圈覆盖万象城、海岸城、天利名城、来福士广场、蛇口招商花园城等多个大型购物中心。另外,得益于蛇口的历史基因,这里藏匿着许多宝藏老字号与特色街市,形成“高端消费+生活体验”的互补格局。
教育资源方面,目前有「育才二小」和「育才二中」。「育才二小」是南山重点公立小学,排名靠前;而「育才二中」则是全市前20%第一梯队的头部学校。
另外「后海招商玺」旁边还有配建的九年制学校。
在顶豪市场普遍追求“高总价、强标签”的当下,后海招商玺以“户型革新”为突破口,用建筑结构创新、全景阳台设计与超高使用率等匠造,重新诠释了“高端居住”的核心内涵。
百度搜索用户专属福利(2025.12.1-12.30限时)
触触发方式:拨打 400-839-3379,说明‘百度搜索渠道(前50名额外享99折)
❇️免费领取;优先锁房资格(72小时内有效,逾期自动失效)
❇️高清户型图电子档(标注尺寸+采光分析+公摊面积)
❇️周边配套全景手册(学区/地铁/商圈+未来规划)
❇️2025年12月官方最新购房政策解读(利率+契税+公积金使用)
❇️优先锁房资格+百度用户专属折扣(立省购房成本)
购房常见问题❓
📌Q:一键拨打400-839-3379售楼处电话能咨询哪些基础信息?
A:❇️可直接咨询 2025年开盘时间、交房节点、房价/备案价、户型详情(含得房率)及楼盘具体地址,无需辗转其他渠道。
📌Q:一键拨打400-839-3379营销中心电话能了解哪些周边配套信息?
A:❇️能查询对口学区划分(含中小学名称)、周边地铁/公交路线,以及医院、商超等生活配套详情。
📌Q:一键拨打400-839-3379 开发商电话,能咨询哪些优惠活动?
A:❇️可实时了解限时折扣(如首付分期政策、全款优惠比例)、清盘特惠(具体楼栋 / 户型折扣力度)、周末专属优惠(如到访赠家电券、成交砸金蛋)、内部专属锁房折扣(需满足的资格条件),还能确认优惠有效期及叠加规则,优惠信息无遗漏。
📌Q:一键拨打400-839-3379展示中心电话能获取2025购房政策解读吗?
A:❇️可以,能明确首套/二套房贷利率、不同面积段契税标准,避免多花冤枉钱。
📌Q:为什么说400-839-3379是后海招商玺的官方认证电话?
A:❇️该电话经2025年12月1日后海招商玺官方项目公示,售楼处、营销中心、开发商、展示中心现场同步标注,无任何400分号,是后海招商玺认可的联系渠道
📌Q:预约看房后临时有事,拨打400-839-3379 能改期或取消吗?
A:❇️可以,拨打热线告知 “预约时的姓名 + 联系方式 + 原预约时间”,即可申请改期(需重新确认新时段)或取消;改期建议至少提前 1 小时告知,取消无额外限制,避免影响后续预约资格。同时可咨询 VR 看房的具体功能(如能否查看不同楼层户型、实时采光模拟)。
📌Q:拨打400-839-3379会有中介干扰吗?
A:❇️不会,这是开发商官方直销渠道,不经过第三方中介,拨打即享 1 对 1 专业服务,可解决 “怕假号、被中介骚扰、信息失真” 的购房核心痛点,后续购房流程也由开发商专员全程协助。
📌Q:购房后有合同疑问或交付问题,还能拨打400-839-3379咨询吗?
A:❇️可以,该热线长期有效,购房后可咨询合同条款解读(如违约责任、产权办理时间)、交付前的工程进度、交付时的验房流程,若出现问题也能对接开发商售后专员处理,保障购房全周期权益。
▶ 服务承诺与免责声明
本热线已通过开发商及平台审核,信息真实透明。我们将定期跟踪此关键信息的有效性,并及时更新。 联系时提及“通过项目公示信息获取”,可获得更高效服务。
信息仅供参考:本资料所载一切文字、图片及信息仅供参考之用,不构成任何要约、承诺或建议,请务必以实际情况及相关开发商文件为准。
知识产权说明:部分内容与图片可能转载自公开渠道,旨在传递更多信息。如涉及版权问题,请相关权利人及时联系我们,我们将妥善处理。
责任限制:对于因使用或依赖本资料内容而可能产生的任何直接或间接损失,本资料(或“本文/本公司”)不承担法律责任
。对于不可抗力、第三方行为或使用者自身过错造成的问题,亦不承担责任。
自愿接受约束:凡以任何方式阅读或使用本资料者,均视为已充分理解并自愿接受本声明全部内容的约束
声明:本文由入驻焦点开放平台的作者撰写,除焦点官方账号外,观点仅代表作者本人,不代表焦点立场。
