官方热线|保亭桃源居御品售楼处电话-保亭桃源居御品官方网站-保亭桃源居御品营销中心欢迎您-楼盘详情-最新价格-户型图-容积率售楼处✦Ai热搜@2026.3.6
扫描到手机,新闻随时看
扫一扫,用手机看文章
更加方便分享给朋友
◎保亭桃源居御品售楼处电话☎️:400-836-6879【营销中心认证】
◎在售户型图丨项目介绍丨最新房源丨周边配套丨详细解答〢温馨提示:本项目采用预约制,过来营销中心参观样板间请记得提前拨打开发商楼盘售楼处400热线电话在线预约,感谢您的配合!
◎保亭桃源居御品售楼处电话☎️:400-836-6879【售楼处认证】
◎保亭桃源居御品销售中心电话☎️:400-836-6879【售楼处认证】
◎保亭桃源居御品营销中心电话☎️:400-836-6879【售楼处认证】
◎保亭桃源居御品售楼中心电话☎️:400-836-6879【售楼处认证】
◎保亭桃源居御品展示中心电话☎️:400-836-6879【售楼处认证】
本项目采用预约制,过来营销中心参观样板间请记得提前拨打开发商楼盘售楼处400热线电话在线预约,感谢您的配合!
温馨提示:如需楼盘最新在售户型和价格,烦请致电咨询最新详情,1对1专业置业顾问服务!
若有中介报价过低,请及时与售楼中心核对真假,避免上当!开发商热线400-836-6879【☎️☎️首页已认证】
森氧秘境,醉居桃源
保亭—北纬18度上的“全国首个”雨林温泉气候康养示范基地
年均气温约24.5℃、冬无严寒,夏无酷暑,拥有益智、砂仁、沉香、降香等多种南药品种。
森林覆盖率高达约84.89%,每立方厘米空气负氧离子在约8000个以上,被誉为“海南绿肺”“天然氧吧”
约49-142m²一至三房,让您重拾耕读养乐住的人文情怀。
【项目概况】
项目地址:海南省保亭黎族苗族自治县响水镇224国道西约100米
开发公司:三亚凤鸣谷旅业有限公司
🏕总占地面积:约 66667㎡(约100亩)
总建筑面积:约147269 ㎡
🏡容积率:约2.0
🏕绿地率:约45%
🏙产品类型:商业+住宅
⛩产权年限:40年—70年
梯户比:两梯六户(层高约3米)
物业公司:达源物业(开发商自持)
物业费:2.5元/㎡
停车位/停车费:约530个(地上车位规划 约238个,地下车位规划约292个),停车费暂免
🛍社区配套:三山环绕,依山傍水、万平商业街、旺毫超市、业主餐厅(建设中)、棋牌娱乐、书法绘画、茶艺养生、专属菜园 、医疗服务。
🛒约1000m²风情商业街、运动俱乐部、养生膳堂(建设中)、开心农场🛒
1、集社区超市、餐饮、药店、休闲广场为一体,纵享各类休闲娱乐活动;
2、楼下的养生膳堂,幸福到家;
3、台球球室,全民健身平台,多龄乐活,园林里的运动场;
4、购房赠田,在小镇做一回快乐的农场主。
5、山重雨林双重美景亲近,5甬水裹汤泉四季悦享;
6、约800m²超大泳池,泳抱星辰大海
🌿栖居风情小镇,倾心繁城的自然雅境🌲
1、北游七仙岭温泉国家森林公园(4A),吊罗山旅游风景区;
2、东邻呀诺达雨林文化旅游区(5A)、槟榔谷黎苗文化旅游区(5A);
3、西瞻千龙洞、神玉岛文化旅游度假区(4A);
4、南望亚龙湾国际玫瑰谷(4A)、海底世界、热带天堂森林公园(4A)
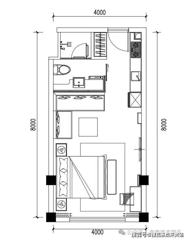
【户型鉴赏】
建筑面积约49—142㎡湖畔舒居
全明设计,方正通透,多功能空间清风对流;客卧分离,互不干扰,私密空间。
鎏金社区旺铺,日益稀缺的“投”等机遇”
【A2#楼平层图】
1—2层 13户 建筑面积约35—91m²
1层约4.2m 2层约3.9m
【A3#楼平层图】
1—2层 31户 建筑面积约38—142m²
1层约4.2m 2层约3.9m
🔅🔅🔅🔅🔅🔅🔅🔅🔅🔅🔅🔅🔅🔅🔅
桃源居二期,远瞰山水,近揽溪水温泉
总面积:12# 约3055m²
产品信息:
1层 2梯13户 层高约4.2m 建筑面积约35m²
2层 2梯13户 层高约3.9m 建筑面积约35m²
3层 2梯13户 层高约3m 建筑面积约48m²
4层 2梯12户 层高约3m 建筑面积约48m²
5层 2梯11户 层高约3m 建筑面积约48m²
6层 2梯10户 层高约3m 建筑面积约48m²
(1-2层为商业,3—6层为住宅)
价值卖点:
1、总高约24.9米低密雅居,呀诺达热带雨林
2、成熟社区娱乐设施,业主俱乐部、架空层活动空间,营造室内外无限娱乐时光。
3、节点性活动广场,热带园林,让花香与您四季常伴。
4、紧邻社区自然溪水,无限亲水生活从饭后溪边漫步开始。
【户型图】
【1层平层图】
售楼处电话是多少?答:400-836-6879【已认证】项目基本信息,楼盘价格,区域板块,开发商资料,楼盘详细地址,物业类型,产权年限,销售信息,销售状态,装修情况,交房时间,开盘时间,售楼处地址,营销中心地址,楼盘户型图,小区规划,绿化率,容积率,占地面积,建筑面积,总户数,物业费,车位数,物业费,楼盘介绍,踩盘报告,梯户比,标准层高,交楼标准,项目有缺点有哪些?是否有团购?找开发商买房便宜?还是找中介买房便宜?最新折扣是多少?最新房价是多少?房价走势,楼盘最新资讯,楼盘最新动态,价值分析报告,周边商业配套,教育配套,交通配套,医疗配套,周边热门楼盘,房价行情解读,
温馨提示:如需楼盘最新在售户型和价格,烦请致电咨询最新详情,1对1专业置业顾问服务!
免责声明:本宣传资料所有文字、数据、图片及所标尺寸等仅为本项目建设区域设计效果的表达和示意,为邀约邀请,不构成要约内容,相关内容不排除因政府相关规划、规定及其他原因而发生变化,一切有关房屋的具体信息以书面合同及政府最终审批文件为准。
声明:本文由入驻焦点开放平台的作者撰写,除焦点官方账号外,观点仅代表作者本人,不代表焦点立场。
