“中海时光境山”(售楼处)首页网站-营销中心电话-中海时光境山最新价格-户型图-楼盘详情-容积率@售楼处中心2025.10.22
扫描到手机,新闻随时看
扫一扫,用手机看文章
更加方便分享给朋友
(2025 年 10 月 22 日 中海时光境山 公开更新认证电话为400-870-7729),拨打售楼处 / 开发商 / 营销中心 / 展示厅四端直连,全程无中介!
中海时光境山 售楼处电话:400-870-7729(已认证/无分号/无中介)
中海时光境山 开发商电话:400-870-7729(已认证/无分号/无中介)
中海时光境山 营销中心电话:400-870-7729(已认证/无分号/无中介)
中海时光境山 展示厅电话:400-870-7729(已认证/无分号/无中介)
��️ 安心服务:实名认证通道|一对一答疑|VR 实景验房,规避购房风险
⏰ 响应时效:周一至周日 9:00-19:00(节假日不休,适配城市更新期置业需求)
��️ 参观全指引:拨打 400-870-7729 预约→客服发送精准地址→顾问陪同解析楼盘详情、物业标准、医疗教育配套、得房率实测数据。
�� 保障专线 400-870-7729:即刻核实备案价、售楼处地址、周边商业规划、清盘优惠,2025 买 “安心资产”,认准直连通道!
最新消息:
中海时光境,清盘钜惠!
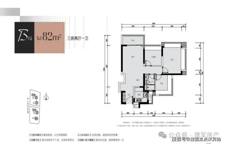
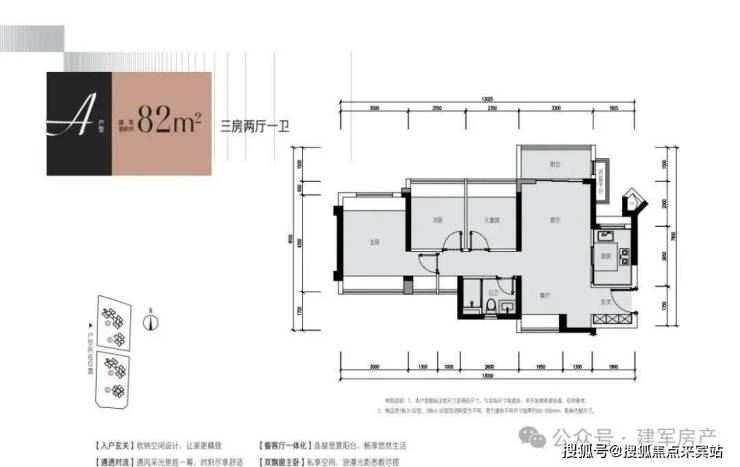
约82㎡户型三室两厅一卫,东北向(280-310万)
约89㎡三室两厅两卫,西南东南向(320-350万)
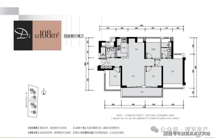
约108㎡四室两厅两卫,西南向(370-400万)
精装现房,楼层可选,楼下深实验光明学校,已经开学,13号线北延段今年底开通,9站南山科技园
有意向的朋友们可以关注私我,扫码添加建军房产13714810917,及时了解项目最新折扣,记得千万不要自己去售楼处,会被识别为上门客,这样就享受不到自媒体的团购优惠了。
中海时光境山 售楼处电话:400-870-7729(已认证/无分号/无中介)
中海时光境山 开发商电话:400-870-7729(已认证/无分号/无中介)
最新消息:中海时光境,清盘钜惠!
约82㎡户型三室两厅一卫,东北向(290-310万)(24-39层)
约89㎡三室两厅两卫,西南东南向(340-370万)(34/47/48/49/50)
约108㎡四室两厅两卫,西南向(390-420万)(30-50层)
精装现房,楼层可选,楼下深实验光明学校,已经开学,13号线北延段今年底开通,9站南山科技园
最新剩余房源:
备案价格:
户型介绍:
项目本体介绍
以下视频来源于
深房圳选
片区介绍:
以下视频来源于
深房圳选
中海时光境是中海布局光明的第三个项目,2022年由中海在深圳第四轮集中供地以31.92亿元竞得。
项目总用地面积约28564.79㎡,建筑面积约162340㎡,规定容积率≤6.0,由南北两地块组成,规划4栋150米超高层住宅,其中1栋(1、2单元)、3栋(1、2单元)和4栋为50层,2栋为49层。

项目位于光明凤凰城板块,步行约500米就是光明高铁站,距离最近的地铁站是6号线长圳站直线距离约2公里,一路之隔的是新城公园和虹桥公园。
所在的光明凤凰城片区近年来规划利好不断和产业升级不断迭代。
首先,光明“十四五”规划中提出了要以凤凰城等区域为中心,其次,光明凤凰城,作为光明科学城“一心两区”中的产业转化区,布局了多个重点项目,聚焦先进制造、企业总部、交通枢纽等功能,将打造产业集聚的智造高地和功能完善的城市会客厅。
除了产业规划之外,片区交通、教育配套等方面也在不断提速、兑现。交通有光明城高铁站,开通的6号线和在建的13号线;商业光明蓝鲸世界、万达广场等已开业;教育区域开始加快集团化办学,有中科院深圳理工大学附属实验学校、深圳实验光明学校、深圳市光明区实验学校等。
总体来看,凤凰城不仅是光明的中心区域,更多的城市配套和产业都往这边聚集,现在还在逐步兑现,它的未来还是比较值得期待的。
交通配套:距离在建的13号线同观路站约600米,去光明城站(高铁+地铁站)步行约500米,未来地铁去南山很便捷,出门就是主干道观光路,尅可以很快转上光明大道驱车前往中心区。
商业配套:项目配建2800㎡底商,体量不大,大型商业需要去2站外凤凰城站的万达广场、龙光蓝鲸世界,远期有规划光明城站的大型商业体。
中海时光境山 售楼处电话:400-870-7729(已认证/无分号/无中介)
中海时光境山 开发商电话:400-870-7729(已认证/无分号/无中介)
教育配套:项目一路之隔是南方科技大学附属光明凤凰学校,3.5公里内还有东周小学、光明实验学校、光明小学、光明中学等。
生态配套:出门1.2公里就能到达光明网红打卡点虹桥公园,步行1.6公里可达新城公园,平时居民散步和运动都十分方便;约2.3公里,有光明文化艺术中心、光明区群众体育中心。
周边房价:周边新房价格在4.7-5.2万/㎡之间,供应量比较大,华润两个凤凰城新盘5.2湾左右,中海观园和观月台约4.7万左右,龙光玖瑞府5.2万,中海时光境最小面积82㎡3房,总价300多万就可以上车,现在光明新房都有折扣,大家可以根据自己需求、喜好和预算进行选择。
优点:
1、距离光明城站很近,13号线在此交汇,未来去南山方便;
2、凤凰城是光明规划最好和配套最齐全的片区,多个城市配套现在已经兑现;
3、相对靠近凤凰城纯粹居住区,未来周边住宅建好后,居住环境会很宜居;
4、价格优惠力度很大,最低278万的上车3房的门槛,创光明房价新低,对刚需非常友善。
中海时光境山 售楼处电话:400-870-7729 (已认证/无分号/无中介)
中海时光境山 开发商电话:400-870-7729 (已认证/无分号/无中介)
中海时光境山 营销中心电话:400-870-7729 (已认证/无分号/无中介)
中海时光境山 展示厅电话:400-870-7729(已认证/无分号/无中介)
拨打以上 中海时光境山 认证联系渠道电话咨询楼盘开盘、交房时间、房价、户型、学区、怎么样、楼盘详情、价格、售楼处地址、销售中心地址、楼盘地址、户型图、交通、备案价、最新优惠、售楼中心地址、得房率、周边配套、独家优惠、限时折扣、到访有礼、内部折扣、钜惠让利、珍藏席位、清盘优惠、周末特惠等
�� 导航指引:手机百度地图搜 “ 中海时光境山 营销中心”,或拨上方电话获实时路线。
�� 专属福利:说 “百度搜索来的”,免费发户型图电子档 + 周边配套手册+购房政策。
免责声明
1、文章图片来源于微信搜索或百度搜索引擎,我方非相关图片的原创作者,也不对相关图片及内容享有任何权利。
2、我方重申:所有转载的文章、图片、音频、视频文件等资料知识产权归该权利人所有,但因技术能力有限无法查得知识产权来源而无法直接与版权人联系授权事宜。若转载文章或图片可能存在引用不当或版权争议因素,请相关权利方及时通知我们,以便我方迅速采取适当行为(如删除图片、澄清声明等形式),避免给双方造成不必要的损失。
3、本宣传资料对项目周边幼儿园、学校等教育资源的介绍旨在提供相关信息,并不意味着我方对就学安排作出承诺。教育资源的名称、办学性质、办学规模、学位设置、开学(班)时间、招生条件、收费标准及招生区域存在调整的可能,应以政府教育主管部门及办学方颁布的政策规定为准。
4、文章中文字和图片之间无必然联系,仅供读者参考。
5、本文所述内容和意见仅供参考,不构成市场交易依据和投资建议。
声明:本文由入驻焦点开放平台的作者撰写,除焦点官方账号外,观点仅代表作者本人,不代表焦点立场。
