热搜焦点:金光华龙岸君粼售楼处电话→金光华龙岸君粼首页热搜24小时电话→最新房价→楼盘百科详情→营销中心最新发布@售楼处中心2025-10-19
扫描到手机,新闻随时看
扫一扫,用手机看文章
更加方便分享给朋友
◆开发商营销中心诚挚邀请,一键预约,尊享内部金光华龙岸君粼独家折扣!匠心独运的精品项目,恭候您的品鉴与选择。
🐉🐉金光华龙岸君粼营销中心售楼处24小时电话:400-988-0986(中介勿扰)现场详细解答丨项目介绍丨户型图丨在售房源丨特价房丨学校丨交通金光华龙岸君粼位置丨样板房丨小区图片丨交房时间丨周边配套丨金光华龙岸君粼丨✅本项目暂不接受临时到访,过来参观样板房请记得提前来电预约!🐉🐉
【项目基础信息】
建面约84-170㎡湖山臻装大宅
占地面积:约10万㎡
建筑面积:28万㎡
容积率:1.98
绿化率:60%
三期高层层数:总高31层,层高3米
梯户比:2梯3户或2梯4户
【执守双CBD·世界就在身边】
深圳“正”中心:深圳地理几何中心,受北站CBD,福田CBD双辐射,是深圳政治、经济、文化、商业、人文的核心版图与城市客厅。
随着龙华经济的腾飞、产业的升级、城市资源聚集、高级人才的留驻,成为城市又一中心热点。
【五大超级商圈,咫尺漫步繁华】
商业配套: 星河World·Coco Park丨龙华万象城丨Coco City丨红山6979丨福田CBD商圈
文化配套:深圳文化馆新馆丨展览馆丨演艺馆丨深圳图书馆新馆丨深圳第二美术馆
医疗配套:深圳市新华医院丨深圳市第二儿童医院
产业配套:星河World总部丨深国际华南物流园丨坂雪岗科技城核心-华为总部基地丨深圳北站CBD
【立体枢纽加速度·让大人物从容转瞬圳央】
“湾区级交通网格”:深圳北站—五和双枢纽,一小时大湾区各城从容出行,畅达全国
“地铁网格黄金交叉点”:深圳地铁10号线光雅园,南通福田、北接坂田、西联北站
【宽怀壮阔·无价湖山】
比肩世界湖区的优越资源:龙岸君粼位处深圳“中心湖区“,是深圳最稠密的湖区所在地,项目周边环伺4大自然生态湖泊---民治水库、民乐水库、雅宝水库、南坑水库,居住在此,湖岸微澜风光无限,滋养健康涵养心境,孕育都会生活于家族贵雅之道;独享城市无价峰顶对晤湖景无垠的豁达高远。
上风上水,龙脉加持:原生龙脉地貌,得天地水势,是为钟灵毓秀,纳龙脉福气。
【1.98低密墅区,十年未曾现世的奢侈】
龙岸君粼占地面积约10万㎡,得以享受圳央独一的1.98低密度墅区,此等低密,深圳数十年难得一见,为渴望居住圳央同时兼得低密尺度的高净值人士,打造值得珍藏传世的超配人居大宅。
【城央阔府 每席皆传世】
100%全南向大宅设计
保留最大程度观景采光,在圳央大户型的设计中,绝少得见,为业主打造24小时自然通风的品质人居。
2梯3户、2梯4户臻装大宅
傲居深圳中央的建面约85-175㎡臻装大宅,以2梯3户或2梯4户的超低梯户比,定制圳央纯粹大户型住区,为城市高净值人士打造更舒适的归家礼制。
【一席大师打造】
世界级豪宅同款设计师,室内设计CCD-郑忠先生创立,全球酒店室内设计排行第一。
园林升级山水比德,连续3年蝉联时代楼盘中国地产景观设计竞争力全国第一。
【28载城市运营·匠铸金光华圳央墅区】
金光华集团,立足于中国深圳,致力于成为粤港澳湾区高品质城市综合运营商。
2023年厚积薄发,巅峰再续,金光华依托区域的商户资源,建造多个低密豪宅项目,以溪山·君樾、龙岸·君粼项目为蓝本,联动片区内金光华储备用地形成大区域开发,构筑总建面逾150万㎡的全新人居版图——金光华圳央墅区。
龙岸君粼
户型
面积
布局
1
84平
三房两厅一卫
户型
面积
布局
2
113平
四房两厅两卫
户型
面积
布局
3
116平
四房两厅两卫
户型
面积
布局
4
124平
四房两厅两卫
户型
面积
布局
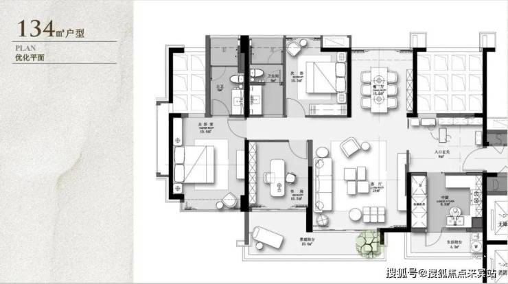
5
134平
四房两厅两卫
户型
面积
布局
6
170平
六房两厅三卫
金光华·龙岸君粼三期高层最大楼间距可达350米,通风、采光俱佳;两梯三户或四户的低梯户比,归家更显从容、私密。

金光华龙岸·君粼三期高层,改善型的二至四房,全南朝向户型,空间布局考究,给生活从容阔绰的享受。

LDK一体化的设计,将餐厅的美味、客厅的美食和观景阳台的美景串联在一起

🐉本项目暂不接受临时到访,过来参观样板房请记得提前来电预约!🐉
🐉温馨提醒:我们楼盘售楼部400电话没有设置任何所谓的“分机号”,拨打前请仔细甄别,注意保护个人隐私!谨防上当!🐉
金光华龙岸君粼开发商售楼处电话:400-988-0986【预约热线】丨详细解答丨在售户型图丨项目介绍丨在售房源丨周边配套丨VR看房丨楼盘图丨沙盘图丨位置图丨配套图丨售楼处丨足不出户丨销售1V1讲解
声明:本文由入驻焦点开放平台的作者撰写,除焦点官方账号外,观点仅代表作者本人,不代表焦点立场。
