锦绣时代广场(售楼处)首页网站-锦绣时代广场营销中心-锦绣时代广场欢迎您-楼盘详情-最新价格-户型图-容积率@最新售楼处

搜狐焦点来宾站 2025-06-10 15:35:40
用手机看
扫描到手机,新闻随时看

扫一扫,用手机看文章
更加方便分享给朋友

商业贷款方面,尽管5月中旬有消息称,广州多家银行房贷利率计算方式上调10个基点,但由于LPR下调0.1%,记者了解到,工商银行等多家国有或股份制大行的浮动利率在计算方式和LPR的一增一减后,实际利率仍为3.0…

锦绣时代广场

锦绣时代广场售楼处电话: 400-909-3139【已认证】

♎♬锦绣时代广场꧁ 售楼处: 400-909-3139【☎☎售楼处电话已认】꧂✨✽✽✽✽

♎♬锦绣时代广场꧁ 营销中心电话:400-909-3139【☎☎售楼处电话已认证】꧂✨✽✽✽✽

♎♬锦绣时代广场꧁ 开发商电话:400-909-3139【☎☎开发商电话已认证】꧂✨✽✽✽✽

🦋本项目暂不接受临时到访,过来参观样板房请记得提前来电预约!

🦋为您安排楼盘现场销售全程接待并讲解,给您更贴心的看房体验!

✨✨Vip贵宾置业=欢迎来电预约尊享内部折扣=匠心钜制恭迎品鉴温馨提醒:我们楼盘售楼部400电话没有设置任何所谓的“分机号”,拨打前请仔细甄别,注意保护个人隐私!谨防上当!

锦绣时代广场

地址:龙华区油松路与工业路交汇处

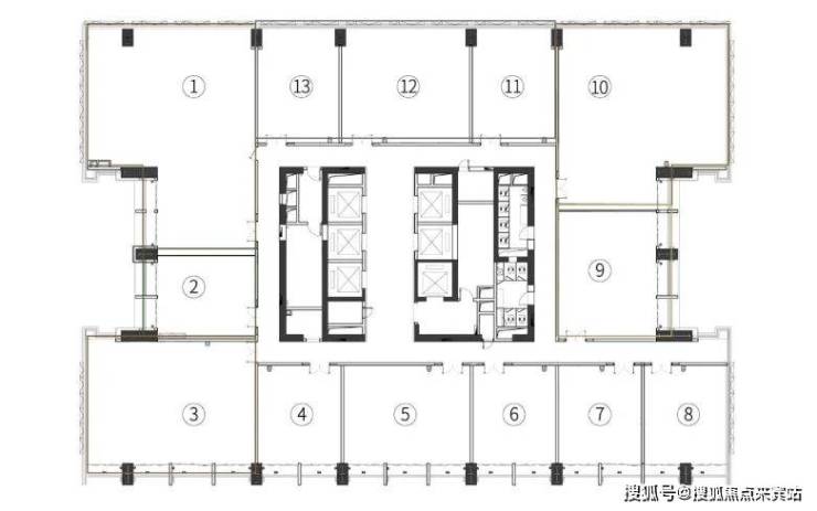
租赁面积:90-1980㎡

建筑类别:办公、商业、公寓、酒店综合体

写字楼总楼层:地上32层,地下3层

外立面:采用LOW-E中空玻璃幕墙,双层有效隔音

租金:65-80元/平米/月,物业管理费:12元/平米/月

装修状况:毛坯、简装、精装修

层高:首层9.4米挑空大堂,标准层:4.5m,商务形象彰显

电梯:5+1台日立品牌电梯,4m/s梯速,助力高效商务

车位数量:地下750个车位,停车无忧

空调及计费:美的中央空调计电费

商业配套:已引进万澳酒店及其他餐饮、娱乐、便利店等商业配套

约90-1980㎡全能空间、灵活百变

面积段:90-104-138-162-230-304-350㎡

一站式服务 进驻无忧

道路交通:楼下工业路速达龙华中心区,油松路接布龙路速达全城各区,项目车行约19分钟快速接驳深圳北站、约25分钟直通福田,便捷交通速达全城

公共交通:楼下即为松和新村公交站,便捷接驳地铁,速达全域

地铁交通:毗邻地铁22号线、25号线油松站(在建中,距离项目约500米),27号线油福站(规划中,距离项目约1.1公里),距离5号线直线距离约2公里

商业配套:距离项目1公里左右约60万方壹方天地超大型商业集群+龙华首家山姆会员店、天虹商场、岁宝shirble plaza、绿景佐阾香颂购物中心、万众城、万盛百货等;2-4公里范围内有八号仓奥特莱斯、红山6979商业中心、九方天虹等

······························

龙华♐锦绣时代广场

♎♬锦绣时代广场꧁ 开发商电话:400-909-3139【☎☎开发商电话已认证】꧂✨✽✽✽✽售楼处24小时电话:400-909-3139(预约咨询热线)现场详细解答丨项目介绍丨户型图丨在售房源丨特价房丨学校丨交通位置丨样板房丨小区图片丨交房时间丨周边配套丨⫷⫷⫷

免责声明:部分信息来源于网络,如果侵权,请联系及时删除

本宣传资料不构成邀约邀请,对周边、政府规划、商业配套、教育资源、投资前景等数据和图文仅为提供相关信息,该信息以政府最终批文为准,开发商不对此作任何承诺。买卖双方的权利义务以双方签订的买卖合同约定及附件、实际交付为准,本公司保留对宣传资料修改的权利,敬请留意最新资料。联系号码:400-909-3139

近期,多地发布购房补贴新政。

5月29日,合肥发布购房补贴政策有关通知,对2025年5月15日起至2026年5月14日,凡在合肥市新购买新房的购房人或新购买新建车位(库)的购置人,继续实施购房补贴。

5月28日,泰州发布购房补贴发放细则,购房补贴对象包括换新购、组团购、孝心购、多孩购、拥军购、进城购、返乡购、来泰购,补贴标准最高为购房款总额的2%。

证券时报记者梳理,近期,除了合肥、江苏泰州,广东佛山、兰州、武汉也发布了购房补贴新政。

据中指研究院不完全统计,2025年以来,全国超50地发布购房补贴政策,对于多孩家庭、人才等特定人群的补贴力度更大,如武汉针对购买新房的二孩、三孩家庭分别发放6万元、12万元的购房补贴,绍兴柯桥区补贴力度更大,二孩、三孩及以上家庭补贴标准分别为1500元/平米、2500元/平米,最高分别可补贴至20万元、40万元。中指研究院认为,加大特定人群的购房补贴力度,能够有效降低其购房成本及购房门槛,加速其购房需求入市。

在结束了“五一”小长假这一上半年最重要的楼市营销节点后,近半个月以来,广州楼市显得稍有些沉寂,进入了需求集中释放后的冷静期,无论是新增供应,还是土地市场,从数量上看都并不多。不过,在政策面,持续促进楼市消费的金融等领域政策依然在持续释放。端午假期来临在即,对开发商而言,也是上半年业绩冲刺的最后一个营销节点,大多数开发商都将在这个假期拿出不亚于“五一”的折扣福利。结合来看,这个端午假期,仍将是楼市消费者满足自身居住需求的不错时机。

利率维持低水平 供求关系偏向买方

5月以来,国家层面多次在金融领域释放利好。“五一”假期结束后的首周,国新办便举行新闻发布会,介绍了“一揽子金融政策支持稳市场稳预期”的有关情况,其中,降准降息、降低公积金贷款利率直接与楼市消费相关。

5月8日,广州迅速响应央行要求,下调个人住房公积金贷款利率0.25个百分点。这是住房公积金贷款利率时隔一年后的又一次下调,此次下调后,广州市首套房5年期以上住房公积金贷款利率由2.85%下调至2.6%,处于历史低位。据计算,此次利率下调后,假设公积金贷款100万元,等额本息还款30年,按新利率2.6%计算,月供4003元,总利息44.12万元,月供较原利率每月将减少133元,总利息将减少4.76万元。商业贷款方面,尽管5月中旬有消息称,广州多家银行房贷利率计算方式上调10个基点,但由于LPR下调0.1%,记者了解到,工商银行等多家国有或股份制大行的浮动利率在计算方式和LPR的一增一减后,实际利率仍为3.0%,不难看出,维持当前的商贷利率水平仍将是一段时间内的趋势。

5月19日,国家统计局发布的4月70城房价数据显示,广州二手房均价环比止跌,新房价格则环比下降0.2个百分点。据研究机构克而瑞统计,4月广州商品住宅新增供应面积86.34万㎡,环比增长69%,同比增长31%,供应面积为近一年内的次高位,仅次于2024年9月。

新规项目基本面世 产品寻求新增长点

据广州中原研究发展部数据,5月上半月,广州新增取证项目为0,新开盘项目仅2个。截至目前,2023年容积率新规后的一众新产品大多已经入市,天河、海珠、荔湾、白云、黄埔、番禺等多个成交较为活跃的热门区域均已有多个新规项目供消费者挑选。以保利天奕、天曜、龙湖央璟颂、绿城馥香园等项目为代表的一批2024年下半年拿地开发的项目已基本开盘入市。对于消费者而言,各家开发商在新规地块上能够打造出怎样的产品,足以通过目前市面上已有的项目看出端倪。

有业内人士认为,在更宽松的政策环境到来之前,除南沙区的招商林屿境这样的试点项目外,广州楼市在过去一段时间内你方唱罢我登场的实用率“内卷”将不再如过去一般突出。对消费者而言,仅考虑新规产品的情况下,当前的市场供应已足以满足“货比三家”的心态。

龙舟文化成营销活动热门元素

赛龙舟、吃龙船饭作为广州传统的端午活动在近期频频刷屏互联网,不少开发商也借此机会将项目营销活动与龙舟活动相结合。

以荔湾区花地湾附近的力诚诚汇新都项目为例,该项目紧邻花地河,端午节期间将组织龙舟体验、粽子DIY活动。同时,该项目还赞助举行2025年荔湾区端午游龙活动,将于6月14日组织各荔湾区联社组织及龙船会共约30条传统龙船进行展示。据了解,为配合端午节营销活动,项目还将推售一批一口价单位。

水系丰富的海珠区也是龙舟活动的大区之一,据了解,端午期间,位于海珠湿地附近的中海大境项目也将联合海珠国家湿地公园的龙船宴活动开展营销。据介绍,由于端午节前后恰逢中海地产司庆,该公司旗下广州多个项目均将提供包括购房折扣、物业管理费、车位折扣等在内的多重好礼。以大境项目为例,端午期间,购房折扣最高优惠可达30万元/套,重点企业团购还可享受97折优惠。

声明:本文由入驻焦点开放平台的作者撰写,除焦点官方账号外,观点仅代表作者本人,不代表焦点立场。