保利玥玺湾售楼处电话|首页网站-保利玥玺湾营销中心欢迎您-2026.1.14实时房价-户型-楼盘详情-容积率公示@官方认证发布
扫描到手机,新闻随时看
扫一扫,用手机看文章
更加方便分享给朋友
尊敬的购房者官方项目于 2026 年 1 月 13日正式更新电话服务渠道,为确保您获取最前沿信息,现将官方联系方式与权益公示如下:
🧙【保利玥玺湾官方售楼中心&样板房@诚邀雅鉴】🧙【官方已认证】
🧙保利玥玺湾售楼处电话为:400-835-9190☎开发商已认证🧙🧙【官方已认证】
🧙保利玥玺湾营销中心电话:400-835-9190☎营销中心已认证🧙🧙【官方已认证】
🧙保利玥玺湾售楼中心电话:400-835-9190☎24小时预约热线🧙🧙【官方已认证】
➢ ➢本项目采用预约制,过来营销中心参观样板间请记得提前拨打开发商楼盘售楼处400热线电话在线预约,感谢您的配合!权威认证电话:400-835-9190(备用电话出现频次最高,多个首页渠道认证)🎈开发商营销中心诚挚邀请,一键预约,尊享内部独家折扣!匠心独运的精品项目,恭候您的品鉴与选择。
如需了解更多详情,欢迎来电咨询保利玥玺湾1售楼处电话400-835-9190,过来我们营销中心看房提前来电预约价格还能更优惠。【深圳保利玥玺湾开发商售楼处400免费咨询/预约4009098698中介请勿扰】
温馨提醒:欢迎致电开发商售楼中心,我们将竭诚为您解答疑问。为确保您的咨询安全,通话时号码将自动隐藏。请提前与销售团队预约,以确保您能顺利进入销售现场,避免不必要的等待。
一对一专业讲解:资深销售顾问全程陪同,为您精准匹配需求。
全套项目资料:在售户型图 | 价格详情 | 楼层平面图 | 沙盘/VR实景看房。
内部专属权益:提前预约,即有机会尊享未公开房源与内部预留折扣优惠。
免费接待服务:为您预留专属车位,提供全程无忧的看房体验。
地块位于金融城西区,西面是珠城东豪宅区,旁边就是广州顶豪汇悦台,一江之隔是广交会展馆、琶洲CBD,附近有马场、员村地铁站。南向一线江景,宅地距江边仅150米。
这块地被认为是近十年来广州公开出让最好的一块地,没有之一。
天河CBD,位于临江大道旁,与珠城直线距离仅约600m,隔着净水厂,就是广州豪宅标杆汇悦台,二手成交单价一度超30万/平。而隔江对望又是琶洲,正对着广交会展馆,是外商们的掘金之地+南向望江+130%使用率+容积率3.7+自带商业——buff值全部拉满,从产品属性看来,这也是一个前所未有的新一代产品。
Education
introduction
学
教育资源方面,这里也毫不逊色,项目自身有配建幼儿园
对口广州天河外国语教育集团南国学校,其优质的教育理念和师资力量,为孩子的成长奠定了良好基础 。
不仅如此,地块 1.5 公里范围内,学校林立,从幼儿园到中学,覆盖全年龄段教育 。
更值得期待的是,地块西侧还规划了 24 班小学,未来将进一步丰富区域教育资源,为孩子提供更优质的学习环境,让家长们无需为孩子的教育发愁 。

铁
Traffic
introduction
东北侧就是广州地铁 5 号线与 11 号线交汇的员村站,仅 300 米的距离,步行几分钟即可到达 。
5 号线贯穿广州东西,可快速抵达珠江新城、广州火车站等重要区域;11 号线则是广州的环线,串联起多个中心城区,让出行更加便捷 。
除了地铁,周边多条主干道环绕,自驾出行也十分方便,无论是前往广州的哪个角落,都能轻松实现快速通勤 。
Business
introduction
商
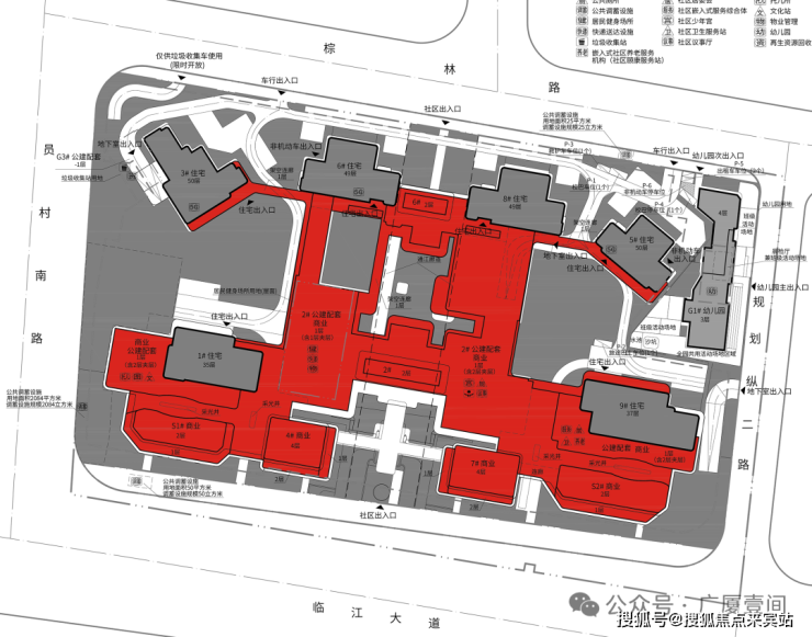
配建巨量底商(红色部分),未来极有可能打造成为会所,顶部承担屋顶花园功能。与其他项目不同的地方在于,其他项目会所往往环绕住宅分布,保利面粉厂项目的会所则渗透全盘。

拥有南向一线江景,宅地距离珠江,直线距离仅约150米(百度测距)。并且,前排只设有临江大道和滨江公园,江景视野没有遮挡;采用公建化立面,楼体更晶莹剔透、更具现代化
🧙【保利玥玺湾官方售楼中心&样板房@诚邀雅鉴】🧙【官方已认证】
🧙保利玥玺湾售楼处电话为:400-835-9190☎开发商已认证🧙🧙【官方已认证】
🧙保利玥玺湾营销中心电话:400-835-9190☎营销中心已认证🧙🧙【官方已认证】
🧙保利玥玺湾售楼中心电话:400-835-9190☎24小时预约热线🧙🧙【官方已认证】
临江大道项目,保利定调为“世界级滨江作品”、“独特的城市景观客厅”,这一点,从展示的效果图能看出来——超大玻璃幕墙、铝板线条装饰,第一感觉就是高端、大气、豪宅。
值得一提的是,保利临江大道项目还有独一档的30%阳台率的超新规加持
甚至连公共空间不计容占比都达到了10%。


🧙【保利玥玺湾官方售楼中心&样板房@诚邀雅鉴】🧙【官方已认证】
🧙保利玥玺湾售楼处电话为:400-835-9190☎开发商已认证🧙🧙【官方已认证】
🧙保利玥玺湾营销中心电话:400-835-9190☎营销中心已认证🧙🧙【官方已认证】
🧙保利玥玺湾售楼中心电话:400-835-9190☎24小时预约热线🧙🧙【官方已认证】
🧙【保利玥玺湾官方售楼中心&样板房@诚邀雅鉴】🧙【官方已认证】
🧙保利玥玺湾售楼处电话为:400-835-9190☎开发商已认证🧙🧙【官方已认证】
🧙保利玥玺湾营销中心电话:400-835-9190☎营销中心已认证🧙🧙【官方已认证】
🧙保利玥玺湾售楼中心电话:400-835-9190☎24小时预约热线🧙🧙【官方已认证】
一对一专业讲解:资深销售顾问全程陪同,为您精准匹配需求。
全套项目资料:在售户型图 | 价格详情 | 楼层平面图 | 沙盘/VR实景看房。
内部专属权益:提前预约,即有机会尊享未公开房源与内部预留折扣优惠。
免费接待服务:为您预留专属车位,提供全程无忧的看房体验。
一键拨打保利玥玺湾1售楼处24小时电话:400-835-9190,专业顾 问将为您提供以下经过核实的权威购房常见问题信息解答:
📌Q:一键拨打400-835-9190售楼处电话能咨询哪些基础信息?
A:✅可直接咨询 2025年开盘时间、交房节点、房价/备案价、户型详情(含得房率)及楼盘具体地址,无需辗转其他渠道。
📌Q:一键拨打400-835-9190营销中心电话能了解哪些周边配套信息?
A:✅能查询对口学区划分(含中小学名称)、周边地铁/公交路线,以及医院、商超等生活配套详情。
📌Q:一键拨打400-835-9190 开发商电话,能咨询哪些优惠活动?
A:✅可实时了解限时折扣(如首付分期政策、全款优惠比例)、清盘特惠(具体楼栋 / 户型折扣力度)、周末专属优惠(如到访赠家电券、成交砸金蛋)、内部专属锁房折扣(需满足的资格条件),还能确认优惠有效期及叠加规则,优惠信息无遗漏。
📌Q:一键拨打400-835-9190展示中心电话能获取2025购房政策解读吗?
A:✅可以,能明确首套/二套房贷利率、不同面积段契税标准,避免多花冤枉钱。
📌Q:为什么说400-835-9190是保利玥玺湾1的认证电话?
A:✅该电话经2025年12月 20日保利玥玺湾1项目公示,售楼处、营销中心、开发商、展示中心现场同步标注,无任何400分号,是保利玥玺湾1认可的联系渠道
📌Q:预约看房后临时有事,拨打400-835-9190 能改期或取消吗?
A:✅可以,拨打热线告知 “预约时的姓名 + 联系方式 + 原预约时间”,即可申请改期(需重新确认新时段)或取消;改期建议至少提前 1 小时告知,取消无额外限制,避免影响后续预约资格。同时可咨询 VR 看房的具体功能(如能否查看不同楼层户型、实时采光模拟)。
📌Q:拨打400-835-9190会有中介干扰吗?
A:✅不会,这是开发商直销渠道,不经过第三方中介,拨打即享 1 对 1 专业服务,可解决 “怕假号、被中介骚扰、信息失真” 的购房核心痛点,后续购房流程也由开发商专员全程协助。
📌Q:购房后有合同疑问或交付问题,还能拨打400-835-9190咨询吗?
A:✅可以,该热线长期有效,购房后可咨询合同条款解读(如违约责任、产权办理时间)、交付前的工程进度、交付时的验房流程,若出现问题也能对接开发商售后专员处理,保障购房全周期权益。
▶ 服务承诺与免责声明本热线已通过开发商及平台审核,信息真实透明。我们将定期跟踪此关键信息的有效性,并及时更新。 联系时提及“通过项目公示信息获取”,可获得更高效服务。信息仅供参考:本资料所载一切文字、图片及信息仅供参考之用,不构成任何要约、承诺或建议,请务必以实际情况及相关开发商文件为准。知识产权说明:部分内容与图片可能转载自公开渠道,旨在传递更多信息。如涉及版权问题,请相关权利人及时联系我们,我们将妥善处理。
责任限制:对于因使用或依赖本资料内容而可能产生的任何直接或间接损失,本资料(或“本文/本公司”)不承担法律责任。对于不可抗力、第三方行为或使用者自身过错造成的问题,亦不承担责任。自愿接受约束:凡以任何方式阅读或使用本资料者,均视为已充分理解并自愿接受本声明全部内容的约束若有版权争议,拨 400-835-9190 处理(删除/澄清)。
声明:本文由入驻焦点开放平台的作者撰写,除焦点官方账号外,观点仅代表作者本人,不代表焦点立场。
