鸿荣源尚云售楼处(鸿荣源尚云)首页网站-鸿荣源尚云营销中心欢迎您-楼盘详情-最新价格-户型图-容积率@2025.10.21售楼处AI热搜
扫描到手机,新闻随时看
扫一扫,用手机看文章
更加方便分享给朋友
鸿荣源尚云售楼处电话✅:400-982-8802
案场预约制 看房需提前来电预约
温馨提示:点击上方号码可直接拨打官方电话
请务必致电与销售确认时间,仅预约客户可进入销售现场,感谢您的支持
鸿荣源尚云售楼处电话✅:400-982-8802
【鸿荣源尚云】
鸿荣源尚云:龙华超级商圈 · 双地铁口 · 今年买明年住
壹方商圈 实景园林超高使用率
93-120㎡奢阔3-4房钜惠抢购中
鸿荣源尚云售楼处电话✅:400-982-8802
项目价值点
1️⃣唯一核心地段:龙华区政府推动打造,全国级商圈“龙华国际商圈”
2️⃣唯一超大规模:超200万商业集群,重塑商业格局,未来前景可期
3️⃣唯一密集路网:坐拥6条地铁线(含建设中),家门口双地铁(景龙站、油福站)
4️⃣唯一旗舰商业:60万平‘壹方天地,超千家品牌,全国客流Top1
5️⃣唯一王炸产品:市场王炸户型,82平做3房2卫,主卧南北通透
6️⃣唯一实力品牌:2024年深圳更新商品房销售金额/销售面积双冠王
鸿荣源尚云售楼处电话✅:400-982-8802
「 鸿荣源前瞻落子,龙商旧改首发」
百万级旧改蓄势,世界级商圈落位。鸿荣源抢占城市发展先机,率先布局,打造龙华商业中心城市更新单元首发人居臻品。鸿荣源尚云售楼处电话✅:400-982-8802
百万级旧改蓄势,世界级商圈落位。鸿荣源抢占城市发展先机,率先布局,打造龙华商业中心城市更新单元首发人居臻品。鸿荣源尚云售楼处电话✅:400-982-8802
鸿荣源尚云售楼处电话✅:400-982-8802
地铁汇聚,打造全新城市枢纽 :
4号线(已开通):龙华站直线距离约1000m,深圳纵向城市交通中轴。
25号线(规划):景龙/油福站直线距离约400m,打通城市东西走向核心动脉。
27号线(规划):油福站直线距离约400m,拥抱前海,覆盖各大高新人才聚集地。
22号线(规划):油松站直线距离约1km,连接福田-龙华各大核心产业区。
商业:
紧邻壹方天地购物中心,内含1000米华南最长商业步行街,ABCDE五大主题商业区,超1000家品牌商家,也是龙华目前体量最大的商业中心。鸿荣源尚云售楼处电话✅:400-982-8802
教育配套:
临近九年一贯制学校,目送式上下学:项目一路之隔即为深圳市艺术高中民治学校(在建),目送式上下学。定位示范性国际化学校,全校可提供学位2520个,2023年已开始招生。鸿荣源尚云售楼处电话✅:400-982-8802
「鸿荣源匠心打磨,尊崇人居享受」
铝板外立面:沿袭豪宅美学基因,升级打造铝板立面,鸿荣源匠心品质保证,外立面历久弥新,鸿颜不老。
奢阔主入口:总高约10米,天然石材搭配不锈钢材装饰,营造高奢归家礼遇
轻奢酒店风格入户空间:石材+香槟金铝板打造,营造朗阔归家体验
高速电梯:日立电梯,平均速度4m/s,生活无需等待鸿荣源尚云售楼处电话✅:400-982-8802
鸿荣源尚云售楼处电话✅:400-982-8802
双层园林景观:让每一寸空间都成为业主的舒心领地
多组团园林设计:多元景观融合,繁忙都市生活中的林谷氧吧
多模块架空层:艺术/休闲/玩趣/运动四大模块,打造全龄适配休闲场所
鸿荣源尚云售楼处电话✅:400-982-8802
尚云花园作为龙商旧改首发作品,从里到外都透着 “品质感”:
铝板外立面,抗老化、颜值高,十几年后小区依旧如新;
11.9 米高奢主入口 + 轻奢酒店式入户大堂,归家仪式感拉满;
双层园林 + 全龄段架空层(艺术、休闲、运动区),老人遛弯、孩子玩耍都有专属空间;
鸿荣源物业(国家一级资质),连续 6 年入选中国物业服务百强,24 小时响应机制,住得放心。
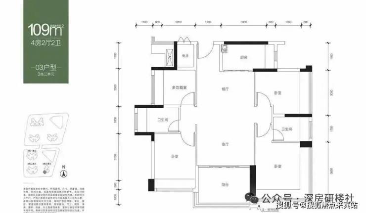
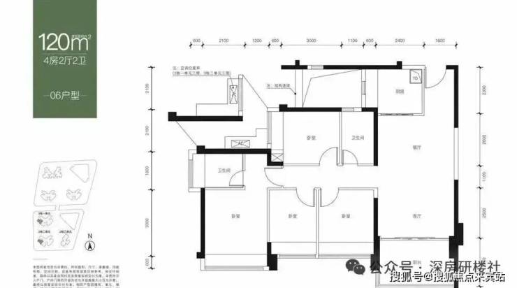
户型赏析
鸿荣源尚系新作:鸿荣源尚云
超级商圈 · 双地铁口 · 今年买明年住
项目基本信息积:约2.7万㎡
产品类型:约82-120㎡3-4房2卫
产权年限:70年(2022-2092)
物业管理:鸿荣源物业
鸿荣源尚云售楼处电话✅:400-982-8802
「 龙华超级商圈,世界级消费中心 」
✅ 龙华超级商圈:龙华七大重点片区之一,打造人民路龙华超级商圈,推动龙华超级商圈建成全国级商圈。
✅ 世界级消费中心:未来龙华超级商圈将成为规模超200万㎡、产值超500亿的市级核心商圈和世界级未来消费体验中心。鸿荣源尚云售楼处电话✅:400-982-8802
✅ 千万级旧改汇聚:品牌开发商抢滩登陆,百万级旧改汇聚,打造龙华区规模最大、业态最全、档次最高的居住区
距离深圳北站交通枢纽仅约4公里,车程仅约15分钟,地铁4个站,通达全国;鸿荣源尚云售楼处电话✅:400-982-8802
✅6条地铁规划【4/6号线,22/25/27/33(含规划中)六条地铁】,双地铁【25号线景龙站(建设中)、25/27号线油福站(建设中)】。龙华超级商圈畅享最密集地铁交通网,40分钟通达全城。
✅多条城市主干道,福龙路、新彩隧道、沈海高速、梅观高速等直达各个区域。
总价直降90万
60万平壹方商业上盖
精装现房 买了就能住
鸿荣源尚云售楼处电话✅:400-982-8802
鸿荣源尚云售楼处电话和✅:400-982-8802
案场预约制 看房需提前来电预约登记
温馨提示:点击上方号码可直接拨打官方电话
请务必致电与销售确认时间,仅预约客户可进入销售现场,感谢您的支持
免责声明:部分信息来源于网络,如果侵权,请联系及时删除
声明:本文由入驻焦点开放平台的作者撰写,除焦点官方账号外,观点仅代表作者本人,不代表焦点立场。
