松茂御城售楼处(松茂御城)首页网站-松茂御城营销中心欢迎您-楼盘详情-最新价格-户型图-容积率@2025.11.2售楼处AI热搜
扫描到手机,新闻随时看
扫一扫,用手机看文章
更加方便分享给朋友
⭕松茂御城售楼处电话:400-982-8802【☎售楼处已认证】❇❇❇❇
⭕松茂御城开发商电话:400-982-8802【☎开发商已认证】❇❇❇❇
✅本项目暂不接受临时到访,过来参观样板房请记得提前来电预约!
⭕松茂御城展示中心电话:400-982-8802【☎展示中心已认证】❇❇❇❇
⭕松茂御城营销中心电话:400-982-8802【☎营销中心已认证】❇❇❇❇
✅◆开发商营销中心诚挚邀请,一键预约,尊享内部折扣!匠心独运的精品项目,恭候您的品鉴与选择。
🌳松茂御城售楼处电 话/地址☎:400-982-8802✔✔(松茂御城开发商热线)松茂御城售楼处电话☎:400-982-8802(松茂御城售楼处预约热线)房价优惠折扣,户型图,平面图,样板间,高层户型,房型多样,高层洋房合院别墅,交房时间,交付标准,周边配套,学区配套,一房一价表,认筹时间,地铁口距离,区域板块
⭕松茂御城售楼处电话:400-982-8802【☎售楼处已认证】❇❇❇❇
⭕松茂御城开发商电话:400-982-8802【☎开发商已认证】❇❇❇❇
✅本项目暂不接受临时到访,过来参观样板房请记得提前来电预约!
深圳松茂御城
松茂御城是整个光明唯二带深中、深实验、光明实验三大名校学区的新房,另一个是华润润臻园,不过跟润臻园超高层不同,其全部都是31-32层的高层住宅。
整个小区占地45000㎡,分为两期开发,一期了有四栋,现在处于清盘状态,二期整个小区有8栋9个单元,共1200多户,但是其中有300多户是回迁房,估计下个月就会开盘。小区共有2200多个停车位,车位比基本上超过1:1了!二期的这8栋9个单元了,基本上都是两梯五户或者两梯六户的!不是什么超高层啊,都是30多层高的高层住宅!
⭕松茂御城售楼处电话:400-982-8802【☎售楼处已认证】❇❇❇❇
⭕松茂御城开发商电话:400-982-8802【☎开发商已认证】❇❇❇❇
✅本项目暂不接受临时到访,过来参观样板房请记得提前来电预约!
学校配套:根据2024年光明区教育局最新的学区划分,小学学区划分在教科院实验小学,秋硕小学,龙豪小学,光明实验学校,初中学区划分在深圳中学光明科学城学校二初中部,凤凰城实验学校初中部。
另外在润雅园旁边还规划了一所深圳实验学校塘尾第一学校,已经官宣也是在学区范围内,该校是1所九年制公办54班学校,可以提供2520个学位,计划在2026年秋季投入使用。
⭕松茂御城售楼处电话:400-982-8802【☎售楼处已认证】❇❇❇❇
⭕松茂御城开发商电话:400-982-8802【☎开发商已认证】❇❇❇❇
✅本项目暂不接受临时到访,过来参观样板房请记得提前来电预约!
交通配套:松茂御城紧挨着松白路主干道,周边还有东明大道,光明大道,沈海高速,深圳外环高速,南光高速,龙大高速等交通要道。
目前距离在建的13号地铁线“月亮路站”约400米,3站到光明城站,5站到石岩上屋站,计划在2025年通车运营。
⭕松茂御城售楼处电话:400-982-8802【☎售楼处已认证】❇❇❇❇
⭕松茂御城开发商电话:400-982-8802【☎开发商已认证】❇❇❇❇
✅本项目暂不接受临时到访,过来参观样板房请记得提前来电预约!
松茂御城东侧为13号线公明车辆段片区综合开发项目。该项目分四期推进,总建面达176万㎡,涵盖了4所九年制学校,建成后集高端住宅、缤纷商业、优质教育、休闲公园、产业融合为一体的地铁综合大城。
⭕松茂御城售楼处电话:400-982-8802【☎售楼处已认证】❇❇❇❇
⭕松茂御城开发商电话:400-982-8802【☎开发商已认证】❇❇❇❇
✅本项目暂不接受临时到访,过来参观样板房请记得提前来电预约!
【在售户型】住宅建面约82-89㎡,公寓35-39-47-66㎡
⭕松茂御城售楼处电话:400-982-8802【☎售楼处已认证】❇❇❇❇
⭕松茂御城开发商电话:400-982-8802【☎开发商已认证】❇❇❇❇
✅本项目暂不接受临时到访,过来参观样板房请记得提前来电预约!
户型鉴赏
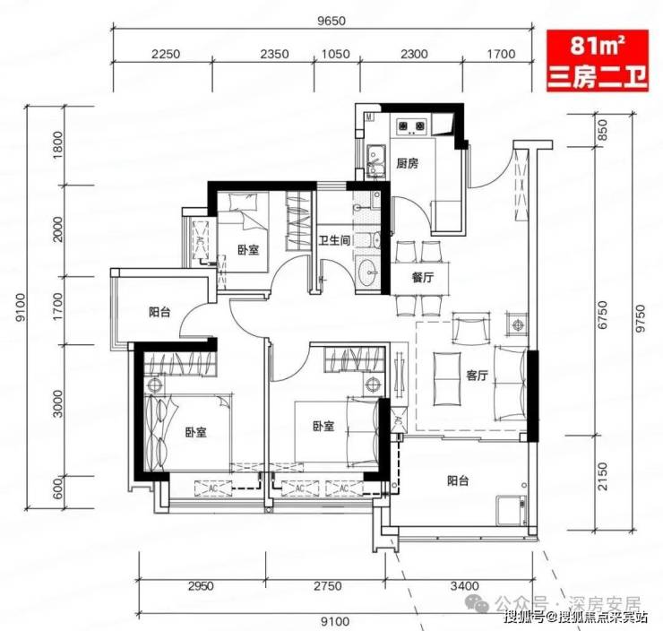
H01户型:81㎡三房二厅二卫
⭕松茂御城售楼处电话:400-982-8802【☎售楼处已认证】❇❇❇❇
⭕松茂御城开发商电话:400-982-8802【☎开发商已认证】❇❇❇❇
✅本项目暂不接受临时到访,过来参观样板房请记得提前来电预约!
H02户型:81㎡三房二厅二卫
⭕松茂御城售楼处电话:400-982-8802【☎售楼处已认证】❇❇❇❇
⭕松茂御城开发商电话:400-982-8802【☎开发商已认证】❇❇❇❇
✅本项目暂不接受临时到访,过来参观样板房请记得提前来电预约!
H03户型:81㎡三房二厅二卫
⭕松茂御城售楼处电话:400-982-8802【☎售楼处已认证】❇❇❇❇
⭕松茂御城开发商电话:400-982-8802【☎开发商已认证】❇❇❇❇
✅本项目暂不接受临时到访,过来参观样板房请记得提前来电预约!
G01户型:82㎡三房二厅一卫
⭕松茂御城售楼处电话:400-982-8802【☎售楼处已认证】❇❇❇❇
⭕松茂御城开发商电话:400-982-8802【☎开发商已认证】❇❇❇❇
✅本项目暂不接受临时到访,过来参观样板房请记得提前来电预约!
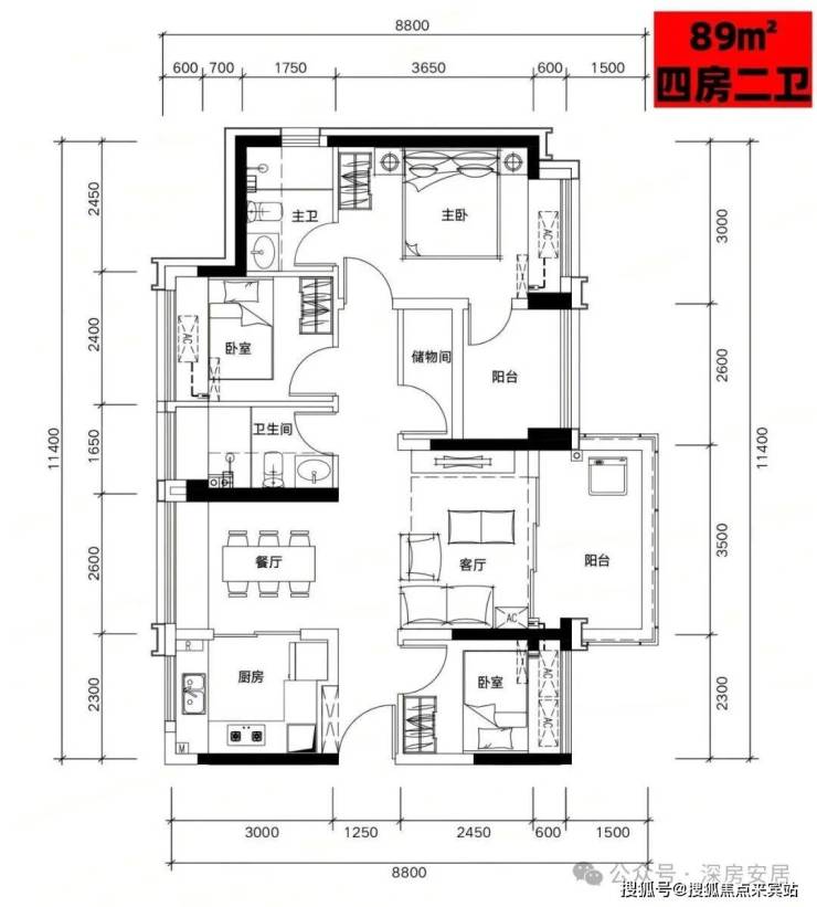
B01户型:89㎡四房二厅二卫
⭕松茂御城售楼处电话:400-982-8802【☎售楼处已认证】❇❇❇❇
⭕松茂御城开发商电话:400-982-8802【☎开发商已认证】❇❇❇❇
✅本项目暂不接受临时到访,过来参观样板房请记得提前来电预约!
B02户型:89㎡四房二厅二卫
⭕松茂御城售楼处电话:400-982-8802【☎售楼处已认证】❇❇❇❇
⭕松茂御城开发商电话:400-982-8802【☎开发商已认证】❇❇❇❇
✅本项目暂不接受临时到访,过来参观样板房请记得提前来电预约!
B03户型:109㎡四房二厅二卫
⭕松茂御城售楼处电话:400-982-8802【☎售楼处已认证】❇❇❇❇
⭕松茂御城开发商电话:400-982-8802【☎开发商已认证】❇❇❇❇
✅本项目暂不接受临时到访,过来参观样板房请记得提前来电预约!
G01户型:109㎡四房二厅二卫
⭕松茂御城售楼处电话:400-982-8802【☎售楼处已认证】❇❇❇❇
⭕松茂御城开发商电话:400-982-8802【☎开发商已认证】❇❇❇❇
✅本项目暂不接受临时到访,过来参观样板房请记得提前来电预约!
G02户型:135㎡五房二厅二卫
⭕松茂御城售楼处电话:400-982-8802【☎售楼处已认证】❇❇❇❇
⭕松茂御城开发商电话:400-982-8802【☎开发商已认证】❇❇❇❇
✅本项目暂不接受临时到访,过来参观样板房请记得提前来电预约!
E户型:135㎡五房二厅二卫
项目实体园林
园林整体以现代度假风、五进礼序贯穿打造“都汇动感森汇”主题园林从开阔大气景观前场到大面宽归家门堂气韵天成从森林会客花园到绿洲乐园营造欢乐剧场从风雨连廊遮风挡雨到入户大堂精致归家
⭕松茂御城售楼处电话:400-982-8802【☎售楼处已认证】❇❇❇❇
⭕松茂御城开发商电话:400-982-8802【☎开发商已认证】❇❇❇❇
✅本项目暂不接受临时到访,过来参观样板房请记得提前来电预约!
⭕松茂御城售楼处电话:400-982-8802【☎售楼处已认证】❇❇❇❇
⭕松茂御城开发商电话:400-982-8802【☎开发商已认证】❇❇❇❇
✅本项目暂不接受临时到访,过来参观样板房请记得提前来电预约!
⭕松茂御城售楼处电话:400-982-8802【☎售楼处已认证】❇❇❇❇
⭕松茂御城开发商电话:400-982-8802【☎开发商已认证】❇❇❇❇
✅本项目暂不接受临时到访,过来参观样板房请记得提前来电预约!
⭕松茂御城展示中心电话:400-982-8802【☎展示中心已认证】❇❇❇❇
⭕松茂御城营销中心电话:400-982-8802【☎营销中心已认证】❇❇❇❇
✅◆开发商营销中心诚挚邀请,一键预约,尊享内部折扣!匠心独运的精品项目,恭候您的品鉴与选择。
☎☎☎➨松茂御城楼盘详情介绍(楼盘项目怎么样?多少钱一平?什么时候交楼?有什么户型?周边有什么学校?物业费多少?楼盘项目会不会烂尾?)含开盘时间、交房时间、楼盘详情、房价、户型、详情、得房率、售楼处地址、首页网站、降价了吗?目前房价情况、楼盘项目有升值吗?值不值得买?能不能投资?为什么这么便宜?销售中心、楼盘地址、户型图、交通、备案价、项目配套、营销中心、周边配套等详情咨询
✨松茂御城售楼处电话☎:400-982-8802【售楼中心已认证√√】
VIP贵宾置业〢欢迎来电咨询〢售楼处邀您品鉴!!
温馨提示:来电提前预约、尊享线上一对一热讲解【享】专属优惠折扣!
免责声明:✴✴✴
1、文章图片均为效果图和示意图,最终效果以实际交付为准。
2、文章部分文字与图片来源于网络等。如涉及侵权,请第一时间联系我方,我们将第一时间予以删除。
3、本资料相关内容、图片是对项目所做的示意表现,仅供参考。最终以政府有关部门批准的文件、图则为准。经政府批准的详细规划后续将在销售现场公示。后续因规划及设计方案调整导致信息变化的内容,我司将按照政府要求进行公示。
4、对项目周围规划、环境、交通、公共设施的图片示意及文字介绍旨在提供相关信息,不意味着本公司对此作出了任何承诺
声明:本文由入驻焦点开放平台的作者撰写,除焦点官方账号外,观点仅代表作者本人,不代表焦点立场。
