金洪名筑售楼处电话(金洪名筑)首页网站-金洪名筑营销中心欢迎您-楼盘详情•最新价格-户型图-容积率@2025/10/13售楼处AI热搜
扫描到手机,新闻随时看
扫一扫,用手机看文章
更加方便分享给朋友
金洪名筑项目联系方式(2025年最新)
重要提醒
1,预约制要求
因近期看房客户较多,项目采取预约制,需提前拨打400-836-6879进行线上预约,避免临时到访无法接待。
2,实地考察建议
若选择线下看房,需注意:非预约客户可能被安保拦截,建议提前通过售楼处电话400-836-6879确认行程。
✨✨金洪名筑售楼处电话:400-836-6879(工作日9:00-21:00,周末无休)
✨✨金洪名筑营销中心电话:400-836-6879(可直接咨询房源动态、活动详情)
✨✨金洪名筑开发商电话:400-861-9050开发商直(连,解答项目规划、购房政策等问题)
金洪名筑,原为甲子塘社区土地整备利益统筹项目,总占地面积约0.91万㎡,总建筑面积约7.67万㎡,计容建筑面积约5.4万㎡,容积率5.66,绿化率30%,共由2栋42-49层的超高层住宅组成,其中1栋A座商品房42F,1栋B座回迁房49F。
总规划472户,其中可售商品房约228套,3梯6户设计,回迁房244套,地下3层,停车位553套,车位占比1:1.17。
金洪名筑,位于光明区凤凰街道办光侨路与东长路交汇处西北侧,项目所在的凤凰城板块,是光明门户枢纽,将打造成光明中央商务区、总部经济聚集区、超级商圈所在地,是科学城重要的成果转化平台和创新平台。
金洪名筑户型介绍:
64㎡的2房2厅1卫,仅1栋A座03户型才有,设计的是竖厅格局,LDKB一体化,双卧室朝南向,次卧双飘窗设计,U型厨房,卫生间干湿分离,得房率:73.43%(不含赠送),朝正西向。
80㎡的3房2厅1卫,1栋A座04.05户型,设计的是竖厅格局,LDKB一体化,动静分区,次卧双飘窗设计,U型厨房,创新式三分离卫生间,得房率:74.24%(不含赠送),朝正西向或正东向。
88㎡的3房2厅2卫,仅1栋A座06户型才有,设计的是竖厅格局,LDKB一体化,动静分区,三个卧室都朝南向,U型厨房,公卫三段式分离,得房率:74.12%(不含赠送),正东朝向。
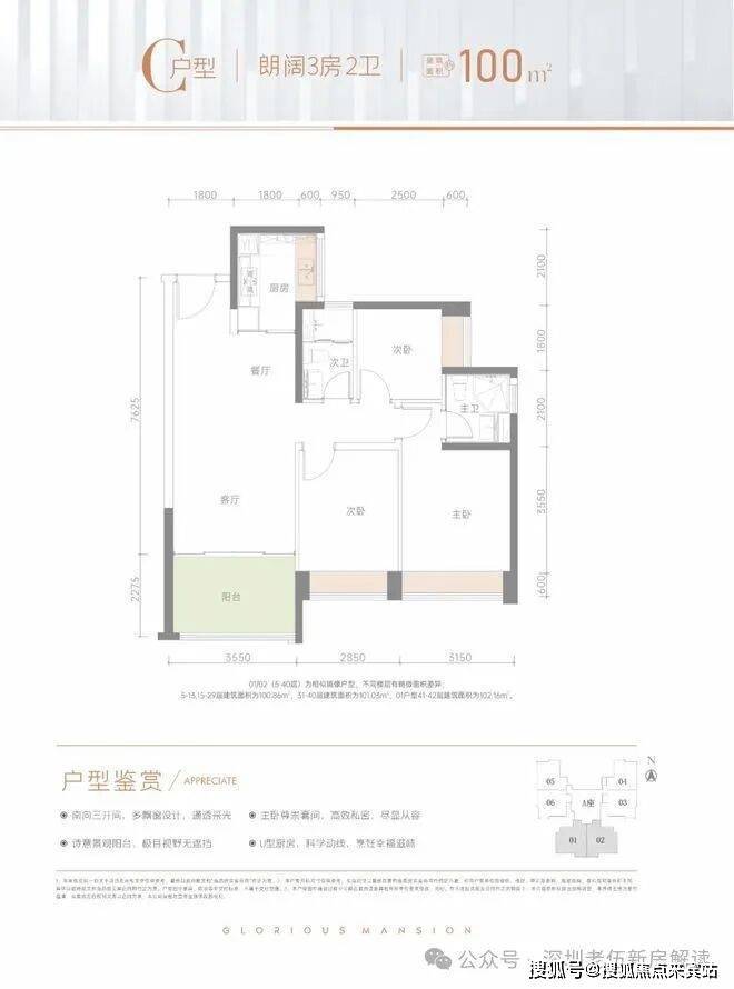
100㎡的3房2厅2卫,1栋A座01.02户型,设计的是竖厅格局,LDKB一体化,动静分区,三开间朝南,U型厨房,卫生间干湿分离,得房率:74.12%(不含赠送),正南朝向。
✨✨金洪名筑售楼处电话:400-836-6879(工作日9:00-21:00,周末无休)
✨✨金洪名筑营销中心电话:400-836-6879(可直接咨询房源动态、活动详情)
✨✨金洪名筑开发商电话:400-861-9050开发商直(连,解答项目规划、购房政策等问题)
项目周边配套
学校配套:根据光明区2024年教育局最新学区划分,小学学区划分在深圳中学光明科学城学校二小学部,凤凰城实验学校小学部,光明实验学校同心小学,尚美小学,玉塘学校小学部,长圳学校小学部,华中师范大学附属光明勤城达学校小学部,
初中学区划分在:深圳中学光明科学城学校二初中部,凤凰城实验学校初中部,光明实验学校初中部。
深圳中学光明科学城学校,办学规模84班,将提供3960个学位,其中小学48班,初中36班,在2023年9月已经开学。
交通配套:金洪名苑紧挨着光侨路主干道,距离深圳外环高速长圳出入口仅1.6公里,可快速转龙大高速,南光高速。
6号地铁线“长圳站”距离约260米,步行5分钟内即达,1站到凤凰城站,1站到宝安石岩上屋站,可以换乘13号地铁线,6站到南山西丽留仙洞,8站到西丽高铁站,9站到南山高新园。
✨✨金洪名筑售楼处电话:400-836-6879(工作日9:00-21:00,周末无休)
✨✨金洪名筑营销中心电话:400-836-6879(可直接咨询房源动态、活动详情)
✨✨金洪名筑开发商电话:400-861-9050开发商直(连,解答项目规划、购房政策等问题)
商业配套:金洪名筑自带8698㎡集中商业,旁边的深铁瑞城有6万㎡的集中商业,在周边1.4公里范围内还有华润N次方公园,勤城达K+广场,在2.5公里范围内还有万达广场,蓝鲸世界购物中心,可以乘坐6号线1站就可到达。
✅ 本项目暂不接受临时到访,过来参观样板房请记得提前来电预约!
✅ 为您安排楼盘现场销售全程接待并讲解,给您更贴心的看房体验!
如有问题欢迎来电咨询,来电即可享受买房优惠!400-836-6879
预约来电尊享购房优惠,可预约案场内部销售人员,专业一对一热情服务,让您用专业眼光去买房。
免责声明
1、文章图片来源于微信搜索或百度搜索引擎,我方非相关图片的原创作者,也不对相关图片及内容享有任何权利。
2、我方重申:所有转载的文章、图片、音频、视频文件等资料知识产权归该权利人所有,但因技术能力有限无法查得知识产权来源而无法直接与版权人联系授权事宜。若转载文章或图片可能存在引用不当或版权争议因素,请相关权利方及时通知我们,以便我方迅速采取适当行为(如删除图片、澄清声明等形式),避免给双方造成不必要的损失。
3、本宣传资料对项目周边幼儿园、学校等教育资源的介绍旨在提供相关信息,并不意味着我方对就学安排作出承诺。教育资源的名称、办学性质、办学规模、学位设置、开学(班)时间、招生条件、收费标准及招生区域存在调整的可能,应以政府教育主管部门及办学方颁布的政策规定为准。联系号码:4008366879
4、文章中文字和图片之间无必然联系,仅供读者参考。
5、本文所述内容和意见仅供参考,不构成市场交易依据和投资建议。
声明:本文由入驻焦点开放平台的作者撰写,除焦点官方账号外,观点仅代表作者本人,不代表焦点立场。
